Your email has been sent.
Highlights
- Mid-box retail space with 24,000 SF available immediately!
- Located adjacent to many strong co-tenants and national brands.
- Great visibility and exposure with prominent building and monument signage opportunities.
- Great central location in Idaho Falls along major arterial with high traffic counts — 30,155 vehicles per day.
- Ample parking provided.
Space Availability (1)
Display Rental Rate as
- Space
- Size
- Term
- Rental Rate
- Rent Type
| Space | Size | Term | Rental Rate | Rent Type | ||
| 1st Floor | 24,000 SF | Negotiable | Upon Request Upon Request Upon Request Upon Request | Triple Net (NNN) |
1st Floor
Mid-box retail space with 24,000 SF available immediately! Great central location in Idaho Falls along major arterial with high traffic counts — 30,155 vehicles per day. Located adjacent to many strong co-tenants and national brands. Ample parking provided. Great visibility and exposure with prominent building and monument signage opportunities.
- Lease rate does not include utilities, property expenses or building services
- Partially Built-Out as Standard Retail Space
- Highly Desirable End Cap Space
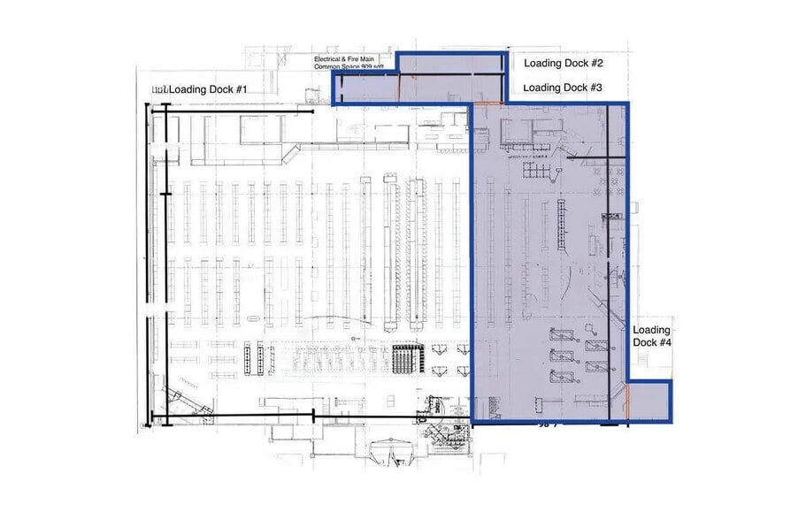
- 2 Loading Docks
Rent Types
The rent amount and type that the tenant (lessee) will be responsible to pay to the landlord (lessor) throughout the lease term is negotiated prior to both parties signing a lease agreement. The rent type will vary depending upon the services provided. For example, triple net rents are typically lower than full service rents due to additional expenses the tenant is required to pay in addition to the base rent. Contact the listing broker for a full understanding of any associated costs or additional expenses for each rent type.
1. Full Service: A rental rate that includes normal building standard services as provided by the landlord within a base year rental.
2. Double Net (NN): Tenant pays for only two of the building expenses; the landlord and tenant determine the specific expenses prior to signing the lease agreement.
3. Triple Net (NNN): A lease in which the tenant is responsible for all expenses associated with their proportional share of occupancy of the building.
4. Modified Gross: Modified Gross is a general type of lease rate where typically the tenant will be responsible for their proportional share of one or more of the expenses. The landlord will pay the remaining expenses. See the below list of common Modified Gross rental rate structures: 4. Plus All Utilities: A type of Modified Gross Lease where the tenant is responsible for their proportional share of utilities in addition to the rent. 4. Plus Cleaning: A type of Modified Gross Lease where the tenant is responsible for their proportional share of cleaning in addition to the rent. 4. Plus Electric: A type of Modified Gross Lease where the tenant is responsible for their proportional share of the electrical cost in addition to the rent. 4. Plus Electric & Cleaning: A type of Modified Gross Lease where the tenant is responsible for their proportional share of the electrical and cleaning cost in addition to the rent. 4. Plus Utilities and Char: A type of Modified Gross Lease where the tenant is responsible for their proportional share of the utilities and cleaning cost in addition to the rent. 4. Industrial Gross: A type of Modified Gross lease where the tenant pays one or more of the expenses in addition to the rent. The landlord and tenant determine these prior to signing the lease agreement.
5. Tenant Electric: The landlord pays for all services and the tenant is responsible for their usage of lights and electrical outlets in the space they occupy.
6. Negotiable or Upon Request: Used when the leasing contact does not provide the rent or service type.
7. TBD: To be determined; used for buildings for which no rent or service type is known, commonly utilized when the buildings are not yet built.
Select Tenants at 400 S Woodruff Ave, Idaho Falls, ID 83401
- Tenant
- Description
- US Locations
- Reach
- BDO
- Retailer
- 1
- -
- O'Reilly Auto Parts
- Automotive
- 7,328
- International
| Tenant | Description | US Locations | Reach |
| BDO | Retailer | 1 | - |
| O'Reilly Auto Parts | Automotive | 7,328 | International |
Property Facts
| Total Space Available | 24,000 SF | Gross Leasable Area | 67,314 SF |
| Property Type | Retail | Year Built | 1990 |
| Property Subtype | Storefront | Parking Ratio | 5.17/1,000 SF |
| Total Space Available | 24,000 SF |
| Property Type | Retail |
| Property Subtype | Storefront |
| Gross Leasable Area | 67,314 SF |
| Year Built | 1990 |
| Parking Ratio | 5.17/1,000 SF |
About the Property
Introducing a prime commercial opportunity at 400 S Woodruff Ave, Idaho Falls, ID! This mid-box retail space offers an impressive 24,000 SF of available space, perfectly positioned for immediate leasing. Situated along a major arterial with a daily traffic count of 30,155 vehicles, this property guarantees exceptional visibility and exposure. With ample parking, advantageous co-tenants, and national brands nearby, this space presents an unparalleled opportunity for your business. Take advantage of prominent building and monument signage opportunities that will further elevate your brand. Explore the potential of this remarkable location today! Schedule a viewing and make your mark in this thriving commercial hub.
Nearby Major Retailers
Presented by
400 S Woodruff Ave
Hmm, there seems to have been an error sending your message. Please try again.
Thanks! Your message was sent.




