Your email has been sent.
Ruthven East Lakeland Industrial Park Lakeland, FL 33805 7,280 - 32,760 SF of Industrial Space Available



Park Highlights
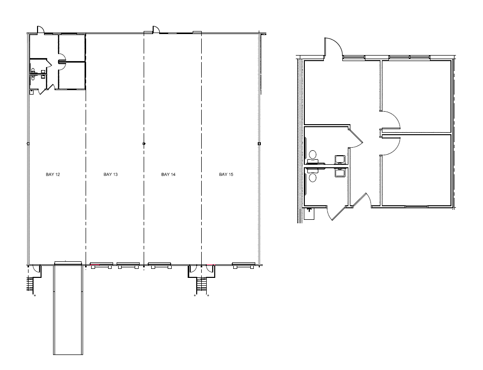
- Multi-building industrial campus offering a minimum of two bays at 4,680 SF up to 31 contiguous bays at 87,360 SF
- Ideal for manufacturing and distribution with abundant dock-high and grade-level loading, web-accessible security cams, heavy power, and 24' ceilings
- Centrally located between Tampa and Orlando, offering easy access and excellent connectivity with ample parking and a five-minute drive to I-4
- Take advantage of immediate access to the Lakeland-Winter Haven MSA, representing a growing population of over 800,000 residents
Park Facts
| Total Space Available | 32,760 SF | Park Type | Industrial Park |
| Total Space Available | 32,760 SF |
| Park Type | Industrial Park |
All Available Spaces(3)
Display Rental Rate as
- Space
- Size
- Term
- Rental Rate
- Space Use
- Condition
- Available
10,920 SF unit includes 664 SF of office, 4 dock high doors and 1 ramp. 120/208V and 277/480V, 200A, 3-Phase power.
- Lease rate does not include utilities, property expenses or building services
- Space is in Excellent Condition
- 10,920 SF Space Includes 664 SF of Office
- 120/208V and 277/480V, 200A, 3-Phase Power
- Includes 664 SF of dedicated office space
- 3 Loading Docks
- 4 Dock-High Doors and 1 Ramp
| Space | Size | Term | Rental Rate | Space Use | Condition | Available |
| 1st Floor - 12-15 | 10,920 SF | Negotiable | Upon Request Upon Request Upon Request Upon Request | Industrial | Full Build-Out | Now |
4040 N Combee Rd - 1st Floor - 12-15
- Space
- Size
- Term
- Rental Rate
- Space Use
- Condition
- Available
7,280 SF unit includes 659 SF of office and 2 dock high doors. 120/208V & 277/480V, 200A, 3-Phase power.
- Lease rate does not include utilities, property expenses or building services
- Space is in Excellent Condition
- 7,280 SF Unit with 659 SF of Office
- 2 dock high doors
- Includes 659 SF of dedicated office space
- 3 Loading Docks
- 7,280 SF Unit with 659 SF of Office
- 120/208V & 277/480V, 200A, 3-Phase Power
14,560 SF unit includes 662 SF of office and 5 dock high doors. 120/208V & 277/480V, 200A, 3-Phase power.
- Lease rate does not include utilities, property expenses or building services
- Space is in Excellent Condition
- 14,560 SF Unit with 662 SF of Office
- 120/208V & 277/480V, 200A, 3-Phase Power
- Includes 659 SF of dedicated office space
- 5 Loading Docks
- 5 Dock-High Doors
| Space | Size | Term | Rental Rate | Space Use | Condition | Available |
| 1st Floor - 19-20 | 7,280 SF | Negotiable | Upon Request Upon Request Upon Request Upon Request | Industrial | Full Build-Out | Now |
| 1st Floor - 5-8 | 14,560 SF | Negotiable | Upon Request Upon Request Upon Request Upon Request | Industrial | Full Build-Out | 30 Days |
4000 N Combee Rd - 1st Floor - 19-20
4000 N Combee Rd - 1st Floor - 5-8
4040 N Combee Rd - 1st Floor - 12-15
| Size | 10,920 SF |
| Term | Negotiable |
| Rental Rate | Upon Request |
| Space Use | Industrial |
| Condition | Full Build-Out |
| Available | Now |
10,920 SF unit includes 664 SF of office, 4 dock high doors and 1 ramp. 120/208V and 277/480V, 200A, 3-Phase power.
- Lease rate does not include utilities, property expenses or building services
- Includes 664 SF of dedicated office space
- Space is in Excellent Condition
- 3 Loading Docks
- 10,920 SF Space Includes 664 SF of Office
- 4 Dock-High Doors and 1 Ramp
- 120/208V and 277/480V, 200A, 3-Phase Power
4000 N Combee Rd - 1st Floor - 19-20
| Size | 7,280 SF |
| Term | Negotiable |
| Rental Rate | Upon Request |
| Space Use | Industrial |
| Condition | Full Build-Out |
| Available | Now |
7,280 SF unit includes 659 SF of office and 2 dock high doors. 120/208V & 277/480V, 200A, 3-Phase power.
- Lease rate does not include utilities, property expenses or building services
- Includes 659 SF of dedicated office space
- Space is in Excellent Condition
- 3 Loading Docks
- 7,280 SF Unit with 659 SF of Office
- 7,280 SF Unit with 659 SF of Office
- 2 dock high doors
- 120/208V & 277/480V, 200A, 3-Phase Power
4000 N Combee Rd - 1st Floor - 5-8
| Size | 14,560 SF |
| Term | Negotiable |
| Rental Rate | Upon Request |
| Space Use | Industrial |
| Condition | Full Build-Out |
| Available | 30 Days |
14,560 SF unit includes 662 SF of office and 5 dock high doors. 120/208V & 277/480V, 200A, 3-Phase power.
- Lease rate does not include utilities, property expenses or building services
- Includes 659 SF of dedicated office space
- Space is in Excellent Condition
- 5 Loading Docks
- 14,560 SF Unit with 662 SF of Office
- 5 Dock-High Doors
- 120/208V & 277/480V, 200A, 3-Phase Power
Park Overview
4000 N. Combee Road is a 129,480 SF dock high warehouse in Lakeland, FL. This park is strategically located near I-4 and FL-33, 7 minutes to I-4 and 10 minutes to Florida Polytechnic University. Units range in size from 4,680-25,480 SF. Exterior walls are tilt-wall, electrical service is 120/208 & 277/480V, 3-Phase, total of 163 parking spaces (1.3/1,000 SF) with 24’ clear height and column spacing of 52’ x 50’. The property is located only 3.2 miles to an interchange of I-4 and FL-33 at exit 38, and 6.3 miles to the Polk Parkway.
Presented by
Ruthven East Lakeland Industrial Park | Lakeland, FL 33805
Hmm, there seems to have been an error sending your message. Please try again.
Thanks! Your message was sent.




