Your email has been sent.
401 Hamburg Turnpike - Wayne Hills Office Ctr 2,134 SF Office Condo Unit Offered at $551,973 CAD in Wayne, NJ 07470



PROPERTY FACTS
| Total Building Size | 51,457 SF | Typical Floor Size | 17,152 SF |
| Property Type | Office (Condo) | Year Built | 1984 |
| Property Subtype | Medical | Lot Size | 3.40 AC |
| Building Class | B | Parking Ratio | 4/1,000 SF |
| Floors | 3 | ||
| Zoning | OB - Medical / Professional | ||
| Total Building Size | 51,457 SF |
| Property Type | Office (Condo) |
| Property Subtype | Medical |
| Building Class | B |
| Floors | 3 |
| Typical Floor Size | 17,152 SF |
| Year Built | 1984 |
| Lot Size | 3.40 AC |
| Parking Ratio | 4/1,000 SF |
| Zoning | OB - Medical / Professional |
AMENITIES
- 24 Hour Access
- Accent Lighting
- Storage Space
- Natural Light
- Recessed Lighting
- Air Conditioning
1 UNIT AVAILABLE
Unit 101
| Unit Size | 2,134 SF | Condo Use | Office |
| Price | $551,973 CAD | Sale Type | Investment or Owner User |
| Price Per SF | $258.66 CAD |
| Unit Size | 2,134 SF |
| Price | $551,973 CAD |
| Price Per SF | $258.66 CAD |
| Condo Use | Office |
| Sale Type | Investment or Owner User |
DESCRIPTION
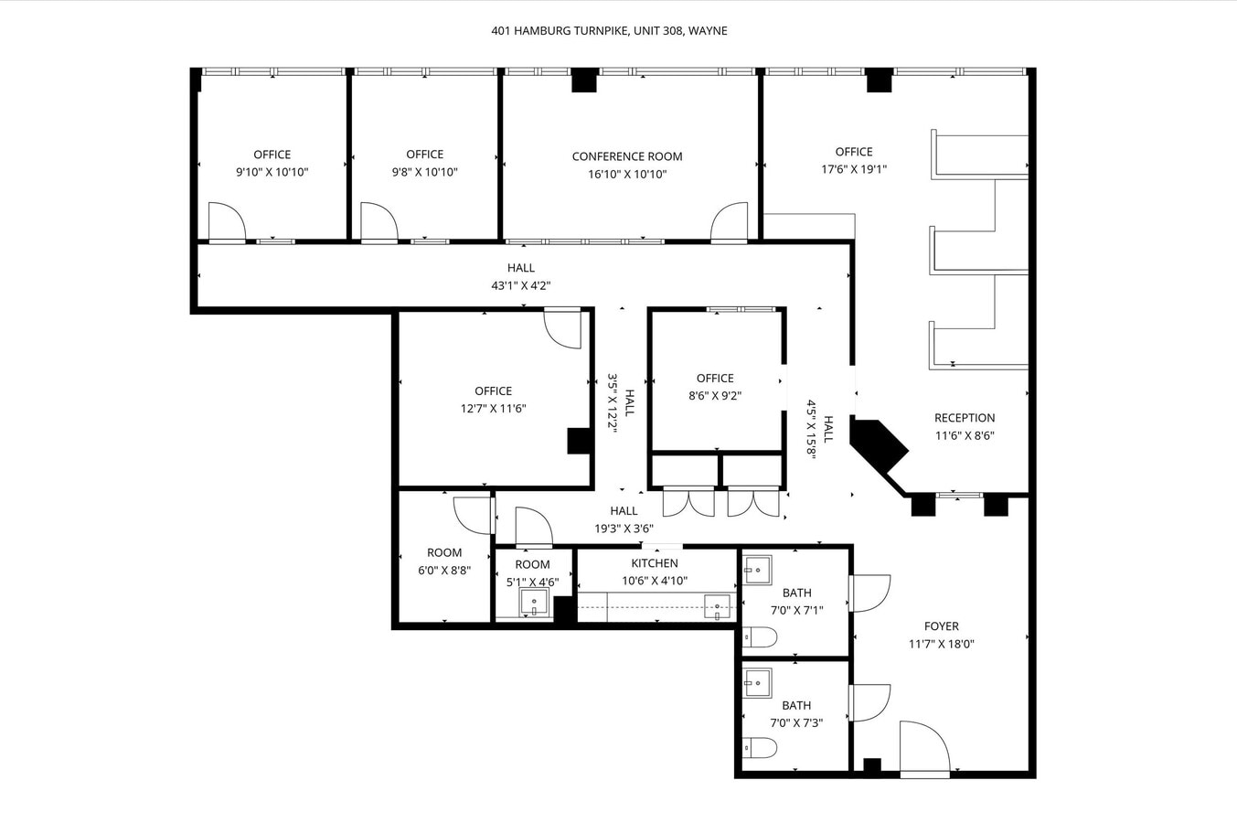
Furnished 2,134 sq. ft. professional office condo offering an ideal layout that includes a spacious reception and waiting area, large bullpen, 3 private offices, a conference room, kitchenette, 2 remodeled bathrooms, and ample storage space. Located in a well-maintained building with abundant parking and full handicap accessibility, this property sits in a prime area close to public transportation, bus stops and minutes away from St. Joseph's Hospital. Perfect for attorneys, corporate offices, doctors, insurance agents, or any professional seeking a ready-to-use office space in a convenient location.
1-all_floors_401_paterson_hamburg_turnpike_308_wayne_with_dim 2
1-web-or-mls-Hamburg Tpke-S2410-001
2-web-or-mls-Hamburg Tpke-S2410-002
3-web-or-mls-Hamburg Tpke-S2410-003
4-web-or-mls-Hamburg Tpke-S2410-004
5-web-or-mls-Hamburg Tpke-S2410-005
6-web-or-mls-Hamburg Tpke-S2410-006
7-web-or-mls-Hamburg Tpke-S2410-007
8-web-or-mls-Hamburg Tpke-S2410-008
9-web-or-mls-Hamburg Tpke-S2410-009
10-web-or-mls-Hamburg Tpke-S2410-010
11-web-or-mls-Hamburg Tpke-S2410-011
12-web-or-mls-Hamburg Tpke-S2410-012
13-web-or-mls-Hamburg Tpke-S2410-013
14-web-or-mls-Hamburg Tpke-S2410-014
15-web-or-mls-Hamburg Tpke-S2410-015
16-web-or-mls-Hamburg Tpke-S2410-016
17-web-or-mls-Hamburg Tpke-S2410-017
18-web-or-mls-Hamburg Tpke-S2410-018
19-web-or-mls-Hamburg Tpke-S2410-019
20-web-or-mls-Hamburg Tpke-S2410-020
21-web-or-mls-Hamburg Tpke-S2410-021
22-web-or-mls-Hamburg Tpke-S2410-022
23-web-or-mls-Hamburg Tpke-S2410-023
24-web-or-mls-Hamburg Tpke-S2410-024
25-web-or-mls-Hamburg Tpke-S2410-025
26-web-or-mls-Hamburg Tpke-S2410-026
27-web-or-mls-Hamburg Tpke-S2410-027
28-web-or-mls-Hamburg Tpke-S2410-028
29-web-or-mls-Hamburg Tpke-S2410-029
30-web-or-mls-Hamburg Tpke-S2410-030
31-web-or-mls-Hamburg Tpke-S2410-031
32-web-or-mls-Hamburg Tpke-S2410-032
33-web-or-mls-Hamburg Tpke-S2410-033
MAJOR TENANT INFORMATION Click Here to Access
| TENANT | SF OCCUPIED | LEASE END DATE |
|---|---|---|
| Medical Practice |
-
|
Jan 0000
|
Presented by
401 Hamburg Turnpike - Wayne Hills Office Ctr
Hmm, there seems to have been an error sending your message. Please try again.
Thanks! Your message was sent.

