Log In/Sign Up
Your email has been sent.
Commercial Park | Build-To-Suit | Lake View 4012 Terminal Dr 5.94 - 5.95 Acres of Commercial Land for Lease in McFarland, WI 53558



Highlights
- Lighted Intersection
- Easy Access to Hwy 51, Hwy 12 & 18 (Beltline Hwy) and Interstate 90
- High Traffic & High Visibility
LOT Available
Display Rental Rate as
| Rental Rate |
|
Lot Size | 5.94 - 5.95 AC |
| Lease Term | Negotiable |
| Rental Rate | |
| Lease Term | Negotiable |
| Lot Size | 5.94 - 5.95 AC |
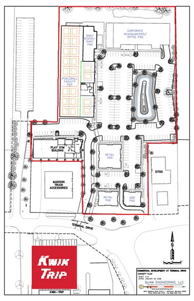
This 5.94 acre property is just south of the Beltline on Terminal Drive with four pad sites that can be leased or the Landlord will build-to-suit for the right tenants. Excellent lake views towards the back of the lot. Easy access to Hwy 51, Beltline, and the Interstate. Looking for a QSR operator with good track record for a build-to-suit restaurant across from the new Kwik Trip that is under construction. The landlord is also looking for additional uses for the other pad sites, like Sit Down Bar / Restaurant, Sports Complex (volleyball, pickleball, etc.), and Corporate Headquarters / Office. Landlord will consider any other compatable uses.
Property Overview
Two small lots on Terminal Drive, both with two old buildings that were razed. Behind (north) is 4.77 acres with mostly scrubbed trees and have been cleared. Across from a new Kwik Trip that opened December 2025. HIgh traffic and High Visibilty from Highway 51. Excellent access to Highway 51, Beltline (Hwy 12 & 18), and the Interstate.
Property Facts
Somewhat walkable
30/100
Exceptionally drivable
100/100
Minimal public transit
10/100
Fairly bikeable
50/100
1 of 5
Videos
Matterport 3D Exterior
Matterport 3D Tour
Photos
Street View
Street
Map
Presented by
Sanford Enterprises, Inc.
Commercial Park | Build-To-Suit | Lake View | 4012 Terminal Dr
Already a member? Log In
Hmm, there seems to have been an error sending your message. Please try again.
Thanks! Your message was sent.

