Your email has been sent.
All Available Spaces(3)
Display Rental Rate as
- Space
- Size
- Term
- Rental Rate
- Space Use
- Build-Out
- Available
- Listed lease rate plus proportional share of electrical cost
- Mostly Open Floor Plan Layout
- 1 Conference Room
- Fully Built-Out as Standard Office
- 6 Private Offices
- Reception Area
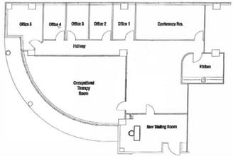
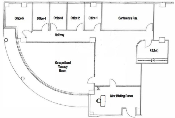
Spacious first-floor layout with strong window line, Occupational Therapy Room, Kitchen, and an efficient workspace configuration. Available July 1, 2026.
- Listed lease rate plus proportional share of electrical cost
- Mostly Open Floor Plan Layout
- 1 Conference Room
- Kitchen
- Strong natural light windowline
- Partially Built-Out as Standard Office
- 5 Private Offices
- Reception Area
- Large first-floor office layout
Suite features an open bull-pen area
- Listed lease rate plus proportional share of electrical cost
- Mostly Open Floor Plan Layout
- Reception Area
- Fully Built-Out as Standard Office
- 2 Private Offices
- Two window-lined walls
| Space | Size | Term | Rental Rate | Space Use | Build-Out | Available |
| 1st Floor, Ste 100 | 3,471 SF | Negotiable | $41.75 CAD/SF/YR $3.48 CAD/SF/MO $144,899 CAD/YR $12,075 CAD/MO | Office | Full Build-Out | 2026-07-01 |
| 1st Floor, Ste 101 | 3,426 SF | Negotiable | $41.75 CAD/SF/YR $3.48 CAD/SF/MO $143,021 CAD/YR $11,918 CAD/MO | Office | Partial Build-Out | 2026-07-01 |
| 2nd Floor, Ste 215 | 1,681 SF | Negotiable | $41.75 CAD/SF/YR $3.48 CAD/SF/MO $70,175 CAD/YR $5,848 CAD/MO | Office | Full Build-Out | Now |
1st Floor, Ste 100
| Size |
| 3,471 SF |
| Term |
| Negotiable |
| Rental Rate |
| $41.75 CAD/SF/YR $3.48 CAD/SF/MO $144,899 CAD/YR $12,075 CAD/MO |
| Space Use |
| Office |
| Build-Out |
| Full Build-Out |
| Available |
| 2026-07-01 |
1st Floor, Ste 101
| Size |
| 3,426 SF |
| Term |
| Negotiable |
| Rental Rate |
| $41.75 CAD/SF/YR $3.48 CAD/SF/MO $143,021 CAD/YR $11,918 CAD/MO |
| Space Use |
| Office |
| Build-Out |
| Partial Build-Out |
| Available |
| 2026-07-01 |
2nd Floor, Ste 215
| Size |
| 1,681 SF |
| Term |
| Negotiable |
| Rental Rate |
| $41.75 CAD/SF/YR $3.48 CAD/SF/MO $70,175 CAD/YR $5,848 CAD/MO |
| Space Use |
| Office |
| Build-Out |
| Full Build-Out |
| Available |
| Now |
1st Floor, Ste 100
| Size | 3,471 SF |
| Term | Negotiable |
| Rental Rate | $41.75 CAD/SF/YR |
| Space Use | Office |
| Build-Out | Full Build-Out |
| Available | 2026-07-01 |
- Listed lease rate plus proportional share of electrical cost
- Fully Built-Out as Standard Office
- Mostly Open Floor Plan Layout
- 6 Private Offices
- 1 Conference Room
- Reception Area
1st Floor, Ste 101
| Size | 3,426 SF |
| Term | Negotiable |
| Rental Rate | $41.75 CAD/SF/YR |
| Space Use | Office |
| Build-Out | Partial Build-Out |
| Available | 2026-07-01 |
Spacious first-floor layout with strong window line, Occupational Therapy Room, Kitchen, and an efficient workspace configuration. Available July 1, 2026.
- Listed lease rate plus proportional share of electrical cost
- Partially Built-Out as Standard Office
- Mostly Open Floor Plan Layout
- 5 Private Offices
- 1 Conference Room
- Reception Area
- Kitchen
- Large first-floor office layout
- Strong natural light windowline
2nd Floor, Ste 215
| Size | 1,681 SF |
| Term | Negotiable |
| Rental Rate | $41.75 CAD/SF/YR |
| Space Use | Office |
| Build-Out | Full Build-Out |
| Available | Now |
Suite features an open bull-pen area
- Listed lease rate plus proportional share of electrical cost
- Fully Built-Out as Standard Office
- Mostly Open Floor Plan Layout
- 2 Private Offices
- Reception Area
- Two window-lined walls
Property Overview
Couryard Atrium Renovated Lobby Private Balconies Building Signage Available Direct Freeway Access Conveiently Located Near Public Transportation
- Banking
- Bus Line
- Restaurant
- Signage
Property Facts
Presented by
4025 Camino del Rio S
Hmm, there seems to have been an error sending your message. Please try again.
Thanks! Your message was sent.










