Your email has been sent.
Sublease - Building 7 4031 Industrial Center Dr 64,800 SF of Industrial Space Available in North Las Vegas, NV 89030



Sublease Highlights
- Sublease through 12/31/2026
- Four (4) office pods totaling ±4,509 SF
- ESFR sprinkler system
- ±64,800 SF rear-loaded distribution warehouse
- 24' minimum clear height
- 277/480V, 3-phase power (to be verified)
Features
All Available Space(1)
Display Rental Rate as
- Space
- Size
- Term
- Rental Rate
- Space Use
- Build-Out
- Available
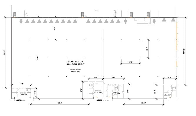
The property is available for sublease through 12/31/2026 and consists of a ±64,800 SF rear-loaded distribution warehouse featuring four office pods totaling approximately 4,509 SF. It offers a 24-foot minimum clear height, an ESFR sprinkler system, scrim insulation at the roof deck, and 277/480V, 3-phase power (to be verified). The building includes seventeen dock-high doors and three ramp-to-grade doors, and it sits on a ±5.32-acre parcel with M-2 zoning in the City of North Las Vegas.
- Sublease space available from current tenant
- 17 Loading Docks
- Includes 4,509 SF of dedicated office space
- ESFR Sprinklers
| Space | Size | Term | Rental Rate | Space Use | Build-Out | Available |
| 1st Floor - Suite 700-703 | 64,800 SF | Dec 2026 | Upon Request Upon Request Upon Request Upon Request | Industrial | Full Build-Out | Now |
1st Floor - Suite 700-703
| Size |
| 64,800 SF |
| Term |
| Dec 2026 |
| Rental Rate |
| Upon Request Upon Request Upon Request Upon Request |
| Space Use |
| Industrial |
| Build-Out |
| Full Build-Out |
| Available |
| Now |
1st Floor - Suite 700-703
| Size | 64,800 SF |
| Term | Dec 2026 |
| Rental Rate | Upon Request |
| Space Use | Industrial |
| Build-Out | Full Build-Out |
| Available | Now |
The property is available for sublease through 12/31/2026 and consists of a ±64,800 SF rear-loaded distribution warehouse featuring four office pods totaling approximately 4,509 SF. It offers a 24-foot minimum clear height, an ESFR sprinkler system, scrim insulation at the roof deck, and 277/480V, 3-phase power (to be verified). The building includes seventeen dock-high doors and three ramp-to-grade doors, and it sits on a ±5.32-acre parcel with M-2 zoning in the City of North Las Vegas.
- Sublease space available from current tenant
- Includes 4,509 SF of dedicated office space
- 17 Loading Docks
- ESFR Sprinklers
Property Overview
4031 Industrial Center Dr., Ste. 700-703 is a ±64,800 SF rear-loaded, fully sprinklered office/warehouse suite. The space includes seventeen (17) dock-high doors, three (3) ramp-to-grade doors, and 277/480V 3-phase power (to be verified). The suite features multiple office pods totaling ±4,509 SF, along with ample auto parking.
Distribution Facility Facts
Presented by
Sublease - Building 7 | 4031 Industrial Center Dr
Hmm, there seems to have been an error sending your message. Please try again.
Thanks! Your message was sent.


