Log In/Sign Up
Your email has been sent.
405-407 S Clairborne Rd
Olathe, KS 66062
Olathe Medical & Dental Center · Office Property For Lease
·
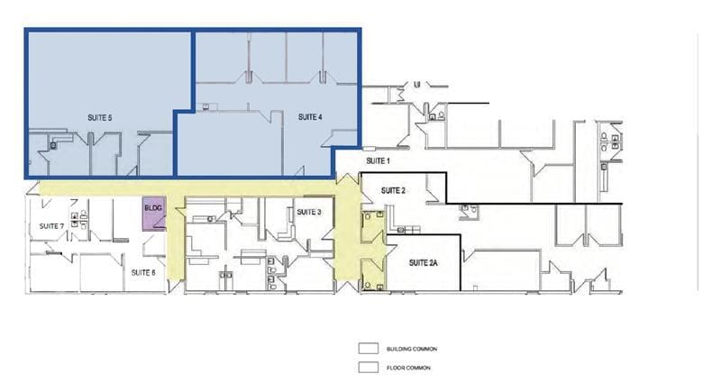
11,617 SF


Park Facts
| Total Space Available | 11,617 SF | Park Type | Office Park |
| Total Space Available | 11,617 SF |
| Park Type | Office Park |
1 of 10
Videos
Matterport 3D Exterior
Matterport 3D Tour
Photos
Street View
Street
Map
