Your email has been sent.
405 Shearer St 1.05 Acres of Commercial Land Offered at $856,506 CAD in Palmer, MA 01069



Investment Highlights
- High Traffic
- Multipurpose Zoning - Highway Business
- High Visibility
Property Facts
1 Lot Available
Lot
| Price | $856,506 CAD | Lot Size | 1.05 AC |
| Price Per AC | $815,720.22 CAD |
| Price | $856,506 CAD |
| Price Per AC | $815,720.22 CAD |
| Lot Size | 1.05 AC |
Zoned "Highway Business", this lot has a multitude of possibilities. Looking for a great place to relocate your business or have a business you would like to expand then check out this high visibility location.
Description
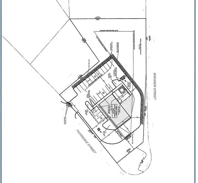
Zoned "Highway Business", this lot has a multitude of possibilities. Looking for a great place to relocate your business or have a business you would like to expand then check out this high visibility location. Piggy back on the current traffic going on and off the Pike, to the new Starbucks or Jersey Mikes. Palmer is a hot spot with a train stop coming to town your local business could thrive here. Seller had plans approved for 2,800 sf commercial building with parking but your dream might not be theirs.
Presented by
Buy Rite Home
405 Shearer St
Hmm, there seems to have been an error sending your message. Please try again.
Thanks! Your message was sent.

