Log In/Sign Up
Your email has been sent.
Executive Summary
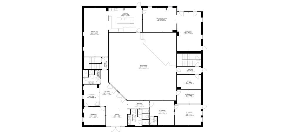
4055 N 2nd St in Rogers, Arkansas presents a unique opportunity to acquire ±12.82 acres with a
±7,650 square foot former church building in one of the region’s steadily growing corridors. Offered at
an asking price of $1,850,000, the property provides both immediate building utility and significant land
value for future redevelopment or expansion. The site is located just 4.3 miles from Interstate 49, offering
convenient regional access while remaining positioned within a well-established neighborhood setting.
The property is zoned Neighborhood High-Intensity, a district designed to support urban neighborhood
placetypes where compatible nonresidential uses can operate within walking distance of surrounding
homes. This zoning allows for a range of potential uses that serve nearby residents while supporting
neighborhood-scale commercial activity. With its combination of acreage, existing improvements, and
flexible zoning, 4055 N 2nd St offers an attractive opportunity for investors, developers, or owner-users
seeking a strategically located site in Rogers.
±7,650 square foot former church building in one of the region’s steadily growing corridors. Offered at
an asking price of $1,850,000, the property provides both immediate building utility and significant land
value for future redevelopment or expansion. The site is located just 4.3 miles from Interstate 49, offering
convenient regional access while remaining positioned within a well-established neighborhood setting.
The property is zoned Neighborhood High-Intensity, a district designed to support urban neighborhood
placetypes where compatible nonresidential uses can operate within walking distance of surrounding
homes. This zoning allows for a range of potential uses that serve nearby residents while supporting
neighborhood-scale commercial activity. With its combination of acreage, existing improvements, and
flexible zoning, 4055 N 2nd St offers an attractive opportunity for investors, developers, or owner-users
seeking a strategically located site in Rogers.
Property Facts
1 1
Not walkable
10/100
Exceptionally drivable
100/100
Not bikeable
10/100
1 of 16
Videos
Matterport 3D Exterior
Matterport 3D Tour
Photos
Street View
Street
Map
1 of 1
Presented by
4055 N 2nd St
Already a member? Log In
Hmm, there seems to have been an error sending your message. Please try again.
Thanks! Your message was sent.



