Your email has been sent.
Executive Summary
This retail space is ideally situated on Mill Street in the heart of Occoquan’s historic district, providing both charm and accessibility. The property benefits from excellent connectivity, with convenient access to major routes including Rt. 123, I-95, and Rt. 1—making it easily reachable for both local and regional customers. Its proximity to these key thoroughfares not only enhances convenience for visitors but also positions the space as a strategic location for businesses looking to attract shoppers from nearby communities and commuters passing through the area. Combined with its prime location next to one of the town’s most popular restaurants and the lively atmosphere of nearby shops, this setting offers exceptional visibility and foot traffic potential.
Property Facts
Amenities
- Signage
- Air Conditioning
Space Availability
- Space
- Size
- Space Use
- Position
- Available
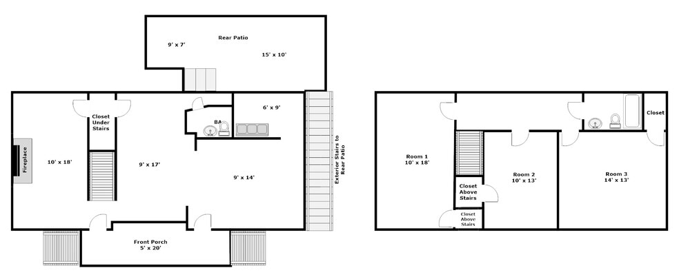
Ce bâtiment commercial de 1 500 pieds carrés, initialement construit en 1750 et inscrit au registre historique, offre un mélange unique de charme historique et de commodités modernes. Avec ses six pièces spacieuses et ses deux salles de bain, cet espace offre une grande flexibilité pour divers usages commerciaux ou boutiques (la préparation de nourriture sur place n'est pas autorisée à cet emplacement). Le bâtiment dispose d'un accueillant porche avant de 100 pieds carrés et d'un patio arrière de 210 pieds carrés—idéal pour améliorer l'expérience des clients ou exposer des marchandises. Récemment rénové, il est prêt pour une occupation immédiate! Un bail de 5 ans est disponible, ce qui représente une opportunité exceptionnelle pour les entreprises à la recherche d'un emplacement distinctif et prêt à l'emploi. Cet espace commercial est idéalement situé sur Mill Street, au cœur du quartier historique d’Occoquan, offrant à la fois charme et accessibilité. La propriété bénéficie d'une excellente connectivité, avec un accès pratique aux principales routes, notamment la Rt. 123, l’I-95 et la Rt. 1—ce qui la rend facilement accessible pour les clients locaux et régionaux. Sa proximité avec ces axes clés améliore non seulement la commodité pour les visiteurs, mais positionne également l’espace comme un emplacement stratégique pour les entreprises cherchant à attirer les acheteurs des communautés voisines et les navetteurs de passage. Combiné à son emplacement privilégié à côté de l’un des restaurants les plus populaires de la ville et à l’atmosphère animée des boutiques environnantes, cet espace offre une visibilité exceptionnelle et un fort potentiel de trafic piétonnier.
Ce bâtiment commercial de 1 500 pieds carrés, initialement construit en 1750 et inscrit au registre historique, offre un mélange unique de charme historique et de commodités modernes. Avec ses six pièces spacieuses et ses deux salles de bain, cet espace offre une grande flexibilité pour divers usages commerciaux ou boutiques (la préparation de nourriture sur place n'est pas autorisée à cet emplacement). Le bâtiment dispose d'un accueillant porche avant de 100 pieds carrés et d'un patio arrière de 210 pieds carrés—idéal pour améliorer l'expérience des clients ou exposer des marchandises. Récemment rénové, il est prêt pour une occupation immédiate! Un bail de 5 ans est disponible, ce qui représente une opportunité exceptionnelle pour les entreprises à la recherche d'un emplacement distinctif et prêt à l'emploi. Cet espace commercial est idéalement situé sur Mill Street, au cœur du quartier historique d'Occoquan, offrant à la fois charme et accessibilité. La propriété bénéficie d'une excellente connectivité, avec un accès pratique aux principales routes, notamment la Rt. 123, l'I-95 et la Rt. 1—ce qui la rend facilement accessible pour les clients locaux et régionaux. Sa proximité avec ces axes clés améliore non seulement la commodité pour les visiteurs, mais positionne également l'espace comme un emplacement stratégique pour les entreprises cherchant à attirer des acheteurs des communautés voisines et des navetteurs de passage. Combiné à son emplacement privilégié à côté de l'un des restaurants les plus populaires de la ville et à l'atmosphère animée des boutiques environnantes, cet espace offre une visibilité exceptionnelle et un fort potentiel de trafic piétonnier.
| Space | Size | Space Use | Position | Available |
| 1st Floor | 750 SF | Retail | In-Line | Now |
| 2nd Floor | 750 SF | Retail | In-Line | Now |
1st Floor
| Size |
| 750 SF |
| Space Use |
| Retail |
| Position |
| In-Line |
| Available |
| Now |
2nd Floor
| Size |
| 750 SF |
| Space Use |
| Retail |
| Position |
| In-Line |
| Available |
| Now |
1st Floor
| Size | 750 SF |
| Space Use | Retail |
| Position | In-Line |
| Available | Now |
Ce bâtiment commercial de 1 500 pieds carrés, initialement construit en 1750 et inscrit au registre historique, offre un mélange unique de charme historique et de commodités modernes. Avec ses six pièces spacieuses et ses deux salles de bain, cet espace offre une grande flexibilité pour divers usages commerciaux ou boutiques (la préparation de nourriture sur place n'est pas autorisée à cet emplacement). Le bâtiment dispose d'un accueillant porche avant de 100 pieds carrés et d'un patio arrière de 210 pieds carrés—idéal pour améliorer l'expérience des clients ou exposer des marchandises. Récemment rénové, il est prêt pour une occupation immédiate! Un bail de 5 ans est disponible, ce qui représente une opportunité exceptionnelle pour les entreprises à la recherche d'un emplacement distinctif et prêt à l'emploi. Cet espace commercial est idéalement situé sur Mill Street, au cœur du quartier historique d’Occoquan, offrant à la fois charme et accessibilité. La propriété bénéficie d'une excellente connectivité, avec un accès pratique aux principales routes, notamment la Rt. 123, l’I-95 et la Rt. 1—ce qui la rend facilement accessible pour les clients locaux et régionaux. Sa proximité avec ces axes clés améliore non seulement la commodité pour les visiteurs, mais positionne également l’espace comme un emplacement stratégique pour les entreprises cherchant à attirer les acheteurs des communautés voisines et les navetteurs de passage. Combiné à son emplacement privilégié à côté de l’un des restaurants les plus populaires de la ville et à l’atmosphère animée des boutiques environnantes, cet espace offre une visibilité exceptionnelle et un fort potentiel de trafic piétonnier.
2nd Floor
| Size | 750 SF |
| Space Use | Retail |
| Position | In-Line |
| Available | Now |
Ce bâtiment commercial de 1 500 pieds carrés, initialement construit en 1750 et inscrit au registre historique, offre un mélange unique de charme historique et de commodités modernes. Avec ses six pièces spacieuses et ses deux salles de bain, cet espace offre une grande flexibilité pour divers usages commerciaux ou boutiques (la préparation de nourriture sur place n'est pas autorisée à cet emplacement). Le bâtiment dispose d'un accueillant porche avant de 100 pieds carrés et d'un patio arrière de 210 pieds carrés—idéal pour améliorer l'expérience des clients ou exposer des marchandises. Récemment rénové, il est prêt pour une occupation immédiate! Un bail de 5 ans est disponible, ce qui représente une opportunité exceptionnelle pour les entreprises à la recherche d'un emplacement distinctif et prêt à l'emploi. Cet espace commercial est idéalement situé sur Mill Street, au cœur du quartier historique d'Occoquan, offrant à la fois charme et accessibilité. La propriété bénéficie d'une excellente connectivité, avec un accès pratique aux principales routes, notamment la Rt. 123, l'I-95 et la Rt. 1—ce qui la rend facilement accessible pour les clients locaux et régionaux. Sa proximité avec ces axes clés améliore non seulement la commodité pour les visiteurs, mais positionne également l'espace comme un emplacement stratégique pour les entreprises cherchant à attirer des acheteurs des communautés voisines et des navetteurs de passage. Combiné à son emplacement privilégié à côté de l'un des restaurants les plus populaires de la ville et à l'atmosphère animée des boutiques environnantes, cet espace offre une visibilité exceptionnelle et un fort potentiel de trafic piétonnier.
Nearby Major Retailers
Property Taxes
| Parcel Number | 8393-64-3888 | Improvements Assessment | $315,855 CAD |
| Land Assessment | $76,430 CAD | Total Assessment | $392,285 CAD |
Property Taxes
Presented by
406 Mill St
Hmm, there seems to have been an error sending your message. Please try again.
Thanks! Your message was sent.








