Your email has been sent.
Highlights
- Prime West 14th Street frontage in the heart of Manhattan’s highly sought-after Meatpacking/Chelsea corridor.
- Excellent pedestrian traffic driven by proximity to Hudson River Park, the High Line, and major transit hubs.
- Classic pre-war construction (1929) offering character and strong street presence.
- High-visibility location surrounded by nationally recognized retailers, restaurants, and lifestyle brands.
- Versatile commercial building suitable for retail, showroom, or creative office users.
- Located in a Walker’s and Transit Paradise, ensuring seamless accessibility for customers and employees alike.
Display Rental Rate as
- Space
- Size
- Term
- Rental Rate
- Rent Type
| Space | Size | Term | Rental Rate | Rent Type | ||
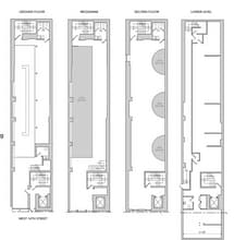
| Lower Level | 2,936 SF | 5-15 Years | Upon Request Upon Request Upon Request Upon Request | TBD | ||
| Ground | 2,873 SF | 5-15 Years | Upon Request Upon Request Upon Request Upon Request | TBD | ||
| 2nd Floor | 2,629 SF | 5-15 Years | Upon Request Upon Request Upon Request Upon Request | TBD | ||
| Mezzanine | 1,988 SF | 5-15 Years | Upon Request Upon Request Upon Request Upon Request | TBD |
Lower Level
• 10,426 SF former bar/restaurant • Potential to add the Third and Fourth Floors for a full-building flagship • Ground Floor has double-height ceiling • Lower Level with gas connection, venting infrastructure and storage/prep areas • Previous tenant had a liquor license and C of O for 299 people • Restaurant, retail, and all other uses considered
- Fully Built-Out as Standard Retail Space
- Located in-line with other retail
- Space is in Excellent Condition
Ground
• 10,426 SF former bar/restaurant • Potential to add the Third and Fourth Floors for a full-building flagship • Ground Floor has double-height ceiling • Lower Level with gas connection, venting infrastructure and storage/prep areas • Previous tenant had a liquor license and C of O for 299 people • Restaurant, retail, and all other uses considered
- Fully Built-Out as Standard Retail Space
- Located in-line with other retail
- Space is in Excellent Condition
2nd Floor
• 10,426 SF former bar/restaurant • Potential to add the Third and Fourth Floors for a full-building flagship • Ground Floor has double-height ceiling • Lower Level with gas connection, venting infrastructure and storage/prep areas • Previous tenant had a liquor license and C of O for 299 people • Restaurant, retail, and all other uses considered
- Fully Built-Out as Standard Retail Space
- Located in-line with other retail
- Space is in Excellent Condition
Mezzanine
• 10,426 SF former bar/restaurant • Potential to add the Third and Fourth Floors for a full-building flagship • Ground Floor has double-height ceiling • Lower Level with gas connection, venting infrastructure and storage/prep areas • Previous tenant had a liquor license and C of O for 299 people • Restaurant, retail, and all other uses considered
- Fully Built-Out as Standard Retail Space
- Located in-line with other retail
- Space is in Excellent Condition
- Space
- Size
- Term
- Rental Rate
- Rent Type
| Space | Size | Term | Rental Rate | Rent Type | ||
| Lower Level | 2,936 SF | 5-15 Years | Upon Request Upon Request Upon Request Upon Request | TBD | ||
| Ground | 2,873 SF | 5-15 Years | Upon Request Upon Request Upon Request Upon Request | TBD | ||
| 2nd Floor | 2,629 SF | 5-15 Years | Upon Request Upon Request Upon Request Upon Request | TBD | ||
| Mezzanine | 1,988 SF | 5-15 Years | Upon Request Upon Request Upon Request Upon Request | TBD | ||
| 3rd Floor | 3,500 SF | Negotiable | Upon Request Upon Request Upon Request Upon Request | TBD | ||
| 4th Floor | 3,500 SF | Negotiable | Upon Request Upon Request Upon Request Upon Request | TBD |
Lower Level
• 10,426 SF former bar/restaurant • Potential to add the Third and Fourth Floors for a full-building flagship • Ground Floor has double-height ceiling • Lower Level with gas connection, venting infrastructure and storage/prep areas • Previous tenant had a liquor license and C of O for 299 people • Restaurant, retail, and all other uses considered
- Fully Built-Out as Standard Retail Space
- Located in-line with other retail
- Space is in Excellent Condition
Ground
• 10,426 SF former bar/restaurant • Potential to add the Third and Fourth Floors for a full-building flagship • Ground Floor has double-height ceiling • Lower Level with gas connection, venting infrastructure and storage/prep areas • Previous tenant had a liquor license and C of O for 299 people • Restaurant, retail, and all other uses considered
- Fully Built-Out as Standard Retail Space
- Located in-line with other retail
- Space is in Excellent Condition
2nd Floor
• 10,426 SF former bar/restaurant • Potential to add the Third and Fourth Floors for a full-building flagship • Ground Floor has double-height ceiling • Lower Level with gas connection, venting infrastructure and storage/prep areas • Previous tenant had a liquor license and C of O for 299 people • Restaurant, retail, and all other uses considered
- Fully Built-Out as Standard Retail Space
- Located in-line with other retail
- Space is in Excellent Condition
Mezzanine
• 10,426 SF former bar/restaurant • Potential to add the Third and Fourth Floors for a full-building flagship • Ground Floor has double-height ceiling • Lower Level with gas connection, venting infrastructure and storage/prep areas • Previous tenant had a liquor license and C of O for 299 people • Restaurant, retail, and all other uses considered
- Fully Built-Out as Standard Retail Space
- Located in-line with other retail
- Space is in Excellent Condition
3rd Floor
Entire 3rd and 4th Floors can be leased individually or together
- Fully Built-Out as Standard Office
- Mostly Open Floor Plan Layout
- Fits 9 - 28 People
- Space is in Excellent Condition
4th Floor
Entire 3rd and 4th Floors can be leased individually or together
- Fully Built-Out as Standard Office
- Mostly Open Floor Plan Layout
- Fits 9 - 28 People
- Space is in Excellent Condition
Rent Types
The rent amount and type that the tenant (lessee) will be responsible to pay to the landlord (lessor) throughout the lease term is negotiated prior to both parties signing a lease agreement. The rent type will vary depending upon the services provided. For example, triple net rents are typically lower than full service rents due to additional expenses the tenant is required to pay in addition to the base rent. Contact the listing broker for a full understanding of any associated costs or additional expenses for each rent type.
1. Full Service: A rental rate that includes normal building standard services as provided by the landlord within a base year rental.
2. Double Net (NN): Tenant pays for only two of the building expenses; the landlord and tenant determine the specific expenses prior to signing the lease agreement.
3. Triple Net (NNN): A lease in which the tenant is responsible for all expenses associated with their proportional share of occupancy of the building.
4. Modified Gross: Modified Gross is a general type of lease rate where typically the tenant will be responsible for their proportional share of one or more of the expenses. The landlord will pay the remaining expenses. See the below list of common Modified Gross rental rate structures: 4. Plus All Utilities: A type of Modified Gross Lease where the tenant is responsible for their proportional share of utilities in addition to the rent. 4. Plus Cleaning: A type of Modified Gross Lease where the tenant is responsible for their proportional share of cleaning in addition to the rent. 4. Plus Electric: A type of Modified Gross Lease where the tenant is responsible for their proportional share of the electrical cost in addition to the rent. 4. Plus Electric & Cleaning: A type of Modified Gross Lease where the tenant is responsible for their proportional share of the electrical and cleaning cost in addition to the rent. 4. Plus Utilities and Char: A type of Modified Gross Lease where the tenant is responsible for their proportional share of the utilities and cleaning cost in addition to the rent. 4. Industrial Gross: A type of Modified Gross lease where the tenant pays one or more of the expenses in addition to the rent. The landlord and tenant determine these prior to signing the lease agreement.
5. Tenant Electric: The landlord pays for all services and the tenant is responsible for their usage of lights and electrical outlets in the space they occupy.
6. Negotiable or Upon Request: Used when the leasing contact does not provide the rent or service type.
7. TBD: To be determined; used for buildings for which no rent or service type is known, commonly utilized when the buildings are not yet built.
Property Facts
| Total Space Available | 17,426 SF | Gross Leasable Area | 19,825 SF |
| Property Type | Retail | Year Built | 1929 |
| Property Subtype | Storefront Retail/Office |
| Total Space Available | 17,426 SF |
| Property Type | Retail |
| Property Subtype | Storefront Retail/Office |
| Gross Leasable Area | 19,825 SF |
| Year Built | 1929 |
About the Property
Perfectly positioned at the crossroads of Chelsea and the Meatpacking District, 407 West 14th Street offers an exceptional opportunity to own or occupy space in one of Manhattan’s most dynamic neighborhoods. Surrounded by iconic architecture, world-class dining, and premier shopping, this address places you just steps from the High Line, Hudson River Park, and vibrant West Chelsea galleries. The property blends classic New York character with modern urban energy, making it ideal for residential, commercial, or mixed-use potential (as applicable). Large windows invite abundant natural light, while the building’s presence on West 14th Street ensures strong visibility and accessibility. With convenient proximity to multiple subway lines, major avenues, and downtown destinations, this location delivers unmatched connectivity and lifestyle appeal.
Nearby Major Retailers
Presented by
407 W 14th St
Hmm, there seems to have been an error sending your message. Please try again.
Thanks! Your message was sent.
















