Your email has been sent.
Empire Place - 41st Street Retail Center 4101 W 41st St 1,618 SF of 4-Star Retail Space Available in Sioux Falls, SD 57106



Highlights
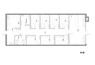
- Suite 4019: previous waxing center. Floor plan includes lobby, 7 rooms ideal for personal care services, 1 office, restroom, and a utility room
- Built in 2020 with the newest buildings being added in 2023
- Nearby retailers include Target, Kohl's, Bed, Bath & Beyond, TJ Maxx, 7 Brew Coffee, several restaurants and so much more
- Adjacent to The Empire Mall, South Dakota’s most visited (8.6M annual visits) and profitable shopping mall
- West of the 41st & Louise intersection with 58,900 vehicles per day - the most trafficked intersection in South Dakota
- Other nearby retailers include Target, Kohl’s, Bed, Bath & Beyond, TJ Maxx, several restaurants and much more
Space Availability (1)
Display Rental Rate as
- Space
- Size
- Term
- Rental Rate
- Rent Type
| Space | Size | Term | Rental Rate | Rent Type | ||
| 1st Floor, Ste 4019 | 1,618 SF | Negotiable | $35.62 CAD/SF/YR $2.97 CAD/SF/MO $57,633 CAD/YR $4,803 CAD/MO | Triple Net (NNN) |
1st Floor, Ste 4019
Floor plan includes lobby, 7 rooms ideal for personal care services, 1 office, restroom, and a utility room
- Lease rate does not include utilities, property expenses or building services
- Located in-line with other retail
- Space is in Excellent Condition
Rent Types
The rent amount and type that the tenant (lessee) will be responsible to pay to the landlord (lessor) throughout the lease term is negotiated prior to both parties signing a lease agreement. The rent type will vary depending upon the services provided. For example, triple net rents are typically lower than full service rents due to additional expenses the tenant is required to pay in addition to the base rent. Contact the listing broker for a full understanding of any associated costs or additional expenses for each rent type.
1. Full Service: A rental rate that includes normal building standard services as provided by the landlord within a base year rental.
2. Double Net (NN): Tenant pays for only two of the building expenses; the landlord and tenant determine the specific expenses prior to signing the lease agreement.
3. Triple Net (NNN): A lease in which the tenant is responsible for all expenses associated with their proportional share of occupancy of the building.
4. Modified Gross: Modified Gross is a general type of lease rate where typically the tenant will be responsible for their proportional share of one or more of the expenses. The landlord will pay the remaining expenses. See the below list of common Modified Gross rental rate structures: 4. Plus All Utilities: A type of Modified Gross Lease where the tenant is responsible for their proportional share of utilities in addition to the rent. 4. Plus Cleaning: A type of Modified Gross Lease where the tenant is responsible for their proportional share of cleaning in addition to the rent. 4. Plus Electric: A type of Modified Gross Lease where the tenant is responsible for their proportional share of the electrical cost in addition to the rent. 4. Plus Electric & Cleaning: A type of Modified Gross Lease where the tenant is responsible for their proportional share of the electrical and cleaning cost in addition to the rent. 4. Plus Utilities and Char: A type of Modified Gross Lease where the tenant is responsible for their proportional share of the utilities and cleaning cost in addition to the rent. 4. Industrial Gross: A type of Modified Gross lease where the tenant pays one or more of the expenses in addition to the rent. The landlord and tenant determine these prior to signing the lease agreement.
5. Tenant Electric: The landlord pays for all services and the tenant is responsible for their usage of lights and electrical outlets in the space they occupy.
6. Negotiable or Upon Request: Used when the leasing contact does not provide the rent or service type.
7. TBD: To be determined; used for buildings for which no rent or service type is known, commonly utilized when the buildings are not yet built.
Select Tenants at Empire Place - 41st Street Retail Center
- Tenant
- Description
- US Locations
- Reach
- Buff City Soap
- Retailer
- -
- -
- Chase Bank
- Bank
- 7,774
- National
- Chick-fil-A
- Accommodation and Food Services
- -
- -
- Chipotle
- Fast-food
- 5,112
- International
- Crumbl Cookies
- Accommodation and Food Services
- -
- -
- The Good Feet Store
- Other Retail
- 416
- International
| Tenant | Description | US Locations | Reach |
| Buff City Soap | Retailer | - | - |
| Chase Bank | Bank | 7,774 | National |
| Chick-fil-A | Accommodation and Food Services | - | - |
| Chipotle | Fast-food | 5,112 | International |
| Crumbl Cookies | Accommodation and Food Services | - | - |
| The Good Feet Store | Other Retail | 416 | International |
Property Facts
| Total Space Available | 1,618 SF | Gross Leasable Area | 47,894 SF |
| Property Type | Retail | Year Built | 2021 |
| Property Subtype | Storefront |
| Total Space Available | 1,618 SF |
| Property Type | Retail |
| Property Subtype | Storefront |
| Gross Leasable Area | 47,894 SF |
| Year Built | 2021 |
About the Property
The Empire Place development broke ground in 2020 to build upon the high success and momentum of the Empire Mall, South Dakota’s most visited (8.6M annual visits) and profitable shopping mall. Its positioning off I-29, near the intersection of Louise Avenue and W. 41st Street, boasts the highest traffic count(s) in all of South Dakota. With its proximity to the Interstate, travelers from within or outside of the trade area can easily access, Empire Place. Development co-tenants include Chipotle Mexican Grill, Chick-fil-A, Chase Bank, Face Foundrie, Smoothie King, drybar, Nautical Bowls, Pizzashop, Hallmark, Flyboy Donuts, Rocket Fizz, Snooze Mattress, Taichi Bubble Tea, Glamour Nails, The Good Feet Store, Buff City Soap, and Crumbl Cookies.
- Corner Lot
Nearby Major Retailers
Presented by
Empire Place - 41st Street Retail Center | 4101 W 41st St
Hmm, there seems to have been an error sending your message. Please try again.
Thanks! Your message was sent.



