Your email has been sent.
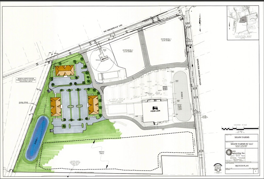
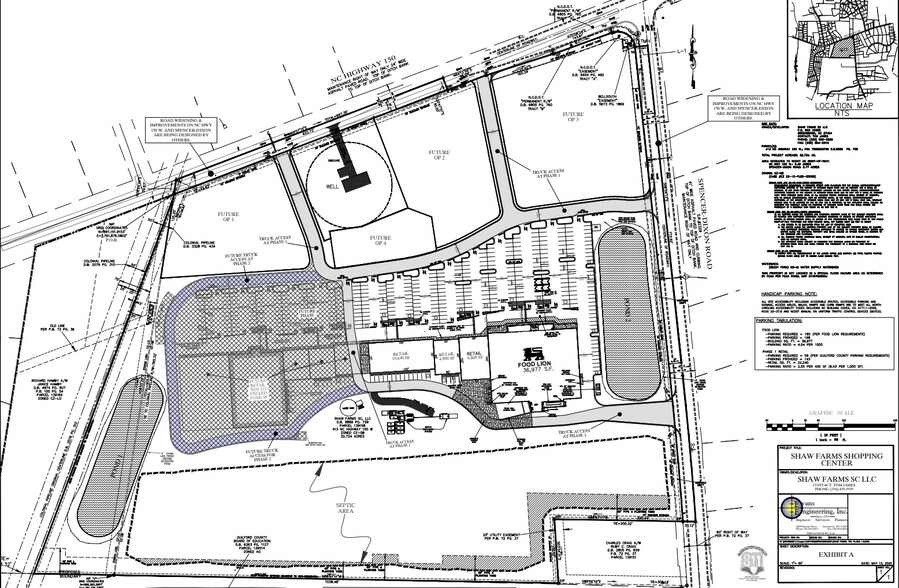
Food Lion Anchored Retail Hwy 150 Greensboro 413 NC Highway 150 W 1,600 - 10,640 SF of Retail Space Available in Greensboro, NC 27455



Highlights
- 1,600–10,640 SF divisible retail space in new Shaw Farms center
- Strong projected traffic counts (~28,500 VPD) on NC Highway 150
- Area includes 17,500 existing homes; 2,000 new homes planned nearby
- Anchored by Food Lion in high-growth Northern Guilford County trade area
- Borders Browns Summit & Summerfield residential communities
- Anticipated Fall 2026 delivery with flexible lease terms on NNN basis
Space Availability (1)
Display Rental Rate as
- Space
- Size
- Term
- Rental Rate
- Rent Type
| Space | Size | Term | Rental Rate | Rent Type | ||
| 1st Floor | 1,600-10,640 SF | Negotiable | Upon Request Upon Request Upon Request Upon Request | Triple Net (NNN) |
1st Floor
Contact broker directly for rates and terms!
- Lease rate does not include utilities, property expenses or building services
Rent Types
The rent amount and type that the tenant (lessee) will be responsible to pay to the landlord (lessor) throughout the lease term is negotiated prior to both parties signing a lease agreement. The rent type will vary depending upon the services provided. For example, triple net rents are typically lower than full service rents due to additional expenses the tenant is required to pay in addition to the base rent. Contact the listing broker for a full understanding of any associated costs or additional expenses for each rent type.
1. Full Service: A rental rate that includes normal building standard services as provided by the landlord within a base year rental.
2. Double Net (NN): Tenant pays for only two of the building expenses; the landlord and tenant determine the specific expenses prior to signing the lease agreement.
3. Triple Net (NNN): A lease in which the tenant is responsible for all expenses associated with their proportional share of occupancy of the building.
4. Modified Gross: Modified Gross is a general type of lease rate where typically the tenant will be responsible for their proportional share of one or more of the expenses. The landlord will pay the remaining expenses. See the below list of common Modified Gross rental rate structures: 4. Plus All Utilities: A type of Modified Gross Lease where the tenant is responsible for their proportional share of utilities in addition to the rent. 4. Plus Cleaning: A type of Modified Gross Lease where the tenant is responsible for their proportional share of cleaning in addition to the rent. 4. Plus Electric: A type of Modified Gross Lease where the tenant is responsible for their proportional share of the electrical cost in addition to the rent. 4. Plus Electric & Cleaning: A type of Modified Gross Lease where the tenant is responsible for their proportional share of the electrical and cleaning cost in addition to the rent. 4. Plus Utilities and Char: A type of Modified Gross Lease where the tenant is responsible for their proportional share of the utilities and cleaning cost in addition to the rent. 4. Industrial Gross: A type of Modified Gross lease where the tenant pays one or more of the expenses in addition to the rent. The landlord and tenant determine these prior to signing the lease agreement.
5. Tenant Electric: The landlord pays for all services and the tenant is responsible for their usage of lights and electrical outlets in the space they occupy.
6. Negotiable or Upon Request: Used when the leasing contact does not provide the rent or service type.
7. TBD: To be determined; used for buildings for which no rent or service type is known, commonly utilized when the buildings are not yet built.
Select Tenants at Food Lion Anchored Retail Hwy 150 Greensboro
- Tenant
- Description
- US Locations
- Reach
- Food Lion
- Services
- -
- -
| Tenant | Description | US Locations | Reach |
| Food Lion | Services | - | - |
Property Facts
| Total Space Available | 10,640 SF | Gross Leasable Area | 59,217 SF |
| Min. Divisible | 1,600 SF | Year Built | 2027 |
| Property Type | Retail | Construction Status | Under Construction |
| Property Subtype | Storefront Retail/Office |
| Total Space Available | 10,640 SF |
| Min. Divisible | 1,600 SF |
| Property Type | Retail |
| Property Subtype | Storefront Retail/Office |
| Gross Leasable Area | 59,217 SF |
| Year Built | 2027 |
| Construction Status | Under Construction |
About the Property
Retail space for lease at 413 NC Highway 150 W in Greensboro, NC, situated in the new Shaw Farms Shopping Center, anchored by Food Lion and positioned within one of Northern Guilford County’s fastest-growing retail corridors. This emerging retail destination offers 1,600 to 10,640 square feet of divisible retail space, ideal for grocery support uses, restaurants, service users, and boutique retailers seeking high visibility and strong market fundamentals. Shaw Farms is a ±120,000 square foot, Food Lion-anchored shopping center strategically located at the high-growth southwest corner of NC Highway 150 and Spencer-Dixon Road. The project is designed to serve the expanding Browns Summit and Summerfield residential trade area, which includes approximately 17,500 existing homes and 2,000 additional planned homes, establishing strong demand for daily needs retail and services. Retailers leasing space here benefit from projected traffic counts of around 28,500 vehicles per day, strong demographic profiles, and limited new grocery-anchored competition along this segment of Hwy 150. The center’s planned fall 2026 delivery and flexible NNN lease structure provide a tailored opportunity for users looking to enter or expand in a dynamic suburban retail market. With its prime corner location, essential grocery anchor, strong residential base, and proximity to major local thoroughfares, this property presents a compelling opportunity for retail, service, medical, and office users seeking to capitalize on Greensboro’s growing consumer demand along Highway 150.
Presented by
Food Lion Anchored Retail Hwy 150 Greensboro | 413 NC Highway 150 W
Hmm, there seems to have been an error sending your message. Please try again.
Thanks! Your message was sent.



