Your email has been sent.
HIGHLIGHTS
- Soaring ceilings, large windows & exposed brick/beam character
- 24/7 secure card access + 2nd Level Skyway access
- Complimentary building conference room access
- Recent renovations including common area improvements
- High-speed Wi-Fi available for only ~$25/month
- Full-time local Property Manager on-site frequently
ALL AVAILABLE SPACES(7)
Display Rental Rate as
- SPACE
- SIZE
- TERM
- RENTAL RATE
- SPACE USE
- CONDITION
- AVAILABLE
~$2,065/mo. 1,145 USF. 1,416 RSF.
- Listed rate may not include certain utilities, building services and property expenses
- Rate includes utilities, building services and property expenses
- Rate includes utilities, building services and property expenses
- Listed rate may not include certain utilities, building services and property expenses
- Rate includes utilities, building services and property expenses
- Rate includes utilities, building services and property expenses
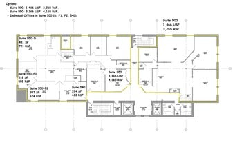
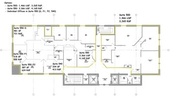
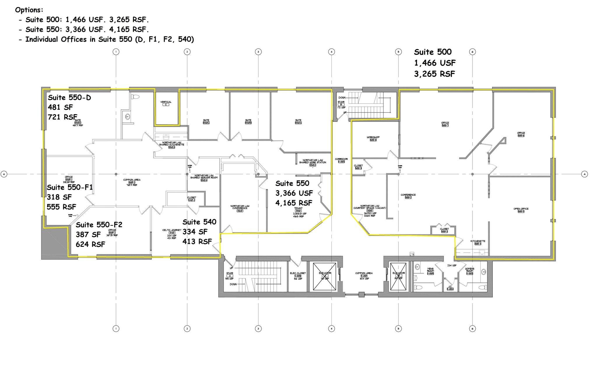
- Partitioned Offices
- Space is in Excellent Condition
- Central Air and Heating
- Corner Space
- Natural Light
- Mostly Open Floor Plan Layout
- Conference Rooms
- Can be combined with additional space(s) for up to 7,430 SF of adjacent space
- Kitchen
- High Ceilings
Individual offices in 550 include: D- 721 SF F1- 555 SF F2- 624 SF 540
- Rate includes utilities, building services and property expenses
- 8 Private Offices
- Fully Built-Out as Standard Office
- Can be combined with additional space(s) for up to 7,430 SF of adjacent space
| Space | Size | Term | Rental Rate | Space Use | Condition | Available |
| 2nd Floor, Ste 240 | 1,416 SF | Negotiable | $24.43 CAD/SF/YR $2.04 CAD/SF/MO $34,591 CAD/YR $2,883 CAD/MO | Office | - | Now |
| 2nd Floor, Ste 250-2 | 712 SF | Negotiable | $27.92 CAD/SF/YR $2.33 CAD/SF/MO $19,878 CAD/YR $1,656 CAD/MO | Office | - | Now |
| 2nd Floor, Ste 250-3 | 178 SF | Negotiable | $27.92 CAD/SF/YR $2.33 CAD/SF/MO $4,969 CAD/YR $414.12 CAD/MO | Office | - | Now |
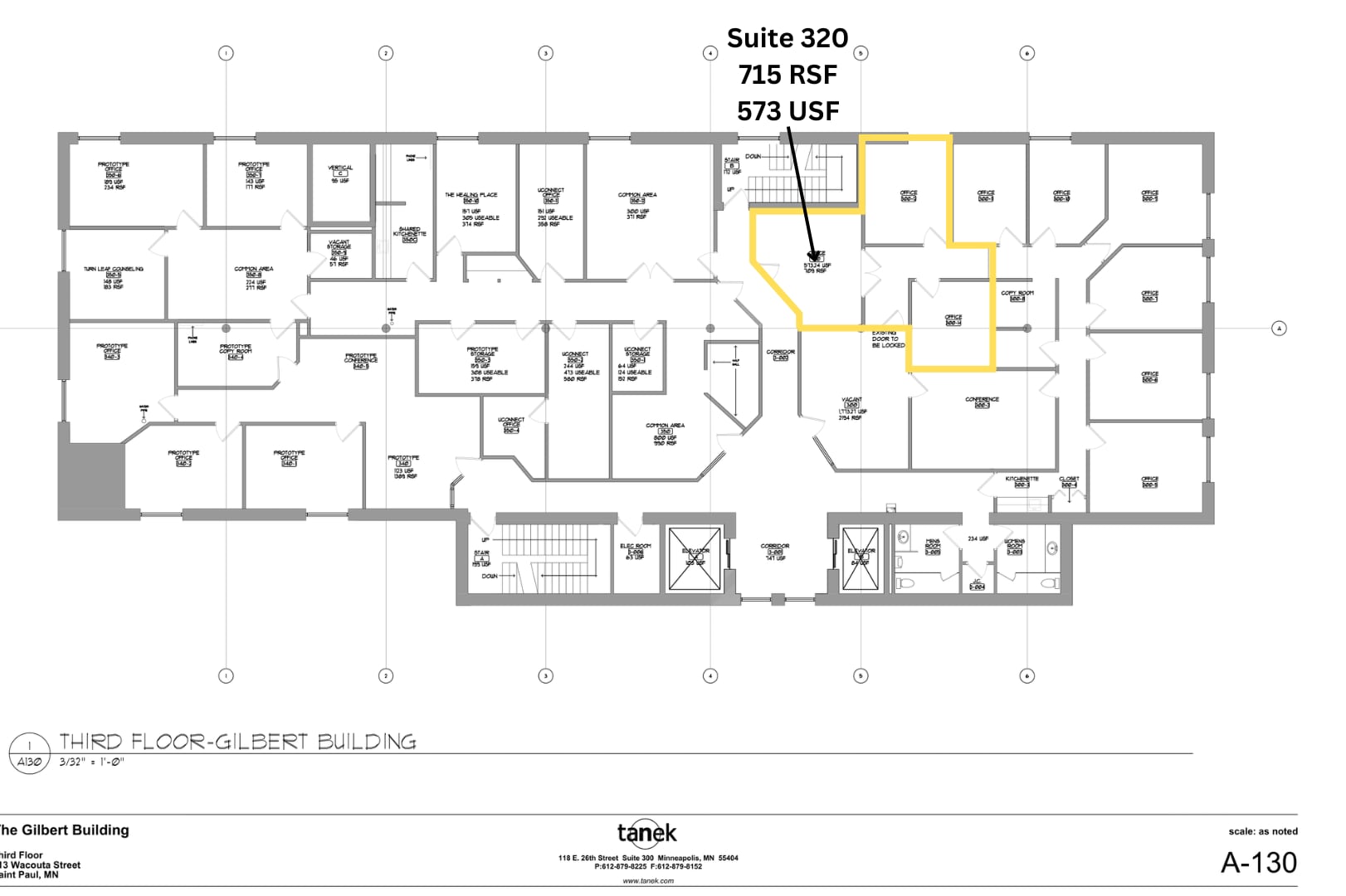
| 3rd Floor, Ste 320 | 715 SF | Negotiable | $24.43 CAD/SF/YR $2.04 CAD/SF/MO $17,466 CAD/YR $1,456 CAD/MO | Office | - | Now |
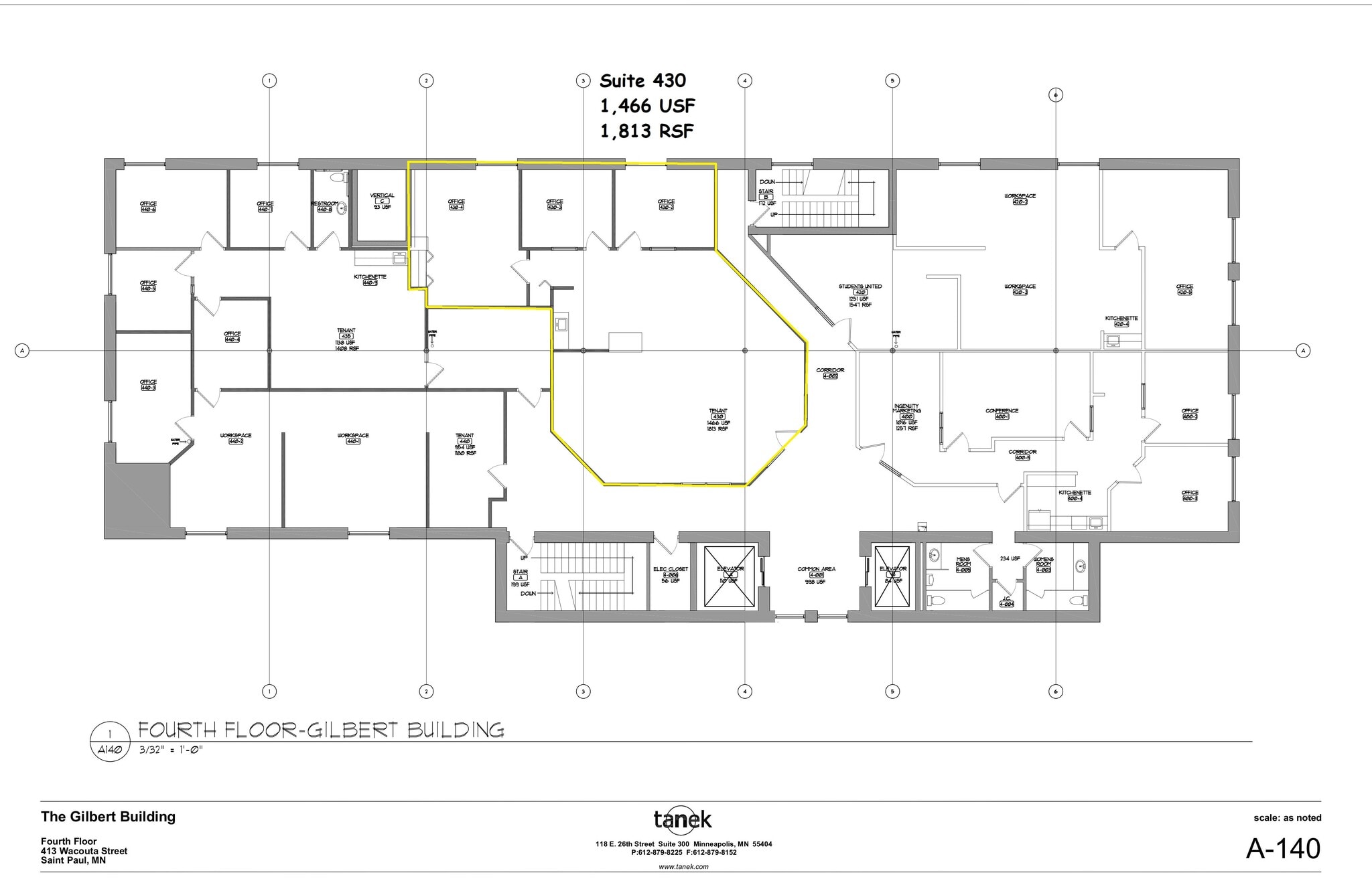
| 4th Floor, Ste 430 | 1,813 SF | Negotiable | $24.43 CAD/SF/YR $2.04 CAD/SF/MO $44,289 CAD/YR $3,691 CAD/MO | Office | - | Now |
| 5th Floor, Ste 500 | 3,265 SF | Negotiable | $24.43 CAD/SF/YR $2.04 CAD/SF/MO $79,759 CAD/YR $6,647 CAD/MO | Office | - | Now |
| 5th Floor, Ste 550 | 4,165 SF | Negotiable | $24.43 CAD/SF/YR $2.04 CAD/SF/MO $101,745 CAD/YR $8,479 CAD/MO | Office | Full Build-Out | Now |
2nd Floor, Ste 240
| Size |
| 1,416 SF |
| Term |
| Negotiable |
| Rental Rate |
| $24.43 CAD/SF/YR $2.04 CAD/SF/MO $34,591 CAD/YR $2,883 CAD/MO |
| Space Use |
| Office |
| Condition |
| - |
| Available |
| Now |
2nd Floor, Ste 250-2
| Size |
| 712 SF |
| Term |
| Negotiable |
| Rental Rate |
| $27.92 CAD/SF/YR $2.33 CAD/SF/MO $19,878 CAD/YR $1,656 CAD/MO |
| Space Use |
| Office |
| Condition |
| - |
| Available |
| Now |
2nd Floor, Ste 250-3
| Size |
| 178 SF |
| Term |
| Negotiable |
| Rental Rate |
| $27.92 CAD/SF/YR $2.33 CAD/SF/MO $4,969 CAD/YR $414.12 CAD/MO |
| Space Use |
| Office |
| Condition |
| - |
| Available |
| Now |
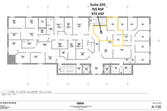
3rd Floor, Ste 320
| Size |
| 715 SF |
| Term |
| Negotiable |
| Rental Rate |
| $24.43 CAD/SF/YR $2.04 CAD/SF/MO $17,466 CAD/YR $1,456 CAD/MO |
| Space Use |
| Office |
| Condition |
| - |
| Available |
| Now |
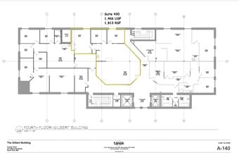
4th Floor, Ste 430
| Size |
| 1,813 SF |
| Term |
| Negotiable |
| Rental Rate |
| $24.43 CAD/SF/YR $2.04 CAD/SF/MO $44,289 CAD/YR $3,691 CAD/MO |
| Space Use |
| Office |
| Condition |
| - |
| Available |
| Now |
5th Floor, Ste 500
| Size |
| 3,265 SF |
| Term |
| Negotiable |
| Rental Rate |
| $24.43 CAD/SF/YR $2.04 CAD/SF/MO $79,759 CAD/YR $6,647 CAD/MO |
| Space Use |
| Office |
| Condition |
| - |
| Available |
| Now |
5th Floor, Ste 550
| Size |
| 4,165 SF |
| Term |
| Negotiable |
| Rental Rate |
| $24.43 CAD/SF/YR $2.04 CAD/SF/MO $101,745 CAD/YR $8,479 CAD/MO |
| Space Use |
| Office |
| Condition |
| Full Build-Out |
| Available |
| Now |
2nd Floor, Ste 240
| Size | 1,416 SF |
| Term | Negotiable |
| Rental Rate | $24.43 CAD/SF/YR |
| Space Use | Office |
| Condition | - |
| Available | Now |
~$2,065/mo. 1,145 USF. 1,416 RSF.
- Listed rate may not include certain utilities, building services and property expenses
2nd Floor, Ste 250-2
| Size | 712 SF |
| Term | Negotiable |
| Rental Rate | $27.92 CAD/SF/YR |
| Space Use | Office |
| Condition | - |
| Available | Now |
- Rate includes utilities, building services and property expenses
2nd Floor, Ste 250-3
| Size | 178 SF |
| Term | Negotiable |
| Rental Rate | $27.92 CAD/SF/YR |
| Space Use | Office |
| Condition | - |
| Available | Now |
- Rate includes utilities, building services and property expenses
3rd Floor, Ste 320
| Size | 715 SF |
| Term | Negotiable |
| Rental Rate | $24.43 CAD/SF/YR |
| Space Use | Office |
| Condition | - |
| Available | Now |
- Listed rate may not include certain utilities, building services and property expenses
4th Floor, Ste 430
| Size | 1,813 SF |
| Term | Negotiable |
| Rental Rate | $24.43 CAD/SF/YR |
| Space Use | Office |
| Condition | - |
| Available | Now |
- Rate includes utilities, building services and property expenses
5th Floor, Ste 500
| Size | 3,265 SF |
| Term | Negotiable |
| Rental Rate | $24.43 CAD/SF/YR |
| Space Use | Office |
| Condition | - |
| Available | Now |
- Rate includes utilities, building services and property expenses
- Mostly Open Floor Plan Layout
- Partitioned Offices
- Conference Rooms
- Space is in Excellent Condition
- Can be combined with additional space(s) for up to 7,430 SF of adjacent space
- Central Air and Heating
- Kitchen
- Corner Space
- High Ceilings
- Natural Light
5th Floor, Ste 550
| Size | 4,165 SF |
| Term | Negotiable |
| Rental Rate | $24.43 CAD/SF/YR |
| Space Use | Office |
| Condition | Full Build-Out |
| Available | Now |
Individual offices in 550 include: D- 721 SF F1- 555 SF F2- 624 SF 540
- Rate includes utilities, building services and property expenses
- Fully Built-Out as Standard Office
- 8 Private Offices
- Can be combined with additional space(s) for up to 7,430 SF of adjacent space
PROPERTY OVERVIEW
Historic Office Suites in the Heart of Lowertown – The Gilbert Building Flexible Spaces | Competitive Full-Service Rates | Unique Charm Don’t miss your chance to lease office space in one of St. Paul’s iconic properties — the Gilbert Building. With very competitive lease rates and limited availability remaining, this is a rare opportunity to secure space in a beautifully restored Historic Brick & Timber building with modern upgrades throughout. Available Spaces: From individual offices starting at ~200 SF to large suites and full-floor availability (entire 5th floor ~10,463 sf). All leases are simple Full-Service/Gross, with landlord covering CAM, operating expenses, taxes, and utilities — offering unbeatable value and ease. Located in the vibrant Lowertown district, steps from dining, coffee shops, parks, and transit, the Gilbert Building offers an inspiring and convenient environment for your business. Listed on the National Register of Historic Places, the building blends historic charm with modern functionality — a true gem in the Upper Midwest. Offering Memorandum and Property Website available Contact Listing Broker, Hayden Hulsey, to schedule a tour
- Bus Line
- Signage
- Skyway
PROPERTY FACTS
SELECT TENANTS
- FLOOR
- TENANT NAME
- INDUSTRY
- 2nd
- Gordon V. Doering, DDS
- Health Care and Social Assistance
- 4th
- Ingenuity Marketing Group
- Professional, Scientific, and Technical Services
- 2nd
- Minnesota Utility Investors
- Services
- 4th
- Sykes Family Law, P.A.
- Professional, Scientific, and Technical Services
- 4th
- Tetra Tech
- Professional, Scientific, and Technical Services
- 5th
- VidGrid Inc.
- Professional, Scientific, and Technical Services
- 3rd
- Vista Wealth Management
- Finance and Insurance
Presented by
Gilbert Building | 413 Wacouta St
Hmm, there seems to have been an error sending your message. Please try again.
Thanks! Your message was sent.

















