Your email has been sent.
Highlights
- Over 5,000 new residential units in the pipeline in surrounding neighborhood
- Floor to cieling windows create stunning natural light
- 544 units within the development
- Located a block away from Hostos Community College
All Available Space(1)
Display Rental Rate as
- Space
- Size
- Term
- Rental Rate
- Space Use
- Condition
- Available
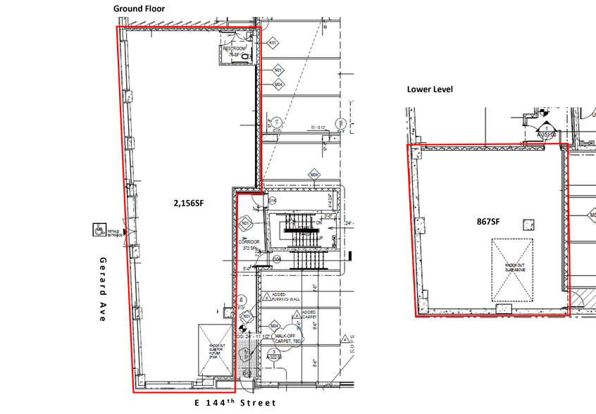
Vanilla box retail space with 2,156SF of available space on the ground floor + 867SF of space in the Lower-level with dedicated internal stair access. Pre-built bathroom with electrical distribution in place. Premiere corner visibility with frontage along Gerard Ave and E 144th Street. Please inquire for additional information.
- Space is in Excellent Condition
| Space | Size | Term | Rental Rate | Space Use | Condition | Available |
| Ground | 876-3,023 SF | Negotiable | Upon Request Upon Request Upon Request Upon Request | Retail | Partial Build-Out | Now |
Ground
| Size |
| 876-3,023 SF |
| Term |
| Negotiable |
| Rental Rate |
| Upon Request Upon Request Upon Request Upon Request |
| Space Use |
| Retail |
| Condition |
| Partial Build-Out |
| Available |
| Now |
Ground
| Size | 876-3,023 SF |
| Term | Negotiable |
| Rental Rate | Upon Request |
| Space Use | Retail |
| Condition | Partial Build-Out |
| Available | Now |
Vanilla box retail space with 2,156SF of available space on the ground floor + 867SF of space in the Lower-level with dedicated internal stair access. Pre-built bathroom with electrical distribution in place. Premiere corner visibility with frontage along Gerard Ave and E 144th Street. Please inquire for additional information.
- Space is in Excellent Condition
Property Facts
| Total Space Available | 3,023 SF | Property Subtype | Apartment |
| No. Units | 544 | Apartment Style | Mid-Rise |
| Min. Divisible | 876 SF | Building Size | 659,960 SF |
| Property Type | Multifamily | Year Built | 2023 |
| Total Space Available | 3,023 SF |
| No. Units | 544 |
| Min. Divisible | 876 SF |
| Property Type | Multifamily |
| Property Subtype | Apartment |
| Apartment Style | Mid-Rise |
| Building Size | 659,960 SF |
| Year Built | 2023 |
Nearby Major Retailers
Presented by
414 Gerard Ave
Hmm, there seems to have been an error sending your message. Please try again.
Thanks! Your message was sent.


