Log In/Sign Up
Your email has been sent.
42 Broad Street, Keyport 42 Broad St 2,900 SF 100% Leased Retail Building Keyport, NJ 07735 $938,450 CAD ($323.60 CAD/SF) 6.50% Cap Rate



Investment Highlights
- Heavy daytime foot traffic
- easy waterfront access, bus stop, redevelopment zone
- Open floor plan with brick walls
Executive Summary
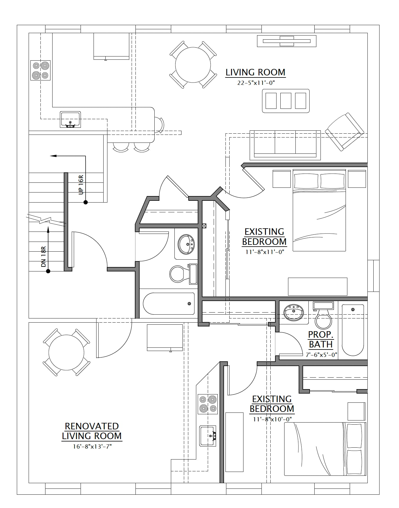
Mixed-use opportunity in the heart of downtown Keyport, just steps from Keyport Waterfront Park. Enjoy a prime Main Street location near shops, dining, and the waterfront promenade. The first floor offers approximately 1,500 SF of retail or commercial space with strong visibility, while the second floor provides approximately 1,400 SF of residential space. Renovations have already begun, creating an excellent opportunity for a buyer to complete and customize the property to their vision. Exposed brick walls add historic character and design appeal throughout. The second floor was previously configured as a spacious two-bedroom apartment and may offer potential for reconfiguration, subject to municipal zoning and Planning Board approval. Buyer to conduct due diligence regarding permitted uses and approvals. With two new furnaces, updated plumbing, and a newer roof, this property offers a strong head start for a visionary investor, owner-occupant, or developer looking to establish or expand their presence in the growing borough of Keyport.
Financial Summary (Pro Forma - 2026) Click Here to Access |
Annual (CAD) | Annual Per SF (CAD) |
|---|---|---|
| Gross Rental Income |
$99,999
|
$9.99
|
| Other Income |
-
|
-
|
| Vacancy Loss |
-
|
-
|
| Effective Gross Income |
$99,999
|
$9.99
|
| Taxes |
$99,999
|
$9.99
|
| Operating Expenses |
$99,999
|
$9.99
|
| Total Expenses |
$99,999
|
$9.99
|
| Net Operating Income |
$99,999
|
$9.99
|
Financial Summary (Pro Forma - 2026) Click Here to Access
| Gross Rental Income (CAD) | |
|---|---|
| Annual | $99,999 |
| Annual Per SF | $9.99 |
| Other Income (CAD) | |
|---|---|
| Annual | - |
| Annual Per SF | - |
| Vacancy Loss (CAD) | |
|---|---|
| Annual | - |
| Annual Per SF | - |
| Effective Gross Income (CAD) | |
|---|---|
| Annual | $99,999 |
| Annual Per SF | $9.99 |
| Taxes (CAD) | |
|---|---|
| Annual | $99,999 |
| Annual Per SF | $9.99 |
| Operating Expenses (CAD) | |
|---|---|
| Annual | $99,999 |
| Annual Per SF | $9.99 |
| Total Expenses (CAD) | |
|---|---|
| Annual | $99,999 |
| Annual Per SF | $9.99 |
| Net Operating Income (CAD) | |
|---|---|
| Annual | $99,999 |
| Annual Per SF | $9.99 |
Property Facts
Sale Type
Investment or Owner User
Property Type
Retail
Property Subtype
Building Size
2,900 SF
Building Class
B
Year Built
1900
Price
$938,450 CAD
Price Per SF
$323.60 CAD
Cap Rate
6.50%
NOI
$60,999 CAD
Percent Leased
100%
Tenancy
Multiple
Building Height
2 Stories
Building FAR
1.94
Lot Size
0.03 AC
Zoning
GC - General Commercial
Frontage
25’ on Broad Street
Moderately walkable
70/100
Exceptionally drivable
100/100
Limited public transit
30/100
Fairly bikeable
50/100
Nearby Major Retailers
Property Taxes
| Parcel Number | 24-00021-01-00060 | Total Assessment | $608,151 CAD (2025) |
| Land Assessment | $191,062 CAD (2025) | Annual Taxes | -$1 CAD ($0.00 CAD/SF) |
| Improvements Assessment | $417,089 CAD (2025) | Tax Year | 2026 |
Property Taxes
Parcel Number
24-00021-01-00060
Land Assessment
$191,062 CAD (2025)
Improvements Assessment
$417,089 CAD (2025)
Total Assessment
$608,151 CAD (2025)
Annual Taxes
-$1 CAD ($0.00 CAD/SF)
Tax Year
2026
1 of 7
Videos
Matterport 3D Exterior
Matterport 3D Tour
Photos
Street View
Street
Map
Presented by
42 Broad Street, Keyport | 42 Broad St
Already a member? Log In
Hmm, there seems to have been an error sending your message. Please try again.
Thanks! Your message was sent.
