Your email has been sent.
Orchard Shoppes 4200 Orchard Lake Rd 1,643 - 3,373 SF of 4-Star Retail Space Available in West Bloomfield, MI 48323


Highlights
- Proposed retail development
Space Availability (2)
Display Rental Rate as
- Space
- Size
- Term
- Rental Rate
- Rent Type
| Space | Size | Term | Rental Rate | Rent Type | ||
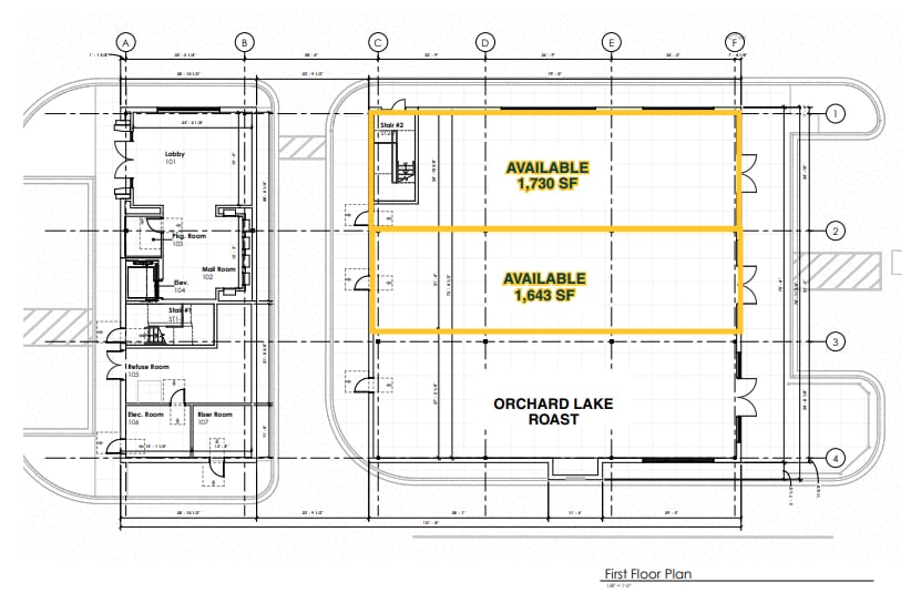
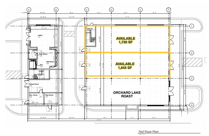
| 1st Floor, Ste 1 | 1,730 SF | Negotiable | Upon Request Upon Request Upon Request Upon Request | Negotiable | ||
| 1st Floor, Ste 2 | 1,643 SF | Negotiable | Upon Request Upon Request Upon Request Upon Request | Negotiable |
1st Floor, Ste 1
Proposed retail development on the highly sought-after Orchard Lake Road retail corridor in Orchard Lake, MI. The project calls for a 5,993 square foot multi-tenant retail building with a drive-thru that can accommodate stacking for 7 cars. The site is optimally situated at a traffic signal and sees more than 29,000 VPD passing the property. There are 151,211 people in a five-mile radius. The property is optimally situated in one of the wealthiest portions of Oakland County with an average household income of $158,422 in a three-mile radius. The site is connected to the West Bloomfield Trail, which is a 7.2 mile moderately trafficked point-to-point trail.
- Partially Built-Out as a Bank
- Highly Desirable End Cap Space
- Can be combined with additional space(s) for up to 3,373 SF of adjacent space
- Central Air Conditioning
1st Floor, Ste 2
Proposed retail development on the highly sought-after Orchard Lake Road retail corridor in Orchard Lake, MI. The project calls for a 5,993 square foot multi-tenant retail building with a drive-thru that can accommodate stacking for 7 cars. The site is optimally situated at a traffic signal and sees more than 29,000 VPD passing the property. There are 151,211 people in a five-mile radius. The property is optimally situated in one of the wealthiest portions of Oakland County with an average household income of $158,422 in a three-mile radius. The site is connected to the West Bloomfield Trail, which is a 7.2 mile moderately trafficked point-to-point trail.
- Partially Built-Out as Standard Retail Space
- Located in-line with other retail
- Can be combined with additional space(s) for up to 3,373 SF of adjacent space
- Central Air Conditioning
Rent Types
The rent amount and type that the tenant (lessee) will be responsible to pay to the landlord (lessor) throughout the lease term is negotiated prior to both parties signing a lease agreement. The rent type will vary depending upon the services provided. For example, triple net rents are typically lower than full service rents due to additional expenses the tenant is required to pay in addition to the base rent. Contact the listing broker for a full understanding of any associated costs or additional expenses for each rent type.
1. Full Service: A rental rate that includes normal building standard services as provided by the landlord within a base year rental.
2. Double Net (NN): Tenant pays for only two of the building expenses; the landlord and tenant determine the specific expenses prior to signing the lease agreement.
3. Triple Net (NNN): A lease in which the tenant is responsible for all expenses associated with their proportional share of occupancy of the building.
4. Modified Gross: Modified Gross is a general type of lease rate where typically the tenant will be responsible for their proportional share of one or more of the expenses. The landlord will pay the remaining expenses. See the below list of common Modified Gross rental rate structures: 4. Plus All Utilities: A type of Modified Gross Lease where the tenant is responsible for their proportional share of utilities in addition to the rent. 4. Plus Cleaning: A type of Modified Gross Lease where the tenant is responsible for their proportional share of cleaning in addition to the rent. 4. Plus Electric: A type of Modified Gross Lease where the tenant is responsible for their proportional share of the electrical cost in addition to the rent. 4. Plus Electric & Cleaning: A type of Modified Gross Lease where the tenant is responsible for their proportional share of the electrical and cleaning cost in addition to the rent. 4. Plus Utilities and Char: A type of Modified Gross Lease where the tenant is responsible for their proportional share of the utilities and cleaning cost in addition to the rent. 4. Industrial Gross: A type of Modified Gross lease where the tenant pays one or more of the expenses in addition to the rent. The landlord and tenant determine these prior to signing the lease agreement.
5. Tenant Electric: The landlord pays for all services and the tenant is responsible for their usage of lights and electrical outlets in the space they occupy.
6. Negotiable or Upon Request: Used when the leasing contact does not provide the rent or service type.
7. TBD: To be determined; used for buildings for which no rent or service type is known, commonly utilized when the buildings are not yet built.
Property Facts
| Total Space Available | 3,373 SF | Year Built | 2027 |
| Property Type | Retail | Parking Ratio | 8.01/1,000 SF |
| Property Subtype | Freestanding | Construction Status | Proposed |
| Gross Leasable Area | 5,993 SF |
| Total Space Available | 3,373 SF |
| Property Type | Retail |
| Property Subtype | Freestanding |
| Gross Leasable Area | 5,993 SF |
| Year Built | 2027 |
| Parking Ratio | 8.01/1,000 SF |
| Construction Status | Proposed |
About the Property
Fully entitled, mixed-use project slated to break ground this summer on the highly sought after Orchard Lake Road retail corridor in Orchard Lake, Michigan. The development calls for up to 5,352 SF of retail with a drive-thru that has stacking for 6 vehicles with a 4-story multi-family component. There will be 15, 1-bedroom units and 9, 2-bedroom units above the first floor retail. The site is optimally situated at a traffic signal and sees more than 29,000 VPD passing the property. There are 154,203 people in a five-mile radius. The property is located in one of the wealthiest portions of Oakland County with an average household income of $158,422 in a three-mile radius. The site is connected to the West Bloomfield Trail, which is a 7.2 mile moderately trafficked point-to-point trail.
- Drive Thru
Nearby Major Retailers
Presented by
Orchard Shoppes | 4200 Orchard Lake Rd
Hmm, there seems to have been an error sending your message. Please try again.
Thanks! Your message was sent.


