Log In/Sign Up
Your email has been sent.
Investment Highlights
- Adjacent To Coastal Carolina Orthodontics.
- Approximately 15,600 Vehicles Per Day.
- Swinson Park Carteret Health Care (Hospital) Is Approximately 1 Mile away.
Executive Summary
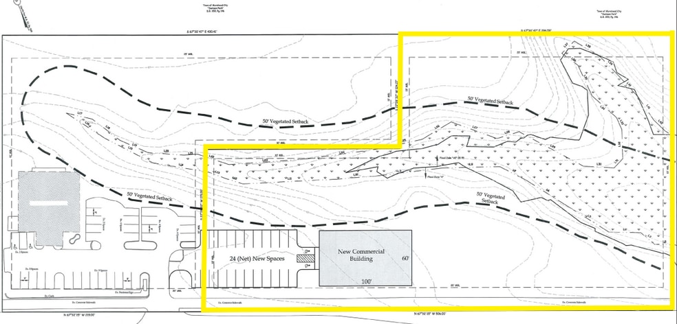
Located at 4324 Bridges Street in Morehead City, NC, this ±2.88-acre Highway Commercial site offers ±0.77 buildable acres with utilities available and excellent visibility along a corridor with approximately 15,600 vehicles per day. Zoned HC and confirmed by NCDEQ for on-site stream features, the property is adjacent to Coastal Carolina Orthodontics and Swinson Park, and just one mile from Carteret Health Care Hospital. With strong 2025 demographic projections—including a 3-mile population of over 14,000 and average household incomes exceeding $100,000—this site is ideal for commercial development. Offered at $400,000.
Property Facts
| Price | $546,252 CAD | Property Subtype | Commercial |
| Sale Type | Investment | Proposed Use | |
| No. Lots | 1 | Total Lot Size | 2.87 AC |
| Property Type | Land | Opportunity Zone |
Yes
|
| Zoning | HC - Highway Commercial | ||
| Price | $546,252 CAD |
| Sale Type | Investment |
| No. Lots | 1 |
| Property Type | Land |
| Property Subtype | Commercial |
| Proposed Use | |
| Total Lot Size | 2.87 AC |
| Opportunity Zone |
Yes |
| Zoning | HC - Highway Commercial |
1 Lot Available
Lot
| Price | $546,252 CAD | Lot Size | 2.87 AC |
| Price Per AC | $190,188.84 CAD |
| Price | $546,252 CAD |
| Price Per AC | $190,188.84 CAD |
| Lot Size | 2.87 AC |
Approximately 2.88 acres, there are some wetlands on the Property, which were confirmed by NCDEQ in 2023. The result is approximately .77 acres of buildable land.
1 1
Property Taxes
| Parcel Number | 6366.16.84.6448000 | Improvements Assessment | $0 CAD |
| Land Assessment | $573,835 CAD | Total Assessment | $573,835 CAD |
Property Taxes
Parcel Number
6366.16.84.6448000
Land Assessment
$573,835 CAD
Improvements Assessment
$0 CAD
Total Assessment
$573,835 CAD
1 of 3
Videos
Matterport 3D Exterior
Matterport 3D Tour
Photos
Street View
Street
Map
1 of 1
Presented by
4324 Bridges St
Already a member? Log In
Hmm, there seems to have been an error sending your message. Please try again.
Thanks! Your message was sent.
Your message has been sent!
Activate your LoopNet account now to track properties, get real-time alerts, save time on future inquiries, and more.


