Log In/Sign Up
Your email has been sent.
433 Railroad Ave
Shiremanstown, PA 17011
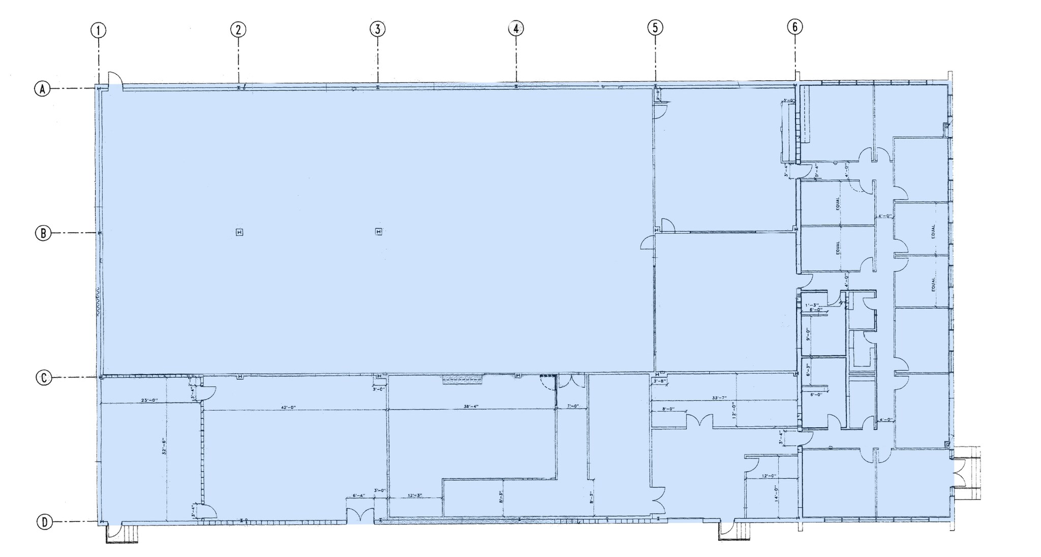
Flex Property For Lease
·
18,147 SF


Highlights
- Existing data center facility in established industrial park setting
- Fully climate controlled with 8 HVAC units plus 10 CRAC condensing units for the server room
- Centrally located just off Trindle Rd & St John’s Church Rd
Features
Standard Parking Spaces
126
Data Center Facility Facts
Building Size
18,147 SF
Lot Size
2.69 AC
Year Built
1968
Construction
Masonry
Zoning
Industrial General - General Industrial allows for a wide range of industrial activities, including manufacturing, warehousing, and distribution
1 of 8
Videos
Matterport 3D Exterior
Matterport 3D Tour
Photos
Street View
Street
Map
