Log In/Sign Up
Your email has been sent.
Highlights
- Market TIA available.
- Experienced national operator.
- No load factor - highly efficient.
Features
Clear Height
24’
Drive In Bays
7
Exterior Dock Doors
13
Standard Parking Spaces
68
All Available Space(1)
Display Rental Rate as
- Space
- Size
- Term
- Rental Rate
- Space Use
- Condition
- Available
100% useable space - highly economical. Lab conversion available.
- Includes 7,000 SF of dedicated office space
- 13 Loading Docks
- 7 Drive Ins
- Lab conversion is available
| Space | Size | Term | Rental Rate | Space Use | Condition | Available |
| 1st Floor | 40,200 SF | Negotiable | Upon Request Upon Request Upon Request Upon Request | Industrial | - | 30 Days |
1st Floor
| Size |
| 40,200 SF |
| Term |
| Negotiable |
| Rental Rate |
| Upon Request Upon Request Upon Request Upon Request |
| Space Use |
| Industrial |
| Condition |
| - |
| Available |
| 30 Days |
1 of 1
Videos
Matterport 3D Exterior
Matterport 3D Tour
Photos
Street View
Street
Map
1st Floor
| Size | 40,200 SF |
| Term | Negotiable |
| Rental Rate | Upon Request |
| Space Use | Industrial |
| Condition | - |
| Available | 30 Days |
100% useable space - highly economical. Lab conversion available.
- Includes 7,000 SF of dedicated office space
- 7 Drive Ins
- 13 Loading Docks
- Lab conversion is available
Property Overview
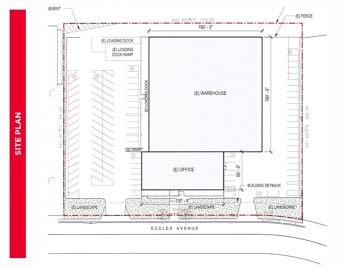
Freestanding building for lease. Total RBA ±40,200 SF. Office Size ±7,000 SF. Site Area ±2.62 Acre Lot. Clear Height ±22’ Clear Height. Dock high doors 13. Grade Level Doors 7. Loading Cross-Loading. Parking 1.46/1,000 SF. Heavy Power Available. Close Proximity to US 101, I-280 and I-380. Located Between San Francisco and San Francisco International Airport (SFO). Lab conversion is available.
Warehouse Facility Facts
Building Size
40,200 SF
Lot Size
2.64 AC
Year Built
1960
Construction
Masonry
Power Supply
Amps: 240 Volts: 999 Phase: 3
Zoning
ML - Light Manufacturing
1 1
1 of 4
Videos
Matterport 3D Exterior
Matterport 3D Tour
Photos
Street View
Street
Map
1 of 1
Presented by
439 Eccles Ave
Already a member? Log In
Hmm, there seems to have been an error sending your message. Please try again.
Thanks! Your message was sent.
Your message has been sent!
Activate your LoopNet account now to track properties, get real-time alerts, save time on future inquiries, and more.





