Your email has been sent.
Park Highlights
- Join a professional community of prestigious tenants and enjoy an amenity-rich atmosphere in San Antonio’s largest office park.
- Flexible and affordable high-end office spaces benefit from shared conference and training rooms, an on-site café, and a tenant lounge.
- Employees can easily cross off their to-do list with Walmart Supercenter, Sam’s Club, The Home Depot, and Gold’s Gym, all within a five-minute drive.
- Experience unmatched accessibility with Downtown San Antonio and its plethora of shopping, dining, and leisure options just 10 minutes away.
- Less than 2 miles from the South Texas Medical Center, making it ideal for healthcare support operations and clinics.
- Ample on-site amenities include a café and deli, a tenant lounge, and conference and training rooms ready for in-person or virtual meetings.
Park Facts
All Available Spaces(123)
Display Rental Rate as
- Space
- Size
- Term
- Rental Rate
- Space Use
- Build-Out
- Available
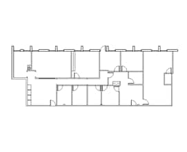
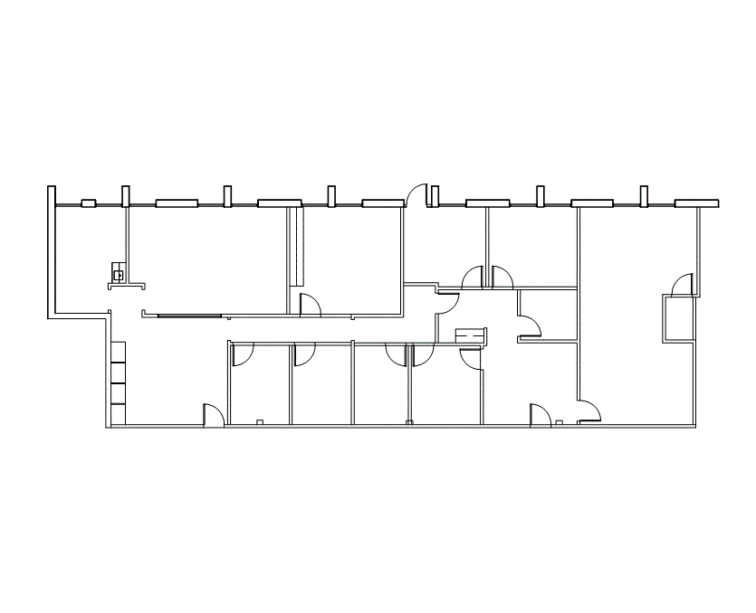
Reception Area, 11 Window Offices, 1 Interior Office, 1 Bullpen, DESK SPACE, Break Area, Sink, Work Area, File Or Storage Area, 1 Closets, Corner Location
- Rate includes utilities, building services and property expenses
- Open Floor Plan Layout
- 11 Private Offices
- Partially Built-Out as Standard Office
- Fits 15 - 48 People
- 12 Workstations
Reception Area, 1 Window Office, Large Open Area, Break Area, Sink
- Rate includes utilities, building services and property expenses
- Open Floor Plan Layout
- 1 Private Office
- Partially Built-Out as Standard Office
- Fits 8 - 25 People
- 1 Workstation
Reception Area, 3 Interior Offices, Cubical Space, Work Area, File Or Storage Area
- Rate includes utilities, building services and property expenses
- Mostly Open Floor Plan Layout
- 3 Private Offices
- Fully Built-Out as Standard Office
- Fits 2 - 7 People
- 3 Workstations
Reception Area, 1 Window Office, File Or Storage Area
- Rate includes utilities, building services and property expenses
- Mostly Open Floor Plan Layout
- 1 Private Office
- Reception Area
- Partially Built-Out as Standard Office
- Fits 2 - 5 People
- 1 Workstation
Reception Area, 3 Interior Offices, Large Open Area, Sink, File Or Storage Area
- Rate includes utilities, building services and property expenses
- Mostly Open Floor Plan Layout
- 3 Private Offices
- Fully Built-Out as Standard Office
- Fits 8 - 24 People
Reception Area, 1 Window Office, File Or Storage Area
- Rate includes utilities, building services and property expenses
- Fits 2 - 5 People
- 3 Workstations
- Fully Built-Out as Standard Office
- 3 Private Offices
Reception Area, 3 Window Offices, 1 interior offices, Reception area, Break room
- Rate includes utilities, building services and property expenses
- Fits 6 - 18 People
- 3 Workstations
- Fully Built-Out as Standard Office
- 3 Private Offices
Reception Area, 1 Window Office, 1 Interior Office, Break Area, Sink
- Rate includes utilities, building services and property expenses
- Fits 3 - 8 People
- 2 Workstations
- Fully Built-Out as Standard Office
- 2 Private Offices
Reception Area, 1 Window Office, 1 Interior Office, Break Area, Sink
- Rate includes utilities, building services and property expenses
- Fits 3 - 8 People
- 2 Workstations
- Fully Built-Out as Standard Office
- 2 Private Offices
Reception Area, 2 Window Offices, 1 Interior Office, File Or Storage Area
- Rate includes utilities, building services and property expenses
- Fits 3 - 9 People
- 3 Workstations
- Partially Built-Out as Standard Office
- 3 Private Offices
- Reception Area
Reception Area, 2 Window Offices, 2 Interior Offices, 1 Conference Room, Break Area, Sink, File Or Storage Area, 2 Closets, 1 Entrance
- Rate includes utilities, building services and property expenses
- Fits 5 - 14 People
Reception Area, 1 Window Office, File Or Storage Area
- Rate includes utilities, building services and property expenses
- Fits 2 - 5 People
- 1 Workstation
- Fully Built-Out as Standard Office
- 1 Private Office
- Secure Storage
Reception Area, 1 Window Office, 1 Interior Office, File Or Storage Area
- Rate includes utilities, building services and property expenses
- Fits 2 - 6 People
- 2 Workstations
- Fully Built-Out as Standard Office
- 2 Private Offices
Reception Area, 1 Window Office, File Or Storage Area
- Rate includes utilities, building services and property expenses
- Fits 2 - 5 People
- 2 Workstations
- Fully Built-Out as Standard Office
- 2 Private Offices
Reception Area, 1 Window Office, Kitchen, Break Area, Sink, Work Area
- Rate includes utilities, building services and property expenses
- Fits 3 - 9 People
- 1 Workstation
- Partially Built-Out as Standard Office
- 1 Private Office
- Kitchen
Reception Area, 2 Window Offices, 1 Interior Office, Work Area
- Rate includes utilities, building services and property expenses
- Fits 5 - 15 People
- 3 Workstations
- Fully Built-Out as Standard Office
- 3 Private Offices
| Space | Size | Term | Rental Rate | Space Use | Build-Out | Available |
| 1st Floor, Ste 100 | 5,946 SF | 3-5 Years | $27.41 CAD/SF/YR $2.28 CAD/SF/MO $162,969 CAD/YR $13,581 CAD/MO | Office | Partial Build-Out | Now |
| 1st Floor, Ste 115 | 3,050 SF | 3-5 Years | $27.41 CAD/SF/YR $2.28 CAD/SF/MO $83,595 CAD/YR $6,966 CAD/MO | Office | Partial Build-Out | Now |
| 1st Floor, Ste 116 | 784 SF | 3-5 Years | $27.41 CAD/SF/YR $2.28 CAD/SF/MO $21,488 CAD/YR $1,791 CAD/MO | Office | Full Build-Out | Now |
| 1st Floor, Ste 160 | 543 SF | 3-5 Years | $27.41 CAD/SF/YR $2.28 CAD/SF/MO $14,883 CAD/YR $1,240 CAD/MO | Office | Partial Build-Out | Now |
| 1st Floor, Ste 165 | 2,945 SF | 3-5 Years | $27.41 CAD/SF/YR $2.28 CAD/SF/MO $80,717 CAD/YR $6,726 CAD/MO | Office | Full Build-Out | Now |
| 1st Floor, Ste 170 | 621 SF | 3-5 Years | $27.41 CAD/SF/YR $2.28 CAD/SF/MO $17,020 CAD/YR $1,418 CAD/MO | Office | Full Build-Out | Now |
| 1st Floor, Ste 171 | 2,176 SF | 3-5 Years | $27.41 CAD/SF/YR $2.28 CAD/SF/MO $59,640 CAD/YR $4,970 CAD/MO | Office | Full Build-Out | Now |
| 1st Floor, Ste 173 | 995 SF | 3-5 Years | $27.41 CAD/SF/YR $2.28 CAD/SF/MO $27,271 CAD/YR $2,273 CAD/MO | Office | Full Build-Out | Now |
| 1st Floor, Ste 175 | 995 SF | 3-5 Years | $27.41 CAD/SF/YR $2.28 CAD/SF/MO $27,271 CAD/YR $2,273 CAD/MO | Office | Full Build-Out | Now |
| 1st Floor, Ste 181 | 1,038 SF | Negotiable | $27.41 CAD/SF/YR $2.28 CAD/SF/MO $28,450 CAD/YR $2,371 CAD/MO | Office | Partial Build-Out | Now |
| 2nd Floor, Ste 200 | 1,669 SF | Negotiable | $27.41 CAD/SF/YR $2.28 CAD/SF/MO $45,744 CAD/YR $3,812 CAD/MO | Office | - | Now |
| 2nd Floor, Ste 240 | 593 SF | Negotiable | $27.41 CAD/SF/YR $2.28 CAD/SF/MO $16,253 CAD/YR $1,354 CAD/MO | Office | Full Build-Out | Now |
| 2nd Floor, Ste 246 | 689 SF | Negotiable | $27.41 CAD/SF/YR $2.28 CAD/SF/MO $18,884 CAD/YR $1,574 CAD/MO | Office | Full Build-Out | 30 Days |
| 2nd Floor, Ste 249 | 548 SF | Negotiable | $27.41 CAD/SF/YR $2.28 CAD/SF/MO $15,020 CAD/YR $1,252 CAD/MO | Office | Full Build-Out | 30 Days |
| 2nd Floor, Ste 250 | 1,122 SF | 3-5 Years | $27.41 CAD/SF/YR $2.28 CAD/SF/MO $30,752 CAD/YR $2,563 CAD/MO | Office | Partial Build-Out | Now |
| 2nd Floor, Ste 253 | 1,757 SF | 3-5 Years | $27.41 CAD/SF/YR $2.28 CAD/SF/MO $48,156 CAD/YR $4,013 CAD/MO | Office | Full Build-Out | Now |
4241 E Piedras Dr - 1st Floor - Ste 100
4241 E Piedras Dr - 1st Floor - Ste 115
4241 E Piedras Dr - 1st Floor - Ste 116
4241 E Piedras Dr - 1st Floor - Ste 160
4241 E Piedras Dr - 1st Floor - Ste 165
4241 E Piedras Dr - 1st Floor - Ste 170
4241 E Piedras Dr - 1st Floor - Ste 171
4241 E Piedras Dr - 1st Floor - Ste 173
4241 E Piedras Dr - 1st Floor - Ste 175
4241 E Piedras Dr - 1st Floor - Ste 181
4241 E Piedras Dr - 2nd Floor - Ste 200
4241 E Piedras Dr - 2nd Floor - Ste 240
4241 E Piedras Dr - 2nd Floor - Ste 246
4241 E Piedras Dr - 2nd Floor - Ste 249
4241 E Piedras Dr - 2nd Floor - Ste 250
4241 E Piedras Dr - 2nd Floor - Ste 253
- Space
- Size
- Term
- Rental Rate
- Space Use
- Build-Out
- Available
Reception Area, 3 Window Offices, 1 Conference Room, Large Open Area, Kitchen, Break Area, Sink, 2 Closets, 2 Entrances
- Rate includes utilities, building services and property expenses
- Open Floor Plan Layout
- 4 Private Offices
- 4 Workstations
- Kitchen
- Partially Built-Out as Standard Office
- Fits 10 - 31 People
- 1 Conference Room
- Can be combined with additional space(s) for up to 18,327 SF of adjacent space
Reception Area, 2 Window Offices, 2 Interior Offices, Open Area, Sink
- Rate includes utilities, building services and property expenses
- Open Floor Plan Layout
- 4 Private Offices
- Can be combined with additional space(s) for up to 18,327 SF of adjacent space
- Partially Built-Out as Standard Office
- Fits 5 - 16 People
- 4 Workstations
Reception Area, 10 Window Offices, 9 Interior Offices, 1 Conference Room, 1 Bullpen, Open Area, Break Area, Sink, Work Area, File Or Storage Area, Corner Location
- Rate includes utilities, building services and property expenses
- Open Floor Plan Layout
- 19 Private Offices
- 1 Workstation
- Partially Built-Out as Standard Office
- Fits 21 - 65 People
- 1 Conference Room
- Can be combined with additional space(s) for up to 18,327 SF of adjacent space
Reception Area, 4 Window Offices, 2 Interior Offices, Break Area, Sink
- Rate includes utilities, building services and property expenses
- Open Floor Plan Layout
- 6 Private Offices
- Can be combined with additional space(s) for up to 18,327 SF of adjacent space
- Partially Built-Out as Professional Services Office
- Fits 5 - 15 People
- 6 Workstations
Reception/waiting Area, 2 Window Offices, 1 Interior Office, Breakroom w/sink, 1 Closets
- Rate includes utilities, building services and property expenses
- Open Floor Plan Layout
- 3 Private Offices
- Can be combined with additional space(s) for up to 18,327 SF of adjacent space
- Partially Built-Out as Standard Office
- Fits 3 - 9 People
- 3 Workstations
- Private Restrooms
Reception Area, 1 Window Office, 1 Interior Office
- Rate includes utilities, building services and property expenses
- Open Floor Plan Layout
- 2 Private Offices
- Can be combined with additional space(s) for up to 18,327 SF of adjacent space
- Partially Built-Out as Standard Office
- Fits 2 - 5 People
- 2 Workstations
Reception Area, 2 Window Offices, 2 Interior Offices
- Rate includes utilities, building services and property expenses
- Mostly Open Floor Plan Layout
- 4 Private Offices
- Can be combined with additional space(s) for up to 18,327 SF of adjacent space
- Partially Built-Out as Standard Office
- Fits 2 - 7 People
- 4 Workstations
Reception Area, 6 Window Offices, 4 Interior Offices, Closet.
- Rate includes utilities, building services and property expenses
- Fits 7 - 22 People
- 10 Workstations
- Partially Built-Out as Standard Office
- 10 Private Offices
Reception Area, 1 Window Office, File Or Storage Area, 1 Closets
- Rate includes utilities, building services and property expenses
- Fits 2 - 4 People
- 2 Workstations
- Reception Area
- Partially Built-Out as Standard Office
- 1 Private Office
- Can be combined with additional space(s) for up to 18,327 SF of adjacent space
Large Open Area
- Rate includes utilities, building services and property expenses
- Open Floor Plan Layout
- 7 Private Offices
- Fully Built-Out as Standard Office
- Fits 4 - 12 People
- 7 Workstations
Reception Area, 4 Window Offices, 3 Interior Offices, 1 Closets
- Rate includes utilities, building services and property expenses
- Fits 5 - 14 People
- 7 Workstations
- Fully Built-Out as Standard Office
- 7 Private Offices
Reception Area, 2 Window Offices, 2 Interior Offices, Kitchen, Sink, File Or Storage Area, 1 Entrance
- Rate includes utilities, building services and property expenses
- Fits 3 - 7 People
- 1 Conference Room
- Partially Built-Out as Standard Office
- 4 Private Offices
- 4 Workstations
Reception Area, 3 Window Offices, 1 Interior Office, 1 Conference Room, Break Area, Sink
- Rate includes utilities, building services and property expenses
- Fits 6 - 17 People
- 1 Conference Room
- Partially Built-Out as Standard Office
- 4 Private Offices
- 4 Workstations
Reception Area, 3 Window Offices, 1 Interior Office, 1 Conference Room, Break Area, Sink
- Rate includes utilities, building services and property expenses
- Fits 3 - 9 People
- 1 Conference Room
- Partially Built-Out as Standard Office
- 4 Private Offices
- 4 Workstations
| Space | Size | Term | Rental Rate | Space Use | Build-Out | Available |
| 1st Floor, Ste 101 | 3,760 SF | 3-5 Years | $27.41 CAD/SF/YR $2.28 CAD/SF/MO $103,055 CAD/YR $8,588 CAD/MO | Office | Partial Build-Out | Now |
| 1st Floor, Ste 112 | 1,937 SF | 3-5 Years | $27.41 CAD/SF/YR $2.28 CAD/SF/MO $53,090 CAD/YR $4,424 CAD/MO | Office | Partial Build-Out | Now |
| 1st Floor, Ste 120 | 8,024 SF | 3-5 Years | $27.41 CAD/SF/YR $2.28 CAD/SF/MO $219,923 CAD/YR $18,327 CAD/MO | Office | Partial Build-Out | Now |
| 2nd Floor, Ste 204 | 1,820 SF | 3-5 Years | $27.41 CAD/SF/YR $2.28 CAD/SF/MO $49,883 CAD/YR $4,157 CAD/MO | Office | Partial Build-Out | Now |
| 2nd Floor, Ste 206 | 1,042 SF | 3-5 Years | $27.41 CAD/SF/YR $2.28 CAD/SF/MO $28,559 CAD/YR $2,380 CAD/MO | Office | Partial Build-Out | Now |
| 2nd Floor, Ste 209 | 544 SF | 3-5 Years | $27.41 CAD/SF/YR $2.28 CAD/SF/MO $14,910 CAD/YR $1,243 CAD/MO | Office | Partial Build-Out | Now |
| 2nd Floor, Ste 210 | 757 SF | 3-5 Years | $27.41 CAD/SF/YR $2.28 CAD/SF/MO $20,748 CAD/YR $1,729 CAD/MO | Office | Partial Build-Out | Now |
| 2nd Floor, Ste 216 | 2,702 SF | Negotiable | $27.41 CAD/SF/YR $2.28 CAD/SF/MO $74,057 CAD/YR $6,171 CAD/MO | Office | Partial Build-Out | Now |
| 2nd Floor, Ste 220 | 443 SF | 3-5 Years | $27.41 CAD/SF/YR $2.28 CAD/SF/MO $12,142 CAD/YR $1,012 CAD/MO | Office | Partial Build-Out | Now |
| 2nd Floor, Ste 255 | 1,472 SF | 3 Years | $27.41 CAD/SF/YR $2.28 CAD/SF/MO $40,345 CAD/YR $3,362 CAD/MO | Office | Full Build-Out | Now |
| 2nd Floor, Ste 256 | 1,735 SF | 3 Years | $27.41 CAD/SF/YR $2.28 CAD/SF/MO $47,553 CAD/YR $3,963 CAD/MO | Office | Full Build-Out | Now |
| 2nd Floor, Ste 261 | 811 SF | 3-5 Years | $27.41 CAD/SF/YR $2.28 CAD/SF/MO $22,228 CAD/YR $1,852 CAD/MO | Office | Partial Build-Out | Now |
| 2nd Floor, Ste 263 | 2,053 SF | 3-5 Years | $27.41 CAD/SF/YR $2.28 CAD/SF/MO $56,269 CAD/YR $4,689 CAD/MO | Office | Partial Build-Out | Now |
| 2nd Floor, Ste 265 | 1,105 SF | 3-5 Years | $27.41 CAD/SF/YR $2.28 CAD/SF/MO $30,286 CAD/YR $2,524 CAD/MO | Office | Partial Build-Out | Now |
4203 Woodcock Dr - 1st Floor - Ste 101
4203 Woodcock Dr - 1st Floor - Ste 112
4203 Woodcock Dr - 1st Floor - Ste 120
4203 Woodcock Dr - 2nd Floor - Ste 204
4203 Woodcock Dr - 2nd Floor - Ste 206
4203 Woodcock Dr - 2nd Floor - Ste 209
4203 Woodcock Dr - 2nd Floor - Ste 210
4203 Woodcock Dr - 2nd Floor - Ste 216
4203 Woodcock Dr - 2nd Floor - Ste 220
4203 Woodcock Dr - 2nd Floor - Ste 255
4203 Woodcock Dr - 2nd Floor - Ste 256
4203 Woodcock Dr - 2nd Floor - Ste 261
4203 Woodcock Dr - 2nd Floor - Ste 263
4203 Woodcock Dr - 2nd Floor - Ste 265
- Space
- Size
- Term
- Rental Rate
- Space Use
- Build-Out
- Available
LEASING AND PROPERTY MANAGERS' OFFICES. Reception Area, 2 Window Offices, 1 Interior Office, File Or Storage Area
- Rate includes utilities, building services and property expenses
- Fits 3 - 10 People
- 3 Workstations
- Secure Storage
- Partially Built-Out as Standard Office
- 3 Private Offices
- Reception Area
Reception Area, 2 Window Offices, 4 Interior Offices, 1 Conference Room, 1 Bullpen, Break Area, Sink, Work Area
- Rate includes utilities, building services and property expenses
- Fits 9 - 28 People
- 1 Conference Room
- Reception Area
- Partially Built-Out as Standard Office
- 3 Private Offices
- 6 Workstations
- Secure Storage
Reception Area, 2 Window Offices, File Or Storage Area
- Rate includes utilities, building services and property expenses
- Fits 2 - 6 People
- 2 Workstations
- Secure Storage
- Partially Built-Out as Standard Office
- 2 Private Offices
- Reception Area
Reception Area, 2 Window Offices, 1 Entrance
- Rate includes utilities, building services and property expenses
- Fits 2 - 6 People
Reception Area, 1 Window Office, 1 Interior Office, 1 Entrance
- Rate includes utilities, building services and property expenses
- Fits 2 - 5 People
- 1 Workstation
- Fully Built-Out as Standard Office
- 1 Private Office
- Reception Area
Reception Area, 2 Window Offices, 2 Interior Offices
- Rate includes utilities, building services and property expenses
- Fits 3 - 9 People
- 4 Workstations
- Secure Storage
- Partially Built-Out as Standard Office
- 4 Private Offices
- Reception Area
Reception Area, 1 Interior Office, 2 Bullpens, 1 Closets
- Rate includes utilities, building services and property expenses
- Fits 2 - 7 People
- Reception Area
- Partially Built-Out as Standard Office
- 1 Private Office
- Secure Storage
Reception Area, 5 Window Offices, 2 Interior Offices, 2 Conference Rooms, File Or Storage Area, 1 Closets
- Rate includes utilities, building services and property expenses
- Fits 4 - 13 People
- 2 Conference Rooms
- Reception Area
- Fully Built-Out as Standard Office
- 6 Private Offices
- 7 Workstations
Reception Area, 1 Window Office
- Rate includes utilities, building services and property expenses
- Fits 2 - 4 People
- 1 Workstation
- Fully Built-Out as Standard Office
- 1 Private Office
- Reception Area
Reception Area, 1 Window Office, 1 Bullpen, 1 Closets
- Rate includes utilities, building services and property expenses
- Fits 2 - 5 People
- 1 Workstation
- Fully Built-Out as Standard Office
- 1 Private Office
- Reception Area
| Space | Size | Term | Rental Rate | Space Use | Build-Out | Available |
| 1st Floor, Ste 101 | 1,197 SF | Negotiable | $27.41 CAD/SF/YR $2.28 CAD/SF/MO $32,808 CAD/YR $2,734 CAD/MO | Office | Partial Build-Out | 30 Days |
| 1st Floor, Ste 105 | 3,400 SF | Negotiable | $27.41 CAD/SF/YR $2.28 CAD/SF/MO $93,188 CAD/YR $7,766 CAD/MO | Office | Partial Build-Out | 30 Days |
| 2nd Floor, Ste 204 | 651 SF | 3 Years | $27.41 CAD/SF/YR $2.28 CAD/SF/MO $17,843 CAD/YR $1,487 CAD/MO | Office | Partial Build-Out | Now |
| 2nd Floor, Ste 230 | 631 SF | Negotiable | $27.41 CAD/SF/YR $2.28 CAD/SF/MO $17,295 CAD/YR $1,441 CAD/MO | Office | - | Now |
| 2nd Floor, Ste 250 | 510 SF | 3-5 Years | $27.41 CAD/SF/YR $2.28 CAD/SF/MO $13,978 CAD/YR $1,165 CAD/MO | Office | Full Build-Out | Now |
| 2nd Floor, Ste 253 | 1,076 SF | Negotiable | $27.41 CAD/SF/YR $2.28 CAD/SF/MO $29,491 CAD/YR $2,458 CAD/MO | Office | Partial Build-Out | 30 Days |
| 2nd Floor, Ste 255 | 794 SF | Negotiable | $27.41 CAD/SF/YR $2.28 CAD/SF/MO $21,762 CAD/YR $1,814 CAD/MO | Office | Partial Build-Out | 30 Days |
| 2nd Floor, Ste 262 | 1,588 SF | Negotiable | $27.41 CAD/SF/YR $2.28 CAD/SF/MO $43,524 CAD/YR $3,627 CAD/MO | Office | Full Build-Out | 30 Days |
| 2nd Floor, Ste 268 | 492 SF | Negotiable | $27.41 CAD/SF/YR $2.28 CAD/SF/MO $13,485 CAD/YR $1,124 CAD/MO | Office | Full Build-Out | 30 Days |
| 2nd Floor, Ste 290 | 546 SF | 3-5 Years | $27.41 CAD/SF/YR $2.28 CAD/SF/MO $14,965 CAD/YR $1,247 CAD/MO | Office | Full Build-Out | Now |
4100 E Piedras Dr - 1st Floor - Ste 101
4100 E Piedras Dr - 1st Floor - Ste 105
4100 E Piedras Dr - 2nd Floor - Ste 204
4100 E Piedras Dr - 2nd Floor - Ste 230
4100 E Piedras Dr - 2nd Floor - Ste 250
4100 E Piedras Dr - 2nd Floor - Ste 253
4100 E Piedras Dr - 2nd Floor - Ste 255
4100 E Piedras Dr - 2nd Floor - Ste 262
4100 E Piedras Dr - 2nd Floor - Ste 268
4100 E Piedras Dr - 2nd Floor - Ste 290
- Space
- Size
- Term
- Rental Rate
- Space Use
- Build-Out
- Available
Reception Area, 6 Window Offices, 11 Interior Offices, 2 Conference Rooms, Work Area, 1 Closets, Corner Location
- Rate includes utilities, building services and property expenses
- Open Floor Plan Layout
- 11 Private Offices
- 11 Workstations
- 2 Entrances to suite.
- Fully Built-Out as Standard Office
- Fits 17 - 52 People
- 2 Conference Rooms
- Can be combined with additional space(s) for up to 14,639 SF of adjacent space
Reception Area, 5 Window Offices, 5 Interior Offices, 3 Conference Rooms, 1 Bullpen, Open Area, Kitchen, Break Area, Sink, 1 Rest Room, Work Area, File Or Storage Area, Corner Location
- Rate includes utilities, building services and property expenses
- Mostly Open Floor Plan Layout
- 10 Private Offices
- 10 Workstations
- Kitchen
- 2 Entrances
- Fully Built-Out as Standard Office
- Fits 21 - 66 People
- 3 Conference Rooms
- Can be combined with additional space(s) for up to 14,639 SF of adjacent space
- Private Restrooms
Reception Area, 5 Window Offices, 5 Interior Offices, 3 Conference Rooms, 1 Bullpen, Open Area, Kitchen, Break Area, Sink, 1 Rest Room, Work Area, File Or Storage Area, Corner Location.
- Rate includes utilities, building services and property expenses
- Mostly Open Floor Plan Layout
- 10 Private Offices
- 10 Workstations
- Fully Built-Out as Standard Office
- Fits 4 - 11 People
- 3 Conference Rooms
- 2 Entrances
Reception Area, 2 Interior Offices, 1 Bullpen, Large Open Area.
- Rate includes utilities, building services and property expenses
- Open Floor Plan Layout
- 2 Private Offices
- Can be combined with additional space(s) for up to 4,540 SF of adjacent space
- Fully Built-Out as Standard Office
- Fits 8 - 23 People
- 8 Workstations
- Large space
Reception Area, 1 Window Office, 1 Interior Office, Open Area, File Or Storage Area
- Rate includes utilities, building services and property expenses
- Open Floor Plan Layout
- 2 Private Offices
- Can be combined with additional space(s) for up to 4,540 SF of adjacent space
- Fully Built-Out as Standard Office
- Fits 5 - 14 People
- 5 Workstations
Reception Area, 11 Window Offices, 3 Interior Offices, 3 Conference Rooms, 1 Bullpen, Kitchen, Break Area, Sink, 3 Entrances
- Rate includes utilities, building services and property expenses
- Mostly Open Floor Plan Layout
- 11 Private Offices
- 14 Workstations
- Partially Built-Out as Standard Office
- Fits 17 - 52 People
- 3 Conference Rooms
Reception Area, 2 Window Offices, 1 Bullpen
- Rate includes utilities, building services and property expenses
- Mostly Open Floor Plan Layout
- 2 Private Offices
- Reception Area
- Partially Built-Out as Standard Office
- Fits 2 - 7 People
- 2 Workstations
Reception Area, 4 Window Offices, 2 Interior Offices, 1 Bullpen, Kitchen, Break Area, Sink
- Rate includes utilities, building services and property expenses
- Mostly Open Floor Plan Layout
- 6 Private Offices
- Partially Built-Out as Standard Office
- Fits 6 - 17 People
- 6 Workstations
Reception Area, 4 Window Offices, 3 Interior Offices, Kitchen, Break Area, Sink
- Rate includes utilities, building services and property expenses
- Fits 5 - 14 People
- 7 Workstations
- Fully Built-Out as Standard Office
- 7 Private Offices
2 Window Offices, Open Area
- Rate includes utilities, building services and property expenses
- Fits 3 - 10 People
- 2 Workstations
- Fully Built-Out as Standard Office
- 2 Private Offices
Reception Area, 3 Window Offices, 1 Interior Office, Break Area, Sink
- Rate includes utilities, building services and property expenses
- Fits 4 - 10 People
- 4 Workstations
- Fully Built-Out as Standard Office
- 2 Private Offices
- Reception Area
| Space | Size | Term | Rental Rate | Space Use | Build-Out | Available |
| 1st Floor, Ste 101 | 6,447 SF | Negotiable | $27.41 CAD/SF/YR $2.28 CAD/SF/MO $176,701 CAD/YR $14,725 CAD/MO | Office | Full Build-Out | 30 Days |
| 1st Floor, Ste 102 | 8,192 SF | 3-5 Years | $27.41 CAD/SF/YR $2.28 CAD/SF/MO $224,528 CAD/YR $18,711 CAD/MO | Office | Full Build-Out | Now |
| 1st Floor, Ste 175 | 1,294 SF | Negotiable | $27.41 CAD/SF/YR $2.28 CAD/SF/MO $35,466 CAD/YR $2,956 CAD/MO | Office | Full Build-Out | 30 Days |
| 2nd Floor, Ste 200 | 2,817 SF | Negotiable | $27.41 CAD/SF/YR $2.28 CAD/SF/MO $77,209 CAD/YR $6,434 CAD/MO | Office | Full Build-Out | Now |
| 2nd Floor, Ste 202 | 1,723 SF | 3-5 Years | $27.41 CAD/SF/YR $2.28 CAD/SF/MO $47,224 CAD/YR $3,935 CAD/MO | Office | Full Build-Out | Now |
| 2nd Floor, Ste 204 | 6,405 SF | 3-5 Years | $27.41 CAD/SF/YR $2.28 CAD/SF/MO $175,550 CAD/YR $14,629 CAD/MO | Office | Partial Build-Out | Now |
| 2nd Floor, Ste 207 | 799 SF | 3-5 Years | $27.41 CAD/SF/YR $2.28 CAD/SF/MO $21,899 CAD/YR $1,825 CAD/MO | Office | Partial Build-Out | Now |
| 2nd Floor, Ste 208 | 2,057 SF | 3-5 Years | $27.41 CAD/SF/YR $2.28 CAD/SF/MO $56,379 CAD/YR $4,698 CAD/MO | Office | Partial Build-Out | Now |
| 2nd Floor, Ste 210 | 1,629 SF | 3-5 Years | $27.41 CAD/SF/YR $2.28 CAD/SF/MO $44,648 CAD/YR $3,721 CAD/MO | Office | Full Build-Out | Now |
| 2nd Floor, Ste 256 | 1,137 SF | 3-5 Years | $27.41 CAD/SF/YR $2.28 CAD/SF/MO $31,163 CAD/YR $2,597 CAD/MO | Office | Full Build-Out | Now |
| 2nd Floor, Ste 260 | 1,247 SF | 3-5 Years | $27.41 CAD/SF/YR $2.28 CAD/SF/MO $34,178 CAD/YR $2,848 CAD/MO | Office | Full Build-Out | Now |
4242 Woodcock Dr - 1st Floor - Ste 101
4242 Woodcock Dr - 1st Floor - Ste 102
4242 Woodcock Dr - 1st Floor - Ste 175
4242 Woodcock Dr - 2nd Floor - Ste 200
4242 Woodcock Dr - 2nd Floor - Ste 202
4242 Woodcock Dr - 2nd Floor - Ste 204
4242 Woodcock Dr - 2nd Floor - Ste 207
4242 Woodcock Dr - 2nd Floor - Ste 208
4242 Woodcock Dr - 2nd Floor - Ste 210
4242 Woodcock Dr - 2nd Floor - Ste 256
4242 Woodcock Dr - 2nd Floor - Ste 260
- Space
- Size
- Term
- Rental Rate
- Space Use
- Build-Out
- Available
Reception Area, 3 Window Offices, 2 Interior Offices, 1 Conference Room, 1 Bullpen
- Rate includes utilities, building services and property expenses
- Fits 5 - 15 People
- 1 Conference Room
- Secure Storage
- Partially Built-Out as Standard Office
- 1 Private Office
- 1 Workstation
Reception Area, 2 Window Offices
- Rate includes utilities, building services and property expenses
- Fits 2 - 5 People
- 2 Workstations
- Fully Built-Out as Standard Office
- 2 Private Offices
- Reception Area
Reception Area, 6 Window Offices, 3 Interior Offices, 1 Conference Room, Kitchen, Break Area, Sink, File Or Storage Area, 2 Closets
- Rate includes utilities, building services and property expenses
- Fits 10 - 30 People
- 1 Conference Room
- Reception Area
- Fully Built-Out as Standard Office
- 6 Private Offices
- 9 Workstations
4 Window Offices, 4 Interior Offices
- Rate includes utilities, building services and property expenses
- Fits 4 - 11 People
- 8 Workstations
- Fully Built-Out as Standard Office
- 8 Private Offices
Reception Area, 1 Window Office, File Or Storage Area, 1 Entrance
- Rate includes utilities, building services and property expenses
- Fits 2 - 5 People
Reception Area, 1 Window Office, File Or Storage Area
- Rate includes utilities, building services and property expenses
- Fits 2 - 5 People
- 1 Workstation
- Secure Storage
- Partially Built-Out as Standard Office
- 1 Private Office
- Reception Area
Reception Area, 1 Window Office, 1 Interior Office
- Rate includes utilities, building services and property expenses
- Fits 2 - 5 People
- 1 Workstation
- Partially Built-Out as Standard Office
- 1 Private Office
- Secure Storage
Reception Area, 1 Window Office
- Rate includes utilities, building services and property expenses
- Fits 2 - 5 People
- 1 Workstation
- Partially Built-Out as Standard Office
- 1 Private Office
- Reception Area
Reception Area, 1 Window Office, File Or Storage Area
- Rate includes utilities, building services and property expenses
- Fits 2 - 6 People
- 1 Workstation
- Partially Built-Out as Standard Office
- 1 Private Office
- Secure Storage
Reception Area, 2 Window Offices
- Rate includes utilities, building services and property expenses
- Fits 2 - 6 People
- 1 Workstation
- Partially Built-Out as Standard Office
- 1 Private Office
- Secure Storage
| Space | Size | Term | Rental Rate | Space Use | Build-Out | Available |
| 1st Floor, Ste 101 | 1,867 SF | 3-5 Years | $27.41 CAD/SF/YR $2.28 CAD/SF/MO $51,171 CAD/YR $4,264 CAD/MO | Office | Partial Build-Out | Now |
| 1st Floor, Ste 110 | 598 SF | 3-5 Years | $27.41 CAD/SF/YR $2.28 CAD/SF/MO $16,390 CAD/YR $1,366 CAD/MO | Office | Full Build-Out | Now |
| 1st Floor, Ste 140 | 3,656 SF | 3-5 Years | $27.41 CAD/SF/YR $2.28 CAD/SF/MO $100,204 CAD/YR $8,350 CAD/MO | Office | Full Build-Out | Now |
| 1st Floor, Ste 155 | 1,270 SF | 3-5 Years | $27.41 CAD/SF/YR $2.28 CAD/SF/MO $34,808 CAD/YR $2,901 CAD/MO | Office | Full Build-Out | Now |
| 2nd Floor, Ste 232 | 552 SF | Negotiable | $27.41 CAD/SF/YR $2.28 CAD/SF/MO $15,129 CAD/YR $1,261 CAD/MO | Office | - | Now |
| 2nd Floor, Ste 240 | 528 SF | 3-5 Years | $27.41 CAD/SF/YR $2.28 CAD/SF/MO $14,472 CAD/YR $1,206 CAD/MO | Office | Partial Build-Out | Now |
| 2nd Floor, Ste 243 | 605 SF | 3-5 Years | $27.41 CAD/SF/YR $2.28 CAD/SF/MO $16,582 CAD/YR $1,382 CAD/MO | Office | Partial Build-Out | Now |
| 2nd Floor, Ste 244 | 508 SF | 3-5 Years | $27.41 CAD/SF/YR $2.28 CAD/SF/MO $13,923 CAD/YR $1,160 CAD/MO | Office | Partial Build-Out | Now |
| 2nd Floor, Ste 260 | 662 SF | 3-5 Years | $27.41 CAD/SF/YR $2.28 CAD/SF/MO $18,144 CAD/YR $1,512 CAD/MO | Office | Partial Build-Out | Now |
| 2nd Floor, Ste 270 | 670 SF | 3-5 Years | $27.41 CAD/SF/YR $2.28 CAD/SF/MO $18,363 CAD/YR $1,530 CAD/MO | Office | Partial Build-Out | Now |
4243 E Piedras Dr - 1st Floor - Ste 101
4243 E Piedras Dr - 1st Floor - Ste 110
4243 E Piedras Dr - 1st Floor - Ste 140
4243 E Piedras Dr - 1st Floor - Ste 155
4243 E Piedras Dr - 2nd Floor - Ste 232
4243 E Piedras Dr - 2nd Floor - Ste 240
4243 E Piedras Dr - 2nd Floor - Ste 243
4243 E Piedras Dr - 2nd Floor - Ste 244
4243 E Piedras Dr - 2nd Floor - Ste 260
4243 E Piedras Dr - 2nd Floor - Ste 270
- Space
- Size
- Term
- Rental Rate
- Space Use
- Build-Out
- Available
Reception Area, 3 Window Offices, 4 Interior Offices, 1 Conference Room, large Open Area, Kitchen, Break Area, Sink, Corner Location, 2 Entrances
- Rate includes utilities, building services and property expenses
- Mostly Open Floor Plan Layout
- 4 Private Offices
- 6 Workstations
- Central Air and Heating
- Fully Built-Out as Standard Office
- Fits 12 - 37 People
- 1 Conference Room
- Can be combined with additional space(s) for up to 32,686 SF of adjacent space
- Kitchen
Reception area, 21 Window offices, 3 interior offices, 2 conference rooms, 2 bullpens, kitchen/break area/sink, work area, closet.
- Rate includes utilities, building services and property expenses
- Fits 71 - 225 People
- 2 Conference Rooms
- Partially Built-Out as Standard Office
- 24 Private Offices
- Can be combined with additional space(s) for up to 32,686 SF of adjacent space
Reception Area, 8 Window Offices, 1 Interior Office, 1 Conference Room, Large Open Area, Corner Location
- Rate includes utilities, building services and property expenses
- Mostly Open Floor Plan Layout
- 4 Private Offices
- 6 Workstations
- Kitchen
- Fully Built-Out as Standard Office
- Fits 44 - 138 People
- 1 Conference Room
- Central Air and Heating
| Space | Size | Term | Rental Rate | Space Use | Build-Out | Available |
| 1st Floor, Ste 105 | 4,601 SF | Negotiable | $27.41 CAD/SF/YR $2.28 CAD/SF/MO $126,105 CAD/YR $10,509 CAD/MO | Office | Full Build-Out | Now |
| 2nd Floor, Ste 200 | 28,085 SF | Negotiable | $27.41 CAD/SF/YR $2.28 CAD/SF/MO $769,759 CAD/YR $64,147 CAD/MO | Office | Partial Build-Out | Now |
| 3rd Floor, Ste 300 | 17,221 SF | Negotiable | $27.41 CAD/SF/YR $2.28 CAD/SF/MO $471,997 CAD/YR $39,333 CAD/MO | Office | Full Build-Out | Now |
4400 NW Loop 410 - 1st Floor - Ste 105
4400 NW Loop 410 - 2nd Floor - Ste 200
4400 NW Loop 410 - 3rd Floor - Ste 300
- Space
- Size
- Term
- Rental Rate
- Space Use
- Build-Out
- Available
Reception Area, 1 Window Office, File Or Storage Area
- Rate includes utilities, building services and property expenses
- Fits 2 - 4 People
- 3 Workstations
- Partially Built-Out as Standard Office
- 3 Private Offices
- Reception Area
Reception Area, 1 Window Office, File Or Storage Area
- Rate includes utilities, building services and property expenses
- Fits 2 - 4 People
- 3 Workstations
- Partially Built-Out as Standard Office
- 3 Private Offices
- Reception Area
Reception Area, 2 Window Offices, 1 Interior Office
- Rate includes utilities, building services and property expenses
- Fits 2 - 7 People
- 3 Workstations
- Partially Built-Out as Standard Office
- 3 Private Offices
- Reception Area
Reception Area, 3 Window Offices, File Or Storage Area
- Rate includes utilities, building services and property expenses
- Fits 3 - 9 People
- 3 Workstations
- Partially Built-Out as Standard Office
- 3 Private Offices
- Reception Area
Reception Area, 1 Window Office
- Rate includes utilities, building services and property expenses
- Fits 2 - 4 People
- 3 Workstations
- Partially Built-Out as Standard Office
- 3 Private Offices
- Reception Area
Reception Area, 1 Window Office, 2 Interior Offices
- Rate includes utilities, building services and property expenses
- Fits 3 - 8 People
- 3 Workstations
- Partially Built-Out as Standard Office
- 3 Private Offices
- Reception Area
Reception Area, 1 Window Office, File Or Storage Area, 1 Entrance
- Rate includes utilities, building services and property expenses
- Fits 2 - 4 People
Reception Area w/waiting area, 2 Window Offices, 1 Interior Office, File Or Storage Area
- Rate includes utilities, building services and property expenses
- Fits 3 - 8 People
- 3 Workstations
- Fully Built-Out as Standard Office
- 3 Private Offices
Reception Area, 1 Interior Office, 1 Bullpen, Break Area, Sink, File Or Storage Area
- Rate includes utilities, building services and property expenses
- Fits 2 - 8 People
- 3 Workstations
- Fully Built-Out as Standard Office
- 3 Private Offices
Reception Area, 1 Window Office, 1 Interior Office, Sink
- Rate includes utilities, building services and property expenses
- Fits 3 - 9 People
- 3 Workstations
- Fully Built-Out as Standard Office
- 3 Private Offices
Reception Area, 1 Window Office, waiting area, work area.
- Rate includes utilities, building services and property expenses
- Mostly Open Floor Plan Layout
- 1 Private Office
- Reception Area
- Fully Built-Out as Standard Office
- Fits 2 - 5 People
- 1 Workstation
Reception Area, 5 Window Offices, 2 Interior Offices, 1 Conference Room, 2 Closets
- Rate includes utilities, building services and property expenses
- Fits 8 - 24 People
- 2 Workstations
- Fully Built-Out as Standard Office
- 2 Private Offices
Reception Area, 2 Window Offices, 1 Interior Office, File Or Storage Area
- Rate includes utilities, building services and property expenses
- Fits 3 - 7 People
- 3 Workstations
- Fully Built-Out as Standard Office
- 3 Private Offices
Reception Area, 1 Window Office, Break Area, Sink, 1 Closets
- Rate includes utilities, building services and property expenses
- Fits 2 - 6 People
- 1 Workstation
- Fully Built-Out as Standard Office
- 3 Private Offices
Reception Area, 1 Window Office, 1 Closets
- Rate includes utilities, building services and property expenses
- Fits 1 - 3 People
- 1 Workstation
- Fully Built-Out as Standard Office
- 3 Private Offices
Reception Area, 2 Window Offices
- Rate includes utilities, building services and property expenses
- Fits 2 - 6 People
- 2 Workstations
- Fully Built-Out as Standard Office
- 2 Private Offices
| Space | Size | Term | Rental Rate | Space Use | Build-Out | Available |
| 1st Floor, Ste 108 | 414 SF | 3-5 Years | $27.41 CAD/SF/YR $2.28 CAD/SF/MO $11,347 CAD/YR $945.58 CAD/MO | Office | Partial Build-Out | Now |
| 1st Floor, Ste 110 | 414 SF | 3-5 Years | $27.41 CAD/SF/YR $2.28 CAD/SF/MO $11,347 CAD/YR $945.58 CAD/MO | Office | Partial Build-Out | Now |
| 1st Floor, Ste 120 | 765-865 SF | 3-5 Years | $27.41 CAD/SF/YR $2.28 CAD/SF/MO $23,708 CAD/YR $1,976 CAD/MO | Office | Partial Build-Out | Now |
| 1st Floor, Ste 132 | 1,039 SF | 3-5 Years | $27.41 CAD/SF/YR $2.28 CAD/SF/MO $28,477 CAD/YR $2,373 CAD/MO | Office | Partial Build-Out | Now |
| 1st Floor, Ste 142 | 417 SF | 3-5 Years | $27.41 CAD/SF/YR $2.28 CAD/SF/MO $11,429 CAD/YR $952.43 CAD/MO | Office | Partial Build-Out | Now |
| 1st Floor, Ste 145 | 881 SF | 3-5 Years | $27.41 CAD/SF/YR $2.28 CAD/SF/MO $24,147 CAD/YR $2,012 CAD/MO | Office | Partial Build-Out | Now |
| 1st Floor, Ste 152 | 402 SF | Negotiable | $27.41 CAD/SF/YR $2.28 CAD/SF/MO $11,018 CAD/YR $918.17 CAD/MO | Office | - | Now |
| 2nd Floor, Ste 212 | 944 SF | 3-5 Years | $27.41 CAD/SF/YR $2.28 CAD/SF/MO $25,873 CAD/YR $2,156 CAD/MO | Office | Full Build-Out | Now |
| 2nd Floor, Ste 213 | 695-944 SF | 3-5 Years | $27.41 CAD/SF/YR $2.28 CAD/SF/MO $25,873 CAD/YR $2,156 CAD/MO | Office | Full Build-Out | Now |
| 2nd Floor, Ste 216 | 1,006 SF | 3-5 Years | $27.41 CAD/SF/YR $2.28 CAD/SF/MO $27,573 CAD/YR $2,298 CAD/MO | Office | Full Build-Out | Now |
| 2nd Floor, Ste 219 | 550 SF | 3-5 Years | $27.41 CAD/SF/YR $2.28 CAD/SF/MO $15,075 CAD/YR $1,256 CAD/MO | Office | Full Build-Out | Now |
| 2nd Floor, Ste 229 | 2,967 SF | 3-5 Years | $27.41 CAD/SF/YR $2.28 CAD/SF/MO $81,320 CAD/YR $6,777 CAD/MO | Office | Full Build-Out | Now |
| 2nd Floor, Ste 232 | 842 SF | 3-5 Years | $27.41 CAD/SF/YR $2.28 CAD/SF/MO $23,078 CAD/YR $1,923 CAD/MO | Office | Full Build-Out | Now |
| 2nd Floor, Ste 264 | 637 SF | 3-5 Years | $27.41 CAD/SF/YR $2.28 CAD/SF/MO $17,459 CAD/YR $1,455 CAD/MO | Office | Full Build-Out | Now |
| 2nd Floor, Ste 266 | 368 SF | 3-5 Years | $27.41 CAD/SF/YR $2.28 CAD/SF/MO $10,086 CAD/YR $840.52 CAD/MO | Office | Full Build-Out | Now |
| 2nd Floor, Ste 270 | 670 SF | 3-5 Years | $27.41 CAD/SF/YR $2.28 CAD/SF/MO $18,363 CAD/YR $1,530 CAD/MO | Office | Full Build-Out | Now |
4414 Centerview - 1st Floor - Ste 108
4414 Centerview - 1st Floor - Ste 110
4414 Centerview - 1st Floor - Ste 120
4414 Centerview - 1st Floor - Ste 132
4414 Centerview - 1st Floor - Ste 142
4414 Centerview - 1st Floor - Ste 145
4414 Centerview - 1st Floor - Ste 152
4414 Centerview - 2nd Floor - Ste 212
4414 Centerview - 2nd Floor - Ste 213
4414 Centerview - 2nd Floor - Ste 216
4414 Centerview - 2nd Floor - Ste 219
4414 Centerview - 2nd Floor - Ste 229
4414 Centerview - 2nd Floor - Ste 232
4414 Centerview - 2nd Floor - Ste 264
4414 Centerview - 2nd Floor - Ste 266
4414 Centerview - 2nd Floor - Ste 270
- Space
- Size
- Term
- Rental Rate
- Space Use
- Build-Out
- Available
Reception Area, 1 Window Office
- Rate includes utilities, building services and property expenses
- Fits 1 - 3 People
- 1 Workstation
- Fully Built-Out as Standard Office
- 1 Private Office
- Reception Area
Reception Area, 6 Window Offices, 2 Interior Offices, 1 Conference Room, Open Area, 1 Closets
- Rate includes utilities, building services and property expenses
- Fits 11 - 35 People
- 1 Conference Room
- Reception Area
- Partially Built-Out as Standard Office
- 8 Private Offices
- 8 Workstations
Reception Area, 18 Window Offices, 5 Interior Offices, Open Area, Break Area, Sink, Work Area, File/Storage Or Server Room, 1 Closets
- Rate includes utilities, building services and property expenses
- Fits 22 - 68 People
- 23 Workstations
- Partially Built-Out as Standard Office
- 18 Private Offices
- Reception Area
Reception Area, 7 Window Offices, 3 Interior Offices, 1 Conference Room, Work Area, File Or Storage Area, 2 Closets
- Rate includes utilities, building services and property expenses
- Fits 10 - 32 People
- 1 Conference Room
- Reception Area
- Partially Built-Out as Standard Office
- 10 Private Offices
- 10 Workstations
| Space | Size | Term | Rental Rate | Space Use | Build-Out | Available |
| 1st Floor, Ste 109 | 362 SF | 3-5 Years | $27.41 CAD/SF/YR $2.28 CAD/SF/MO $9,922 CAD/YR $826.81 CAD/MO | Office | Full Build-Out | Now |
| 1st Floor, Ste 139 | 4,311 SF | 3-5 Years | $27.41 CAD/SF/YR $2.28 CAD/SF/MO $118,157 CAD/YR $9,846 CAD/MO | Office | Partial Build-Out | Now |
| 2nd Floor, Ste 201 | 8,468 SF | 3-5 Years | $27.41 CAD/SF/YR $2.28 CAD/SF/MO $232,093 CAD/YR $19,341 CAD/MO | Office | Partial Build-Out | Now |
| 2nd Floor, Ste 213 | 3,923 SF | 3-5 Years | $27.41 CAD/SF/YR $2.28 CAD/SF/MO $107,522 CAD/YR $8,960 CAD/MO | Office | Partial Build-Out | Now |
4242 E Piedras Dr - 1st Floor - Ste 109
4242 E Piedras Dr - 1st Floor - Ste 139
4242 E Piedras Dr - 2nd Floor - Ste 201
4242 E Piedras Dr - 2nd Floor - Ste 213
- Space
- Size
- Term
- Rental Rate
- Space Use
- Build-Out
- Available
Reception Area, 4 Window Offices, 5 Interior Offices, 1 Conference Room, Open Area, 2 Closets, Corner Location
- Rate includes utilities, building services and property expenses
- Mostly Open Floor Plan Layout
- 10 Private Offices
- Partially Built-Out as Standard Office
- Fits 10 - 30 People
- 1 Conference Room
Reception Area, 6 Window Offices, 2 Interior Offices, Open Area, Kitchen, Break Area, Sink, File Or Storage Area, Corner Location
- Rate includes utilities, building services and property expenses
- Mostly Open Floor Plan Layout
- 8 Private Offices
- Corner Space
- Partially Built-Out as Standard Office
- Fits 15 - 46 People
- 8 Workstations
Reception Area, 16 Window Offices, 8 Interior Offices, 1 Conference Room, Open Area, Kitchen, Break Area, Sink, File Or Storage Area, 4 Closets, Corner Location
- Rate includes utilities, building services and property expenses
- Mostly Open Floor Plan Layout
- 8 Private Offices
- 8 Workstations
- Partially Built-Out as Standard Office
- Fits 47 - 149 People
- 1 Conference Room
- Corner Space
| Space | Size | Term | Rental Rate | Space Use | Build-Out | Available |
| 1st Floor, Ste 136 | 3,666 SF | 3-5 Years | $27.41 CAD/SF/YR $2.28 CAD/SF/MO $100,478 CAD/YR $8,373 CAD/MO | Office | Partial Build-Out | Now |
| 2nd Floor, Ste 210 | 5,714 SF | 3-5 Years | $27.41 CAD/SF/YR $2.28 CAD/SF/MO $156,610 CAD/YR $13,051 CAD/MO | Office | Partial Build-Out | Now |
| 3rd Floor, Ste 301 | 18,526 SF | 3-5 Years | $27.41 CAD/SF/YR $2.28 CAD/SF/MO $507,764 CAD/YR $42,314 CAD/MO | Office | Partial Build-Out | Now |
4440 S Piedras Dr - 1st Floor - Ste 136
4440 S Piedras Dr - 2nd Floor - Ste 210
4440 S Piedras Dr - 3rd Floor - Ste 301
- Space
- Size
- Term
- Rental Rate
- Space Use
- Build-Out
- Available
Reception Area, 1 Window Office, 1 Interior Office, Open Area
- Rate includes utilities, building services and property expenses
- Mostly Open Floor Plan Layout
- 2 Private Offices
- Corner Space
- Fully Built-Out as Standard Office
- Fits 3 - 8 People
- 2 Workstations
Reception Area, 16 Window Offices, 9 Interior Offices, 1 Conference Room, Kitchen, Break Area, Sink, 1 Closets, Corner Location
- Rate includes utilities, building services and property expenses
- Mostly Open Floor Plan Layout
- 16 Private Offices
- 25 Workstations
- Partially Built-Out as Standard Office
- Fits 26 - 81 People
- 1 Conference Room
- 2 standard entrances & 1 extra wide freight entry
Reception Area, 1 Window Office, 4 Interior Offices, Large Open Area, Kitchen, Break Area, Sink, 1 Closets
- Rate includes utilities, building services and property expenses
- Mostly Open Floor Plan Layout
- 5 Private Offices
- Can be combined with additional space(s) for up to 12,190 SF of adjacent space
- Partially Built-Out as Standard Office
- Fits 20 - 61 People
- 5 Workstations
- 2 standard entrances & 1 extra wide freight entry
Corner Location, Large Window Offices.
- Rate includes utilities, building services and property expenses
- Open Floor Plan Layout
- 1 Private Office
- Corner Space
- Partially Built-Out as Standard Office
- Fits 12 - 37 People
- Can be combined with additional space(s) for up to 12,190 SF of adjacent space
- Natural Light
Reception Area, 2 Window Offices, 1 Interior Office, Kitchen, Break Area, Sink, 1 Closets
- Rate includes utilities, building services and property expenses
- Mostly Open Floor Plan Layout
- 1 Private Office
- Kitchen
- Partially Built-Out as Standard Office
- Fits 3 - 7 People
- 2 Workstations
- 2 Entrances
Reception Area, 2 Window Offices, 1 Interior Office, Kitchen, Sink
- Rate includes utilities, building services and property expenses
- Mostly Open Floor Plan Layout
- 3 Private Offices
- Laminate Wood Floors
- Partially Built-Out as Standard Office
- Fits 2 - 6 People
- 2 Workstations
Reception Area, 3 Window Offices, 1 Interior Office, Open Area, Kitchen, Break Area, Sink.
- Rate includes utilities, building services and property expenses
- Mostly Open Floor Plan Layout
- 4 Private Offices
- Corner Location
- Partially Built-Out as Standard Office
- Fits 5 - 16 People
- 4 Workstations
Reception Area, 1 Window Office, Large Open Area
- Rate includes utilities, building services and property expenses
- Mostly Open Floor Plan Layout
- 1 Private Office
- Partially Built-Out as Standard Office
- Fits 7 - 21 People
- Open Floor Plan with unlimited possibilities
Reception Area, 14 Window Offices, 14 Interior Offices, 1 Conference Room, 1 Bullpen, Open Area, Kitchen, Break Area, Bar Area, Sink, Corner Location
- Rate includes utilities, building services and property expenses
- Open Floor Plan Layout
- 28 Private Offices
- Corner Suite
- Partially Built-Out as Standard Office
- Fits 28 - 87 People
- 1 Conference Room
Reception Area, 4 Window Offices, 2 Interior Offices, 1 Conference Room, Kitchen, Break Area, Sink, 2 Closets, Corner Location
- Rate includes utilities, building services and property expenses
- Mostly Open Floor Plan Layout
- 6 Private Offices
- 6 Workstations
- Corner Location
- Fully Built-Out as Standard Office
- Fits 6 - 19 People
- 1 Conference Room
- Can be combined with additional space(s) for up to 4,154 SF of adjacent space
Reception Area, 2 Window Offices, 3 Interior Offices
- Rate includes utilities, building services and property expenses
- Mostly Open Floor Plan Layout
- 1 Private Office
- Kitchen
- Partially Built-Out as Standard Office
- Fits 4 - 11 People
- 4 Workstations
- Extra storage.
Reception Area, 2 Window Offices, 1 Interior Office, Corner Location
- Rate includes utilities, building services and property expenses
- Mostly Open Floor Plan Layout
- 3 Private Offices
- Can be combined with additional space(s) for up to 4,154 SF of adjacent space
- Corner suite
- Partially Built-Out as Standard Office
- Fits 5 - 15 People
- 5 Workstations
- Corner Space
1 Interior Office
- Rate includes utilities, building services and property expenses
- Mostly Open Floor Plan Layout
- 1 Private Office
- Kitchen
- Partially Built-Out as Standard Office
- Fits 1 - 2 People
- 1 Workstation
- Extra storage.
1 Interior Office
- Rate includes utilities, building services and property expenses
- Mostly Open Floor Plan Layout
- 1 Private Office
- Kitchen
- Partially Built-Out as Standard Office
- Fits 1 - 3 People
- 1 Workstation
- Extra storage.
1 Window Office
- Rate includes utilities, building services and property expenses
- Mostly Open Floor Plan Layout
- 1 Private Office
- Kitchen
- Partially Built-Out as Standard Office
- Fits 1 - 3 People
- 1 Workstation
- Extra storage.
1 Interior Office
- Rate includes utilities, building services and property expenses
- Mostly Open Floor Plan Layout
- 1 Private Office
- Kitchen
- Partially Built-Out as Standard Office
- Fits 1 - 4 People
- 1 Workstation
- Extra storage.
1 Window Office
- Rate includes utilities, building services and property expenses
- Mostly Open Floor Plan Layout
- 1 Private Office
- Kitchen
- Partially Built-Out as Standard Office
- Fits 1 - 3 People
- 1 Workstation
- Extra storage.
1 Interior Office
- Rate includes utilities, building services and property expenses
- Mostly Open Floor Plan Layout
- 1 Private Office
- Kitchen
- Partially Built-Out as Standard Office
- Fits 1 - 3 People
- 1 Workstation
- Extra storage.
1 Interior Office
- Rate includes utilities, building services and property expenses
- Mostly Open Floor Plan Layout
- 1 Private Office
- Kitchen
- Partially Built-Out as Standard Office
- Fits 1 - 3 People
- 1 Workstation
- Extra storage.
1 Window Office
- Rate includes utilities, building services and property expenses
- Mostly Open Floor Plan Layout
- 1 Private Office
- Kitchen
- Partially Built-Out as Standard Office
- Fits 1 - 2 People
- 1 Workstation
- Extra storage.
Reception Area, 1 Window Office, Open Area, Kitchen, Break Area, Sink, File Or Storage Area
- Rate includes utilities, building services and property expenses
- Mostly Open Floor Plan Layout
- 1 Private Office
- Kitchen
- Partially Built-Out as Standard Office
- Fits 1 - 3 People
- 1 Workstation
- Extra storage.
1 Window Office
- Rate includes utilities, building services and property expenses
- Mostly Open Floor Plan Layout
- 1 Private Office
- Kitchen
- Partially Built-Out as Standard Office
- Fits 1 - 3 People
- 1 Workstation
- Extra storage.
1 Interior Office
- Rate includes utilities, building services and property expenses
- Mostly Open Floor Plan Layout
- 1 Private Office
- Kitchen
- Partially Built-Out as Standard Office
- Fits 1 - 3 People
- 1 Workstation
- Extra storage.
1 Interior Office
- Rate includes utilities, building services and property expenses
- Mostly Open Floor Plan Layout
- 1 Private Office
- Kitchen
- Partially Built-Out as Standard Office
- Fits 1 - 3 People
- 1 Workstation
- Extra storage.
1 Window Office
- Rate includes utilities, building services and property expenses
- Mostly Open Floor Plan Layout
- 1 Private Office
- Kitchen
- Partially Built-Out as Standard Office
- Fits 1 - 3 People
- 1 Workstation
- Extra storage.
1 Interior Office
- Rate includes utilities, building services and property expenses
- Mostly Open Floor Plan Layout
- 1 Private Office
- Kitchen
- Partially Built-Out as Standard Office
- Fits 1 - 3 People
- 1 Workstation
- Extra storage.
1 Window Office
- Rate includes utilities, building services and property expenses
- Mostly Open Floor Plan Layout
- 1 Private Office
- Kitchen
- Partially Built-Out as Standard Office
- Fits 1 - 3 People
- 1 Workstation
- Extra storage.
1 Interior Office
- Rate includes utilities, building services and property expenses
- Mostly Open Floor Plan Layout
- 1 Private Office
- Kitchen
- Partially Built-Out as Standard Office
- Fits 1 - 3 People
- 1 Workstation
- Extra storage.
1 Window Office
- Rate includes utilities, building services and property expenses
- Mostly Open Floor Plan Layout
- 1 Private Office
- Kitchen
- Partially Built-Out as Standard Office
- Fits 1 - 3 People
- 1 Workstation
- Extra storage.
1 Window Office
- Rate includes utilities, building services and property expenses
- Mostly Open Floor Plan Layout
- 1 Private Office
- Kitchen
- Partially Built-Out as Standard Office
- Fits 1 - 3 People
- 1 Workstation
- Extra storage.
1 Large Window Office
- Rate includes utilities, building services and property expenses
- Mostly Open Floor Plan Layout
- 1 Private Office
- Extra storage.
- Partially Built-Out as Standard Office
- Fits 4 - 10 People
- Kitchen
1 Large Window Office
- Rate includes utilities, building services and property expenses
- Mostly Open Floor Plan Layout
- 1 Private Office
- Kitchen
- Partially Built-Out as Standard Office
- Fits 2 - 7 People
- 2 Workstations
- Extra storage.
1 Large Window Office
- Rate includes utilities, building services and property expenses
- Mostly Open Floor Plan Layout
- 1 Private Office
- Kitchen
- Partially Built-Out as Standard Office
- Fits 5 - 15 People
- 4 Workstations
- Extra storage.
1 Interior Office
- Rate includes utilities, building services and property expenses
- Mostly Open Floor Plan Layout
- 1 Private Office
- Kitchen
- Partially Built-Out as Standard Office
- Fits 1 - 3 People
- 1 Workstation
- Extra storage.
Reception Area, 1 Large Window Office
- Rate includes utilities, building services and property expenses
- Mostly Open Floor Plan Layout
- 1 Private Office
- Kitchen
- Partially Built-Out as Standard Office
- Fits 4 - 10 People
- 4 Workstations
- Extra storage.
1 Window Office
- Rate includes utilities, building services and property expenses
- Mostly Open Floor Plan Layout
- 1 Private Office
- Kitchen
- Partially Built-Out as Standard Office
- Fits 5 - 16 People
- 4 Workstations
- Extra storage.
| Space | Size | Term | Rental Rate | Space Use | Build-Out | Available |
| 1st Floor, Ste A111 | 901 SF | 3-5 Years | $27.41 CAD/SF/YR $2.28 CAD/SF/MO $24,695 CAD/YR $2,058 CAD/MO | Office | Full Build-Out | Now |
| 1st Floor, Ste B100 | 10,007 SF | 3-5 Years | $27.41 CAD/SF/YR $2.28 CAD/SF/MO $274,274 CAD/YR $22,856 CAD/MO | Office | Partial Build-Out | Now |
| 1st Floor, Ste C100 | 7,606 SF | 3-5 Years | $27.41 CAD/SF/YR $2.28 CAD/SF/MO $208,467 CAD/YR $17,372 CAD/MO | Office | Partial Build-Out | Now |
| 1st Floor, Ste C106 | 4,584 SF | 3-5 Years | $27.41 CAD/SF/YR $2.28 CAD/SF/MO $125,639 CAD/YR $10,470 CAD/MO | Office | Partial Build-Out | Now |
| 1st Floor, Ste C110 | 874 SF | 3-5 Years | $27.41 CAD/SF/YR $2.28 CAD/SF/MO $23,955 CAD/YR $1,996 CAD/MO | Office | Partial Build-Out | Now |
| 1st Floor, Ste C115 | 669 SF | 3-5 Years | $27.41 CAD/SF/YR $2.28 CAD/SF/MO $18,336 CAD/YR $1,528 CAD/MO | Office | Partial Build-Out | Now |
| 1st Floor, Ste C130 | 1,938 SF | 3-5 Years | $27.41 CAD/SF/YR $2.28 CAD/SF/MO $53,117 CAD/YR $4,426 CAD/MO | Office | Partial Build-Out | Now |
| 2nd Floor, Ste A200 | 2,572 SF | 3-5 Years | $27.41 CAD/SF/YR $2.28 CAD/SF/MO $70,494 CAD/YR $5,874 CAD/MO | Office | Partial Build-Out | Now |
| 2nd Floor, Ste B202 | 10,823 SF | 3-5 Years | $27.41 CAD/SF/YR $2.28 CAD/SF/MO $296,639 CAD/YR $24,720 CAD/MO | Office | Partial Build-Out | Now |
| 2nd Floor, Ste B205 | 2,288 SF | 3 Years | $27.41 CAD/SF/YR $2.28 CAD/SF/MO $62,710 CAD/YR $5,226 CAD/MO | Office | Full Build-Out | Now |
| 2nd Floor, Ste B207 | 1,266 SF | Negotiable | $27.41 CAD/SF/YR $2.28 CAD/SF/MO $34,699 CAD/YR $2,892 CAD/MO | Office | Partial Build-Out | Now |
| 2nd Floor, Ste B208 | 1,866 SF | 3-5 Years | $27.41 CAD/SF/YR $2.28 CAD/SF/MO $51,144 CAD/YR $4,262 CAD/MO | Office | Partial Build-Out | Now |
| 2nd Floor, Ste C201 | 202 SF | 3-5 Years | $27.41 CAD/SF/YR $2.28 CAD/SF/MO $5,536 CAD/YR $461.37 CAD/MO | Office | Partial Build-Out | Now |
| 2nd Floor, Ste C209 | 362 SF | 3-5 Years | $27.41 CAD/SF/YR $2.28 CAD/SF/MO $9,922 CAD/YR $826.81 CAD/MO | Office | Partial Build-Out | Now |
| 2nd Floor, Ste C210 | 360 SF | 3-5 Years | $27.41 CAD/SF/YR $2.28 CAD/SF/MO $9,867 CAD/YR $822.25 CAD/MO | Office | Partial Build-Out | Now |
| 2nd Floor, Ste C211 | 377 SF | 3-5 Years | $27.41 CAD/SF/YR $2.28 CAD/SF/MO $10,333 CAD/YR $861.07 CAD/MO | Office | Partial Build-Out | Now |
| 2nd Floor, Ste C212 | 267 SF | 3-5 Years | $27.41 CAD/SF/YR $2.28 CAD/SF/MO $7,318 CAD/YR $609.83 CAD/MO | Office | Partial Build-Out | Now |
| 2nd Floor, Ste C213 | 327 SF | 3-5 Years | $27.41 CAD/SF/YR $2.28 CAD/SF/MO $8,962 CAD/YR $746.87 CAD/MO | Office | Partial Build-Out | Now |
| 2nd Floor, Ste C215 | 351 SF | 3-5 Years | $27.41 CAD/SF/YR $2.28 CAD/SF/MO $9,620 CAD/YR $801.69 CAD/MO | Office | Partial Build-Out | Now |
| 2nd Floor, Ste C216 | 249 SF | 3-5 Years | $27.41 CAD/SF/YR $2.28 CAD/SF/MO $6,825 CAD/YR $568.72 CAD/MO | Office | Partial Build-Out | Now |
| 2nd Floor, Ste C217 | 351 SF | 3-5 Years | $27.41 CAD/SF/YR $2.28 CAD/SF/MO $9,620 CAD/YR $801.69 CAD/MO | Office | Partial Build-Out | Now |
| 2nd Floor, Ste C218 | 267 SF | 3-5 Years | $27.41 CAD/SF/YR $2.28 CAD/SF/MO $7,318 CAD/YR $609.83 CAD/MO | Office | Partial Build-Out | Now |
| 2nd Floor, Ste C219 | 351 SF | 3-5 Years | $27.41 CAD/SF/YR $2.28 CAD/SF/MO $9,620 CAD/YR $801.69 CAD/MO | Office | Partial Build-Out | Now |
| 2nd Floor, Ste C221 | 351 SF | 3-5 Years | $27.41 CAD/SF/YR $2.28 CAD/SF/MO $9,620 CAD/YR $801.69 CAD/MO | Office | Partial Build-Out | Now |
| 2nd Floor, Ste C222 | 262 SF | 3-5 Years | $27.41 CAD/SF/YR $2.28 CAD/SF/MO $7,181 CAD/YR $598.41 CAD/MO | Office | Partial Build-Out | Now |
| 2nd Floor, Ste C223 | 343 SF | 3-5 Years | $27.41 CAD/SF/YR $2.28 CAD/SF/MO $9,401 CAD/YR $783.42 CAD/MO | Office | Partial Build-Out | Now |
| 2nd Floor, Ste C226 | 317 SF | 3-5 Years | $27.41 CAD/SF/YR $2.28 CAD/SF/MO $8,688 CAD/YR $724.03 CAD/MO | Office | Partial Build-Out | Now |
| 2nd Floor, Ste C228 | 323 SF | 3-5 Years | $27.41 CAD/SF/YR $2.28 CAD/SF/MO $8,853 CAD/YR $737.74 CAD/MO | Office | Partial Build-Out | Now |
| 2nd Floor, Ste C232 | 364 SF | 3-5 Years | $27.41 CAD/SF/YR $2.28 CAD/SF/MO $9,977 CAD/YR $831.38 CAD/MO | Office | Partial Build-Out | Now |
| 2nd Floor, Ste C234 | 371 SF | 3-5 Years | $27.41 CAD/SF/YR $2.28 CAD/SF/MO $10,168 CAD/YR $847.37 CAD/MO | Office | Partial Build-Out | Now |
| 2nd Floor, Ste C236 | 1,250 SF | 3-5 Years | $27.41 CAD/SF/YR $2.28 CAD/SF/MO $34,260 CAD/YR $2,855 CAD/MO | Office | Partial Build-Out | Now |
| 2nd Floor, Ste C238 | 765 SF | 3-5 Years | $27.41 CAD/SF/YR $2.28 CAD/SF/MO $20,967 CAD/YR $1,747 CAD/MO | Office | Partial Build-Out | Now |
| 2nd Floor, Ste C240 | 1,839 SF | Negotiable | $27.41 CAD/SF/YR $2.28 CAD/SF/MO $50,404 CAD/YR $4,200 CAD/MO | Office | Partial Build-Out | Now |
| 2nd Floor, Ste C242 | 254 SF | Negotiable | $27.41 CAD/SF/YR $2.28 CAD/SF/MO $6,962 CAD/YR $580.14 CAD/MO | Office | Partial Build-Out | Now |
| 2nd Floor, Ste C244 | 1,213 SF | Negotiable | $27.41 CAD/SF/YR $2.28 CAD/SF/MO $33,246 CAD/YR $2,771 CAD/MO | Office | Partial Build-Out | Now |
| 2nd Floor, Ste C246 | 1,918 SF | Negotiable | $27.41 CAD/SF/YR $2.28 CAD/SF/MO $52,569 CAD/YR $4,381 CAD/MO | Office | Partial Build-Out | Now |
4241 Woodcock Dr - 1st Floor - Ste A111
4241 Woodcock Dr - 1st Floor - Ste B100
4241 Woodcock Dr - 1st Floor - Ste C100
4241 Woodcock Dr - 1st Floor - Ste C106
4241 Woodcock Dr - 1st Floor - Ste C110
4241 Woodcock Dr - 1st Floor - Ste C115
4241 Woodcock Dr - 1st Floor - Ste C130
4241 Woodcock Dr - 2nd Floor - Ste A200
4241 Woodcock Dr - 2nd Floor - Ste B202
4241 Woodcock Dr - 2nd Floor - Ste B205
4241 Woodcock Dr - 2nd Floor - Ste B207
4241 Woodcock Dr - 2nd Floor - Ste B208
4241 Woodcock Dr - 2nd Floor - Ste C201
4241 Woodcock Dr - 2nd Floor - Ste C209
4241 Woodcock Dr - 2nd Floor - Ste C210
4241 Woodcock Dr - 2nd Floor - Ste C211
4241 Woodcock Dr - 2nd Floor - Ste C212
4241 Woodcock Dr - 2nd Floor - Ste C213
4241 Woodcock Dr - 2nd Floor - Ste C215
4241 Woodcock Dr - 2nd Floor - Ste C216
4241 Woodcock Dr - 2nd Floor - Ste C217
4241 Woodcock Dr - 2nd Floor - Ste C218
4241 Woodcock Dr - 2nd Floor - Ste C219
4241 Woodcock Dr - 2nd Floor - Ste C221
4241 Woodcock Dr - 2nd Floor - Ste C222
4241 Woodcock Dr - 2nd Floor - Ste C223
4241 Woodcock Dr - 2nd Floor - Ste C226
4241 Woodcock Dr - 2nd Floor - Ste C228
4241 Woodcock Dr - 2nd Floor - Ste C232
4241 Woodcock Dr - 2nd Floor - Ste C234
4241 Woodcock Dr - 2nd Floor - Ste C236
4241 Woodcock Dr - 2nd Floor - Ste C238
4241 Woodcock Dr - 2nd Floor - Ste C240
4241 Woodcock Dr - 2nd Floor - Ste C242
4241 Woodcock Dr - 2nd Floor - Ste C244
4241 Woodcock Dr - 2nd Floor - Ste C246
4241 E Piedras Dr - 1st Floor - Ste 100
| Size | 5,946 SF |
| Term | 3-5 Years |
| Rental Rate | $27.41 CAD/SF/YR |
| Space Use | Office |
| Build-Out | Partial Build-Out |
| Available | Now |
Reception Area, 11 Window Offices, 1 Interior Office, 1 Bullpen, DESK SPACE, Break Area, Sink, Work Area, File Or Storage Area, 1 Closets, Corner Location
- Rate includes utilities, building services and property expenses
- Partially Built-Out as Standard Office
- Open Floor Plan Layout
- Fits 15 - 48 People
- 11 Private Offices
- 12 Workstations
4241 E Piedras Dr - 1st Floor - Ste 115
| Size | 3,050 SF |
| Term | 3-5 Years |
| Rental Rate | $27.41 CAD/SF/YR |
| Space Use | Office |
| Build-Out | Partial Build-Out |
| Available | Now |
Reception Area, 1 Window Office, Large Open Area, Break Area, Sink
- Rate includes utilities, building services and property expenses
- Partially Built-Out as Standard Office
- Open Floor Plan Layout
- Fits 8 - 25 People
- 1 Private Office
- 1 Workstation
4241 E Piedras Dr - 1st Floor - Ste 116
| Size | 784 SF |
| Term | 3-5 Years |
| Rental Rate | $27.41 CAD/SF/YR |
| Space Use | Office |
| Build-Out | Full Build-Out |
| Available | Now |
Reception Area, 3 Interior Offices, Cubical Space, Work Area, File Or Storage Area
- Rate includes utilities, building services and property expenses
- Fully Built-Out as Standard Office
- Mostly Open Floor Plan Layout
- Fits 2 - 7 People
- 3 Private Offices
- 3 Workstations
4241 E Piedras Dr - 1st Floor - Ste 160
| Size | 543 SF |
| Term | 3-5 Years |
| Rental Rate | $27.41 CAD/SF/YR |
| Space Use | Office |
| Build-Out | Partial Build-Out |
| Available | Now |
Reception Area, 1 Window Office, File Or Storage Area
- Rate includes utilities, building services and property expenses
- Partially Built-Out as Standard Office
- Mostly Open Floor Plan Layout
- Fits 2 - 5 People
- 1 Private Office
- 1 Workstation
- Reception Area
4241 E Piedras Dr - 1st Floor - Ste 165
| Size | 2,945 SF |
| Term | 3-5 Years |
| Rental Rate | $27.41 CAD/SF/YR |
| Space Use | Office |
| Build-Out | Full Build-Out |
| Available | Now |
Reception Area, 3 Interior Offices, Large Open Area, Sink, File Or Storage Area
- Rate includes utilities, building services and property expenses
- Fully Built-Out as Standard Office
- Mostly Open Floor Plan Layout
- Fits 8 - 24 People
- 3 Private Offices
4241 E Piedras Dr - 1st Floor - Ste 170
| Size | 621 SF |
| Term | 3-5 Years |
| Rental Rate | $27.41 CAD/SF/YR |
| Space Use | Office |
| Build-Out | Full Build-Out |
| Available | Now |
Reception Area, 1 Window Office, File Or Storage Area
- Rate includes utilities, building services and property expenses
- Fully Built-Out as Standard Office
- Fits 2 - 5 People
- 3 Private Offices
- 3 Workstations
4241 E Piedras Dr - 1st Floor - Ste 171
| Size | 2,176 SF |
| Term | 3-5 Years |
| Rental Rate | $27.41 CAD/SF/YR |
| Space Use | Office |
| Build-Out | Full Build-Out |
| Available | Now |
Reception Area, 3 Window Offices, 1 interior offices, Reception area, Break room
- Rate includes utilities, building services and property expenses
- Fully Built-Out as Standard Office
- Fits 6 - 18 People
- 3 Private Offices
- 3 Workstations
4241 E Piedras Dr - 1st Floor - Ste 173
| Size | 995 SF |
| Term | 3-5 Years |
| Rental Rate | $27.41 CAD/SF/YR |
| Space Use | Office |
| Build-Out | Full Build-Out |
| Available | Now |
Reception Area, 1 Window Office, 1 Interior Office, Break Area, Sink
- Rate includes utilities, building services and property expenses
- Fully Built-Out as Standard Office
- Fits 3 - 8 People
- 2 Private Offices
- 2 Workstations
4241 E Piedras Dr - 1st Floor - Ste 175
| Size | 995 SF |
| Term | 3-5 Years |
| Rental Rate | $27.41 CAD/SF/YR |
| Space Use | Office |
| Build-Out | Full Build-Out |
| Available | Now |
Reception Area, 1 Window Office, 1 Interior Office, Break Area, Sink
- Rate includes utilities, building services and property expenses
- Fully Built-Out as Standard Office
- Fits 3 - 8 People
- 2 Private Offices
- 2 Workstations
4241 E Piedras Dr - 1st Floor - Ste 181
| Size | 1,038 SF |
| Term | Negotiable |
| Rental Rate | $27.41 CAD/SF/YR |
| Space Use | Office |
| Build-Out | Partial Build-Out |
| Available | Now |
Reception Area, 2 Window Offices, 1 Interior Office, File Or Storage Area
- Rate includes utilities, building services and property expenses
- Partially Built-Out as Standard Office
- Fits 3 - 9 People
- 3 Private Offices
- 3 Workstations
- Reception Area
4241 E Piedras Dr - 2nd Floor - Ste 200
| Size | 1,669 SF |
| Term | Negotiable |
| Rental Rate | $27.41 CAD/SF/YR |
| Space Use | Office |
| Build-Out | - |
| Available | Now |
Reception Area, 2 Window Offices, 2 Interior Offices, 1 Conference Room, Break Area, Sink, File Or Storage Area, 2 Closets, 1 Entrance
- Rate includes utilities, building services and property expenses
- Fits 5 - 14 People
4241 E Piedras Dr - 2nd Floor - Ste 240
| Size | 593 SF |
| Term | Negotiable |
| Rental Rate | $27.41 CAD/SF/YR |
| Space Use | Office |
| Build-Out | Full Build-Out |
| Available | Now |
Reception Area, 1 Window Office, File Or Storage Area
- Rate includes utilities, building services and property expenses
- Fully Built-Out as Standard Office
- Fits 2 - 5 People
- 1 Private Office
- 1 Workstation
- Secure Storage
4241 E Piedras Dr - 2nd Floor - Ste 246
| Size | 689 SF |
| Term | Negotiable |
| Rental Rate | $27.41 CAD/SF/YR |
| Space Use | Office |
| Build-Out | Full Build-Out |
| Available | 30 Days |
Reception Area, 1 Window Office, 1 Interior Office, File Or Storage Area
- Rate includes utilities, building services and property expenses
- Fully Built-Out as Standard Office
- Fits 2 - 6 People
- 2 Private Offices
- 2 Workstations
4241 E Piedras Dr - 2nd Floor - Ste 249
| Size | 548 SF |
| Term | Negotiable |
| Rental Rate | $27.41 CAD/SF/YR |
| Space Use | Office |
| Build-Out | Full Build-Out |
| Available | 30 Days |
Reception Area, 1 Window Office, File Or Storage Area
- Rate includes utilities, building services and property expenses
- Fully Built-Out as Standard Office
- Fits 2 - 5 People
- 2 Private Offices
- 2 Workstations
4241 E Piedras Dr - 2nd Floor - Ste 250
| Size | 1,122 SF |
| Term | 3-5 Years |
| Rental Rate | $27.41 CAD/SF/YR |
| Space Use | Office |
| Build-Out | Partial Build-Out |
| Available | Now |
Reception Area, 1 Window Office, Kitchen, Break Area, Sink, Work Area
- Rate includes utilities, building services and property expenses
- Partially Built-Out as Standard Office
- Fits 3 - 9 People
- 1 Private Office
- 1 Workstation
- Kitchen
4241 E Piedras Dr - 2nd Floor - Ste 253
| Size | 1,757 SF |
| Term | 3-5 Years |
| Rental Rate | $27.41 CAD/SF/YR |
| Space Use | Office |
| Build-Out | Full Build-Out |
| Available | Now |
Reception Area, 2 Window Offices, 1 Interior Office, Work Area
- Rate includes utilities, building services and property expenses
- Fully Built-Out as Standard Office
- Fits 5 - 15 People
- 3 Private Offices
- 3 Workstations
4203 Woodcock Dr - 1st Floor - Ste 101
| Size | 3,760 SF |
| Term | 3-5 Years |
| Rental Rate | $27.41 CAD/SF/YR |
| Space Use | Office |
| Build-Out | Partial Build-Out |
| Available | Now |
Reception Area, 3 Window Offices, 1 Conference Room, Large Open Area, Kitchen, Break Area, Sink, 2 Closets, 2 Entrances
- Rate includes utilities, building services and property expenses
- Partially Built-Out as Standard Office
- Open Floor Plan Layout
- Fits 10 - 31 People
- 4 Private Offices
- 1 Conference Room
- 4 Workstations
- Can be combined with additional space(s) for up to 18,327 SF of adjacent space
- Kitchen
4203 Woodcock Dr - 1st Floor - Ste 112
| Size | 1,937 SF |
| Term | 3-5 Years |
| Rental Rate | $27.41 CAD/SF/YR |
| Space Use | Office |
| Build-Out | Partial Build-Out |
| Available | Now |
Reception Area, 2 Window Offices, 2 Interior Offices, Open Area, Sink
- Rate includes utilities, building services and property expenses
- Partially Built-Out as Standard Office
- Open Floor Plan Layout
- Fits 5 - 16 People
- 4 Private Offices
- 4 Workstations
- Can be combined with additional space(s) for up to 18,327 SF of adjacent space
4203 Woodcock Dr - 1st Floor - Ste 120
| Size | 8,024 SF |
| Term | 3-5 Years |
| Rental Rate | $27.41 CAD/SF/YR |
| Space Use | Office |
| Build-Out | Partial Build-Out |
| Available | Now |
Reception Area, 10 Window Offices, 9 Interior Offices, 1 Conference Room, 1 Bullpen, Open Area, Break Area, Sink, Work Area, File Or Storage Area, Corner Location
- Rate includes utilities, building services and property expenses
- Partially Built-Out as Standard Office
- Open Floor Plan Layout
- Fits 21 - 65 People
- 19 Private Offices
- 1 Conference Room
- 1 Workstation
- Can be combined with additional space(s) for up to 18,327 SF of adjacent space
4203 Woodcock Dr - 2nd Floor - Ste 204
| Size | 1,820 SF |
| Term | 3-5 Years |
| Rental Rate | $27.41 CAD/SF/YR |
| Space Use | Office |
| Build-Out | Partial Build-Out |
| Available | Now |
Reception Area, 4 Window Offices, 2 Interior Offices, Break Area, Sink
- Rate includes utilities, building services and property expenses
- Partially Built-Out as Professional Services Office
- Open Floor Plan Layout
- Fits 5 - 15 People
- 6 Private Offices
- 6 Workstations
- Can be combined with additional space(s) for up to 18,327 SF of adjacent space
4203 Woodcock Dr - 2nd Floor - Ste 206
| Size | 1,042 SF |
| Term | 3-5 Years |
| Rental Rate | $27.41 CAD/SF/YR |
| Space Use | Office |
| Build-Out | Partial Build-Out |
| Available | Now |
Reception/waiting Area, 2 Window Offices, 1 Interior Office, Breakroom w/sink, 1 Closets
- Rate includes utilities, building services and property expenses
- Partially Built-Out as Standard Office
- Open Floor Plan Layout
- Fits 3 - 9 People
- 3 Private Offices
- 3 Workstations
- Can be combined with additional space(s) for up to 18,327 SF of adjacent space
- Private Restrooms
4203 Woodcock Dr - 2nd Floor - Ste 209
| Size | 544 SF |
| Term | 3-5 Years |
| Rental Rate | $27.41 CAD/SF/YR |
| Space Use | Office |
| Build-Out | Partial Build-Out |
| Available | Now |
Reception Area, 1 Window Office, 1 Interior Office
- Rate includes utilities, building services and property expenses
- Partially Built-Out as Standard Office
- Open Floor Plan Layout
- Fits 2 - 5 People
- 2 Private Offices
- 2 Workstations
- Can be combined with additional space(s) for up to 18,327 SF of adjacent space
4203 Woodcock Dr - 2nd Floor - Ste 210
| Size | 757 SF |
| Term | 3-5 Years |
| Rental Rate | $27.41 CAD/SF/YR |
| Space Use | Office |
| Build-Out | Partial Build-Out |
| Available | Now |
Reception Area, 2 Window Offices, 2 Interior Offices
- Rate includes utilities, building services and property expenses
- Partially Built-Out as Standard Office
- Mostly Open Floor Plan Layout
- Fits 2 - 7 People
- 4 Private Offices
- 4 Workstations
- Can be combined with additional space(s) for up to 18,327 SF of adjacent space
4203 Woodcock Dr - 2nd Floor - Ste 216
| Size | 2,702 SF |
| Term | Negotiable |
| Rental Rate | $27.41 CAD/SF/YR |
| Space Use | Office |
| Build-Out | Partial Build-Out |
| Available | Now |
Reception Area, 6 Window Offices, 4 Interior Offices, Closet.
- Rate includes utilities, building services and property expenses
- Partially Built-Out as Standard Office
- Fits 7 - 22 People
- 10 Private Offices
- 10 Workstations
4203 Woodcock Dr - 2nd Floor - Ste 220
| Size | 443 SF |
| Term | 3-5 Years |
| Rental Rate | $27.41 CAD/SF/YR |
| Space Use | Office |
| Build-Out | Partial Build-Out |
| Available | Now |
Reception Area, 1 Window Office, File Or Storage Area, 1 Closets
- Rate includes utilities, building services and property expenses
- Partially Built-Out as Standard Office
- Fits 2 - 4 People
- 1 Private Office
- 2 Workstations
- Can be combined with additional space(s) for up to 18,327 SF of adjacent space
- Reception Area
4203 Woodcock Dr - 2nd Floor - Ste 255
| Size | 1,472 SF |
| Term | 3 Years |
| Rental Rate | $27.41 CAD/SF/YR |
| Space Use | Office |
| Build-Out | Full Build-Out |
| Available | Now |
Large Open Area
- Rate includes utilities, building services and property expenses
- Fully Built-Out as Standard Office
- Open Floor Plan Layout
- Fits 4 - 12 People
- 7 Private Offices
- 7 Workstations
4203 Woodcock Dr - 2nd Floor - Ste 256
| Size | 1,735 SF |
| Term | 3 Years |
| Rental Rate | $27.41 CAD/SF/YR |
| Space Use | Office |
| Build-Out | Full Build-Out |
| Available | Now |
Reception Area, 4 Window Offices, 3 Interior Offices, 1 Closets
- Rate includes utilities, building services and property expenses
- Fully Built-Out as Standard Office
- Fits 5 - 14 People
- 7 Private Offices
- 7 Workstations
4203 Woodcock Dr - 2nd Floor - Ste 261
| Size | 811 SF |
| Term | 3-5 Years |
| Rental Rate | $27.41 CAD/SF/YR |
| Space Use | Office |
| Build-Out | Partial Build-Out |
| Available | Now |
Reception Area, 2 Window Offices, 2 Interior Offices, Kitchen, Sink, File Or Storage Area, 1 Entrance
- Rate includes utilities, building services and property expenses
- Partially Built-Out as Standard Office
- Fits 3 - 7 People
- 4 Private Offices
- 1 Conference Room
- 4 Workstations
4203 Woodcock Dr - 2nd Floor - Ste 263
| Size | 2,053 SF |
| Term | 3-5 Years |
| Rental Rate | $27.41 CAD/SF/YR |
| Space Use | Office |
| Build-Out | Partial Build-Out |
| Available | Now |
Reception Area, 3 Window Offices, 1 Interior Office, 1 Conference Room, Break Area, Sink
- Rate includes utilities, building services and property expenses
- Partially Built-Out as Standard Office
- Fits 6 - 17 People
- 4 Private Offices
- 1 Conference Room
- 4 Workstations
4203 Woodcock Dr - 2nd Floor - Ste 265
| Size | 1,105 SF |
| Term | 3-5 Years |
| Rental Rate | $27.41 CAD/SF/YR |
| Space Use | Office |
| Build-Out | Partial Build-Out |
| Available | Now |
Reception Area, 3 Window Offices, 1 Interior Office, 1 Conference Room, Break Area, Sink
- Rate includes utilities, building services and property expenses
- Partially Built-Out as Standard Office
- Fits 3 - 9 People
- 4 Private Offices
- 1 Conference Room
- 4 Workstations
4100 E Piedras Dr - 1st Floor - Ste 101
| Size | 1,197 SF |
| Term | Negotiable |
| Rental Rate | $27.41 CAD/SF/YR |
| Space Use | Office |
| Build-Out | Partial Build-Out |
| Available | 30 Days |
LEASING AND PROPERTY MANAGERS' OFFICES. Reception Area, 2 Window Offices, 1 Interior Office, File Or Storage Area
- Rate includes utilities, building services and property expenses
- Partially Built-Out as Standard Office
- Fits 3 - 10 People
- 3 Private Offices
- 3 Workstations
- Reception Area
- Secure Storage
4100 E Piedras Dr - 1st Floor - Ste 105
| Size | 3,400 SF |
| Term | Negotiable |
| Rental Rate | $27.41 CAD/SF/YR |
| Space Use | Office |
| Build-Out | Partial Build-Out |
| Available | 30 Days |
Reception Area, 2 Window Offices, 4 Interior Offices, 1 Conference Room, 1 Bullpen, Break Area, Sink, Work Area
- Rate includes utilities, building services and property expenses
- Partially Built-Out as Standard Office
- Fits 9 - 28 People
- 3 Private Offices
- 1 Conference Room
- 6 Workstations
- Reception Area
- Secure Storage
4100 E Piedras Dr - 2nd Floor - Ste 204
| Size | 651 SF |
| Term | 3 Years |
| Rental Rate | $27.41 CAD/SF/YR |
| Space Use | Office |
| Build-Out | Partial Build-Out |
| Available | Now |
Reception Area, 2 Window Offices, File Or Storage Area
- Rate includes utilities, building services and property expenses
- Partially Built-Out as Standard Office
- Fits 2 - 6 People
- 2 Private Offices
- 2 Workstations
- Reception Area
- Secure Storage
4100 E Piedras Dr - 2nd Floor - Ste 230
| Size | 631 SF |
| Term | Negotiable |
| Rental Rate | $27.41 CAD/SF/YR |
| Space Use | Office |
| Build-Out | - |
| Available | Now |
Reception Area, 2 Window Offices, 1 Entrance
- Rate includes utilities, building services and property expenses
- Fits 2 - 6 People
4100 E Piedras Dr - 2nd Floor - Ste 250
| Size | 510 SF |
| Term | 3-5 Years |
| Rental Rate | $27.41 CAD/SF/YR |
| Space Use | Office |
| Build-Out | Full Build-Out |
| Available | Now |
Reception Area, 1 Window Office, 1 Interior Office, 1 Entrance
- Rate includes utilities, building services and property expenses
- Fully Built-Out as Standard Office
- Fits 2 - 5 People
- 1 Private Office
- 1 Workstation
- Reception Area
4100 E Piedras Dr - 2nd Floor - Ste 253
| Size | 1,076 SF |
| Term | Negotiable |
| Rental Rate | $27.41 CAD/SF/YR |
| Space Use | Office |
| Build-Out | Partial Build-Out |
| Available | 30 Days |
Reception Area, 2 Window Offices, 2 Interior Offices
- Rate includes utilities, building services and property expenses
- Partially Built-Out as Standard Office
- Fits 3 - 9 People
- 4 Private Offices
- 4 Workstations
- Reception Area
- Secure Storage
4100 E Piedras Dr - 2nd Floor - Ste 255
| Size | 794 SF |
| Term | Negotiable |
| Rental Rate | $27.41 CAD/SF/YR |
| Space Use | Office |
| Build-Out | Partial Build-Out |
| Available | 30 Days |
Reception Area, 1 Interior Office, 2 Bullpens, 1 Closets
- Rate includes utilities, building services and property expenses
- Partially Built-Out as Standard Office
- Fits 2 - 7 People
- 1 Private Office
- Reception Area
- Secure Storage
4100 E Piedras Dr - 2nd Floor - Ste 262
| Size | 1,588 SF |
| Term | Negotiable |
| Rental Rate | $27.41 CAD/SF/YR |
| Space Use | Office |
| Build-Out | Full Build-Out |
| Available | 30 Days |
Reception Area, 5 Window Offices, 2 Interior Offices, 2 Conference Rooms, File Or Storage Area, 1 Closets
- Rate includes utilities, building services and property expenses
- Fully Built-Out as Standard Office
- Fits 4 - 13 People
- 6 Private Offices
- 2 Conference Rooms
- 7 Workstations
- Reception Area
4100 E Piedras Dr - 2nd Floor - Ste 268
| Size | 492 SF |
| Term | Negotiable |
| Rental Rate | $27.41 CAD/SF/YR |
| Space Use | Office |
| Build-Out | Full Build-Out |
| Available | 30 Days |
Reception Area, 1 Window Office
- Rate includes utilities, building services and property expenses
- Fully Built-Out as Standard Office
- Fits 2 - 4 People
- 1 Private Office
- 1 Workstation
- Reception Area
4100 E Piedras Dr - 2nd Floor - Ste 290
| Size | 546 SF |
| Term | 3-5 Years |
| Rental Rate | $27.41 CAD/SF/YR |
| Space Use | Office |
| Build-Out | Full Build-Out |
| Available | Now |
Reception Area, 1 Window Office, 1 Bullpen, 1 Closets
- Rate includes utilities, building services and property expenses
- Fully Built-Out as Standard Office
- Fits 2 - 5 People
- 1 Private Office
- 1 Workstation
- Reception Area
4242 Woodcock Dr - 1st Floor - Ste 101
| Size | 6,447 SF |
| Term | Negotiable |
| Rental Rate | $27.41 CAD/SF/YR |
| Space Use | Office |
| Build-Out | Full Build-Out |
| Available | 30 Days |
Reception Area, 6 Window Offices, 11 Interior Offices, 2 Conference Rooms, Work Area, 1 Closets, Corner Location
- Rate includes utilities, building services and property expenses
- Fully Built-Out as Standard Office
- Open Floor Plan Layout
- Fits 17 - 52 People
- 11 Private Offices
- 2 Conference Rooms
- 11 Workstations
- Can be combined with additional space(s) for up to 14,639 SF of adjacent space
- 2 Entrances to suite.
4242 Woodcock Dr - 1st Floor - Ste 102
| Size | 8,192 SF |
| Term | 3-5 Years |
| Rental Rate | $27.41 CAD/SF/YR |
| Space Use | Office |
| Build-Out | Full Build-Out |
| Available | Now |
Reception Area, 5 Window Offices, 5 Interior Offices, 3 Conference Rooms, 1 Bullpen, Open Area, Kitchen, Break Area, Sink, 1 Rest Room, Work Area, File Or Storage Area, Corner Location
- Rate includes utilities, building services and property expenses
- Fully Built-Out as Standard Office
- Mostly Open Floor Plan Layout
- Fits 21 - 66 People
- 10 Private Offices
- 3 Conference Rooms
- 10 Workstations
- Can be combined with additional space(s) for up to 14,639 SF of adjacent space
- Kitchen
- Private Restrooms
- 2 Entrances
4242 Woodcock Dr - 1st Floor - Ste 175
| Size | 1,294 SF |
| Term | Negotiable |
| Rental Rate | $27.41 CAD/SF/YR |
| Space Use | Office |
| Build-Out | Full Build-Out |
| Available | 30 Days |
Reception Area, 5 Window Offices, 5 Interior Offices, 3 Conference Rooms, 1 Bullpen, Open Area, Kitchen, Break Area, Sink, 1 Rest Room, Work Area, File Or Storage Area, Corner Location.
- Rate includes utilities, building services and property expenses
- Fully Built-Out as Standard Office
- Mostly Open Floor Plan Layout
- Fits 4 - 11 People
- 10 Private Offices
- 3 Conference Rooms
- 10 Workstations
- 2 Entrances
4242 Woodcock Dr - 2nd Floor - Ste 200
| Size | 2,817 SF |
| Term | Negotiable |
| Rental Rate | $27.41 CAD/SF/YR |
| Space Use | Office |
| Build-Out | Full Build-Out |
| Available | Now |
Reception Area, 2 Interior Offices, 1 Bullpen, Large Open Area.
- Rate includes utilities, building services and property expenses
- Fully Built-Out as Standard Office
- Open Floor Plan Layout
- Fits 8 - 23 People
- 2 Private Offices
- 8 Workstations
- Can be combined with additional space(s) for up to 4,540 SF of adjacent space
- Large space
4242 Woodcock Dr - 2nd Floor - Ste 202
| Size | 1,723 SF |
| Term | 3-5 Years |
| Rental Rate | $27.41 CAD/SF/YR |
| Space Use | Office |
| Build-Out | Full Build-Out |
| Available | Now |
Reception Area, 1 Window Office, 1 Interior Office, Open Area, File Or Storage Area
- Rate includes utilities, building services and property expenses
- Fully Built-Out as Standard Office
- Open Floor Plan Layout
- Fits 5 - 14 People
- 2 Private Offices
- 5 Workstations
- Can be combined with additional space(s) for up to 4,540 SF of adjacent space
4242 Woodcock Dr - 2nd Floor - Ste 204
| Size | 6,405 SF |
| Term | 3-5 Years |
| Rental Rate | $27.41 CAD/SF/YR |
| Space Use | Office |
| Build-Out | Partial Build-Out |
| Available | Now |
Reception Area, 11 Window Offices, 3 Interior Offices, 3 Conference Rooms, 1 Bullpen, Kitchen, Break Area, Sink, 3 Entrances
- Rate includes utilities, building services and property expenses
- Partially Built-Out as Standard Office
- Mostly Open Floor Plan Layout
- Fits 17 - 52 People
- 11 Private Offices
- 3 Conference Rooms
- 14 Workstations
4242 Woodcock Dr - 2nd Floor - Ste 207
| Size | 799 SF |
| Term | 3-5 Years |
| Rental Rate | $27.41 CAD/SF/YR |
| Space Use | Office |
| Build-Out | Partial Build-Out |
| Available | Now |
Reception Area, 2 Window Offices, 1 Bullpen
- Rate includes utilities, building services and property expenses
- Partially Built-Out as Standard Office
- Mostly Open Floor Plan Layout
- Fits 2 - 7 People
- 2 Private Offices
- 2 Workstations
- Reception Area
4242 Woodcock Dr - 2nd Floor - Ste 208
| Size | 2,057 SF |
| Term | 3-5 Years |
| Rental Rate | $27.41 CAD/SF/YR |
| Space Use | Office |
| Build-Out | Partial Build-Out |
| Available | Now |
Reception Area, 4 Window Offices, 2 Interior Offices, 1 Bullpen, Kitchen, Break Area, Sink
- Rate includes utilities, building services and property expenses
- Partially Built-Out as Standard Office
- Mostly Open Floor Plan Layout
- Fits 6 - 17 People
- 6 Private Offices
- 6 Workstations
4242 Woodcock Dr - 2nd Floor - Ste 210
| Size | 1,629 SF |
| Term | 3-5 Years |
| Rental Rate | $27.41 CAD/SF/YR |
| Space Use | Office |
| Build-Out | Full Build-Out |
| Available | Now |
Reception Area, 4 Window Offices, 3 Interior Offices, Kitchen, Break Area, Sink
- Rate includes utilities, building services and property expenses
- Fully Built-Out as Standard Office
- Fits 5 - 14 People
- 7 Private Offices
- 7 Workstations
4242 Woodcock Dr - 2nd Floor - Ste 256
| Size | 1,137 SF |
| Term | 3-5 Years |
| Rental Rate | $27.41 CAD/SF/YR |
| Space Use | Office |
| Build-Out | Full Build-Out |
| Available | Now |
2 Window Offices, Open Area
- Rate includes utilities, building services and property expenses
- Fully Built-Out as Standard Office
- Fits 3 - 10 People
- 2 Private Offices
- 2 Workstations
4242 Woodcock Dr - 2nd Floor - Ste 260
| Size | 1,247 SF |
| Term | 3-5 Years |
| Rental Rate | $27.41 CAD/SF/YR |
| Space Use | Office |
| Build-Out | Full Build-Out |
| Available | Now |
Reception Area, 3 Window Offices, 1 Interior Office, Break Area, Sink
- Rate includes utilities, building services and property expenses
- Fully Built-Out as Standard Office
- Fits 4 - 10 People
- 2 Private Offices
- 4 Workstations
- Reception Area
4243 E Piedras Dr - 1st Floor - Ste 101
| Size | 1,867 SF |
| Term | 3-5 Years |
| Rental Rate | $27.41 CAD/SF/YR |
| Space Use | Office |
| Build-Out | Partial Build-Out |
| Available | Now |
Reception Area, 3 Window Offices, 2 Interior Offices, 1 Conference Room, 1 Bullpen
- Rate includes utilities, building services and property expenses
- Partially Built-Out as Standard Office
- Fits 5 - 15 People
- 1 Private Office
- 1 Conference Room
- 1 Workstation
- Secure Storage
4243 E Piedras Dr - 1st Floor - Ste 110
| Size | 598 SF |
| Term | 3-5 Years |
| Rental Rate | $27.41 CAD/SF/YR |
| Space Use | Office |
| Build-Out | Full Build-Out |
| Available | Now |
Reception Area, 2 Window Offices
- Rate includes utilities, building services and property expenses
- Fully Built-Out as Standard Office
- Fits 2 - 5 People
- 2 Private Offices
- 2 Workstations
- Reception Area
4243 E Piedras Dr - 1st Floor - Ste 140
| Size | 3,656 SF |
| Term | 3-5 Years |
| Rental Rate | $27.41 CAD/SF/YR |
| Space Use | Office |
| Build-Out | Full Build-Out |
| Available | Now |
Reception Area, 6 Window Offices, 3 Interior Offices, 1 Conference Room, Kitchen, Break Area, Sink, File Or Storage Area, 2 Closets
- Rate includes utilities, building services and property expenses
- Fully Built-Out as Standard Office
- Fits 10 - 30 People
- 6 Private Offices
- 1 Conference Room
- 9 Workstations
- Reception Area
4243 E Piedras Dr - 1st Floor - Ste 155
| Size | 1,270 SF |
| Term | 3-5 Years |
| Rental Rate | $27.41 CAD/SF/YR |
| Space Use | Office |
| Build-Out | Full Build-Out |
| Available | Now |
4 Window Offices, 4 Interior Offices
- Rate includes utilities, building services and property expenses
- Fully Built-Out as Standard Office
- Fits 4 - 11 People
- 8 Private Offices
- 8 Workstations
4243 E Piedras Dr - 2nd Floor - Ste 232
| Size | 552 SF |
| Term | Negotiable |
| Rental Rate | $27.41 CAD/SF/YR |
| Space Use | Office |
| Build-Out | - |
| Available | Now |
Reception Area, 1 Window Office, File Or Storage Area, 1 Entrance
- Rate includes utilities, building services and property expenses
- Fits 2 - 5 People
4243 E Piedras Dr - 2nd Floor - Ste 240
| Size | 528 SF |
| Term | 3-5 Years |
| Rental Rate | $27.41 CAD/SF/YR |
| Space Use | Office |
| Build-Out | Partial Build-Out |
| Available | Now |
Reception Area, 1 Window Office, File Or Storage Area
- Rate includes utilities, building services and property expenses
- Partially Built-Out as Standard Office
- Fits 2 - 5 People
- 1 Private Office
- 1 Workstation
- Reception Area
- Secure Storage
4243 E Piedras Dr - 2nd Floor - Ste 243
| Size | 605 SF |
| Term | 3-5 Years |
| Rental Rate | $27.41 CAD/SF/YR |
| Space Use | Office |
| Build-Out | Partial Build-Out |
| Available | Now |
Reception Area, 1 Window Office, 1 Interior Office
- Rate includes utilities, building services and property expenses
- Partially Built-Out as Standard Office
- Fits 2 - 5 People
- 1 Private Office
- 1 Workstation
- Secure Storage
4243 E Piedras Dr - 2nd Floor - Ste 244
| Size | 508 SF |
| Term | 3-5 Years |
| Rental Rate | $27.41 CAD/SF/YR |
| Space Use | Office |
| Build-Out | Partial Build-Out |
| Available | Now |
Reception Area, 1 Window Office
- Rate includes utilities, building services and property expenses
- Partially Built-Out as Standard Office
- Fits 2 - 5 People
- 1 Private Office
- 1 Workstation
- Reception Area
4243 E Piedras Dr - 2nd Floor - Ste 260
| Size | 662 SF |
| Term | 3-5 Years |
| Rental Rate | $27.41 CAD/SF/YR |
| Space Use | Office |
| Build-Out | Partial Build-Out |
| Available | Now |
Reception Area, 1 Window Office, File Or Storage Area
- Rate includes utilities, building services and property expenses
- Partially Built-Out as Standard Office
- Fits 2 - 6 People
- 1 Private Office
- 1 Workstation
- Secure Storage
4243 E Piedras Dr - 2nd Floor - Ste 270
| Size | 670 SF |
| Term | 3-5 Years |
| Rental Rate | $27.41 CAD/SF/YR |
| Space Use | Office |
| Build-Out | Partial Build-Out |
| Available | Now |
Reception Area, 2 Window Offices
- Rate includes utilities, building services and property expenses
- Partially Built-Out as Standard Office
- Fits 2 - 6 People
- 1 Private Office
- 1 Workstation
- Secure Storage
4400 NW Loop 410 - 1st Floor - Ste 105
| Size | 4,601 SF |
| Term | Negotiable |
| Rental Rate | $27.41 CAD/SF/YR |
| Space Use | Office |
| Build-Out | Full Build-Out |
| Available | Now |
Reception Area, 3 Window Offices, 4 Interior Offices, 1 Conference Room, large Open Area, Kitchen, Break Area, Sink, Corner Location, 2 Entrances
- Rate includes utilities, building services and property expenses
- Fully Built-Out as Standard Office
- Mostly Open Floor Plan Layout
- Fits 12 - 37 People
- 4 Private Offices
- 1 Conference Room
- 6 Workstations
- Can be combined with additional space(s) for up to 32,686 SF of adjacent space
- Central Air and Heating
- Kitchen
4400 NW Loop 410 - 2nd Floor - Ste 200
| Size | 28,085 SF |
| Term | Negotiable |
| Rental Rate | $27.41 CAD/SF/YR |
| Space Use | Office |
| Build-Out | Partial Build-Out |
| Available | Now |
Reception area, 21 Window offices, 3 interior offices, 2 conference rooms, 2 bullpens, kitchen/break area/sink, work area, closet.
- Rate includes utilities, building services and property expenses
- Partially Built-Out as Standard Office
- Fits 71 - 225 People
- 24 Private Offices
- 2 Conference Rooms
- Can be combined with additional space(s) for up to 32,686 SF of adjacent space
4400 NW Loop 410 - 3rd Floor - Ste 300
| Size | 17,221 SF |
| Term | Negotiable |
| Rental Rate | $27.41 CAD/SF/YR |
| Space Use | Office |
| Build-Out | Full Build-Out |
| Available | Now |
Reception Area, 8 Window Offices, 1 Interior Office, 1 Conference Room, Large Open Area, Corner Location
- Rate includes utilities, building services and property expenses
- Fully Built-Out as Standard Office
- Mostly Open Floor Plan Layout
- Fits 44 - 138 People
- 4 Private Offices
- 1 Conference Room
- 6 Workstations
- Central Air and Heating
- Kitchen
4414 Centerview - 1st Floor - Ste 108
| Size | 414 SF |
| Term | 3-5 Years |
| Rental Rate | $27.41 CAD/SF/YR |
| Space Use | Office |
| Build-Out | Partial Build-Out |
| Available | Now |
Reception Area, 1 Window Office, File Or Storage Area
- Rate includes utilities, building services and property expenses
- Partially Built-Out as Standard Office
- Fits 2 - 4 People
- 3 Private Offices
- 3 Workstations
- Reception Area
4414 Centerview - 1st Floor - Ste 110
| Size | 414 SF |
| Term | 3-5 Years |
| Rental Rate | $27.41 CAD/SF/YR |
| Space Use | Office |
| Build-Out | Partial Build-Out |
| Available | Now |
Reception Area, 1 Window Office, File Or Storage Area
- Rate includes utilities, building services and property expenses
- Partially Built-Out as Standard Office
- Fits 2 - 4 People
- 3 Private Offices
- 3 Workstations
- Reception Area
4414 Centerview - 1st Floor - Ste 120
| Size | 765-865 SF |
| Term | 3-5 Years |
| Rental Rate | $27.41 CAD/SF/YR |
| Space Use | Office |
| Build-Out | Partial Build-Out |
| Available | Now |
Reception Area, 2 Window Offices, 1 Interior Office
- Rate includes utilities, building services and property expenses
- Partially Built-Out as Standard Office
- Fits 2 - 7 People
- 3 Private Offices
- 3 Workstations
- Reception Area
4414 Centerview - 1st Floor - Ste 132
| Size | 1,039 SF |
| Term | 3-5 Years |
| Rental Rate | $27.41 CAD/SF/YR |
| Space Use | Office |
| Build-Out | Partial Build-Out |
| Available | Now |
Reception Area, 3 Window Offices, File Or Storage Area
- Rate includes utilities, building services and property expenses
- Partially Built-Out as Standard Office
- Fits 3 - 9 People
- 3 Private Offices
- 3 Workstations
- Reception Area
4414 Centerview - 1st Floor - Ste 142
| Size | 417 SF |
| Term | 3-5 Years |
| Rental Rate | $27.41 CAD/SF/YR |
| Space Use | Office |
| Build-Out | Partial Build-Out |
| Available | Now |
Reception Area, 1 Window Office
- Rate includes utilities, building services and property expenses
- Partially Built-Out as Standard Office
- Fits 2 - 4 People
- 3 Private Offices
- 3 Workstations
- Reception Area
4414 Centerview - 1st Floor - Ste 145
| Size | 881 SF |
| Term | 3-5 Years |
| Rental Rate | $27.41 CAD/SF/YR |
| Space Use | Office |
| Build-Out | Partial Build-Out |
| Available | Now |
Reception Area, 1 Window Office, 2 Interior Offices
- Rate includes utilities, building services and property expenses
- Partially Built-Out as Standard Office
- Fits 3 - 8 People
- 3 Private Offices
- 3 Workstations
- Reception Area
4414 Centerview - 1st Floor - Ste 152
| Size | 402 SF |
| Term | Negotiable |
| Rental Rate | $27.41 CAD/SF/YR |
| Space Use | Office |
| Build-Out | - |
| Available | Now |
Reception Area, 1 Window Office, File Or Storage Area, 1 Entrance
- Rate includes utilities, building services and property expenses
- Fits 2 - 4 People
4414 Centerview - 2nd Floor - Ste 212
| Size | 944 SF |
| Term | 3-5 Years |
| Rental Rate | $27.41 CAD/SF/YR |
| Space Use | Office |
| Build-Out | Full Build-Out |
| Available | Now |
Reception Area w/waiting area, 2 Window Offices, 1 Interior Office, File Or Storage Area
- Rate includes utilities, building services and property expenses
- Fully Built-Out as Standard Office
- Fits 3 - 8 People
- 3 Private Offices
- 3 Workstations
4414 Centerview - 2nd Floor - Ste 213
| Size | 695-944 SF |
| Term | 3-5 Years |
| Rental Rate | $27.41 CAD/SF/YR |
| Space Use | Office |
| Build-Out | Full Build-Out |
| Available | Now |
Reception Area, 1 Interior Office, 1 Bullpen, Break Area, Sink, File Or Storage Area
- Rate includes utilities, building services and property expenses
- Fully Built-Out as Standard Office
- Fits 2 - 8 People
- 3 Private Offices
- 3 Workstations
4414 Centerview - 2nd Floor - Ste 216
| Size | 1,006 SF |
| Term | 3-5 Years |
| Rental Rate | $27.41 CAD/SF/YR |
| Space Use | Office |
| Build-Out | Full Build-Out |
| Available | Now |
Reception Area, 1 Window Office, 1 Interior Office, Sink
- Rate includes utilities, building services and property expenses
- Fully Built-Out as Standard Office
- Fits 3 - 9 People
- 3 Private Offices
- 3 Workstations
4414 Centerview - 2nd Floor - Ste 219
| Size | 550 SF |
| Term | 3-5 Years |
| Rental Rate | $27.41 CAD/SF/YR |
| Space Use | Office |
| Build-Out | Full Build-Out |
| Available | Now |
Reception Area, 1 Window Office, waiting area, work area.
- Rate includes utilities, building services and property expenses
- Fully Built-Out as Standard Office
- Mostly Open Floor Plan Layout
- Fits 2 - 5 People
- 1 Private Office
- 1 Workstation
- Reception Area
4414 Centerview - 2nd Floor - Ste 229
| Size | 2,967 SF |
| Term | 3-5 Years |
| Rental Rate | $27.41 CAD/SF/YR |
| Space Use | Office |
| Build-Out | Full Build-Out |
| Available | Now |
Reception Area, 5 Window Offices, 2 Interior Offices, 1 Conference Room, 2 Closets
- Rate includes utilities, building services and property expenses
- Fully Built-Out as Standard Office
- Fits 8 - 24 People
- 2 Private Offices
- 2 Workstations
4414 Centerview - 2nd Floor - Ste 232
| Size | 842 SF |
| Term | 3-5 Years |
| Rental Rate | $27.41 CAD/SF/YR |
| Space Use | Office |
| Build-Out | Full Build-Out |
| Available | Now |
Reception Area, 2 Window Offices, 1 Interior Office, File Or Storage Area
- Rate includes utilities, building services and property expenses
- Fully Built-Out as Standard Office
- Fits 3 - 7 People
- 3 Private Offices
- 3 Workstations
4414 Centerview - 2nd Floor - Ste 264
| Size | 637 SF |
| Term | 3-5 Years |
| Rental Rate | $27.41 CAD/SF/YR |
| Space Use | Office |
| Build-Out | Full Build-Out |
| Available | Now |
Reception Area, 1 Window Office, Break Area, Sink, 1 Closets
- Rate includes utilities, building services and property expenses
- Fully Built-Out as Standard Office
- Fits 2 - 6 People
- 3 Private Offices
- 1 Workstation
4414 Centerview - 2nd Floor - Ste 266
| Size | 368 SF |
| Term | 3-5 Years |
| Rental Rate | $27.41 CAD/SF/YR |
| Space Use | Office |
| Build-Out | Full Build-Out |
| Available | Now |
Reception Area, 1 Window Office, 1 Closets
- Rate includes utilities, building services and property expenses
- Fully Built-Out as Standard Office
- Fits 1 - 3 People
- 3 Private Offices
- 1 Workstation
4414 Centerview - 2nd Floor - Ste 270
| Size | 670 SF |
| Term | 3-5 Years |
| Rental Rate | $27.41 CAD/SF/YR |
| Space Use | Office |
| Build-Out | Full Build-Out |
| Available | Now |
Reception Area, 2 Window Offices
- Rate includes utilities, building services and property expenses
- Fully Built-Out as Standard Office
- Fits 2 - 6 People
- 2 Private Offices
- 2 Workstations
4242 E Piedras Dr - 1st Floor - Ste 109
| Size | 362 SF |
| Term | 3-5 Years |
| Rental Rate | $27.41 CAD/SF/YR |
| Space Use | Office |
| Build-Out | Full Build-Out |
| Available | Now |
Reception Area, 1 Window Office
- Rate includes utilities, building services and property expenses
- Fully Built-Out as Standard Office
- Fits 1 - 3 People
- 1 Private Office
- 1 Workstation
- Reception Area
4242 E Piedras Dr - 1st Floor - Ste 139
| Size | 4,311 SF |
| Term | 3-5 Years |
| Rental Rate | $27.41 CAD/SF/YR |
| Space Use | Office |
| Build-Out | Partial Build-Out |
| Available | Now |
Reception Area, 6 Window Offices, 2 Interior Offices, 1 Conference Room, Open Area, 1 Closets
- Rate includes utilities, building services and property expenses
- Partially Built-Out as Standard Office
- Fits 11 - 35 People
- 8 Private Offices
- 1 Conference Room
- 8 Workstations
- Reception Area
4242 E Piedras Dr - 2nd Floor - Ste 201
| Size | 8,468 SF |
| Term | 3-5 Years |
| Rental Rate | $27.41 CAD/SF/YR |
| Space Use | Office |
| Build-Out | Partial Build-Out |
| Available | Now |
Reception Area, 18 Window Offices, 5 Interior Offices, Open Area, Break Area, Sink, Work Area, File/Storage Or Server Room, 1 Closets
- Rate includes utilities, building services and property expenses
- Partially Built-Out as Standard Office
- Fits 22 - 68 People
- 18 Private Offices
- 23 Workstations
- Reception Area
4242 E Piedras Dr - 2nd Floor - Ste 213
| Size | 3,923 SF |
| Term | 3-5 Years |
| Rental Rate | $27.41 CAD/SF/YR |
| Space Use | Office |
| Build-Out | Partial Build-Out |
| Available | Now |
Reception Area, 7 Window Offices, 3 Interior Offices, 1 Conference Room, Work Area, File Or Storage Area, 2 Closets
- Rate includes utilities, building services and property expenses
- Partially Built-Out as Standard Office
- Fits 10 - 32 People
- 10 Private Offices
- 1 Conference Room
- 10 Workstations
- Reception Area
4440 S Piedras Dr - 1st Floor - Ste 136
| Size | 3,666 SF |
| Term | 3-5 Years |
| Rental Rate | $27.41 CAD/SF/YR |
| Space Use | Office |
| Build-Out | Partial Build-Out |
| Available | Now |
Reception Area, 4 Window Offices, 5 Interior Offices, 1 Conference Room, Open Area, 2 Closets, Corner Location
- Rate includes utilities, building services and property expenses
- Partially Built-Out as Standard Office
- Mostly Open Floor Plan Layout
- Fits 10 - 30 People
- 10 Private Offices
- 1 Conference Room
4440 S Piedras Dr - 2nd Floor - Ste 210
| Size | 5,714 SF |
| Term | 3-5 Years |
| Rental Rate | $27.41 CAD/SF/YR |
| Space Use | Office |
| Build-Out | Partial Build-Out |
| Available | Now |
Reception Area, 6 Window Offices, 2 Interior Offices, Open Area, Kitchen, Break Area, Sink, File Or Storage Area, Corner Location
- Rate includes utilities, building services and property expenses
- Partially Built-Out as Standard Office
- Mostly Open Floor Plan Layout
- Fits 15 - 46 People
- 8 Private Offices
- 8 Workstations
- Corner Space
4440 S Piedras Dr - 3rd Floor - Ste 301
| Size | 18,526 SF |
| Term | 3-5 Years |
| Rental Rate | $27.41 CAD/SF/YR |
| Space Use | Office |
| Build-Out | Partial Build-Out |
| Available | Now |
Reception Area, 16 Window Offices, 8 Interior Offices, 1 Conference Room, Open Area, Kitchen, Break Area, Sink, File Or Storage Area, 4 Closets, Corner Location
- Rate includes utilities, building services and property expenses
- Partially Built-Out as Standard Office
- Mostly Open Floor Plan Layout
- Fits 47 - 149 People
- 8 Private Offices
- 1 Conference Room
- 8 Workstations
- Corner Space
4241 Woodcock Dr - 1st Floor - Ste A111
| Size | 901 SF |
| Term | 3-5 Years |
| Rental Rate | $27.41 CAD/SF/YR |
| Space Use | Office |
| Build-Out | Full Build-Out |
| Available | Now |
Reception Area, 1 Window Office, 1 Interior Office, Open Area
- Rate includes utilities, building services and property expenses
- Fully Built-Out as Standard Office
- Mostly Open Floor Plan Layout
- Fits 3 - 8 People
- 2 Private Offices
- 2 Workstations
- Corner Space
4241 Woodcock Dr - 1st Floor - Ste B100
| Size | 10,007 SF |
| Term | 3-5 Years |
| Rental Rate | $27.41 CAD/SF/YR |
| Space Use | Office |
| Build-Out | Partial Build-Out |
| Available | Now |
Reception Area, 16 Window Offices, 9 Interior Offices, 1 Conference Room, Kitchen, Break Area, Sink, 1 Closets, Corner Location
- Rate includes utilities, building services and property expenses
- Partially Built-Out as Standard Office
- Mostly Open Floor Plan Layout
- Fits 26 - 81 People
- 16 Private Offices
- 1 Conference Room
- 25 Workstations
- 2 standard entrances & 1 extra wide freight entry
4241 Woodcock Dr - 1st Floor - Ste C100
| Size | 7,606 SF |
| Term | 3-5 Years |
| Rental Rate | $27.41 CAD/SF/YR |
| Space Use | Office |
| Build-Out | Partial Build-Out |
| Available | Now |
Reception Area, 1 Window Office, 4 Interior Offices, Large Open Area, Kitchen, Break Area, Sink, 1 Closets
- Rate includes utilities, building services and property expenses
- Partially Built-Out as Standard Office
- Mostly Open Floor Plan Layout
- Fits 20 - 61 People
- 5 Private Offices
- 5 Workstations
- Can be combined with additional space(s) for up to 12,190 SF of adjacent space
- 2 standard entrances & 1 extra wide freight entry
4241 Woodcock Dr - 1st Floor - Ste C106
| Size | 4,584 SF |
| Term | 3-5 Years |
| Rental Rate | $27.41 CAD/SF/YR |
| Space Use | Office |
| Build-Out | Partial Build-Out |
| Available | Now |
Corner Location, Large Window Offices.
- Rate includes utilities, building services and property expenses
- Partially Built-Out as Standard Office
- Open Floor Plan Layout
- Fits 12 - 37 People
- 1 Private Office
- Can be combined with additional space(s) for up to 12,190 SF of adjacent space
- Corner Space
- Natural Light
4241 Woodcock Dr - 1st Floor - Ste C110
| Size | 874 SF |
| Term | 3-5 Years |
| Rental Rate | $27.41 CAD/SF/YR |
| Space Use | Office |
| Build-Out | Partial Build-Out |
| Available | Now |
Reception Area, 2 Window Offices, 1 Interior Office, Kitchen, Break Area, Sink, 1 Closets
- Rate includes utilities, building services and property expenses
- Partially Built-Out as Standard Office
- Mostly Open Floor Plan Layout
- Fits 3 - 7 People
- 1 Private Office
- 2 Workstations
- Kitchen
- 2 Entrances
4241 Woodcock Dr - 1st Floor - Ste C115
| Size | 669 SF |
| Term | 3-5 Years |
| Rental Rate | $27.41 CAD/SF/YR |
| Space Use | Office |
| Build-Out | Partial Build-Out |
| Available | Now |
Reception Area, 2 Window Offices, 1 Interior Office, Kitchen, Sink
- Rate includes utilities, building services and property expenses
- Partially Built-Out as Standard Office
- Mostly Open Floor Plan Layout
- Fits 2 - 6 People
- 3 Private Offices
- 2 Workstations
- Laminate Wood Floors
4241 Woodcock Dr - 1st Floor - Ste C130
| Size | 1,938 SF |
| Term | 3-5 Years |
| Rental Rate | $27.41 CAD/SF/YR |
| Space Use | Office |
| Build-Out | Partial Build-Out |
| Available | Now |
Reception Area, 3 Window Offices, 1 Interior Office, Open Area, Kitchen, Break Area, Sink.
- Rate includes utilities, building services and property expenses
- Partially Built-Out as Standard Office
- Mostly Open Floor Plan Layout
- Fits 5 - 16 People
- 4 Private Offices
- 4 Workstations
- Corner Location
4241 Woodcock Dr - 2nd Floor - Ste A200
| Size | 2,572 SF |
| Term | 3-5 Years |
| Rental Rate | $27.41 CAD/SF/YR |
| Space Use | Office |
| Build-Out | Partial Build-Out |
| Available | Now |
Reception Area, 1 Window Office, Large Open Area
- Rate includes utilities, building services and property expenses
- Partially Built-Out as Standard Office
- Mostly Open Floor Plan Layout
- Fits 7 - 21 People
- 1 Private Office
- Open Floor Plan with unlimited possibilities
4241 Woodcock Dr - 2nd Floor - Ste B202
| Size | 10,823 SF |
| Term | 3-5 Years |
| Rental Rate | $27.41 CAD/SF/YR |
| Space Use | Office |
| Build-Out | Partial Build-Out |
| Available | Now |
Reception Area, 14 Window Offices, 14 Interior Offices, 1 Conference Room, 1 Bullpen, Open Area, Kitchen, Break Area, Bar Area, Sink, Corner Location
- Rate includes utilities, building services and property expenses
- Partially Built-Out as Standard Office
- Open Floor Plan Layout
- Fits 28 - 87 People
- 28 Private Offices
- 1 Conference Room
- Corner Suite
4241 Woodcock Dr - 2nd Floor - Ste B205
| Size | 2,288 SF |
| Term | 3 Years |
| Rental Rate | $27.41 CAD/SF/YR |
| Space Use | Office |
| Build-Out | Full Build-Out |
| Available | Now |
Reception Area, 4 Window Offices, 2 Interior Offices, 1 Conference Room, Kitchen, Break Area, Sink, 2 Closets, Corner Location
- Rate includes utilities, building services and property expenses
- Fully Built-Out as Standard Office
- Mostly Open Floor Plan Layout
- Fits 6 - 19 People
- 6 Private Offices
- 1 Conference Room
- 6 Workstations
- Can be combined with additional space(s) for up to 4,154 SF of adjacent space
- Corner Location
4241 Woodcock Dr - 2nd Floor - Ste B207
| Size | 1,266 SF |
| Term | Negotiable |
| Rental Rate | $27.41 CAD/SF/YR |
| Space Use | Office |
| Build-Out | Partial Build-Out |
| Available | Now |
Reception Area, 2 Window Offices, 3 Interior Offices
- Rate includes utilities, building services and property expenses
- Partially Built-Out as Standard Office
- Mostly Open Floor Plan Layout
- Fits 4 - 11 People
- 1 Private Office
- 4 Workstations
- Kitchen
- Extra storage.
4241 Woodcock Dr - 2nd Floor - Ste B208
| Size | 1,866 SF |
| Term | 3-5 Years |
| Rental Rate | $27.41 CAD/SF/YR |
| Space Use | Office |
| Build-Out | Partial Build-Out |
| Available | Now |
Reception Area, 2 Window Offices, 1 Interior Office, Corner Location
- Rate includes utilities, building services and property expenses
- Partially Built-Out as Standard Office
- Mostly Open Floor Plan Layout
- Fits 5 - 15 People
- 3 Private Offices
- 5 Workstations
- Can be combined with additional space(s) for up to 4,154 SF of adjacent space
- Corner Space
- Corner suite
4241 Woodcock Dr - 2nd Floor - Ste C201
| Size | 202 SF |
| Term | 3-5 Years |
| Rental Rate | $27.41 CAD/SF/YR |
| Space Use | Office |
| Build-Out | Partial Build-Out |
| Available | Now |
1 Interior Office
- Rate includes utilities, building services and property expenses
- Partially Built-Out as Standard Office
- Mostly Open Floor Plan Layout
- Fits 1 - 2 People
- 1 Private Office
- 1 Workstation
- Kitchen
- Extra storage.
4241 Woodcock Dr - 2nd Floor - Ste C209
| Size | 362 SF |
| Term | 3-5 Years |
| Rental Rate | $27.41 CAD/SF/YR |
| Space Use | Office |
| Build-Out | Partial Build-Out |
| Available | Now |
1 Interior Office
- Rate includes utilities, building services and property expenses
- Partially Built-Out as Standard Office
- Mostly Open Floor Plan Layout
- Fits 1 - 3 People
- 1 Private Office
- 1 Workstation
- Kitchen
- Extra storage.
4241 Woodcock Dr - 2nd Floor - Ste C210
| Size | 360 SF |
| Term | 3-5 Years |
| Rental Rate | $27.41 CAD/SF/YR |
| Space Use | Office |
| Build-Out | Partial Build-Out |
| Available | Now |
1 Window Office
- Rate includes utilities, building services and property expenses
- Partially Built-Out as Standard Office
- Mostly Open Floor Plan Layout
- Fits 1 - 3 People
- 1 Private Office
- 1 Workstation
- Kitchen
- Extra storage.
4241 Woodcock Dr - 2nd Floor - Ste C211
| Size | 377 SF |
| Term | 3-5 Years |
| Rental Rate | $27.41 CAD/SF/YR |
| Space Use | Office |
| Build-Out | Partial Build-Out |
| Available | Now |
1 Interior Office
- Rate includes utilities, building services and property expenses
- Partially Built-Out as Standard Office
- Mostly Open Floor Plan Layout
- Fits 1 - 4 People
- 1 Private Office
- 1 Workstation
- Kitchen
- Extra storage.
4241 Woodcock Dr - 2nd Floor - Ste C212
| Size | 267 SF |
| Term | 3-5 Years |
| Rental Rate | $27.41 CAD/SF/YR |
| Space Use | Office |
| Build-Out | Partial Build-Out |
| Available | Now |
1 Window Office
- Rate includes utilities, building services and property expenses
- Partially Built-Out as Standard Office
- Mostly Open Floor Plan Layout
- Fits 1 - 3 People
- 1 Private Office
- 1 Workstation
- Kitchen
- Extra storage.
4241 Woodcock Dr - 2nd Floor - Ste C213
| Size | 327 SF |
| Term | 3-5 Years |
| Rental Rate | $27.41 CAD/SF/YR |
| Space Use | Office |
| Build-Out | Partial Build-Out |
| Available | Now |
1 Interior Office
- Rate includes utilities, building services and property expenses
- Partially Built-Out as Standard Office
- Mostly Open Floor Plan Layout
- Fits 1 - 3 People
- 1 Private Office
- 1 Workstation
- Kitchen
- Extra storage.
4241 Woodcock Dr - 2nd Floor - Ste C215
| Size | 351 SF |
| Term | 3-5 Years |
| Rental Rate | $27.41 CAD/SF/YR |
| Space Use | Office |
| Build-Out | Partial Build-Out |
| Available | Now |
1 Interior Office
- Rate includes utilities, building services and property expenses
- Partially Built-Out as Standard Office
- Mostly Open Floor Plan Layout
- Fits 1 - 3 People
- 1 Private Office
- 1 Workstation
- Kitchen
- Extra storage.
4241 Woodcock Dr - 2nd Floor - Ste C216
| Size | 249 SF |
| Term | 3-5 Years |
| Rental Rate | $27.41 CAD/SF/YR |
| Space Use | Office |
| Build-Out | Partial Build-Out |
| Available | Now |
1 Window Office
- Rate includes utilities, building services and property expenses
- Partially Built-Out as Standard Office
- Mostly Open Floor Plan Layout
- Fits 1 - 2 People
- 1 Private Office
- 1 Workstation
- Kitchen
- Extra storage.
4241 Woodcock Dr - 2nd Floor - Ste C217
| Size | 351 SF |
| Term | 3-5 Years |
| Rental Rate | $27.41 CAD/SF/YR |
| Space Use | Office |
| Build-Out | Partial Build-Out |
| Available | Now |
Reception Area, 1 Window Office, Open Area, Kitchen, Break Area, Sink, File Or Storage Area
- Rate includes utilities, building services and property expenses
- Partially Built-Out as Standard Office
- Mostly Open Floor Plan Layout
- Fits 1 - 3 People
- 1 Private Office
- 1 Workstation
- Kitchen
- Extra storage.
4241 Woodcock Dr - 2nd Floor - Ste C218
| Size | 267 SF |
| Term | 3-5 Years |
| Rental Rate | $27.41 CAD/SF/YR |
| Space Use | Office |
| Build-Out | Partial Build-Out |
| Available | Now |
1 Window Office
- Rate includes utilities, building services and property expenses
- Partially Built-Out as Standard Office
- Mostly Open Floor Plan Layout
- Fits 1 - 3 People
- 1 Private Office
- 1 Workstation
- Kitchen
- Extra storage.
4241 Woodcock Dr - 2nd Floor - Ste C219
| Size | 351 SF |
| Term | 3-5 Years |
| Rental Rate | $27.41 CAD/SF/YR |
| Space Use | Office |
| Build-Out | Partial Build-Out |
| Available | Now |
1 Interior Office
- Rate includes utilities, building services and property expenses
- Partially Built-Out as Standard Office
- Mostly Open Floor Plan Layout
- Fits 1 - 3 People
- 1 Private Office
- 1 Workstation
- Kitchen
- Extra storage.
4241 Woodcock Dr - 2nd Floor - Ste C221
| Size | 351 SF |
| Term | 3-5 Years |
| Rental Rate | $27.41 CAD/SF/YR |
| Space Use | Office |
| Build-Out | Partial Build-Out |
| Available | Now |
1 Interior Office
- Rate includes utilities, building services and property expenses
- Partially Built-Out as Standard Office
- Mostly Open Floor Plan Layout
- Fits 1 - 3 People
- 1 Private Office
- 1 Workstation
- Kitchen
- Extra storage.
4241 Woodcock Dr - 2nd Floor - Ste C222
| Size | 262 SF |
| Term | 3-5 Years |
| Rental Rate | $27.41 CAD/SF/YR |
| Space Use | Office |
| Build-Out | Partial Build-Out |
| Available | Now |
1 Window Office
- Rate includes utilities, building services and property expenses
- Partially Built-Out as Standard Office
- Mostly Open Floor Plan Layout
- Fits 1 - 3 People
- 1 Private Office
- 1 Workstation
- Kitchen
- Extra storage.
4241 Woodcock Dr - 2nd Floor - Ste C223
| Size | 343 SF |
| Term | 3-5 Years |
| Rental Rate | $27.41 CAD/SF/YR |
| Space Use | Office |
| Build-Out | Partial Build-Out |
| Available | Now |
1 Interior Office
- Rate includes utilities, building services and property expenses
- Partially Built-Out as Standard Office
- Mostly Open Floor Plan Layout
- Fits 1 - 3 People
- 1 Private Office
- 1 Workstation
- Kitchen
- Extra storage.
4241 Woodcock Dr - 2nd Floor - Ste C226
| Size | 317 SF |
| Term | 3-5 Years |
| Rental Rate | $27.41 CAD/SF/YR |
| Space Use | Office |
| Build-Out | Partial Build-Out |
| Available | Now |
1 Window Office
- Rate includes utilities, building services and property expenses
- Partially Built-Out as Standard Office
- Mostly Open Floor Plan Layout
- Fits 1 - 3 People
- 1 Private Office
- 1 Workstation
- Kitchen
- Extra storage.
4241 Woodcock Dr - 2nd Floor - Ste C228
| Size | 323 SF |
| Term | 3-5 Years |
| Rental Rate | $27.41 CAD/SF/YR |
| Space Use | Office |
| Build-Out | Partial Build-Out |
| Available | Now |
1 Interior Office
- Rate includes utilities, building services and property expenses
- Partially Built-Out as Standard Office
- Mostly Open Floor Plan Layout
- Fits 1 - 3 People
- 1 Private Office
- 1 Workstation
- Kitchen
- Extra storage.
4241 Woodcock Dr - 2nd Floor - Ste C232
| Size | 364 SF |
| Term | 3-5 Years |
| Rental Rate | $27.41 CAD/SF/YR |
| Space Use | Office |
| Build-Out | Partial Build-Out |
| Available | Now |
1 Window Office
- Rate includes utilities, building services and property expenses
- Partially Built-Out as Standard Office
- Mostly Open Floor Plan Layout
- Fits 1 - 3 People
- 1 Private Office
- 1 Workstation
- Kitchen
- Extra storage.
4241 Woodcock Dr - 2nd Floor - Ste C234
| Size | 371 SF |
| Term | 3-5 Years |
| Rental Rate | $27.41 CAD/SF/YR |
| Space Use | Office |
| Build-Out | Partial Build-Out |
| Available | Now |
1 Window Office
- Rate includes utilities, building services and property expenses
- Partially Built-Out as Standard Office
- Mostly Open Floor Plan Layout
- Fits 1 - 3 People
- 1 Private Office
- 1 Workstation
- Kitchen
- Extra storage.
4241 Woodcock Dr - 2nd Floor - Ste C236
| Size | 1,250 SF |
| Term | 3-5 Years |
| Rental Rate | $27.41 CAD/SF/YR |
| Space Use | Office |
| Build-Out | Partial Build-Out |
| Available | Now |
1 Large Window Office
- Rate includes utilities, building services and property expenses
- Partially Built-Out as Standard Office
- Mostly Open Floor Plan Layout
- Fits 4 - 10 People
- 1 Private Office
- Kitchen
- Extra storage.
4241 Woodcock Dr - 2nd Floor - Ste C238
| Size | 765 SF |
| Term | 3-5 Years |
| Rental Rate | $27.41 CAD/SF/YR |
| Space Use | Office |
| Build-Out | Partial Build-Out |
| Available | Now |
1 Large Window Office
- Rate includes utilities, building services and property expenses
- Partially Built-Out as Standard Office
- Mostly Open Floor Plan Layout
- Fits 2 - 7 People
- 1 Private Office
- 2 Workstations
- Kitchen
- Extra storage.
4241 Woodcock Dr - 2nd Floor - Ste C240
| Size | 1,839 SF |
| Term | Negotiable |
| Rental Rate | $27.41 CAD/SF/YR |
| Space Use | Office |
| Build-Out | Partial Build-Out |
| Available | Now |
1 Large Window Office
- Rate includes utilities, building services and property expenses
- Partially Built-Out as Standard Office
- Mostly Open Floor Plan Layout
- Fits 5 - 15 People
- 1 Private Office
- 4 Workstations
- Kitchen
- Extra storage.
4241 Woodcock Dr - 2nd Floor - Ste C242
| Size | 254 SF |
| Term | Negotiable |
| Rental Rate | $27.41 CAD/SF/YR |
| Space Use | Office |
| Build-Out | Partial Build-Out |
| Available | Now |
1 Interior Office
- Rate includes utilities, building services and property expenses
- Partially Built-Out as Standard Office
- Mostly Open Floor Plan Layout
- Fits 1 - 3 People
- 1 Private Office
- 1 Workstation
- Kitchen
- Extra storage.
4241 Woodcock Dr - 2nd Floor - Ste C244
| Size | 1,213 SF |
| Term | Negotiable |
| Rental Rate | $27.41 CAD/SF/YR |
| Space Use | Office |
| Build-Out | Partial Build-Out |
| Available | Now |
Reception Area, 1 Large Window Office
- Rate includes utilities, building services and property expenses
- Partially Built-Out as Standard Office
- Mostly Open Floor Plan Layout
- Fits 4 - 10 People
- 1 Private Office
- 4 Workstations
- Kitchen
- Extra storage.
4241 Woodcock Dr - 2nd Floor - Ste C246
| Size | 1,918 SF |
| Term | Negotiable |
| Rental Rate | $27.41 CAD/SF/YR |
| Space Use | Office |
| Build-Out | Partial Build-Out |
| Available | Now |
1 Window Office
- Rate includes utilities, building services and property expenses
- Partially Built-Out as Standard Office
- Mostly Open Floor Plan Layout
- Fits 5 - 16 People
- 1 Private Office
- 4 Workstations
- Kitchen
- Extra storage.
Select Tenants at This Property
- Floor
- Tenant Name
- Industry
- 2nd
- AccentCare
- Health Care and Social Assistance
- 4th
- Aetna Life Insurance
- Finance and Insurance
- 1st
- JMP Solutions
- Wholesaler
- 1st
- LibertyCrown Financial Planning
- Finance and Insurance
- 1st
- The Law Offices of Kathy M. Orr, P.L.L.C.
- Professional, Scientific, and Technical Services
Park Overview
Discover a modern work environment and unparalleled convenience at Brass Professional Center, offering high-end office suites and superior amenities in San Antonio’s largest business park. From the full-service café and deli to the serene tenant lounge, the park exudes elegance, and the 24/7 security and on-site management team ensure continuous quality and peace of mind. With spaces that can accommodate single professionals or entire teams, any tenant will find the necessary tools for success at Brass Professional Center and enjoy the immense benefits San Antonio has to offer. Nestled in the trees along NW Loop 410, the 14-building office park provides immediate access to the center of San Antonio, making for an easy commute away from the downtown congestion. It is also strategically positioned 2 miles from the South Texas Medical Center, ideal for healthcare support services. If employees cannot find what they need from the myriad of amenities in the park, they have dozens of shopping, dining, and fitness options right across Loop 410, nurturing a modern live-work environment. For those looking to live near the office, there are plenty of rental options and residential houses in sprawling suburban neighborhoods surrounding the park. For convenience, residents can travel via the multiple public transportation stops serving the park. Maintaining the perfect balance of affordability, quality, and connectivity, Brass Business Park is the clear choice for tenants looking to grow in this bustling metroplex.
- 24 Hour Access
- Conferencing Facility
- Courtyard
- Freeway Visibility
- Pylon Sign
- Restaurant
- Air Conditioning
Presented by
Brass Professional Center | San Antonio, TX 78229
Hmm, there seems to have been an error sending your message. Please try again.
Thanks! Your message was sent.














































































































































































































































