Your email has been sent.
Highlights
- Opportunity for data mining or satellite data center
- Dual-roof system to reduce heat, improve energy efficiency and protect from the elements
- Carrier-neutral facility with nine different fiber optic providers
- Possible co-location spaces available
- Facility may be leased managed or unmanaged
- Conveniently located near the convergence of Dallas North Tollway and LBJ Freeway (I-635)
Features
All Available Space(1)
Display Rental Rate as
- Space
- Size
- Term
- Rental Rate
- Space Use
- Build-Out
- Available
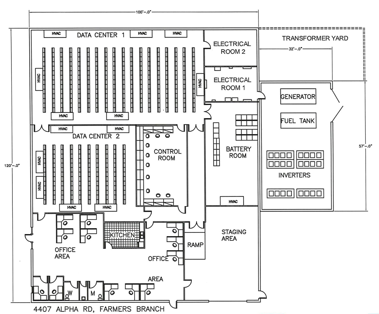
Centralized Data Center Infrastructure Management connected to environmental and infrastructure devices. Alpha Data Center is a secure facility with 24/7 surveillance. Opportunity to lease the facility managed or unmanaged. Servers will not be provided by the landlord. Tenant will be responsible for installing their own equipment. Dual-roof system to reduce heat, improve energy efficiency and protect from the elements. Carrier-neutral facility with nine different fiber optic providers. Facility also includes control center, open office area, kitchen and restrooms.
- Space is in Excellent Condition
- Security System
- Data center with 2.5 MW delivered to building
- Fiber-optic carrier-neutral facility
- Impressively outfitted fire sprinkler room
- 1 Drive Bay
- Secure Storage
- 12,100 SF building with generators and HVAC
- Secure facility with 24/7 surveillance
- One grade-level door for industrial storage
| Space | Size | Term | Rental Rate | Space Use | Build-Out | Available |
| 1st Floor | 12,100 SF | 5-10 Years | Upon Request Upon Request Upon Request Upon Request | Flex | Full Build-Out | Now |
1st Floor
| Size |
| 12,100 SF |
| Term |
| 5-10 Years |
| Rental Rate |
| Upon Request Upon Request Upon Request Upon Request |
| Space Use |
| Flex |
| Build-Out |
| Full Build-Out |
| Available |
| Now |
1st Floor
| Size | 12,100 SF |
| Term | 5-10 Years |
| Rental Rate | Upon Request |
| Space Use | Flex |
| Build-Out | Full Build-Out |
| Available | Now |
Centralized Data Center Infrastructure Management connected to environmental and infrastructure devices. Alpha Data Center is a secure facility with 24/7 surveillance. Opportunity to lease the facility managed or unmanaged. Servers will not be provided by the landlord. Tenant will be responsible for installing their own equipment. Dual-roof system to reduce heat, improve energy efficiency and protect from the elements. Carrier-neutral facility with nine different fiber optic providers. Facility also includes control center, open office area, kitchen and restrooms.
- Space is in Excellent Condition
- 1 Drive Bay
- Security System
- Secure Storage
- Data center with 2.5 MW delivered to building
- 12,100 SF building with generators and HVAC
- Fiber-optic carrier-neutral facility
- Secure facility with 24/7 surveillance
- Impressively outfitted fire sprinkler room
- One grade-level door for industrial storage
Property Overview
Centralized Data Center Infrastructure Management connected to environmental and infrastructure devices. Data center features 2.5 MW delivered to the building, with HVAC and generators onsite and ready for occupancy. Alpha Data Center is a secure facility with 24/7 surveillance. Tenant may lease the facility managed or unmanaged. Servers will not be provided by the landlord; tenant will be responsible for installing their own equipment. Dual-roof system reduces heat, improves energy efficiency and protects from the elements. Carrier-neutral facility with nine different fiber optic providers as options. Facility also includes a control room, open office area, kitchen and restrooms. Conveniently located near the convergence of Dallas North Tollway and LBJ Freeway (I-635).
Data Center Facility Facts
Presented by
Alpha Data Center | 4407 Alpha Rd
Hmm, there seems to have been an error sending your message. Please try again.
Thanks! Your message was sent.





