Log In/Sign Up
Your email has been sent.
44232 Greenery Ln
Hollywood, MD 20636
Hollywood Town Center · Land For Sale
·
19.80 AC


Investment Highlights
- Close to the Patuxent Naval Base which houses 22,000 employees.
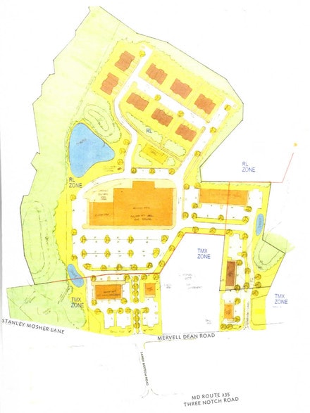
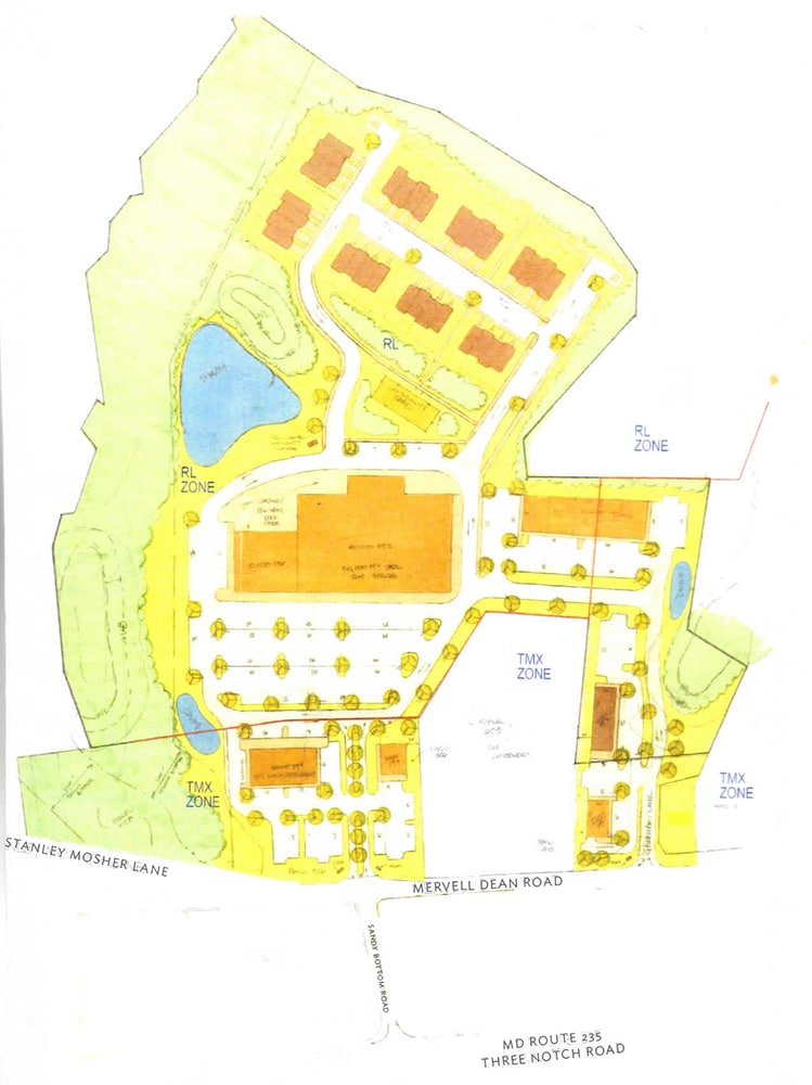
- Close to a full range of amenities including retailers like Dollar General, CVS, & Aldi.
- Property is only minutes away from Solomons Island off the Chesapeake Bay.
- Development opportunity for either 100 town houses or 100,000 square feet of retail space.
Executive Summary
Hollywood Town Center is a 19.81 acre site on the east side of Mervell Dean Road and Greenery Lane. Zoning will permit the buyer to either develop the property into a 100,000 square foot retail center or up to 100 town homes. The area benefits from strong demographics with 100,000 people within a 10-mile radius and a median household income of $101,477. St. Mary's County has the 14th highest Median Household Income in the United States.
Property Facts
1 Lot Available
Lot 1
| Lot Size | 19.80 AC |
| Lot Size | 19.80 AC |
Up to 100 lots available
Description
Close to a full range of amenities such as retail, professional and community amenities.
Property Taxes
| Parcel Number | 06-017649 | Improvements Assessment | $165,823 CAD |
| Land Assessment | $1,082,840 CAD | Total Assessment | $1,248,664 CAD |
Property Taxes
Parcel Number
06-017649
Land Assessment
$1,082,840 CAD
Improvements Assessment
$165,823 CAD
Total Assessment
$1,248,664 CAD
1 of 4
Videos
Matterport 3D Exterior
Matterport 3D Tour
Photos
Street View
Street
Map
