Log In/Sign Up
Your email has been sent.
445 Bush St 3,909 SF of Office Space Available in San Francisco, CA 94108



SUBLEASE HIGHLIGHTS
- City views.
- 2 blocks from Montgomery BART Station.
- Operable windows and HVAC.
ALL AVAILABLE SPACE(1)
Display Rental Rate as
- SPACE
- SIZE
- TERM
- RENTAL RATE
- SPACE USE
- CONDITION
- AVAILABLE
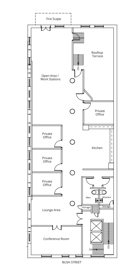
21 workstations, 4 private offices, a 10-person conference room, and a kitchen. Polished concrete, rare and private roof deck. Plug & Play.
- Sublease space available from current tenant
- Fully Built-Out as Standard Office
- Fits 10 - 32 People
- 1 Conference Room
- Plug & Play
- Private Restrooms
- Rare, private roof deck.
- 4 Sides of window line.
- Listed rate may not include certain utilities, building services and property expenses
- Mostly Open Floor Plan Layout
- 4 Private Offices
- 21 Workstations
- Balcony
- Operable windows and HVAC.
- Unobstructed City views.
| Space | Size | Term | Rental Rate | Space Use | Condition | Available |
| 9th Floor, Ste 900 | 3,909 SF | Dec 2026 | $57.83 CAD/SF/YR $4.82 CAD/SF/MO $226,055 CAD/YR $18,838 CAD/MO | Office | Full Build-Out | Now |
9th Floor, Ste 900
| Size |
| 3,909 SF |
| Term |
| Dec 2026 |
| Rental Rate |
| $57.83 CAD/SF/YR $4.82 CAD/SF/MO $226,055 CAD/YR $18,838 CAD/MO |
| Space Use |
| Office |
| Condition |
| Full Build-Out |
| Available |
| Now |
1 of 1
VIDEOS
MATTERPORT 3D EXTERIOR
MATTERPORT 3D TOUR
PHOTOS
STREET VIEW
STREET
MAP
9th Floor, Ste 900
| Size | 3,909 SF |
| Term | Dec 2026 |
| Rental Rate | $57.83 CAD/SF/YR |
| Space Use | Office |
| Condition | Full Build-Out |
| Available | Now |
21 workstations, 4 private offices, a 10-person conference room, and a kitchen. Polished concrete, rare and private roof deck. Plug & Play.
- Sublease space available from current tenant
- Listed rate may not include certain utilities, building services and property expenses
- Fully Built-Out as Standard Office
- Mostly Open Floor Plan Layout
- Fits 10 - 32 People
- 4 Private Offices
- 1 Conference Room
- 21 Workstations
- Plug & Play
- Balcony
- Private Restrooms
- Operable windows and HVAC.
- Rare, private roof deck.
- Unobstructed City views.
- 4 Sides of window line.
PROPERTY OVERVIEW
445 Bush St, San Francisco sits 2 blocks from Montgomery BART station. The property has ample natural light and great city views. The multi-tenant office building is 9-stories hight.
- Controlled Access
- Security System
- Storage Space
PROPERTY FACTS
Building Type
Office
Year Built/Renovated
1905/1999
Building Height
9 Stories
Building Size
40,599 SF
Building Class
B
Typical Floor Size
4,443 SF
Unfinished Ceiling Height
11’
Parking
Surface Parking
Covered Parking
SELECT TENANTS
- FLOOR
- TENANT NAME
- INDUSTRY
- 6th
- Brighton Jones
- Finance and Insurance
- 7th
- Cypress Creek Renewables
- Utilities
- 5th
- M Moser Associates
- Professional, Scientific, and Technical Services
- 1st
- One Schema
- Information
- 5th
- Plum Lending
- Finance and Insurance
Walk Score®
Walker's Paradise (100)
Transit Score®
Rider's Paradise (100)
Bike Score®
Very Bikeable (84)
1 of 10
VIDEOS
MATTERPORT 3D EXTERIOR
MATTERPORT 3D TOUR
PHOTOS
STREET VIEW
STREET
MAP
Presented by
445 Bush St
Already a member? Log In
Hmm, there seems to have been an error sending your message. Please try again.
Thanks! Your message was sent.



