Log In/Sign Up
Your email has been sent.
Corporate Center II 4456 Corporation Ln 54,033 SF Office Building Virginia Beach, VA 23462 $7,880,250 CAD ($145.84 CAD/SF)



INVESTMENT HIGHLIGHTS
- Quality Class B+ Office Building
- Excellent Window Line with Flexible Office Build Out Configuration
- Located in Highest Regarded Submarket in the MSA; Highly Accessible Regional Location
- Full Second Floor Available, Perfect for Owner User
- Premier Town Center Location; Proximate to Town Center Amenities
- Attractive Financing; Assumable
EXECUTIVE SUMMARY
Colliers is pleased to present Corporate Center 2 for Sale for the first time in over a decade. The building is situated in the thriving Town Center area of Virginia Beach - one of the lowest vacancy submarkets in the region. At ± 53,000 SF, the building is mid-sized with flexible floorplates and a full glass line. This makes office layouts a breeze both in open plan or private office. A few minutes’ drive to I-264 creates easy access to the region and all the amenities of Town Center and Pembroke Mall make this a terrific
location.
In its current state, it is a perfect opportunity for an owner-user to purchase the building and allow other tenants to pay a substantial portion of the debt service. The building also has the potential to be repositioned and taken back to market as a multi-tenant office building in one of the most desired submarkets in the region.
location.
In its current state, it is a perfect opportunity for an owner-user to purchase the building and allow other tenants to pay a substantial portion of the debt service. The building also has the potential to be repositioned and taken back to market as a multi-tenant office building in one of the most desired submarkets in the region.
PROPERTY FACTS
Sale Type
Owner User
Sale Condition
High Vacancy Property
Property Type
Office
Building Size
54,033 SF
Building Class
B
Year Built/Renovated
1982/1999
Price
$7,880,250 CAD
Price Per SF
$145.84 CAD
Tenancy
Multiple
Building Height
3 Stories
Typical Floor Size
18,011 SF
Slab To Slab
11’
Building FAR
0.35
Lot Size
3.59 AC
Zoning
B3 - Mixed Use
Parking
212 Spaces (3.92 Spaces per 1,000 SF Leased)
AMENITIES
- 24 Hour Access
- Atrium
- Banking
- Bus Line
- Controlled Access
- Signage
SPACE AVAILABILITY
- SPACE
- SIZE
- SPACE USE
- CONDITION
- AVAILABLE
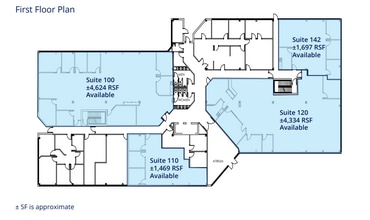
- 1st Fl-Ste 100
- 4,624 SF
- Office
- -
- Now
- 1st Fl-Ste 142
- 1,653 SF
- Office
- -
- Now
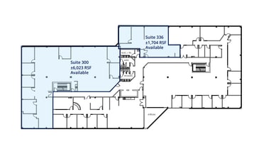
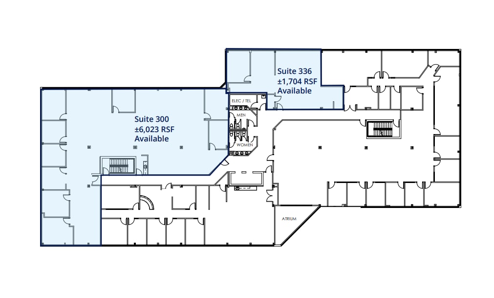
- 3rd Fl-Ste 300
- 6,023 SF
- Office
- -
- Now
| Space | Size | Space Use | Condition | Available |
| 1st Fl-Ste 100 | 4,624 SF | Office | - | Now |
| 1st Fl-Ste 120 | 4,334 SF | Office | - | Now |
| 1st Fl-Ste 142 | 1,653 SF | Office | - | Now |
| 2nd Fl-Ste 200 | 18,011 SF | Office | - | Now |
| 3rd Fl-Ste 300 | 6,023 SF | Office | - | Now |
| 3rd Fl-Ste 336 | 1,704 SF | Office | - | Now |
1st Fl-Ste 100
| Size |
| 4,624 SF |
| Space Use |
| Office |
| Condition |
| - |
| Available |
| Now |
1st Fl-Ste 120
| Size |
| 4,334 SF |
| Space Use |
| Office |
| Condition |
| - |
| Available |
| Now |
1st Fl-Ste 142
| Size |
| 1,653 SF |
| Space Use |
| Office |
| Condition |
| - |
| Available |
| Now |
2nd Fl-Ste 200
| Size |
| 18,011 SF |
| Space Use |
| Office |
| Condition |
| - |
| Available |
| Now |
3rd Fl-Ste 300
| Size |
| 6,023 SF |
| Space Use |
| Office |
| Condition |
| - |
| Available |
| Now |
3rd Fl-Ste 336
| Size |
| 1,704 SF |
| Space Use |
| Office |
| Condition |
| - |
| Available |
| Now |
1 of 1
VIDEOS
MATTERPORT 3D EXTERIOR
MATTERPORT 3D TOUR
PHOTOS
STREET VIEW
STREET
MAP
1st Fl-Ste 120
| Size | 4,334 SF |
| Space Use | Office |
| Condition | - |
| Available | Now |
1 of 1
VIDEOS
MATTERPORT 3D EXTERIOR
MATTERPORT 3D TOUR
PHOTOS
STREET VIEW
STREET
MAP
2nd Fl-Ste 200
| Size | 18,011 SF |
| Space Use | Office |
| Condition | - |
| Available | Now |
1 of 1
VIDEOS
MATTERPORT 3D EXTERIOR
MATTERPORT 3D TOUR
PHOTOS
STREET VIEW
STREET
MAP
3rd Fl-Ste 336
| Size | 1,704 SF |
| Space Use | Office |
| Condition | - |
| Available | Now |
PROPERTY TAXES
| Parcel Number | 1477-66-6747 | Improvements Assessment | $6,344,421 CAD |
| Land Assessment | $1,735,910 CAD | Total Assessment | $8,080,331 CAD |
PROPERTY TAXES
Parcel Number
1477-66-6747
Land Assessment
$1,735,910 CAD
Improvements Assessment
$6,344,421 CAD
Total Assessment
$8,080,331 CAD
1 of 8
VIDEOS
MATTERPORT 3D EXTERIOR
MATTERPORT 3D TOUR
PHOTOS
STREET VIEW
STREET
MAP
Presented by
Corporate Center II | 4456 Corporation Ln
Already a member? Log In
Hmm, there seems to have been an error sending your message. Please try again.
Thanks! Your message was sent.







