Your email has been sent.
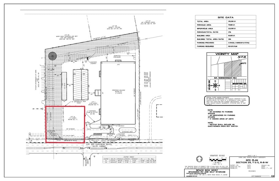
4482 Goodman Rd
Horn Lake, MS 38637
Outparcel Available · Land For Sale
·
1.11 AC


Investment Highlights
- +/-1.11 Acre Outparcel Available in Horn Lake, Mississippi
- Nearby national retailers include Walmart, Aldi, Dollar Tree, Kroger, Advanced Auto Parts, and many more
- 623.7 feet of frontage along the heavily trafficked Goodman Road (34,300 VPD)
Property Facts
1 Lot Available
Lot
| Price | $1,207,352 CAD | Lot Size | 1.11 AC |
| Price Per AC | $1,087,704.90 CAD |
| Price | $1,207,352 CAD |
| Price Per AC | $1,087,704.90 CAD |
| Lot Size | 1.11 AC |
Description
Superb outparcel available in Horn Lake, Mississippi. Located in the primary trade area, the site is an ideal location for a restaurant or retail user. The property is located along bustling Goodman Road, which experiences over 34,300 vehicles per day. The site is less than a mile from retailers such as Walmart, Aldi, Dollar Tree, Kroger, Advanced Auto Parts, Autozone, AT&T, and many more. The City of Horn Lake is beginning the process of forming a new comprehensive plan in order to ensure a sustainable growth pattern that will benefit the City of Horn Lake. The previous comprehensive plan was created in 2003 with a vision for growth up to the year 2023. Since this document has run its course, a new chapter is beginning for the City of Horn Lake, and so the Department of Planning and Development is now working with Orion Planning + Design, as well as people in the community, to create an inclusive plan that will help the city thrive for many years to come.
