Your email has been sent.
449 River Rd - River Road Condominiums 0.42 Acres of Residential Land Offered at $1,932,924 CAD in Corona, CA 92880



Investment Highlights
- Shovel-Ready | Plans Approved
- Units: Nine (9) condos
Executive Summary
FOR SALE: $1.4MM (land only)
Rare opportunity to acquire a fully entitled, shovel-ready infill condominium project in one of Corona’s most convenient, high-demand pockets. All construction, civil, architectural, and related plans are complete and approved, allowing a Buyer/Investor to step in and begin construction immediately—eliminating the time, risk, and carrying costs typically associated with the entitlement and plan-approval process.
Situated on a level, highly visible corner parcel at River Rd & Cota St, this development offers strong address recognition, clean site identity, and practical access/circulation planning. The location is minutes to the 91 & 15 freeways, providing outstanding regional connectivity throughout the Inland Empire, Orange County, and beyond. Residents will enjoy a short walk to major shopping, dining, and daily conveniences, plus proximity to outdoor recreation with Santa Ana River Trail access nearby.
Multiple exit strategies make this project ideal for a wide range of investors and developers:
Build-to-sell (condo retail sellout)
Build-to-generate income (long-term hold)
Partial sellout / partial hold (hybrid strategy)
Seller can help build post-close, offering a smoother path from acquisition to vertical construction
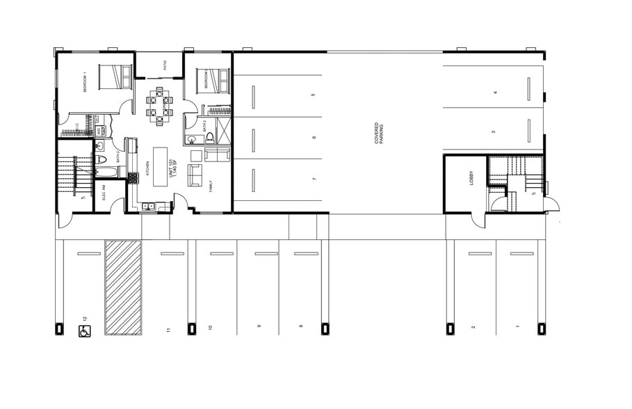
Project Overview
Address: 449 River Road, Corona, CA 92878
APN: 119-081-012
Lot Size: ±0.42 AC (±18,295 SF)
Product Type: Condominium Development
Units: Nine (9) condos
Unit Sizes: ±1,120 – 1,312 SF (per approved plans)
Total Living Space: + 11,154 SF
Total Project Size: +/- 15,628 SF (includes other areas, such as corridors, lobby, parking and off-site improvements, etc.)
Building Height: 3 stories (per approved plans)
Parking: 20 spaces (per approved plans)
Topography: Level
This is a true turnkey, entitled development—a buyer can acquire the land with approvals in hand and immediately execute on a strategy tailored to today’s market: retail sellout, income hold, or a blended approach.
Attention all builders, developers, investors, contractors, 1031 buyers, etc.
Property Facts
| Price | $1,932,924 CAD | Property Subtype | Residential |
| Sale Type | Investment | Proposed Use | Apartment Units - Condo |
| No. Lots | 1 | Total Lot Size | 0.42 AC |
| Property Type | Land | ||
| Zoning | R3 - Plans Approved to build Nine (9) Residential Condos (see plans) | ||
| Price | $1,932,924 CAD |
| Sale Type | Investment |
| No. Lots | 1 |
| Property Type | Land |
| Property Subtype | Residential |
| Proposed Use | Apartment Units - Condo |
| Total Lot Size | 0.42 AC |
| Zoning | R3 - Plans Approved to build Nine (9) Residential Condos (see plans) |
1 Lot Available
Lot
| Price | $1,932,924 CAD | Lot Size | 0.42 AC |
| Price Per AC | $4,602,200.19 CAD |
| Price | $1,932,924 CAD |
| Price Per AC | $4,602,200.19 CAD |
| Lot Size | 0.42 AC |
Address: 449 River Road, Corona, CA 92878 APN: 119-081-012 Lot Size: ±0.42 AC (±18,295 SF) Product Type: Condominium Development Units: Nine (9) condos Topography: Level
Description
449 River Road, Corona, CA 92878 — 9-Unit Residential Condo Development | Shovel-Ready | Plans Approved FOR SALE: $1.4MM (land only) Rare opportunity to acquire a fully entitled, shovel-ready infill condominium project in one of Corona’s most convenient, high-demand pockets. All construction, civil, architectural, and related plans are complete and approved, allowing a Buyer/Investor to step in and begin construction immediately—eliminating the time, risk, and carrying costs typically associated with the entitlement and plan-approval process. Situated on a level, highly visible corner parcel at River Rd & Cota St, this development offers strong address recognition, clean site identity, and practical access/circulation planning. The location is minutes to the 91 & 15 freeways, providing outstanding regional connectivity throughout the Inland Empire, Orange County, and beyond. Residents will enjoy a short walk to major shopping, dining, and daily conveniences, plus proximity to outdoor recreation with Santa Ana River Trail access nearby. Multiple exit strategies make this project ideal for a wide range of investors and developers: Build-to-sell (condo retail sellout) Build-to-generate income (long-term hold) Partial sellout / partial hold (hybrid strategy) Seller can help build post-close, offering a smoother path from acquisition to vertical construction Project Overview Address: 449 River Road, Corona, CA 92878 APN: 119-081-012 Lot Size: ±0.42 AC (±18,295 SF) Product Type: Condominium Development Units: Nine (9) condos Unit Sizes: ±1,120 – 1,312 SF (per approved plans) Total Living Space: + 11,154 SF Total Project Size: +/- 15,628 SF (includes other areas, such as corridors, lobby, parking and off-site improvements, etc.) Building Height: 3 stories (per approved plans) Parking: 20 spaces (per approved plans) Topography: Level This is a true turnkey, entitled development—a buyer can acquire the land with approvals in hand and immediately execute on a strategy tailored to today’s market: retail sellout, income hold, or a blended approach.
Property Taxes
| Parcel Number | 119-081-012 | Improvements Assessment | $0 CAD |
| Land Assessment | $870,692 CAD | Total Assessment | $870,692 CAD |
Property Taxes
Presented by
449 River Rd - River Road Condominiums
Hmm, there seems to have been an error sending your message. Please try again.
Thanks! Your message was sent.
