Your email has been sent.
Highlights
- Prime Leisure Location.
- Benefits from A5 (Hot Food Takeaway) In Part.
- In The Heart Of The Town's Night Circuit.
- Large Ground Floor Comprising Of Two Units.
- Train Station within a 2-minutes Walk.
- ///talent.views.likely.
All Available Space(1)
Display Rental Rate as
- Space
- Size
- Term
- Rental Rate
- Space Use
- Build-Out
- Available
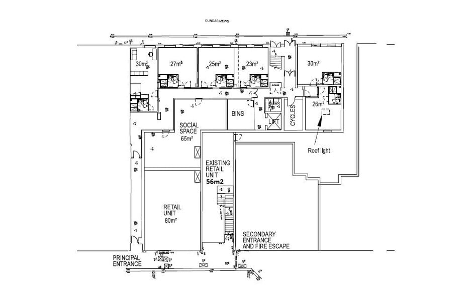
The smaller half of the unit (right front) was recently trading as a hot food takeaway premises (A5 Hot food takeaway consent) This additional space provides opportunities to keep sub division for a range of uses such as cafes, take aways and other retail businesses to grow within a prime location
- Use Class: E
- Located in-line with other retail
- Secure Storage
- Prime Leisure Location
- Train Station within a 2-minutes Walk
- Partially Built-Out as Standard Retail Space
- Private Restrooms
- Automatic Blinds
- Large Ground Floor Comprising Of Two Units
| Space | Size | Term | Rental Rate | Space Use | Build-Out | Available |
| Ground | 750-7,250 SF | Negotiable | Upon Request Upon Request Upon Request Upon Request | Retail | Partial Build-Out | Now |
Ground
| Size |
| 750-7,250 SF |
| Term |
| Negotiable |
| Rental Rate |
| Upon Request Upon Request Upon Request Upon Request |
| Space Use |
| Retail |
| Build-Out |
| Partial Build-Out |
| Available |
| Now |
Ground
| Size | 750-7,250 SF |
| Term | Negotiable |
| Rental Rate | Upon Request |
| Space Use | Retail |
| Build-Out | Partial Build-Out |
| Available | Now |
The smaller half of the unit (right front) was recently trading as a hot food takeaway premises (A5 Hot food takeaway consent) This additional space provides opportunities to keep sub division for a range of uses such as cafes, take aways and other retail businesses to grow within a prime location
- Use Class: E
- Partially Built-Out as Standard Retail Space
- Located in-line with other retail
- Private Restrooms
- Secure Storage
- Automatic Blinds
- Prime Leisure Location
- Large Ground Floor Comprising Of Two Units
- Train Station within a 2-minutes Walk
Property Facts
Features and Amenities
- Bus Line
- Automatic Blinds
- Storage Space
Nearby Major Retailers
Presented by
45-49 Albert Rd
Hmm, there seems to have been an error sending your message. Please try again.
Thanks! Your message was sent.





