Your email has been sent.
PARK HIGHLIGHTS
- Various flex/industrial units are available, with select bays offering built-out offices, updated finishes, and opportunities for immediate occupancy.
- Tenants benefit from ample parking and excellent visibility, with 40,000 VPD frontage along Powerline Road and swift access for users and clients.
- Flexible zoning allows for a wide range of uses, including retail showrooms, light manufacturing, wholesale operations, creative studios, and more.
- Benefit from HVAC-cooled units, 24/7 secure access, professional landscaping, numbered parking, robust LED lighting, and on-site security cameras.
- Conveniently located between Interstate 95 and the Florida Turnpike, offering seamless regional connectivity for distribution and daily commutes.
PARK FACTS
FEATURES AND AMENITIES
- 24 Hour Access
- Air Conditioning
ALL AVAILABLE SPACES(4)
Display Rental Rate as
- SPACE
- SIZE
- TERM
- RENTAL RATE
- SPACE USE
- CONDITION
- AVAILABLE
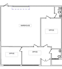
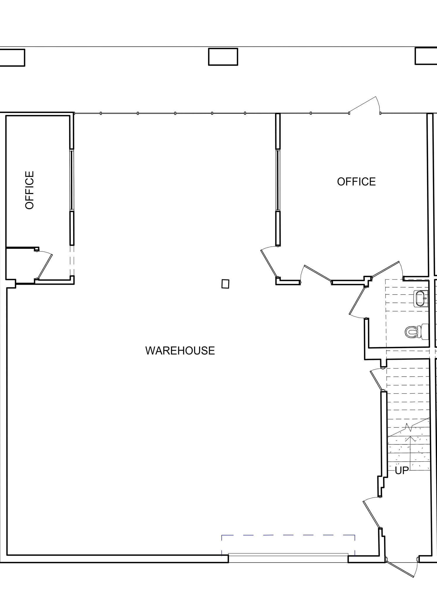
Unit 4632 features flex and office space, including second-floor office areas and first-floor industrial and office components. Located in a prime area with frontage along North Powerline Road, this property offers excellent visibility and accessibility. Please verify zoning regulations to ensure the intended use complies with all local requirements.
- Lease rate does not include utilities, property expenses or building services
Other options may be available. Please contact the leasing office for details. Additionally, be sure to verify zoning regulations to confirm that your intended use of the property complies with all local requirements.
- Lease rate does not include utilities, property expenses or building services
Unit 4692 includes office and warehouse space, along with a bathroom. A one-month security deposit is required. Please verify zoning regulations to ensure the intended use complies with all local requirements.
- Lease rate does not include utilities, property expenses or building services
| Space | Size | Term | Rental Rate | Space Use | Condition | Available |
| 1st Floor - 4632 | 3,750 SF | 1-5 Years | Upon Request Upon Request Upon Request Upon Request | Industrial | Full Build-Out | Now |
| 1st Floor - 4682 | 2,200 SF | 1-5 Years | Upon Request Upon Request Upon Request Upon Request | Industrial | Full Build-Out | Now |
| 1st Floor - 4692 | 1,500 SF | 1-5 Years | Upon Request Upon Request Upon Request Upon Request | Industrial | Full Build-Out | Now |
4650 N Powerline Rd - 1st Floor - 4632
4650 N Powerline Rd - 1st Floor - 4682
4650 N Powerline Rd - 1st Floor - 4692
- SPACE
- SIZE
- TERM
- RENTAL RATE
- SPACE USE
- CONDITION
- AVAILABLE
Unit 4790's warehouse features 20-foot ceilings and includes two office spaces.
- Lease rate does not include utilities, property expenses or building services
- Private Restrooms
- Central Air Conditioning
- High Ceilings
| Space | Size | Term | Rental Rate | Space Use | Condition | Available |
| 1st Floor - 4790 | 2,000 SF | Negotiable | Upon Request Upon Request Upon Request Upon Request | Flex | - | Now |
4750 N Powerline Rd - 1st Floor - 4790
4650 N Powerline Rd - 1st Floor - 4632
| Size | 3,750 SF |
| Term | 1-5 Years |
| Rental Rate | Upon Request |
| Space Use | Industrial |
| Condition | Full Build-Out |
| Available | Now |
Unit 4632 features flex and office space, including second-floor office areas and first-floor industrial and office components. Located in a prime area with frontage along North Powerline Road, this property offers excellent visibility and accessibility. Please verify zoning regulations to ensure the intended use complies with all local requirements.
- Lease rate does not include utilities, property expenses or building services
4650 N Powerline Rd - 1st Floor - 4682
| Size | 2,200 SF |
| Term | 1-5 Years |
| Rental Rate | Upon Request |
| Space Use | Industrial |
| Condition | Full Build-Out |
| Available | Now |
Other options may be available. Please contact the leasing office for details. Additionally, be sure to verify zoning regulations to confirm that your intended use of the property complies with all local requirements.
- Lease rate does not include utilities, property expenses or building services
4650 N Powerline Rd - 1st Floor - 4692
| Size | 1,500 SF |
| Term | 1-5 Years |
| Rental Rate | Upon Request |
| Space Use | Industrial |
| Condition | Full Build-Out |
| Available | Now |
Unit 4692 includes office and warehouse space, along with a bathroom. A one-month security deposit is required. Please verify zoning regulations to ensure the intended use complies with all local requirements.
- Lease rate does not include utilities, property expenses or building services
4750 N Powerline Rd - 1st Floor - 4790
| Size | 2,000 SF |
| Term | Negotiable |
| Rental Rate | Upon Request |
| Space Use | Flex |
| Condition | - |
| Available | Now |
Unit 4790's warehouse features 20-foot ceilings and includes two office spaces.
- Lease rate does not include utilities, property expenses or building services
- Central Air Conditioning
- Private Restrooms
- High Ceilings
MATTERPORT 3D TOURS
Unit 4692 Matterport
/2
PARK OVERVIEW
BaySpace at Crystal Pointe is a professionally managed, seven-building industrial campus offering well-maintained office and warehouse bays. Various unit sizes and flexible layouts are available, accommodating contractors, e-commerce distributors, HVAC suppliers, light assembly, and service-oriented businesses. Most spaces feature front office or showroom areas with convenient rear grade-level loading, providing functionality and efficiency to meet today's industrial users' demands. All units are equipped with HVAC cooling, while the property as a whole is landscaped and maintained to ensure a clean, attractive business environment. Tenants enjoy numbered free parking for employees and customers, complemented by commercial-grade LED night lighting and security cameras throughout the park. With 24/7 secure access, businesses can operate with confidence and convenience. Surrounded by a strong base of trade suppliers, logistics hubs, and business services, BaySpace at Crystal Pointe is the ideal environment for companies that value proximity to resources and partners. Nearby businesses include The Home Depot, HD Supply, Ferguson Plumbing, Grainger, FedEx, UPS, and Amazon Logistics hubs. Tenants also benefit from nearby fueling stations, equipment rental yards, auto service providers, and diverse local dining and business service options. On Powerline Road, one of Broward County's primary north-south arteries, BaySpace at Crystal Pointe enjoys exceptional visibility with over 40,000 vehicles passing daily (VPD). The site offers direct connectivity to Interstate 95 and Florida's Turnpike in under 10 minutes, ensuring efficient logistics, convenient employee commutes, and strong regional distribution access. By pairing high visibility with excellent access, BaySpace at Crystal Pointe is a premier destination for forward-looking businesses seeking long-term success.
ABOUT NORTHEAST BROWARD
All of South Florida’s significant highway arteries pass through the Northeast Broward area, with Interstate 95, which spans from Miami to the U.S. border with Canada, cutting through the middle. Multiple nodes of industrial space exist in this area, and its connectivity and strategic location are significant industrial tenant draw. The ability to reach the highway without facing the heavy traffic that is typical on Interstate 95 from Miami to Fort Lauderdale is a big draw. The largest tenants in the region are MS International, Cosmo International, Integrated Regional Laboratories, Gulf Eagle Supply, and JGA-Beacon.
DEMOGRAPHICS
REGIONAL ACCESSIBILITY
NEARBY AMENITIES
RESTAURANTS |
|||
|---|---|---|---|
| Dunkin' | Cafe | - | 14 min walk |
RETAIL |
||
|---|---|---|
| 7-Eleven | Convenience Market | 6 min walk |
| United Rentals | Rental Shop | 8 min walk |
| CrossFit | Fitness | 9 min walk |
HOTELS |
|
|---|---|
| Hampton by Hilton |
106 rooms
10 min drive
|
| DoubleTree by Hilton |
221 rooms
11 min drive
|
| Marriott |
315 rooms
14 min drive
|
| Wyndham |
172 rooms
15 min drive
|
| Hilton |
199 rooms
15 min drive
|
LEASING TEAM
Katyann Beerbower, Director of Leasing
ABOUT THE OWNER
OTHER PROPERTIES IN THE NEXPOINT PORTFOLIO
Presented by
BaySpace at Crystal Pointe | Deerfield Beach, FL 33442
Hmm, there seems to have been an error sending your message. Please try again.
Thanks! Your message was sent.













