Log In/Sign Up
Your email has been sent.
4502 Fegenbush Ln - OR-1 Zoning on Bardstown Rd & Fegenbush Lane 2,200 SF Specialty Building Offered at $402,870 CAD at a 13.02% Cap Rate in Louisville, KY 40228



Investment Highlights
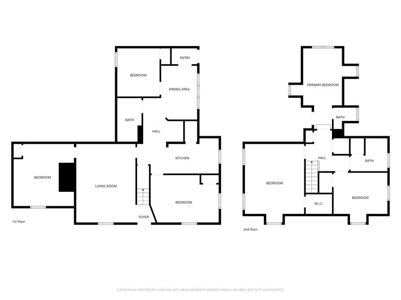
- Turnkey 6 bed, 3 full bath boarding house, sober living home, rent buy room, etc
- High traffic area
- Large paved parking lot in rear
Executive Summary
**Investors take notice** Must see residential office opportunity! Located on a .78 acre OR-1 zoned corner lot near the new WAWA. The building consists of a large 2 story home that is currently set up as 6 bedrooms, 3 full bathroom sober living / boarding house. There's a large paved parking lot in the rear for 10+ vehicles. It could easily be reconfigured into a busy office spacy or a live-work scenario. OR-1 zoning permitted uses available upon request. The previous tenant vacated on 3/31 and was paying $3700/mth. Seller has the ability to make significant repairs or improvements for the right buyer or tenant. This is an excellent value add opportunity for a creative buyer.
Current owner has made several recent improvements to the property such as refinished hardwood floors throughout most of the house, full bathroom addition on 1st floor, new sewer line, and more. MLS Link below.
Current owner has made several recent improvements to the property such as refinished hardwood floors throughout most of the house, full bathroom addition on 1st floor, new sewer line, and more. MLS Link below.
Financial Summary (Actual - 2025) Click Here to Access |
Annual (CAD) | Annual Per SF (CAD) |
|---|---|---|
| Gross Rental Income |
$99,999
|
$9.99
|
| Other Income |
-
|
-
|
| Vacancy Loss |
-
|
-
|
| Effective Gross Income |
$99,999
|
$9.99
|
| Taxes |
$99,999
|
$9.99
|
| Operating Expenses |
$99,999
|
$9.99
|
| Total Expenses |
$99,999
|
$9.99
|
| Net Operating Income |
$99,999
|
$9.99
|
Financial Summary (Actual - 2025) Click Here to Access
| Gross Rental Income (CAD) | |
|---|---|
| Annual | $99,999 |
| Annual Per SF | $9.99 |
| Other Income (CAD) | |
|---|---|
| Annual | - |
| Annual Per SF | - |
| Vacancy Loss (CAD) | |
|---|---|
| Annual | - |
| Annual Per SF | - |
| Effective Gross Income (CAD) | |
|---|---|
| Annual | $99,999 |
| Annual Per SF | $9.99 |
| Taxes (CAD) | |
|---|---|
| Annual | $99,999 |
| Annual Per SF | $9.99 |
| Operating Expenses (CAD) | |
|---|---|
| Annual | $99,999 |
| Annual Per SF | $9.99 |
| Total Expenses (CAD) | |
|---|---|
| Annual | $99,999 |
| Annual Per SF | $9.99 |
| Net Operating Income (CAD) | |
|---|---|
| Annual | $99,999 |
| Annual Per SF | $9.99 |
Property Facts
| Price | $402,870 CAD | Property Type | Specialty |
| Price Per SF | $183.12 CAD | Building Size | 2,200 SF |
| Sale Type | Investment or Owner User | No. Stories | 2 |
| Cap Rate | 13.02% | Year Built | 1945 |
| Price | $402,870 CAD |
| Price Per SF | $183.12 CAD |
| Sale Type | Investment or Owner User |
| Cap Rate | 13.02% |
| Property Type | Specialty |
| Building Size | 2,200 SF |
| No. Stories | 2 |
| Year Built | 1945 |
1 1
Fairly walkable
40/100
Exceptionally drivable
90/100
Limited public transit
30/100
Somewhat bikeable
30/100
1 of 40
Videos
Matterport 3D Exterior
Matterport 3D Tour
Photos
Street View
Street
Map
1 of 1
Presented by
4502 Fegenbush Ln - OR-1 Zoning on Bardstown Rd & Fegenbush Lane
Already a member? Log In
Hmm, there seems to have been an error sending your message. Please try again.
Thanks! Your message was sent.
