Log In/Sign Up
Your email has been sent.
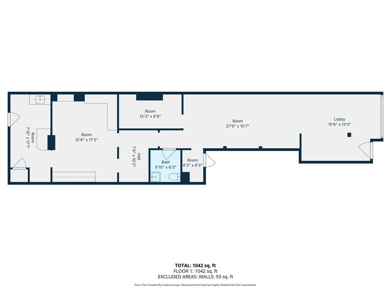
453 Central Ave 3,000 SF 100% Leased Retail Building Jersey City, NJ 07307 $1,640,328 CAD ($546.78 CAD/SF)



Executive Summary
Mixed-use in one of Jersey City’s prime retail and residential areas.
Previously was a real estate office with two apartments above.
Top floor vacant and second floor tenant is month to month.
Opportunity for retail or residential development
18.4X95 foot lot.
Previously was a real estate office with two apartments above.
Top floor vacant and second floor tenant is month to month.
Opportunity for retail or residential development
18.4X95 foot lot.
Financial Summary (Actual - 2023) |
Annual (CAD) | Annual Per SF (CAD) |
|---|---|---|
| Gross Rental Income |
$68,894
|
$22.96
|
| Other Income |
-
|
-
|
| Vacancy Loss |
-
|
-
|
| Effective Gross Income |
$68,894
|
$22.96
|
| Taxes |
$13,207
|
$4.40
|
| Operating Expenses |
-
|
-
|
| Total Expenses |
$13,207
|
$4.40
|
| Net Operating Income |
-
|
-
|
Financial Summary (Actual - 2023)
| Gross Rental Income (CAD) | |
|---|---|
| Annual | $68,894 |
| Annual Per SF | $22.96 |
| Other Income (CAD) | |
|---|---|
| Annual | - |
| Annual Per SF | - |
| Vacancy Loss (CAD) | |
|---|---|
| Annual | - |
| Annual Per SF | - |
| Effective Gross Income (CAD) | |
|---|---|
| Annual | $68,894 |
| Annual Per SF | $22.96 |
| Taxes (CAD) | |
|---|---|
| Annual | $13,207 |
| Annual Per SF | $4.40 |
| Operating Expenses (CAD) | |
|---|---|
| Annual | - |
| Annual Per SF | - |
| Total Expenses (CAD) | |
|---|---|
| Annual | $13,207 |
| Annual Per SF | $4.40 |
| Net Operating Income (CAD) | |
|---|---|
| Annual | - |
| Annual Per SF | - |
Property Facts
Sale Type
Investment
Property Type
Retail
Property Subtype
Storefront Retail/Residential
Building Size
3,000 SF
Building Class
C
Year Built
1960
Price
$1,640,328 CAD
Price Per SF
$546.78 CAD
Percent Leased
100%
Tenancy
Multiple
Building Height
3 Stories
Building FAR
1.72
Lot Size
0.04 AC
Zoning
commercial - retail
Frontage
15’ on Central Ave
Amenities
- Bus Line
- Signage
Exceptionally walkable
100/100
Fairly drivable
40/100
Strong public transit
80/100
Moderately bikeable
60/100
Nearby Major Retailers
Property Taxes
| Parcel Number | 06-01507-0000-00020 | Total Assessment | $585,729 CAD (2025) |
| Land Assessment | $176,945 CAD (2025) | Annual Taxes | $13,207 CAD ($4.40 CAD/SF) |
| Improvements Assessment | $408,784 CAD (2025) | Tax Year | 2023 |
Property Taxes
Parcel Number
06-01507-0000-00020
Land Assessment
$176,945 CAD (2025)
Improvements Assessment
$408,784 CAD (2025)
Total Assessment
$585,729 CAD (2025)
Annual Taxes
$13,207 CAD ($4.40 CAD/SF)
Tax Year
2023
1 of 6
Videos
Matterport 3D Exterior
Matterport 3D Tour
Photos
Street View
Street
Map
Presented by
453 Central Ave
Already a member? Log In
Hmm, there seems to have been an error sending your message. Please try again.
Thanks! Your message was sent.
