Log In/Sign Up
Your email has been sent.
Features
Clear Height
18’
Drive In Bays
1
Exterior Dock Doors
4
Standard Parking Spaces
35
All Available Space(1)
Display Rental Rate as
- Space
- Size
- Term
- Rental Rate
- Space Use
- Condition
- Available
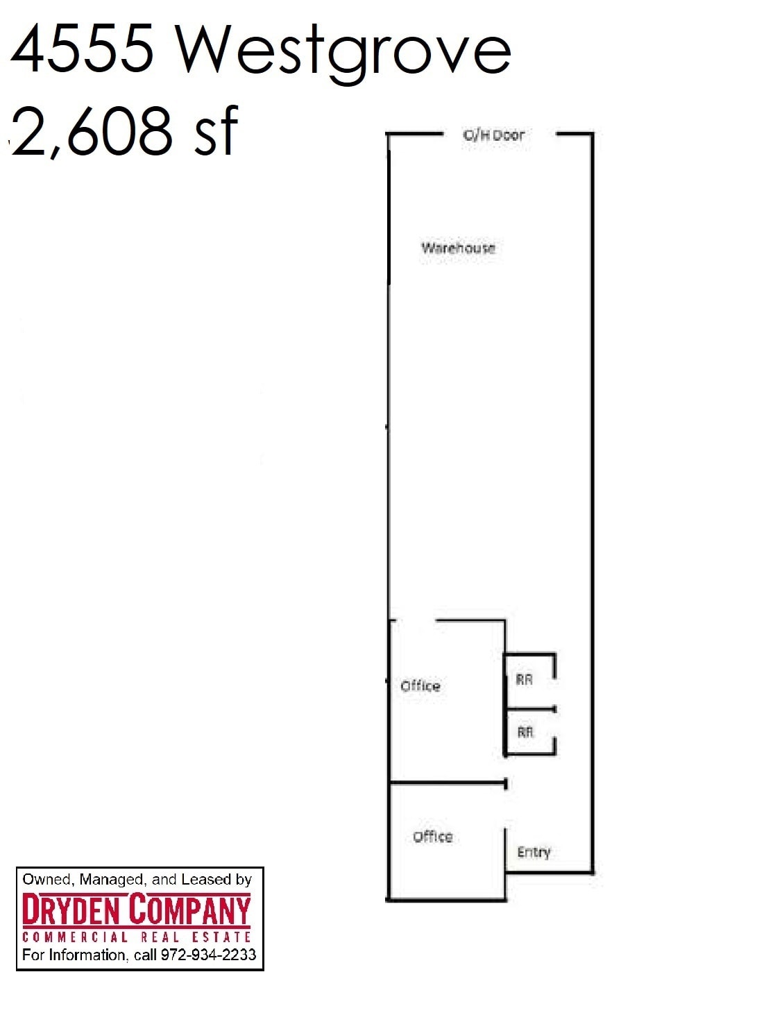
Reception, 2 offices, restroom, warehouse with dock high loading
- Lease rate does not include utilities, property expenses or building services
- 1 Loading Dock
- Includes 870 SF of dedicated office space
| Space | Size | Term | Rental Rate | Space Use | Condition | Available |
| 1st Floor - 4555 | 2,608 SF | 3-5 Years | $17.89 CAD/SF/YR $1.49 CAD/SF/MO $46,646 CAD/YR $3,887 CAD/MO | Flex | Partial Build-Out | 30 Days |
1st Floor - 4555
| Size |
| 2,608 SF |
| Term |
| 3-5 Years |
| Rental Rate |
| $17.89 CAD/SF/YR $1.49 CAD/SF/MO $46,646 CAD/YR $3,887 CAD/MO |
| Space Use |
| Flex |
| Condition |
| Partial Build-Out |
| Available |
| 30 Days |
1 of 1
Videos
Matterport 3D Exterior
Matterport 3D Tour
Photos
Street View
Street
Map
1st Floor - 4555
| Size | 2,608 SF |
| Term | 3-5 Years |
| Rental Rate | $17.89 CAD/SF/YR |
| Space Use | Flex |
| Condition | Partial Build-Out |
| Available | 30 Days |
Reception, 2 offices, restroom, warehouse with dock high loading
- Lease rate does not include utilities, property expenses or building services
- Includes 870 SF of dedicated office space
- 1 Loading Dock
Property Overview
This single story office/flex warehouse building offers spaces ranging from 2,800 sf up to 16,000 sf. There is dock high loading in the rear. This project is conveniently located in Addison right off the Dallas North Tollroad on the east side of the Addison Airport. Buildings are on Westgrove and Sunbelt with easy access to the DNT and the PGBT.
Property Facts
Building Size
32,032 SF
Lot Size
1.64 AC
Year Built
1980
Construction
Masonry
Zoning
C-1
1 1
Moderately walkable
60/100
Very drivable
80/100
Limited public transit
30/100
Fairly bikeable
50/100
1 of 3
Videos
Matterport 3D Exterior
Matterport 3D Tour
Photos
Street View
Street
Map
1 of 1
Presented by
Westgrove/Sunbelt, Ltd | 4545-4551 Westgrove Dr
Already a member? Log In
Hmm, there seems to have been an error sending your message. Please try again.
Thanks! Your message was sent.




