Your email has been sent.
All Available Spaces(14)
Display Rental Rate as
- Space
- Size
- Term
- Rental Rate
- Space Use
- Build-Out
- Available
Exceptionally high ceilings, Unique identity space, Extensive window-line, Private outdoor terraces, 2 conference rooms. Kitchen and open space. Built-out 24x40ft classroom / training space with reception and lounge area Extensive window-line corner suite.
- Fully Built-Out as Standard Office
- 2 Conference Rooms
- High Ceilings
- Open-Plan
- Mostly Open Floor Plan Layout
- Kitchen
- Natural Light
Built-out 24x40ft classroom / training space with reception and lounge area. Extensive window-line corner suite.
Full floor open plan space with elevator identity. 3 private office / conference rooms. Large kitchen & break area. Extensive column free open area.
- 3 Private Offices
- 3 Conference Rooms
2nd gen law firm buildout with TI’s available. Northern city views, 6 private offices, 2 conference rooms, Kitchen / Break area, Central open area.
- Fully Built-Out as Law Office
- 6 Private Offices
- Kitchen
- Food Service
- Open Floor Plan Layout
- 2 Conference Rooms
- Elevator Access
3 large conference rooms, 2 phone booths, Custom open kitchen /collaboration area, Double door entry.
- Fully Built-Out as Standard Office
- Kitchen
- Open-Plan
- 3 Conference Rooms
- Natural Light
Column free full floor, Large open layout, 11 private offices(2 large/9 standard), Large conference room, City views, Great natural light.
- Fully Built-Out as Standard Office
- 11 Private Offices
- Space is in Excellent Condition
- Natural Light
- Open Floor Plan Layout
- 1 Conference Room
- Kitchen
- Open-Plan
- Fully Built-Out as Professional Services Office
- 9 Private Offices
- Space is in Excellent Condition
- Elevator Access
- Natural Light
- Professional Services layout
- 8 windowline offices
- Mostly Open Floor Plan Layout
- 1 Conference Room
- Kitchen
- Print/Copy Room
- Open-Plan
- 2 interior conference rooms
- Double door elevator lobby identity
Efficient professional service space. 12 POs (9 exterior, 3 interior). Conference room. Kitchen. File room. Open work area. Furniture available.
- 12 Private Offices
1 Large conference room, 2 window-line private offices, Production, Kitchenette, Large, column free corner, space for workstations.
- Fully Built-Out as Standard Office
- 1 Conference Room
- Natural Light
- 2 Private Offices
- Kitchen
- Open-Plan
2 Large conference rooms, 1 phone both, Kitchenette, Reception, Open areas for workstations, Western outlook.
- Fully Built-Out as Standard Office
- 2 Conference Rooms
- Kitchen
- Natural Light
- 13 Private Offices
- Reception Area
- Elevator Access
- Open-Plan
Extensive southern window-line. One conference room. One PO. Open work area. Kitchenette
- 1 Private Office
- 1 Conference Room
- Fully Built-Out as Standard Office
- 13 Private Offices
- Elevator Access
- Secure Storage
- Full floor elevator identity
- 13 perimeter private offices
- Open Floor Plan Layout
- 1 Conference Room
- Private Restrooms
- Natural Light
- Sweeping city and north bay views
- Large conference and support areas
High end law firm view space. Full floor identity. 16 Private offices and large conference room.
- Fully Built-Out as Law Office
- 1 Conference Room
- Reception Area
- Print/Copy Room
- 16 Private Offices
- Space is in Excellent Condition
- Kitchen
- Natural Light
Full floor law firm view space. 8 large window-line partner offices. Elevator identity, excellent outlooks. 9 associate offices. Improvement allowance available.
- 17 Private Offices
| Space | Size | Term | Rental Rate | Space Use | Build-Out | Available |
| 2nd Floor, Ste 200 | 7,606 SF | Negotiable | Upon Request Upon Request Upon Request Upon Request | Office | Full Build-Out | Now |
| 4th Floor, Ste 488 | 2,231 SF | Negotiable | Upon Request Upon Request Upon Request Upon Request | Office | - | Now |
| 6th Floor, Ste 600 | 7,134 SF | Negotiable | Upon Request Upon Request Upon Request Upon Request | Office | - | Now |
| 7th Floor, Ste 700 | 3,595 SF | Negotiable | Upon Request Upon Request Upon Request Upon Request | Office | Full Build-Out | Now |
| 7th Floor, Ste 750 | 3,418 SF | Negotiable | Upon Request Upon Request Upon Request Upon Request | Office | Full Build-Out | Now |
| 8th Floor, Ste 800 | 7,133 SF | Negotiable | Upon Request Upon Request Upon Request Upon Request | Office | Full Build-Out | Now |
| 9th Floor, Ste 900 | 4,593 SF | Negotiable | Upon Request Upon Request Upon Request Upon Request | Office | Full Build-Out | Now |
| 10th Floor, Ste 1050 | 4,775 SF | Negotiable | Upon Request Upon Request Upon Request Upon Request | Office | - | Now |
| 12th Floor, Ste 1200 | 4,602 SF | Negotiable | Upon Request Upon Request Upon Request Upon Request | Office | Full Build-Out | Now |
| 14th Floor, Ste 1410 | 2,982 SF | Negotiable | Upon Request Upon Request Upon Request Upon Request | Office | Full Build-Out | Now |
| 14th Floor, Ste 1450 | 1,609 SF | Negotiable | Upon Request Upon Request Upon Request Upon Request | Office | - | Now |
| 18th Floor, Ste 1800 | 7,256 SF | Negotiable | Upon Request Upon Request Upon Request Upon Request | Office | Full Build-Out | Now |
| 19th Floor, Ste 1900 | 7,262 SF | Negotiable | Upon Request Upon Request Upon Request Upon Request | Office | Full Build-Out | 60 Days |
| 20th Floor, Ste 2000 | 7,262 SF | Negotiable | Upon Request Upon Request Upon Request Upon Request | Office | - | Now |
2nd Floor, Ste 200
| Size |
| 7,606 SF |
| Term |
| Negotiable |
| Rental Rate |
| Upon Request Upon Request Upon Request Upon Request |
| Space Use |
| Office |
| Build-Out |
| Full Build-Out |
| Available |
| Now |
4th Floor, Ste 488
| Size |
| 2,231 SF |
| Term |
| Negotiable |
| Rental Rate |
| Upon Request Upon Request Upon Request Upon Request |
| Space Use |
| Office |
| Build-Out |
| - |
| Available |
| Now |
6th Floor, Ste 600
| Size |
| 7,134 SF |
| Term |
| Negotiable |
| Rental Rate |
| Upon Request Upon Request Upon Request Upon Request |
| Space Use |
| Office |
| Build-Out |
| - |
| Available |
| Now |
7th Floor, Ste 700
| Size |
| 3,595 SF |
| Term |
| Negotiable |
| Rental Rate |
| Upon Request Upon Request Upon Request Upon Request |
| Space Use |
| Office |
| Build-Out |
| Full Build-Out |
| Available |
| Now |
7th Floor, Ste 750
| Size |
| 3,418 SF |
| Term |
| Negotiable |
| Rental Rate |
| Upon Request Upon Request Upon Request Upon Request |
| Space Use |
| Office |
| Build-Out |
| Full Build-Out |
| Available |
| Now |
8th Floor, Ste 800
| Size |
| 7,133 SF |
| Term |
| Negotiable |
| Rental Rate |
| Upon Request Upon Request Upon Request Upon Request |
| Space Use |
| Office |
| Build-Out |
| Full Build-Out |
| Available |
| Now |
9th Floor, Ste 900
| Size |
| 4,593 SF |
| Term |
| Negotiable |
| Rental Rate |
| Upon Request Upon Request Upon Request Upon Request |
| Space Use |
| Office |
| Build-Out |
| Full Build-Out |
| Available |
| Now |
10th Floor, Ste 1050
| Size |
| 4,775 SF |
| Term |
| Negotiable |
| Rental Rate |
| Upon Request Upon Request Upon Request Upon Request |
| Space Use |
| Office |
| Build-Out |
| - |
| Available |
| Now |
12th Floor, Ste 1200
| Size |
| 4,602 SF |
| Term |
| Negotiable |
| Rental Rate |
| Upon Request Upon Request Upon Request Upon Request |
| Space Use |
| Office |
| Build-Out |
| Full Build-Out |
| Available |
| Now |
14th Floor, Ste 1410
| Size |
| 2,982 SF |
| Term |
| Negotiable |
| Rental Rate |
| Upon Request Upon Request Upon Request Upon Request |
| Space Use |
| Office |
| Build-Out |
| Full Build-Out |
| Available |
| Now |
14th Floor, Ste 1450
| Size |
| 1,609 SF |
| Term |
| Negotiable |
| Rental Rate |
| Upon Request Upon Request Upon Request Upon Request |
| Space Use |
| Office |
| Build-Out |
| - |
| Available |
| Now |
18th Floor, Ste 1800
| Size |
| 7,256 SF |
| Term |
| Negotiable |
| Rental Rate |
| Upon Request Upon Request Upon Request Upon Request |
| Space Use |
| Office |
| Build-Out |
| Full Build-Out |
| Available |
| Now |
19th Floor, Ste 1900
| Size |
| 7,262 SF |
| Term |
| Negotiable |
| Rental Rate |
| Upon Request Upon Request Upon Request Upon Request |
| Space Use |
| Office |
| Build-Out |
| Full Build-Out |
| Available |
| 60 Days |
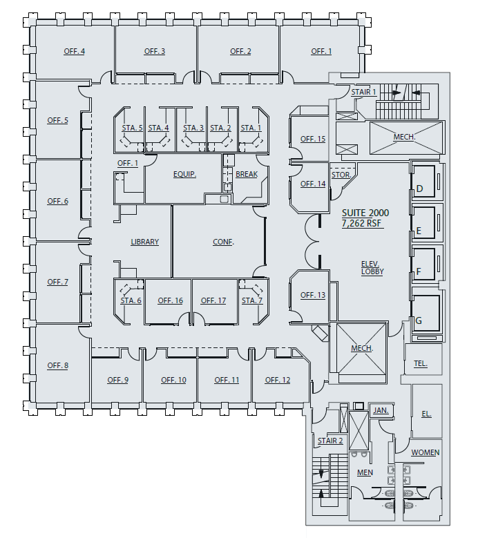
20th Floor, Ste 2000
| Size |
| 7,262 SF |
| Term |
| Negotiable |
| Rental Rate |
| Upon Request Upon Request Upon Request Upon Request |
| Space Use |
| Office |
| Build-Out |
| - |
| Available |
| Now |
2nd Floor, Ste 200
| Size | 7,606 SF |
| Term | Negotiable |
| Rental Rate | Upon Request |
| Space Use | Office |
| Build-Out | Full Build-Out |
| Available | Now |
Exceptionally high ceilings, Unique identity space, Extensive window-line, Private outdoor terraces, 2 conference rooms. Kitchen and open space. Built-out 24x40ft classroom / training space with reception and lounge area Extensive window-line corner suite.
- Fully Built-Out as Standard Office
- Mostly Open Floor Plan Layout
- 2 Conference Rooms
- Kitchen
- High Ceilings
- Natural Light
- Open-Plan
4th Floor, Ste 488
| Size | 2,231 SF |
| Term | Negotiable |
| Rental Rate | Upon Request |
| Space Use | Office |
| Build-Out | - |
| Available | Now |
Built-out 24x40ft classroom / training space with reception and lounge area. Extensive window-line corner suite.
6th Floor, Ste 600
| Size | 7,134 SF |
| Term | Negotiable |
| Rental Rate | Upon Request |
| Space Use | Office |
| Build-Out | - |
| Available | Now |
Full floor open plan space with elevator identity. 3 private office / conference rooms. Large kitchen & break area. Extensive column free open area.
- 3 Private Offices
- 3 Conference Rooms
7th Floor, Ste 700
| Size | 3,595 SF |
| Term | Negotiable |
| Rental Rate | Upon Request |
| Space Use | Office |
| Build-Out | Full Build-Out |
| Available | Now |
2nd gen law firm buildout with TI’s available. Northern city views, 6 private offices, 2 conference rooms, Kitchen / Break area, Central open area.
- Fully Built-Out as Law Office
- Open Floor Plan Layout
- 6 Private Offices
- 2 Conference Rooms
- Kitchen
- Elevator Access
- Food Service
7th Floor, Ste 750
| Size | 3,418 SF |
| Term | Negotiable |
| Rental Rate | Upon Request |
| Space Use | Office |
| Build-Out | Full Build-Out |
| Available | Now |
3 large conference rooms, 2 phone booths, Custom open kitchen /collaboration area, Double door entry.
- Fully Built-Out as Standard Office
- 3 Conference Rooms
- Kitchen
- Natural Light
- Open-Plan
8th Floor, Ste 800
| Size | 7,133 SF |
| Term | Negotiable |
| Rental Rate | Upon Request |
| Space Use | Office |
| Build-Out | Full Build-Out |
| Available | Now |
Column free full floor, Large open layout, 11 private offices(2 large/9 standard), Large conference room, City views, Great natural light.
- Fully Built-Out as Standard Office
- Open Floor Plan Layout
- 11 Private Offices
- 1 Conference Room
- Space is in Excellent Condition
- Kitchen
- Natural Light
- Open-Plan
9th Floor, Ste 900
| Size | 4,593 SF |
| Term | Negotiable |
| Rental Rate | Upon Request |
| Space Use | Office |
| Build-Out | Full Build-Out |
| Available | Now |
- Fully Built-Out as Professional Services Office
- Mostly Open Floor Plan Layout
- 9 Private Offices
- 1 Conference Room
- Space is in Excellent Condition
- Kitchen
- Elevator Access
- Print/Copy Room
- Natural Light
- Open-Plan
- Professional Services layout
- 2 interior conference rooms
- 8 windowline offices
- Double door elevator lobby identity
10th Floor, Ste 1050
| Size | 4,775 SF |
| Term | Negotiable |
| Rental Rate | Upon Request |
| Space Use | Office |
| Build-Out | - |
| Available | Now |
Efficient professional service space. 12 POs (9 exterior, 3 interior). Conference room. Kitchen. File room. Open work area. Furniture available.
- 12 Private Offices
12th Floor, Ste 1200
| Size | 4,602 SF |
| Term | Negotiable |
| Rental Rate | Upon Request |
| Space Use | Office |
| Build-Out | Full Build-Out |
| Available | Now |
1 Large conference room, 2 window-line private offices, Production, Kitchenette, Large, column free corner, space for workstations.
- Fully Built-Out as Standard Office
- 2 Private Offices
- 1 Conference Room
- Kitchen
- Natural Light
- Open-Plan
14th Floor, Ste 1410
| Size | 2,982 SF |
| Term | Negotiable |
| Rental Rate | Upon Request |
| Space Use | Office |
| Build-Out | Full Build-Out |
| Available | Now |
2 Large conference rooms, 1 phone both, Kitchenette, Reception, Open areas for workstations, Western outlook.
- Fully Built-Out as Standard Office
- 13 Private Offices
- 2 Conference Rooms
- Reception Area
- Kitchen
- Elevator Access
- Natural Light
- Open-Plan
14th Floor, Ste 1450
| Size | 1,609 SF |
| Term | Negotiable |
| Rental Rate | Upon Request |
| Space Use | Office |
| Build-Out | - |
| Available | Now |
Extensive southern window-line. One conference room. One PO. Open work area. Kitchenette
- 1 Private Office
- 1 Conference Room
18th Floor, Ste 1800
| Size | 7,256 SF |
| Term | Negotiable |
| Rental Rate | Upon Request |
| Space Use | Office |
| Build-Out | Full Build-Out |
| Available | Now |
- Fully Built-Out as Standard Office
- Open Floor Plan Layout
- 13 Private Offices
- 1 Conference Room
- Elevator Access
- Private Restrooms
- Secure Storage
- Natural Light
- Full floor elevator identity
- Sweeping city and north bay views
- 13 perimeter private offices
- Large conference and support areas
19th Floor, Ste 1900
| Size | 7,262 SF |
| Term | Negotiable |
| Rental Rate | Upon Request |
| Space Use | Office |
| Build-Out | Full Build-Out |
| Available | 60 Days |
High end law firm view space. Full floor identity. 16 Private offices and large conference room.
- Fully Built-Out as Law Office
- 16 Private Offices
- 1 Conference Room
- Space is in Excellent Condition
- Reception Area
- Kitchen
- Print/Copy Room
- Natural Light
20th Floor, Ste 2000
| Size | 7,262 SF |
| Term | Negotiable |
| Rental Rate | Upon Request |
| Space Use | Office |
| Build-Out | - |
| Available | Now |
Full floor law firm view space. 8 large window-line partner offices. Elevator identity, excellent outlooks. 9 associate offices. Improvement allowance available.
- 17 Private Offices
Property Overview
Side core design - efficient, open floor plans Financial District
- Courtyard
- Food Service
- Property Manager on Site
- Balcony
Property Facts
Presented by
456 Montgomery St
Hmm, there seems to have been an error sending your message. Please try again.
Thanks! Your message was sent.






























