Log In/Sign Up
Your email has been sent.
Investment Highlights
- Fully entitled, shovel-ready senior housing development site
- Approved for 88 units on approximately 29.7 acres
- Route 9 location with immediate access to I-290, I-90 (Mass Pike), and Route 146
- All zoning, Special Permit, and Conservation approvals in hand
- Environmental and geotechnical due diligence completed
- Under 15 minutes to Downtown Worcester and under 1 mile to the Worcester town line
Executive Summary
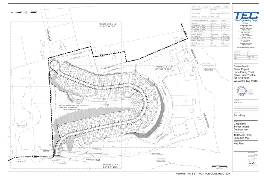
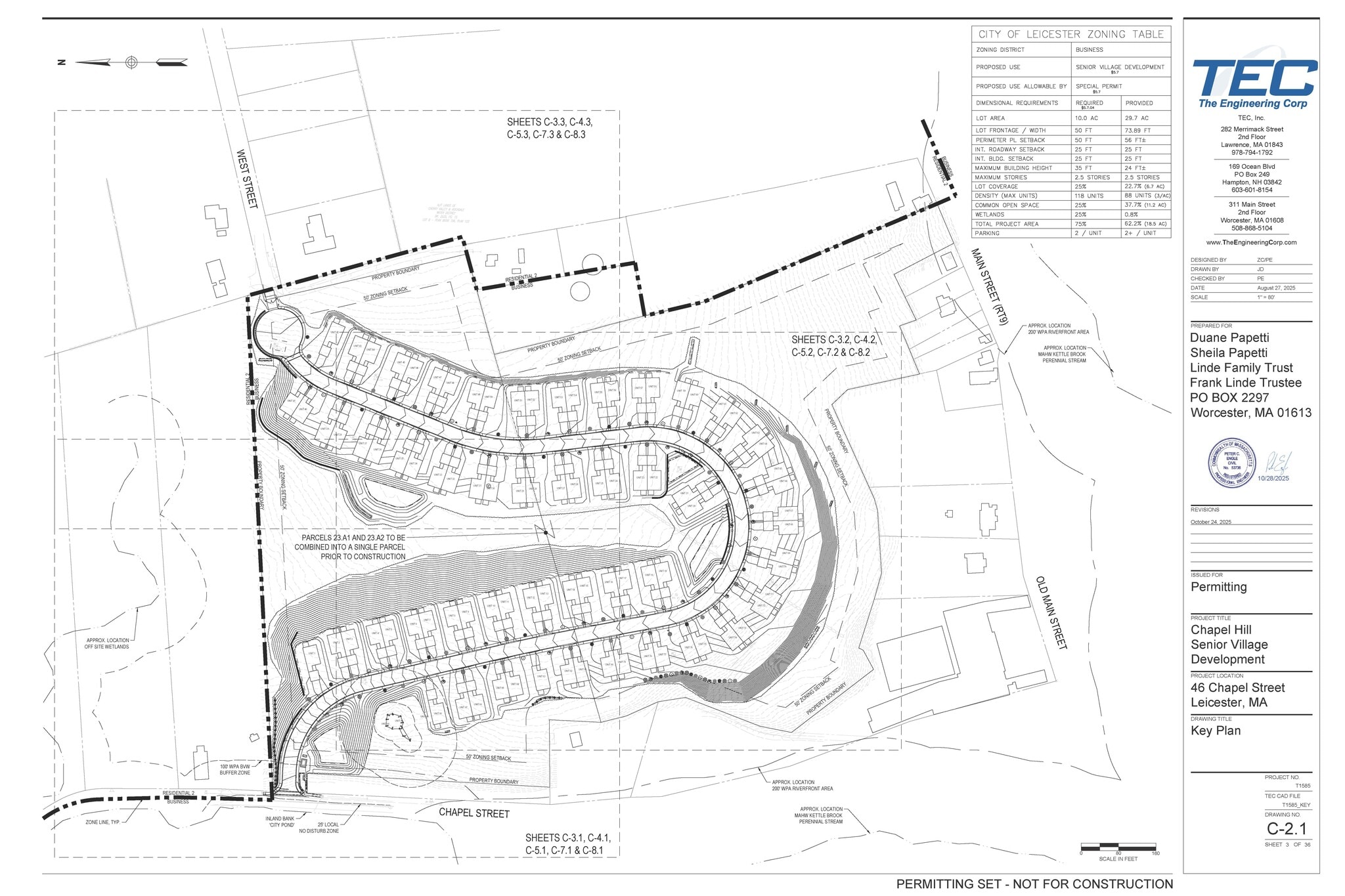
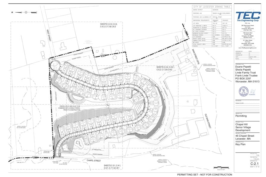
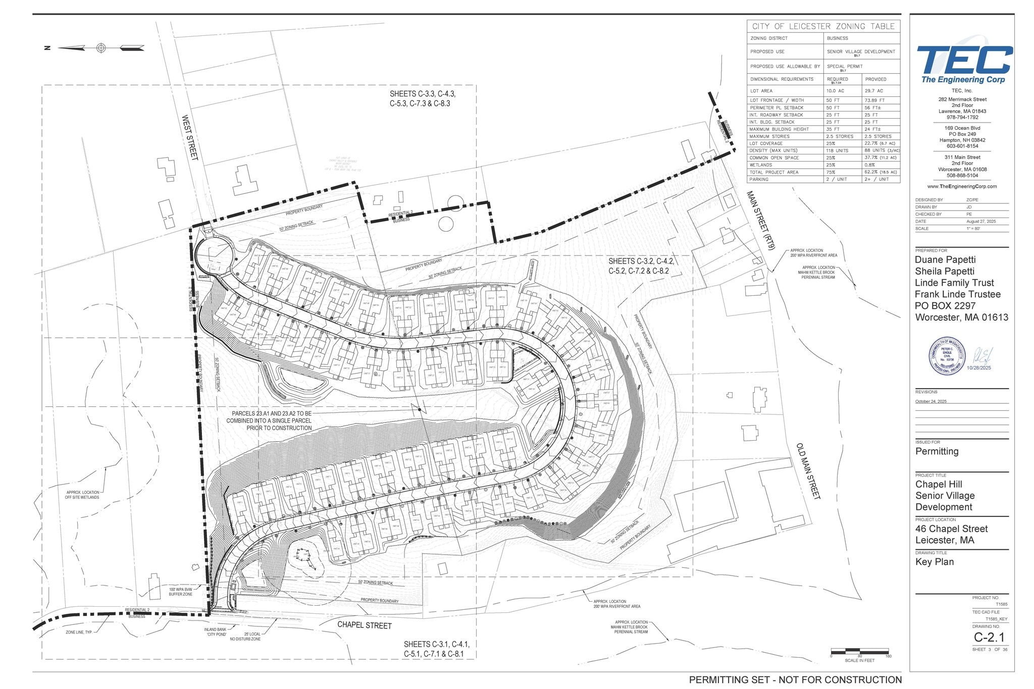
Permitted land in Leicester for 88 senior housing units.
NAI Parsons Commercial Group is pleased to present 46 Chapel Street in Leicester, Massachusetts, a ±29.7-acre shovel-ready development site with approvals in place for an 88-unit senior housing community. The property offers frontage along Chapel Street, near the intersections of West Street and Old Main Street, and is located approximately one mile from the Worcester town line. The site provides convenient regional access to Route 9, I-290, I-90 (Mass Pike), and Route 146, and is within minutes from Downtown Worcester, Worcester Regional Airport, Webster Square Plaza, Auburn Mall, and other major retail and community amenities. 45 minutes to Boston Logan International Airport and T.F. Green International Airport in Providence.
The site benefits from completed environmental and geotechnical due diligence, including soil testing and Eco-Tech review. Conservation Commission approval has been obtained, with minor wetland areas fully addressed in the approved development plans. Municipal water and sewer surround the property and are incorporated into the plans, allowing for extension and connection as part of construction. Zoned Business, with the senior housing use permitted by Special Permit, the property offers a clear development path and an accelerated timeline in a market with limited supply of senior housing development sites.
NAI Parsons Commercial Group is pleased to present 46 Chapel Street in Leicester, Massachusetts, a ±29.7-acre shovel-ready development site with approvals in place for an 88-unit senior housing community. The property offers frontage along Chapel Street, near the intersections of West Street and Old Main Street, and is located approximately one mile from the Worcester town line. The site provides convenient regional access to Route 9, I-290, I-90 (Mass Pike), and Route 146, and is within minutes from Downtown Worcester, Worcester Regional Airport, Webster Square Plaza, Auburn Mall, and other major retail and community amenities. 45 minutes to Boston Logan International Airport and T.F. Green International Airport in Providence.
The site benefits from completed environmental and geotechnical due diligence, including soil testing and Eco-Tech review. Conservation Commission approval has been obtained, with minor wetland areas fully addressed in the approved development plans. Municipal water and sewer surround the property and are incorporated into the plans, allowing for extension and connection as part of construction. Zoned Business, with the senior housing use permitted by Special Permit, the property offers a clear development path and an accelerated timeline in a market with limited supply of senior housing development sites.
Property Facts
| Price | $2,725,956 CAD | Property Subtype | Residential |
| Sale Type | Investment | Total Lot Size | 29.70 AC |
| No. Lots | 1 | No. Stories | 1 |
| Property Type | Land | ||
| Zoning | B - Special permitted approved | ||
| Price | $2,725,956 CAD |
| Sale Type | Investment |
| No. Lots | 1 |
| Property Type | Land |
| Property Subtype | Residential |
| Total Lot Size | 29.70 AC |
| No. Stories | 1 |
| Zoning | B - Special permitted approved |
1 Lot Available
Lot
| Price | $2,725,956 CAD | Lot Size | 29.70 AC |
| Price Per AC | $91,783.04 CAD |
| Price | $2,725,956 CAD |
| Price Per AC | $91,783.04 CAD |
| Lot Size | 29.70 AC |
29.7 acres
Description
Permitted land in Leicester for 88 senior housing units. NAI | Parsons Commercial Group | Boston is pleased to present the Chapel Hill Senior Housing Development located in Leicester, MA. The 29.7 acre site has been permitted for 88 senior housing units. The property is located only minutes away from downtown Leicester and under 5 miles from the intersection of Route 146 and 290.
1 1
Somewhat walkable
20/100
Exceptionally drivable
90/100
Limited public transit
20/100
Somewhat bikeable
30/100
Property Taxes
| Parcel Number | LEIC-000023-A000002 | Improvements Assessment | $0 CAD |
| Land Assessment | $130,561 CAD | Total Assessment | $130,561 CAD |
Property Taxes
Parcel Number
LEIC-000023-A000002
Land Assessment
$130,561 CAD
Improvements Assessment
$0 CAD
Total Assessment
$130,561 CAD
1 of 2
Videos
Matterport 3D Exterior
Matterport 3D Tour
Photos
Street View
Street
Map
1 of 1
Presented by
46 Chapel St
Already a member? Log In
Hmm, there seems to have been an error sending your message. Please try again.
Thanks! Your message was sent.

