Your email has been sent.
Mesa Commons 460 N Mesa Dr 53,135 SF 61% Leased Office Building Mesa, AZ 85201 $6,912,499 CAD ($130.09 CAD/SF) 3.76% Cap Rate



INVESTMENT HIGHLIGHTS
- 53,135 SF office building
- Prime location in the Phoenix area
- Ideal for professional offices
- Zoned LC for flexibility
- Spacious and versatile layout
- Potential for expansion and customization
EXECUTIVE SUMMARY
PROPERTY FACTS
AMENITIES
- Courtyard
- Signage
- Air Conditioning
MAJOR TENANTS Click Here to Access
- TENANT
- INDUSTRY
- SF OCCUPIED
- RENT/SF
- LEASE TYPE
- LEASE END
- Community Bridges Inc
- -
-
99,999 SF
- -
- -
- -
Dedicated to serving and celebrating people from all backgrounds, Genoa Healthcare has provided hands-on, personal pharmacy services to people living with behavioral health and other complex conditions for since 2020. They partner directly with clinics, communities and health plans to meet their consumers where they are, so it’s easier for them to get — and stay on — their medications. Their mission is to deliver outstanding value to consumers and partners by improving the quality of life for individuals living with behavioral health and other complex health issues through a higher level of pharmacy services.
- Mesa Heritage
- -
-
99,999 SF
- -
- -
- -
- Mesa Iron Dept of Corrections Adult Parole
- -
-
99,999 SF
- -
- -
- -
- Naffa
- -
-
99,999 SF
- -
-
Lorem Ipsum
- -
- Prodigy Healthcare
- -
-
99,999 SF
- -
- -
- -
- Sage Counseling
- -
-
99,999 SF
- -
- -
- -
- Southwest Network
- -
-
99,999 SF
- -
-
Lorem Ipsum
- -
| TENANT | INDUSTRY | SF OCCUPIED | RENT/SF | LEASE TYPE | LEASE END | |
| Community Bridges Inc | - | 99,999 SF | - | - | - | |
|
- | 99,999 SF | - | - | - | |
| Mesa Heritage | - | 99,999 SF | - | - | - | |
| Mesa Iron Dept of Corrections Adult Parole | - | 99,999 SF | - | - | - | |
| Naffa | - | 99,999 SF | - | Lorem Ipsum | - | |
| Prodigy Healthcare | - | 99,999 SF | - | - | - | |
| Sage Counseling | - | 99,999 SF | - | - | - | |
| Southwest Network | - | 99,999 SF | - | Lorem Ipsum | - |
SPACE AVAILABILITY
- SPACE
- SIZE
- SPACE USE
- CONDITION
- AVAILABLE
Includes: - Reception Area - 22 Offices - Bull Pen
Reception, 10 Offices, Conference Room, Bullpen, Breakroom, 2 Restrooms
Reception, 5 Offices, Conference Room, Bullpen, Breakroom, 1 Restroom
Reception, 4 Offices, Conference Room, Breakroom, 2 Restrooms
| Space | Size | Space Use | Condition | Available |
| 1st Fl-Ste 103 | 6,035 SF | Office | Partial Build-Out | Now |
| 1st Fl-Ste 115 | 4,178 SF | Office | Full Build-Out | Now |
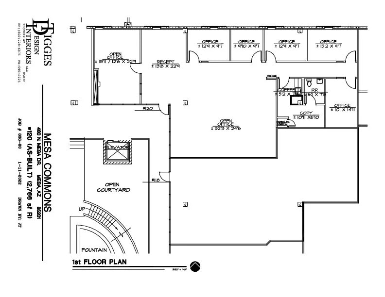
| 1st Fl-Ste 120 | 2,832 SF | Office | Partial Build-Out | Now |
| 2nd Fl-Ste 210/211 | 7,524 SF | Office | - | Now |
1st Fl-Ste 103
| Size |
| 6,035 SF |
| Space Use |
| Office |
| Condition |
| Partial Build-Out |
| Available |
| Now |
1st Fl-Ste 115
| Size |
| 4,178 SF |
| Space Use |
| Office |
| Condition |
| Full Build-Out |
| Available |
| Now |
1st Fl-Ste 120
| Size |
| 2,832 SF |
| Space Use |
| Office |
| Condition |
| Partial Build-Out |
| Available |
| Now |
2nd Fl-Ste 210/211
| Size |
| 7,524 SF |
| Space Use |
| Office |
| Condition |
| - |
| Available |
| Now |
1st Fl-Ste 103
| Size | 6,035 SF |
| Space Use | Office |
| Condition | Partial Build-Out |
| Available | Now |
Includes: - Reception Area - 22 Offices - Bull Pen
1st Fl-Ste 115
| Size | 4,178 SF |
| Space Use | Office |
| Condition | Full Build-Out |
| Available | Now |
Reception, 10 Offices, Conference Room, Bullpen, Breakroom, 2 Restrooms
1st Fl-Ste 120
| Size | 2,832 SF |
| Space Use | Office |
| Condition | Partial Build-Out |
| Available | Now |
Reception, 5 Offices, Conference Room, Bullpen, Breakroom, 1 Restroom
2nd Fl-Ste 210/211
| Size | 7,524 SF |
| Space Use | Office |
| Condition | - |
| Available | Now |
Reception, 4 Offices, Conference Room, Breakroom, 2 Restrooms
PROPERTY TAXES
| Parcel Number | 137-15-001U | Improvements Assessment | $0 CAD |
| Land Assessment | $0 CAD | Total Assessment | $607,679 CAD |
PROPERTY TAXES
Presented by
Mesa Commons | 460 N Mesa Dr
Hmm, there seems to have been an error sending your message. Please try again.
Thanks! Your message was sent.







