Your email has been sent.
Highlights
- 0.90 Acres (Fenced)
- 6” Concrete Slab in Warehouse
- 2 Drive-In Doors
Features
All Available Space(1)
Display Rental Rate as
- Space
- Size
- Term
- Rental Rate
- Space Use
- Build-Out
- Available
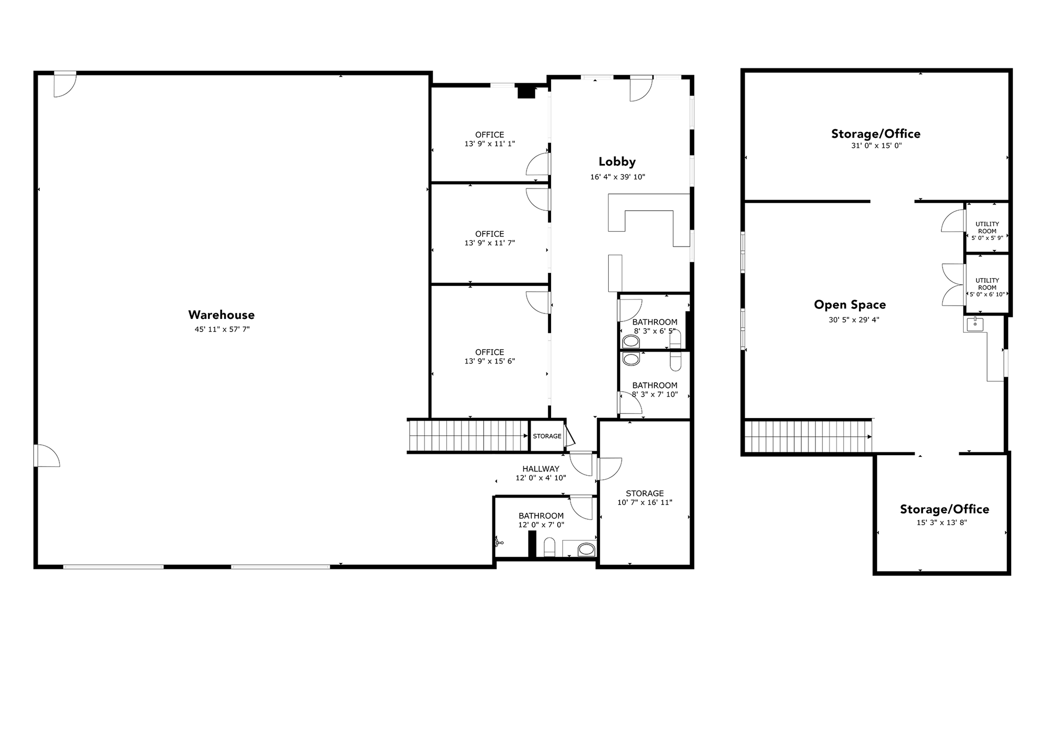
Standalone industrial building on a 0.9 acre fenced lot. The warehouse portion of the building is approximately 60’ x 50’ and a 1,200 SF mezzanine provides extra storage space. There are 3 offices and a reception area at the front of the building. Two drive-in doors 10’ wide x 12’ high. BP (Business Park) zoning allows for light industrial uses.
- Lease rate does not include utilities, property expenses or building services
| Space | Size | Term | Rental Rate | Space Use | Build-Out | Available |
| 1st Floor | 4,800 SF | Negotiable | $17.91 CAD/SF/YR $1.49 CAD/SF/MO $85,956 CAD/YR $7,163 CAD/MO | Industrial | - | Now |
1st Floor
| Size |
| 4,800 SF |
| Term |
| Negotiable |
| Rental Rate |
| $17.91 CAD/SF/YR $1.49 CAD/SF/MO $85,956 CAD/YR $7,163 CAD/MO |
| Space Use |
| Industrial |
| Build-Out |
| - |
| Available |
| Now |
1st Floor
| Size | 4,800 SF |
| Term | Negotiable |
| Rental Rate | $17.91 CAD/SF/YR |
| Space Use | Industrial |
| Build-Out | - |
| Available | Now |
Standalone industrial building on a 0.9 acre fenced lot. The warehouse portion of the building is approximately 60’ x 50’ and a 1,200 SF mezzanine provides extra storage space. There are 3 offices and a reception area at the front of the building. Two drive-in doors 10’ wide x 12’ high. BP (Business Park) zoning allows for light industrial uses.
- Lease rate does not include utilities, property expenses or building services
Property Overview
Standalone industrial building on a 0.9 acre fenced lot. The warehouse portion of the building is approximately 60’ x 50’ and a 1,200 SF mezzanine provides extra storage space. There are 3 offices and a reception area at the front of the building. Two drive-in doors 10’ wide x 12’ high. BP (Business Park) zoning allows for light industrial uses.
Warehouse Facility Facts
Select Tenants
- Floor
- Tenant Name
- Industry
- 1st
- Peak View Roofing Company
- Construction
Presented by
4605 Town Center Dr
Hmm, there seems to have been an error sending your message. Please try again.
Thanks! Your message was sent.





