Your email has been sent.
Georgetown Yards Seattle, WA 98134 1,172 - 17,916 SF of Office Space Available



PARK HIGHLIGHTS
- Flexible floor plans
- Project Renovation in Progress
- Common area/break/lounge (2q, 2020 completion)
- Exterior Renovation Coming Q4, 2020
- free conference room Area
PARK FACTS
| Total Space Available | 17,916 SF | Park Type | Industrial Park |
| Total Space Available | 17,916 SF |
| Park Type | Industrial Park |
ALL AVAILABLE SPACES(7)
Display Rental Rate as
- SPACE
- SIZE
- TERM
- RENTAL RATE
- SPACE USE
- CONDITION
- AVAILABLE
Suite B140 available 1/1/25.
- Lease rate does not include utilities, property expenses or building services
- Fits 7 - 22 People
- Partially Built-Out as Standard Office
- 7 Private Offices
Suite B150 available now
- Lease rate does not include utilities, property expenses or building services
- Mostly Open Floor Plan Layout
- 1 Private Office
- Partially Built-Out as Standard Office
- Fits 4 - 13 People
A REVITALIZED DESTINATION FOR OFFICE & CREATIVE INDUSTRIAL SPACE
- Lease rate does not include utilities, property expenses or building services
- Fits 14 - 44 People
- Revitalized facade & outdoor pavilion
- Community conference center & lounge
- CenturyLink, Comcast & Wave available
- Mostly Open Floor Plan Layout
- Newly renovated common areas
- Flexible floor plans
- Signage available
- Fits 3 - 10 People
| Space | Size | Term | Rental Rate | Space Use | Condition | Available |
| 1st Floor, Ste B140 | 2,653 SF | Negotiable | Upon Request Upon Request Upon Request Upon Request | Office | Partial Build-Out | Now |
| 1st Floor, Ste B150 | 1,504 SF | Negotiable | Upon Request Upon Request Upon Request Upon Request | Office | Partial Build-Out | 30 Days |
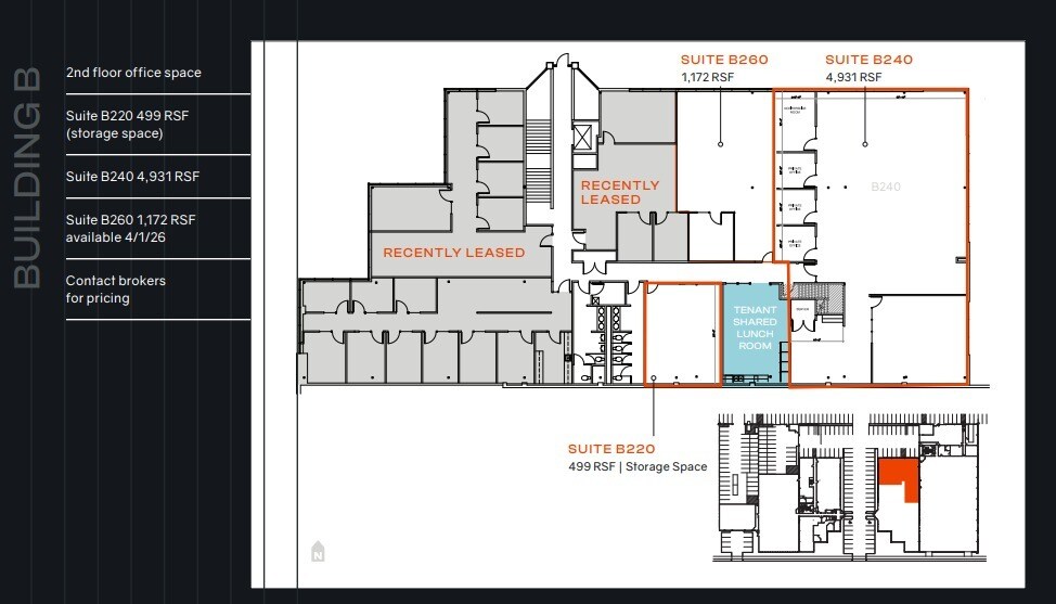
| 2nd Floor, Ste B220/B240 | 5,430 SF | Negotiable | Upon Request Upon Request Upon Request Upon Request | Office | Shell Space | Now |
| 2nd Floor, Ste B260 | 1,172 SF | Negotiable | Upon Request Upon Request Upon Request Upon Request | Office | - | 2026-04-01 |
4634-4636 E Marginal Way S - 1st Floor - Ste B140
4634-4636 E Marginal Way S - 1st Floor - Ste B150
4634-4636 E Marginal Way S - 2nd Floor - Ste B220/B240
4634-4636 E Marginal Way S - 2nd Floor - Ste B260
- SPACE
- SIZE
- TERM
- RENTAL RATE
- SPACE USE
- CONDITION
- AVAILABLE
Freshly renovated office space for lease located minutes south of Downtown Seattle
- Lease rate does not include utilities, property expenses or building services
- Mostly Open Floor Plan Layout
- Fully Built-Out as Standard Office
- Fits 4 - 12 People
- Fits 11 - 35 People
Suite C150 1,412 RSF available 7/1/25 (can be combined with C170 for 2,879 RSF)
- Lease rate does not include utilities, property expenses or building services
- Fits 4 - 12 People
| Space | Size | Term | Rental Rate | Space Use | Condition | Available |
| 1st Floor, Ste C 170 | 1,467 SF | Negotiable | Upon Request Upon Request Upon Request Upon Request | Office | Full Build-Out | Now |
| 1st Floor, Ste C110 | 4,278 SF | Negotiable | Upon Request Upon Request Upon Request Upon Request | Office | - | 2026-03-01 |
| 1st Floor, Ste C150 | 1,412 SF | Negotiable | Upon Request Upon Request Upon Request Upon Request | Office | - | Now |
4634-4636 E Marginal Way S - 1st Floor - Ste C 170
4634-4636 E Marginal Way S - 1st Floor - Ste C110
4634-4636 E Marginal Way S - 1st Floor - Ste C150
4634-4636 E Marginal Way S - 1st Floor - Ste B140
| Size | 2,653 SF |
| Term | Negotiable |
| Rental Rate | Upon Request |
| Space Use | Office |
| Condition | Partial Build-Out |
| Available | Now |
Suite B140 available 1/1/25.
- Lease rate does not include utilities, property expenses or building services
- Partially Built-Out as Standard Office
- Fits 7 - 22 People
- 7 Private Offices
4634-4636 E Marginal Way S - 1st Floor - Ste B150
| Size | 1,504 SF |
| Term | Negotiable |
| Rental Rate | Upon Request |
| Space Use | Office |
| Condition | Partial Build-Out |
| Available | 30 Days |
Suite B150 available now
- Lease rate does not include utilities, property expenses or building services
- Partially Built-Out as Standard Office
- Mostly Open Floor Plan Layout
- Fits 4 - 13 People
- 1 Private Office
4634-4636 E Marginal Way S - 2nd Floor - Ste B220/B240
| Size | 5,430 SF |
| Term | Negotiable |
| Rental Rate | Upon Request |
| Space Use | Office |
| Condition | Shell Space |
| Available | Now |
A REVITALIZED DESTINATION FOR OFFICE & CREATIVE INDUSTRIAL SPACE
- Lease rate does not include utilities, property expenses or building services
- Mostly Open Floor Plan Layout
- Fits 14 - 44 People
- Newly renovated common areas
- Revitalized facade & outdoor pavilion
- Flexible floor plans
- Community conference center & lounge
- Signage available
- CenturyLink, Comcast & Wave available
4634-4636 E Marginal Way S - 2nd Floor - Ste B260
| Size | 1,172 SF |
| Term | Negotiable |
| Rental Rate | Upon Request |
| Space Use | Office |
| Condition | - |
| Available | 2026-04-01 |
- Fits 3 - 10 People
4634-4636 E Marginal Way S - 1st Floor - Ste C 170
| Size | 1,467 SF |
| Term | Negotiable |
| Rental Rate | Upon Request |
| Space Use | Office |
| Condition | Full Build-Out |
| Available | Now |
Freshly renovated office space for lease located minutes south of Downtown Seattle
- Lease rate does not include utilities, property expenses or building services
- Fully Built-Out as Standard Office
- Mostly Open Floor Plan Layout
- Fits 4 - 12 People
4634-4636 E Marginal Way S - 1st Floor - Ste C110
| Size | 4,278 SF |
| Term | Negotiable |
| Rental Rate | Upon Request |
| Space Use | Office |
| Condition | - |
| Available | 2026-03-01 |
- Fits 11 - 35 People
4634-4636 E Marginal Way S - 1st Floor - Ste C150
| Size | 1,412 SF |
| Term | Negotiable |
| Rental Rate | Upon Request |
| Space Use | Office |
| Condition | - |
| Available | Now |
Suite C150 1,412 RSF available 7/1/25 (can be combined with C170 for 2,879 RSF)
- Lease rate does not include utilities, property expenses or building services
- Fits 4 - 12 People
SITE PLAN
PARK OVERVIEW
Georgetown Yards is a versatile five-building office and industrial complex with high visibility on East Marginal Way S, and is within close proximity to I-5, highway 99, Port of Seattle, SeaTac International Airport and Downtown Seattle. -Flexible floor plans -Project renovation in progress -Free conference room area -Signage available -Centurylink, Comcast & Wave now available -Dedicated parking (2.5/1,000 RSF on office, 1.0/1,000 RSF for Flex suites
Presented by
Georgetown Yards | Seattle, WA 98134
Hmm, there seems to have been an error sending your message. Please try again.
Thanks! Your message was sent.






