Your email has been sent.
4689-4777 Hilton Corporate Dr
Columbus, OH 43232
Hilton Business Park · Office Property For Lease
·
8,601 SF


Highlights
- Located SE of Hilton Corporate Dr and Hamilton Rd. Signage alongside I-70. Easy on off freeway access. Easy access to 270 outer-belt. Close to airport
- Conveniently located near many area amenities such as dining, lodging and shopping
- Campus-like setting with well-maintained landscaping
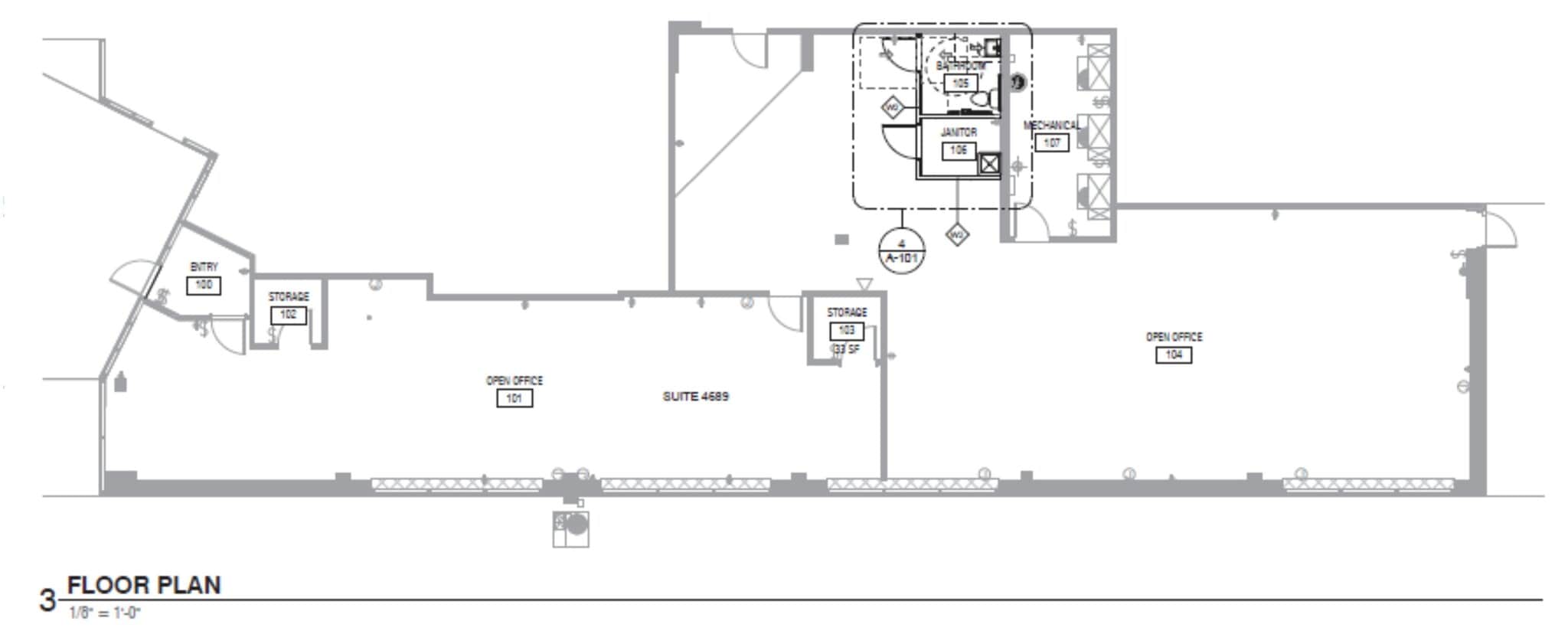
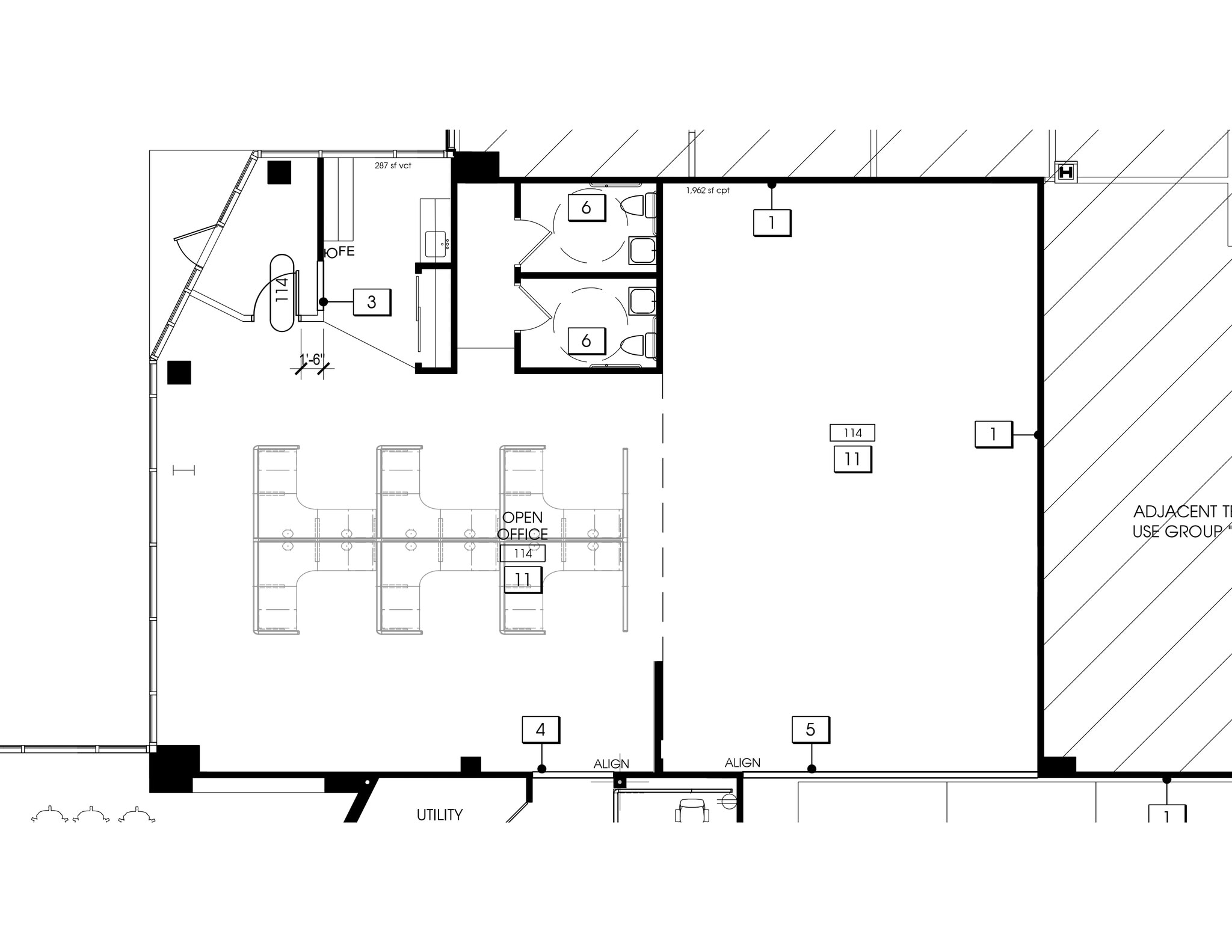
- Suite Space Available: 2,375 SF (Flex) and 6,226 SF (Office)
- Professionally managed by Lion Real Estate Services
- Prominent exterior signage above each suite for visibility
Features
Property Overview
Elford Realty is proud to present flex and office space opportunities at Hilton Business Park, ideally located in Columbus’s east submarket. Situated along I-70 just southeast of Hilton Corporate Drive and Hamilton Road, the property offers convenient access to the I-270 outerbelt. Two suites are currently available for lease: Suite 4701 (flex): 2,375 SF Suite 4707 (office): 6,226 SF Professionally managed by Lion Real Estate Services, the property features a campus-like setting with well-maintained landscaping and prominent exterior signage above each suite for enhanced visibility. Tenants enjoy close proximity to a wide range of amenities, including restaurants, retail, hotels, and essential business services.
