Your email has been sent.
47 Rue Louis Blanc 4,553 - 45,994 SF of Office Space Available in 92400 Courbevoie



Some information has been automatically translated.
HIGHLIGHTS
- Prestations premium
- Emplacement stratégique
- Espaces Divisibles
ALL AVAILABLE SPACES(6)
Display Rental Rate as
- SPACE
- SIZE
- TERM
-
RENTAL RATE
- SPACE USE
- CONDITION
- AVAILABLE
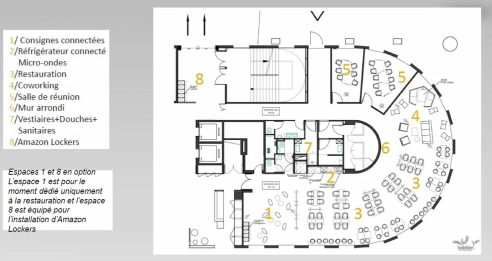
Au sein d’un immeuble tertiaire de haut standing, cet espace à louer offre un environnement de travail lumineux, modulable et parfaitement adapté aux besoins des entreprises modernes. Accessible aux personnes à mobilité réduite, il bénéficie d’une excellente desserte en transports et d’un cadre professionnel soigné. Les bureaux sont entièrement climatisés, connectés à la fibre optique, et bénéficient d’un accès sécurisé avec hôtesse d’accueil. Les utilisateurs profitent également de nombreux services mutualisés : restaurant, service traiteur, jardin paysager, ainsi que neuf salles de réunion équipées et un auditorium de 207 places avec régie son et vidéo. L’ensemble des charges comprend l’accès internet, la maintenance technique, le ménage quotidien des parties communes et privatives, ainsi que les consommations d’électricité, de chauffage et de climatisation. Cet espace constitue une solution clé en main pour toute entreprise en quête de confort, de flexibilité et de visibilité dans un quartier stratégique.
- Agency Fee: 15.00% of annual rent
- Fully Built-Out as Standard Office
- Finished Ceilings: 8’2”
- Central Air Conditioning
- Drop Ceilings
- Open-Plan
- Capacité : 700 pers
- Hauteur sous plafond : 2,50 m
- Divisible
- Security Deposit: 3 months of rent
- Mostly Open Floor Plan Layout
- Can be combined with additional space(s) for up to 45,994 SF of adjacent space
- Fully Carpeted
- Natural Light
- Plateaux lumineux
- RIE, auditorium et salles de réunion
- Climatisation
Au sein d’un immeuble tertiaire de haut standing, cet espace à louer offre un environnement de travail lumineux, modulable et parfaitement adapté aux besoins des entreprises modernes. Accessible aux personnes à mobilité réduite, il bénéficie d’une excellente desserte en transports et d’un cadre professionnel soigné. Les bureaux sont entièrement climatisés, connectés à la fibre optique, et bénéficient d’un accès sécurisé avec hôtesse d’accueil. Les utilisateurs profitent également de nombreux services mutualisés : restaurant, service traiteur, jardin paysager, ainsi que neuf salles de réunion équipées et un auditorium de 207 places avec régie son et vidéo. L’ensemble des charges comprend l’accès internet, la maintenance technique, le ménage quotidien des parties communes et privatives, ainsi que les consommations d’électricité, de chauffage et de climatisation. Cet espace constitue une solution clé en main pour toute entreprise en quête de confort, de flexibilité et de visibilité dans un quartier stratégique.
- Agency Fee: 15.00% of annual rent
- Fully Built-Out as Standard Office
- Finished Ceilings: 8’2”
- Central Air Conditioning
- Drop Ceilings
- Open-Plan
- Capacité : 700 pers
- Hauteur sous plafond : 2,50 m
- Divisible
- Security Deposit: 3 months of rent
- Mostly Open Floor Plan Layout
- Can be combined with additional space(s) for up to 45,994 SF of adjacent space
- Fully Carpeted
- Natural Light
- Plateaux lumineux
- RIE, auditorium et salles de réunion
- Climatisation
Au sein d’un immeuble tertiaire de haut standing, cet espace à louer offre un environnement de travail lumineux, modulable et parfaitement adapté aux besoins des entreprises modernes. Accessible aux personnes à mobilité réduite, il bénéficie d’une excellente desserte en transports et d’un cadre professionnel soigné. Les bureaux sont entièrement climatisés, connectés à la fibre optique, et bénéficient d’un accès sécurisé avec hôtesse d’accueil. Les utilisateurs profitent également de nombreux services mutualisés : restaurant, service traiteur, jardin paysager, ainsi que neuf salles de réunion équipées et un auditorium de 207 places avec régie son et vidéo. L’ensemble des charges comprend l’accès internet, la maintenance technique, le ménage quotidien des parties communes et privatives, ainsi que les consommations d’électricité, de chauffage et de climatisation. Cet espace constitue une solution clé en main pour toute entreprise en quête de confort, de flexibilité et de visibilité dans un quartier stratégique.
- Agency Fee: 15.00% of annual rent
- Fully Built-Out as Standard Office
- Finished Ceilings: 8’2”
- Central Air Conditioning
- Drop Ceilings
- Open-Plan
- Capacité : 700 pers
- Hauteur sous plafond : 2,50 m
- Divisible
- Security Deposit: 3 months of rent
- Mostly Open Floor Plan Layout
- Can be combined with additional space(s) for up to 45,994 SF of adjacent space
- Fully Carpeted
- Natural Light
- Plateaux lumineux
- RIE, auditorium et salles de réunion
- Climatisation
Au sein d’un immeuble tertiaire de haut standing, cet espace à louer offre un environnement de travail lumineux, modulable et parfaitement adapté aux besoins des entreprises modernes. Accessible aux personnes à mobilité réduite, il bénéficie d’une excellente desserte en transports et d’un cadre professionnel soigné. Les bureaux sont entièrement climatisés, connectés à la fibre optique, et bénéficient d’un accès sécurisé avec hôtesse d’accueil. Les utilisateurs profitent également de nombreux services mutualisés : restaurant, service traiteur, jardin paysager, ainsi que neuf salles de réunion équipées et un auditorium de 207 places avec régie son et vidéo. L’ensemble des charges comprend l’accès internet, la maintenance technique, le ménage quotidien des parties communes et privatives, ainsi que les consommations d’électricité, de chauffage et de climatisation. Cet espace constitue une solution clé en main pour toute entreprise en quête de confort, de flexibilité et de visibilité dans un quartier stratégique.
- Agency Fee: 15.00% of annual rent
- Fully Built-Out as Standard Office
- Finished Ceilings: 8’2”
- Central Air Conditioning
- Drop Ceilings
- Open-Plan
- Capacité : 700 pers
- Hauteur sous plafond : 2,50 m
- Divisible
- Security Deposit: 3 months of rent
- Mostly Open Floor Plan Layout
- Can be combined with additional space(s) for up to 45,994 SF of adjacent space
- Fully Carpeted
- Natural Light
- Plateaux lumineux
- RIE, auditorium et salles de réunion
- Climatisation
Au sein d’un immeuble tertiaire de haut standing, cet espace à louer offre un environnement de travail lumineux, modulable et parfaitement adapté aux besoins des entreprises modernes. Accessible aux personnes à mobilité réduite, il bénéficie d’une excellente desserte en transports et d’un cadre professionnel soigné. Les bureaux sont entièrement climatisés, connectés à la fibre optique, et bénéficient d’un accès sécurisé avec hôtesse d’accueil. Les utilisateurs profitent également de nombreux services mutualisés : restaurant, service traiteur, jardin paysager, ainsi que neuf salles de réunion équipées et un auditorium de 207 places avec régie son et vidéo. L’ensemble des charges comprend l’accès internet, la maintenance technique, le ménage quotidien des parties communes et privatives, ainsi que les consommations d’électricité, de chauffage et de climatisation. Cet espace constitue une solution clé en main pour toute entreprise en quête de confort, de flexibilité et de visibilité dans un quartier stratégique.
- Agency Fee: 15.00% of annual rent
- Fully Built-Out as Standard Office
- Finished Ceilings: 8’2”
- Central Air Conditioning
- Drop Ceilings
- Open-Plan
- Capacité : 700 pers
- Hauteur sous plafond : 2,50 m
- Divisible
- Security Deposit: 3 months of rent
- Mostly Open Floor Plan Layout
- Can be combined with additional space(s) for up to 45,994 SF of adjacent space
- Fully Carpeted
- Natural Light
- Plateaux lumineux
- RIE, auditorium et salles de réunion
- Climatisation
Au sein d’un immeuble tertiaire de haut standing, cet espace à louer offre un environnement de travail lumineux, modulable et parfaitement adapté aux besoins des entreprises modernes. Accessible aux personnes à mobilité réduite, il bénéficie d’une excellente desserte en transports et d’un cadre professionnel soigné. Les bureaux sont entièrement climatisés, connectés à la fibre optique, et bénéficient d’un accès sécurisé avec hôtesse d’accueil. Les utilisateurs profitent également de nombreux services mutualisés : restaurant, service traiteur, jardin paysager, ainsi que neuf salles de réunion équipées et un auditorium de 207 places avec régie son et vidéo. L’ensemble des charges comprend l’accès internet, la maintenance technique, le ménage quotidien des parties communes et privatives, ainsi que les consommations d’électricité, de chauffage et de climatisation. Cet espace constitue une solution clé en main pour toute entreprise en quête de confort, de flexibilité et de visibilité dans un quartier stratégique.
- Agency Fee: 15.00% of annual rent
- Fully Built-Out as Standard Office
- Finished Ceilings: 8’2”
- Central Air Conditioning
- Drop Ceilings
- Open-Plan
- Capacité : 700 pers
- Hauteur sous plafond : 2,50 m
- Divisible
- Security Deposit: 3 months of rent
- Mostly Open Floor Plan Layout
- Can be combined with additional space(s) for up to 45,994 SF of adjacent space
- Fully Carpeted
- Natural Light
- Plateaux lumineux
- RIE, auditorium et salles de réunion
- Climatisation
| Space | Size | Term | Rental Rate | Space Use | Condition | Available |
| 1st Floor | 7,739 SF | 3/6/9 | $51.01 CAD/SF/YR HT-HC $4.25 CAD/SF/MO HT-HC $394,786 CAD/YR HT-HC $32,899 CAD/MO HT-HC | Office | Full Build-Out | Now |
| 2nd Floor | 8,428 SF | 3/6/9 | $51.01 CAD/SF/YR HT-HC $4.25 CAD/SF/MO HT-HC $429,927 CAD/YR HT-HC $35,827 CAD/MO HT-HC | Office | Full Build-Out | Now |
| 3rd Floor | 8,428 SF | 3/6/9 | $51.01 CAD/SF/YR HT-HC $4.25 CAD/SF/MO HT-HC $429,927 CAD/YR HT-HC $35,827 CAD/MO HT-HC | Office | Full Build-Out | Now |
| 4th Floor | 8,428 SF | 3/6/9 | $51.01 CAD/SF/YR HT-HC $4.25 CAD/SF/MO HT-HC $429,927 CAD/YR HT-HC $35,827 CAD/MO HT-HC | Office | Full Build-Out | Now |
| 5th Floor | 8,417 SF | 3/6/9 | $51.01 CAD/SF/YR HT-HC $4.25 CAD/SF/MO HT-HC $429,378 CAD/YR HT-HC $35,781 CAD/MO HT-HC | Office | Full Build-Out | Now |
| 6th Floor | 4,553 SF | 3/6/9 | $51.01 CAD/SF/YR HT-HC $4.25 CAD/SF/MO HT-HC $232,259 CAD/YR HT-HC $19,355 CAD/MO HT-HC | Office | Full Build-Out | Now |
1st Floor
| Size |
| 7,739 SF |
| Term |
| 3/6/9 |
|
Rental Rate
|
| $51.01 CAD/SF/YR HT-HC $4.25 CAD/SF/MO HT-HC $394,786 CAD/YR HT-HC $32,899 CAD/MO HT-HC |
| Space Use |
| Office |
| Condition |
| Full Build-Out |
| Available |
| Now |
2nd Floor
| Size |
| 8,428 SF |
| Term |
| 3/6/9 |
|
Rental Rate
|
| $51.01 CAD/SF/YR HT-HC $4.25 CAD/SF/MO HT-HC $429,927 CAD/YR HT-HC $35,827 CAD/MO HT-HC |
| Space Use |
| Office |
| Condition |
| Full Build-Out |
| Available |
| Now |
3rd Floor
| Size |
| 8,428 SF |
| Term |
| 3/6/9 |
|
Rental Rate
|
| $51.01 CAD/SF/YR HT-HC $4.25 CAD/SF/MO HT-HC $429,927 CAD/YR HT-HC $35,827 CAD/MO HT-HC |
| Space Use |
| Office |
| Condition |
| Full Build-Out |
| Available |
| Now |
4th Floor
| Size |
| 8,428 SF |
| Term |
| 3/6/9 |
|
Rental Rate
|
| $51.01 CAD/SF/YR HT-HC $4.25 CAD/SF/MO HT-HC $429,927 CAD/YR HT-HC $35,827 CAD/MO HT-HC |
| Space Use |
| Office |
| Condition |
| Full Build-Out |
| Available |
| Now |
5th Floor
| Size |
| 8,417 SF |
| Term |
| 3/6/9 |
|
Rental Rate
|
| $51.01 CAD/SF/YR HT-HC $4.25 CAD/SF/MO HT-HC $429,378 CAD/YR HT-HC $35,781 CAD/MO HT-HC |
| Space Use |
| Office |
| Condition |
| Full Build-Out |
| Available |
| Now |
6th Floor
| Size |
| 4,553 SF |
| Term |
| 3/6/9 |
|
Rental Rate
|
| $51.01 CAD/SF/YR HT-HC $4.25 CAD/SF/MO HT-HC $232,259 CAD/YR HT-HC $19,355 CAD/MO HT-HC |
| Space Use |
| Office |
| Condition |
| Full Build-Out |
| Available |
| Now |
1st Floor
| Size | 7,739 SF |
| Term | 3/6/9 |
|
Rental Rate
|
$51.01 CAD/SF/YR HT-HC |
| Space Use | Office |
| Condition | Full Build-Out |
| Available | Now |
Au sein d’un immeuble tertiaire de haut standing, cet espace à louer offre un environnement de travail lumineux, modulable et parfaitement adapté aux besoins des entreprises modernes. Accessible aux personnes à mobilité réduite, il bénéficie d’une excellente desserte en transports et d’un cadre professionnel soigné. Les bureaux sont entièrement climatisés, connectés à la fibre optique, et bénéficient d’un accès sécurisé avec hôtesse d’accueil. Les utilisateurs profitent également de nombreux services mutualisés : restaurant, service traiteur, jardin paysager, ainsi que neuf salles de réunion équipées et un auditorium de 207 places avec régie son et vidéo. L’ensemble des charges comprend l’accès internet, la maintenance technique, le ménage quotidien des parties communes et privatives, ainsi que les consommations d’électricité, de chauffage et de climatisation. Cet espace constitue une solution clé en main pour toute entreprise en quête de confort, de flexibilité et de visibilité dans un quartier stratégique.
- Agency Fee: 15.00% of annual rent
- Security Deposit: 3 months of rent
- Fully Built-Out as Standard Office
- Mostly Open Floor Plan Layout
- Finished Ceilings: 8’2”
- Can be combined with additional space(s) for up to 45,994 SF of adjacent space
- Central Air Conditioning
- Fully Carpeted
- Drop Ceilings
- Natural Light
- Open-Plan
- Plateaux lumineux
- Capacité : 700 pers
- RIE, auditorium et salles de réunion
- Hauteur sous plafond : 2,50 m
- Climatisation
- Divisible
2nd Floor
| Size | 8,428 SF |
| Term | 3/6/9 |
|
Rental Rate
|
$51.01 CAD/SF/YR HT-HC |
| Space Use | Office |
| Condition | Full Build-Out |
| Available | Now |
Au sein d’un immeuble tertiaire de haut standing, cet espace à louer offre un environnement de travail lumineux, modulable et parfaitement adapté aux besoins des entreprises modernes. Accessible aux personnes à mobilité réduite, il bénéficie d’une excellente desserte en transports et d’un cadre professionnel soigné. Les bureaux sont entièrement climatisés, connectés à la fibre optique, et bénéficient d’un accès sécurisé avec hôtesse d’accueil. Les utilisateurs profitent également de nombreux services mutualisés : restaurant, service traiteur, jardin paysager, ainsi que neuf salles de réunion équipées et un auditorium de 207 places avec régie son et vidéo. L’ensemble des charges comprend l’accès internet, la maintenance technique, le ménage quotidien des parties communes et privatives, ainsi que les consommations d’électricité, de chauffage et de climatisation. Cet espace constitue une solution clé en main pour toute entreprise en quête de confort, de flexibilité et de visibilité dans un quartier stratégique.
- Agency Fee: 15.00% of annual rent
- Security Deposit: 3 months of rent
- Fully Built-Out as Standard Office
- Mostly Open Floor Plan Layout
- Finished Ceilings: 8’2”
- Can be combined with additional space(s) for up to 45,994 SF of adjacent space
- Central Air Conditioning
- Fully Carpeted
- Drop Ceilings
- Natural Light
- Open-Plan
- Plateaux lumineux
- Capacité : 700 pers
- RIE, auditorium et salles de réunion
- Hauteur sous plafond : 2,50 m
- Climatisation
- Divisible
3rd Floor
| Size | 8,428 SF |
| Term | 3/6/9 |
|
Rental Rate
|
$51.01 CAD/SF/YR HT-HC |
| Space Use | Office |
| Condition | Full Build-Out |
| Available | Now |
Au sein d’un immeuble tertiaire de haut standing, cet espace à louer offre un environnement de travail lumineux, modulable et parfaitement adapté aux besoins des entreprises modernes. Accessible aux personnes à mobilité réduite, il bénéficie d’une excellente desserte en transports et d’un cadre professionnel soigné. Les bureaux sont entièrement climatisés, connectés à la fibre optique, et bénéficient d’un accès sécurisé avec hôtesse d’accueil. Les utilisateurs profitent également de nombreux services mutualisés : restaurant, service traiteur, jardin paysager, ainsi que neuf salles de réunion équipées et un auditorium de 207 places avec régie son et vidéo. L’ensemble des charges comprend l’accès internet, la maintenance technique, le ménage quotidien des parties communes et privatives, ainsi que les consommations d’électricité, de chauffage et de climatisation. Cet espace constitue une solution clé en main pour toute entreprise en quête de confort, de flexibilité et de visibilité dans un quartier stratégique.
- Agency Fee: 15.00% of annual rent
- Security Deposit: 3 months of rent
- Fully Built-Out as Standard Office
- Mostly Open Floor Plan Layout
- Finished Ceilings: 8’2”
- Can be combined with additional space(s) for up to 45,994 SF of adjacent space
- Central Air Conditioning
- Fully Carpeted
- Drop Ceilings
- Natural Light
- Open-Plan
- Plateaux lumineux
- Capacité : 700 pers
- RIE, auditorium et salles de réunion
- Hauteur sous plafond : 2,50 m
- Climatisation
- Divisible
4th Floor
| Size | 8,428 SF |
| Term | 3/6/9 |
|
Rental Rate
|
$51.01 CAD/SF/YR HT-HC |
| Space Use | Office |
| Condition | Full Build-Out |
| Available | Now |
Au sein d’un immeuble tertiaire de haut standing, cet espace à louer offre un environnement de travail lumineux, modulable et parfaitement adapté aux besoins des entreprises modernes. Accessible aux personnes à mobilité réduite, il bénéficie d’une excellente desserte en transports et d’un cadre professionnel soigné. Les bureaux sont entièrement climatisés, connectés à la fibre optique, et bénéficient d’un accès sécurisé avec hôtesse d’accueil. Les utilisateurs profitent également de nombreux services mutualisés : restaurant, service traiteur, jardin paysager, ainsi que neuf salles de réunion équipées et un auditorium de 207 places avec régie son et vidéo. L’ensemble des charges comprend l’accès internet, la maintenance technique, le ménage quotidien des parties communes et privatives, ainsi que les consommations d’électricité, de chauffage et de climatisation. Cet espace constitue une solution clé en main pour toute entreprise en quête de confort, de flexibilité et de visibilité dans un quartier stratégique.
- Agency Fee: 15.00% of annual rent
- Security Deposit: 3 months of rent
- Fully Built-Out as Standard Office
- Mostly Open Floor Plan Layout
- Finished Ceilings: 8’2”
- Can be combined with additional space(s) for up to 45,994 SF of adjacent space
- Central Air Conditioning
- Fully Carpeted
- Drop Ceilings
- Natural Light
- Open-Plan
- Plateaux lumineux
- Capacité : 700 pers
- RIE, auditorium et salles de réunion
- Hauteur sous plafond : 2,50 m
- Climatisation
- Divisible
5th Floor
| Size | 8,417 SF |
| Term | 3/6/9 |
|
Rental Rate
|
$51.01 CAD/SF/YR HT-HC |
| Space Use | Office |
| Condition | Full Build-Out |
| Available | Now |
Au sein d’un immeuble tertiaire de haut standing, cet espace à louer offre un environnement de travail lumineux, modulable et parfaitement adapté aux besoins des entreprises modernes. Accessible aux personnes à mobilité réduite, il bénéficie d’une excellente desserte en transports et d’un cadre professionnel soigné. Les bureaux sont entièrement climatisés, connectés à la fibre optique, et bénéficient d’un accès sécurisé avec hôtesse d’accueil. Les utilisateurs profitent également de nombreux services mutualisés : restaurant, service traiteur, jardin paysager, ainsi que neuf salles de réunion équipées et un auditorium de 207 places avec régie son et vidéo. L’ensemble des charges comprend l’accès internet, la maintenance technique, le ménage quotidien des parties communes et privatives, ainsi que les consommations d’électricité, de chauffage et de climatisation. Cet espace constitue une solution clé en main pour toute entreprise en quête de confort, de flexibilité et de visibilité dans un quartier stratégique.
- Agency Fee: 15.00% of annual rent
- Security Deposit: 3 months of rent
- Fully Built-Out as Standard Office
- Mostly Open Floor Plan Layout
- Finished Ceilings: 8’2”
- Can be combined with additional space(s) for up to 45,994 SF of adjacent space
- Central Air Conditioning
- Fully Carpeted
- Drop Ceilings
- Natural Light
- Open-Plan
- Plateaux lumineux
- Capacité : 700 pers
- RIE, auditorium et salles de réunion
- Hauteur sous plafond : 2,50 m
- Climatisation
- Divisible
6th Floor
| Size | 4,553 SF |
| Term | 3/6/9 |
|
Rental Rate
|
$51.01 CAD/SF/YR HT-HC |
| Space Use | Office |
| Condition | Full Build-Out |
| Available | Now |
Au sein d’un immeuble tertiaire de haut standing, cet espace à louer offre un environnement de travail lumineux, modulable et parfaitement adapté aux besoins des entreprises modernes. Accessible aux personnes à mobilité réduite, il bénéficie d’une excellente desserte en transports et d’un cadre professionnel soigné. Les bureaux sont entièrement climatisés, connectés à la fibre optique, et bénéficient d’un accès sécurisé avec hôtesse d’accueil. Les utilisateurs profitent également de nombreux services mutualisés : restaurant, service traiteur, jardin paysager, ainsi que neuf salles de réunion équipées et un auditorium de 207 places avec régie son et vidéo. L’ensemble des charges comprend l’accès internet, la maintenance technique, le ménage quotidien des parties communes et privatives, ainsi que les consommations d’électricité, de chauffage et de climatisation. Cet espace constitue une solution clé en main pour toute entreprise en quête de confort, de flexibilité et de visibilité dans un quartier stratégique.
- Agency Fee: 15.00% of annual rent
- Security Deposit: 3 months of rent
- Fully Built-Out as Standard Office
- Mostly Open Floor Plan Layout
- Finished Ceilings: 8’2”
- Can be combined with additional space(s) for up to 45,994 SF of adjacent space
- Central Air Conditioning
- Fully Carpeted
- Drop Ceilings
- Natural Light
- Open-Plan
- Plateaux lumineux
- Capacité : 700 pers
- RIE, auditorium et salles de réunion
- Hauteur sous plafond : 2,50 m
- Climatisation
- Divisible
PROPERTY OVERVIEW
Savills offers 4,273 sqm of office space for rent in Courbevoie (92). This fully renovated, standalone building (non-high-rise) is located just steps away from the La Défense business district and features functional and bright office floors. Availability: Immediate
- Concierge
- Conferencing Facility
- Food Service
- Wheelchair Accessible
- Reception
- Air Conditioning
- Fiber Optic Internet
PROPERTY FACTS
Presented by
47 Rue Louis Blanc
Hmm, there seems to have been an error sending your message. Please try again.
Thanks! Your message was sent.



