Your email has been sent.
Metropolis at Metrotown 4700-4820 Kingsway 4,400 - 21,511 SF of 4-Star Office Space Available in Burnaby, BC V5H 4P1



Highlights
- Located across from 1st Avenue Marketplace and T&T Supermarket.
- Excellent transit access via SkyTrain and multiple bus routes.
- Immediate occupancy in a freestanding building with parking.
- Surrounded by major retailers and diverse local businesses.
- Walkable, amenity-rich neighborhood with strong residential density.
Space Availability (1)
Display Rental Rate as
- Space
- Size
- Term
- Rental Rate
- Rent Type
| Space | Size | Term | Rental Rate | Rent Type | ||
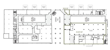
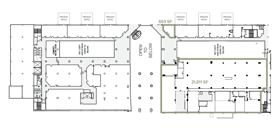
| 3rd Floor, Ste 492 | 4,400-21,511 SF | 1-10 Years | $25.00 CAD/SF/YR $2.08 CAD/SF/MO $537,775 CAD/YR $44,815 CAD/MO | Triple Net (NNN) |
3rd Floor, Ste 492
Within the 1.575 million square feet Metropolis at Metrotown offers over 400 shops, services and restaurants including gourmet coffee shops and juice bars such as Starbucks, Tim Hortons, Blenz, Bella Gelateria and Jugo Juice. This central location also provides direct connectivity to SkyTrain, convenient proximity to popular dining choices including Earls, Cactus Club Cafe, Trattoria by Glowbal, and Boston Pizza. Convenient access to three Hotels including the Hilton Vancouver, Element by Westin and Holiday Inn Express are also within a two block radius. Metropolis at Metrotown Offices offers two built-in daycare options for employees: YMCA and Jellybeans Park Playcare Daycare.
- Lease rate does not include utilities, property expenses or building services
- Fully Built-Out as Standard Office
- Mostly Open Floor Plan Layout
- Fits 11 - 173 People
- 3 Private Offices
- 6 Conference Rooms
- High Ceilings
- Natural Light
- Smoke Detector
- Existing Call Centre with quality improvements
- Lunchroom
- Contiguous space up to 52,000 SF
- Windows provide ample natural light.
Rent Types
The rent amount and type that the tenant (lessee) will be responsible to pay to the landlord (lessor) throughout the lease term is negotiated prior to both parties signing a lease agreement. The rent type will vary depending upon the services provided. For example, triple net rents are typically lower than full service rents due to additional expenses the tenant is required to pay in addition to the base rent. Contact the listing broker for a full understanding of any associated costs or additional expenses for each rent type.
1. Full Service: A rental rate that includes normal building standard services as provided by the landlord within a base year rental.
2. Double Net (NN): Tenant pays for only two of the building expenses; the landlord and tenant determine the specific expenses prior to signing the lease agreement.
3. Triple Net (NNN): A lease in which the tenant is responsible for all expenses associated with their proportional share of occupancy of the building.
4. Modified Gross: Modified Gross is a general type of lease rate where typically the tenant will be responsible for their proportional share of one or more of the expenses. The landlord will pay the remaining expenses. See the below list of common Modified Gross rental rate structures: 4. Plus All Utilities: A type of Modified Gross Lease where the tenant is responsible for their proportional share of utilities in addition to the rent. 4. Plus Cleaning: A type of Modified Gross Lease where the tenant is responsible for their proportional share of cleaning in addition to the rent. 4. Plus Electric: A type of Modified Gross Lease where the tenant is responsible for their proportional share of the electrical cost in addition to the rent. 4. Plus Electric & Cleaning: A type of Modified Gross Lease where the tenant is responsible for their proportional share of the electrical and cleaning cost in addition to the rent. 4. Plus Utilities and Char: A type of Modified Gross Lease where the tenant is responsible for their proportional share of the utilities and cleaning cost in addition to the rent. 4. Industrial Gross: A type of Modified Gross lease where the tenant pays one or more of the expenses in addition to the rent. The landlord and tenant determine these prior to signing the lease agreement.
5. Tenant Electric: The landlord pays for all services and the tenant is responsible for their usage of lights and electrical outlets in the space they occupy.
6. Negotiable or Upon Request: Used when the leasing contact does not provide the rent or service type.
7. TBD: To be determined; used for buildings for which no rent or service type is known, commonly utilized when the buildings are not yet built.
Property Facts
| Total Space Available | 21,511 SF | Total Land Area | 21.32 AC |
| Min. Divisible | 4,400 SF | Year Built | 1989 |
| Property Type | Retail | Parking Ratio | 2.1/1,000 SF |
| Gross Leasable Area | 1,600,000 SF |
| Total Space Available | 21,511 SF |
| Min. Divisible | 4,400 SF |
| Property Type | Retail |
| Gross Leasable Area | 1,600,000 SF |
| Total Land Area | 21.32 AC |
| Year Built | 1989 |
| Parking Ratio | 2.1/1,000 SF |
About the Property
1772 Renfrew Street is ideally positioned near the intersection of Renfrew Street and East 1st Avenue, placing it at the heart of a vibrant community known for its cultural diversity, strong residential base, and growing commercial activity. Tenants will benefit from proximity to major retailers such as Real Canadian Superstore, Walmart, and London Drugs, as well as a wide variety of local dining, grocery, and service options. Transit access is a key advantage, with Renfrew SkyTrain Station (Millennium Line) and multiple bus routes including the 099 B-Line serving the area. This connectivity supports both customer convenience and employee accessibility. The surrounding neighborhood also features educational institutions, community centers, and healthcare services, reinforcing its appeal as a well-rounded urban hub.
- Bus Line
- Courtyard
- Freeway Visibility
- Metro/Subway
- Pylon Sign
- Signage
- Signalized Intersection
- Air Conditioning
Nearby Major Retailers
Presented by
Metropolis at Metrotown | 4700-4820 Kingsway
Hmm, there seems to have been an error sending your message. Please try again.
Thanks! Your message was sent.


