Log In/Sign Up
Your email has been sent.
FEATURES
Clear Height
17’
Drive In Bays
1
Exterior Dock Doors
2
Levelers
2
Standard Parking Spaces
110
ALL AVAILABLE SPACE(1)
Display Rental Rate as
- SPACE
- SIZE
- TERM
- RENTAL RATE
- SPACE USE
- CONDITION
- AVAILABLE
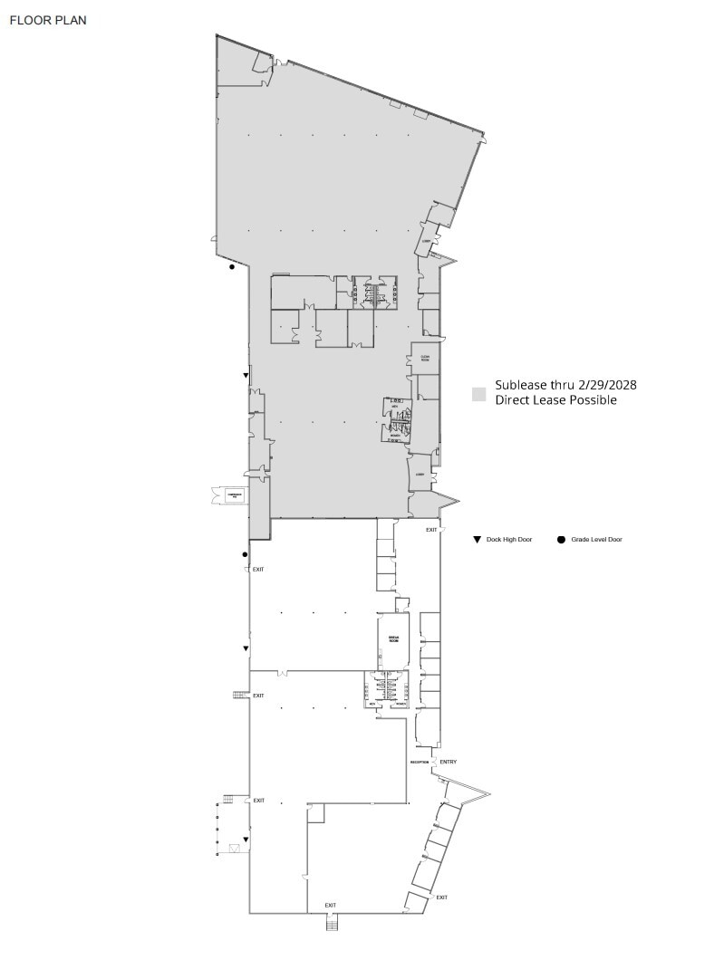
35% Office, 65% Mfg/Wse w/ Dump HVAC
- Listed rate may not include certain utilities, building services and property expenses
- 1 Drive Bay
- Private Restrooms
- Includes 23,576 SF of dedicated office space
- 2 Loading Docks
- 4,000 amps @ 277/480 Volts & 2,500 amps @ 120/208
| Space | Size | Term | Rental Rate | Space Use | Condition | Available |
| 1st Floor - 47027 | 67,549 SF | Negotiable | $30.15 CAD/SF/YR $2.51 CAD/SF/MO $2,036,729 CAD/YR $169,727 CAD/MO | Industrial | Partial Build-Out | 30 Days |
1st Floor - 47027
| Size |
| 67,549 SF |
| Term |
| Negotiable |
| Rental Rate |
| $30.15 CAD/SF/YR $2.51 CAD/SF/MO $2,036,729 CAD/YR $169,727 CAD/MO |
| Space Use |
| Industrial |
| Condition |
| Partial Build-Out |
| Available |
| 30 Days |
1 of 1
VIDEOS
MATTERPORT 3D EXTERIOR
MATTERPORT 3D TOUR
PHOTOS
STREET VIEW
STREET
MAP
1st Floor - 47027
| Size | 67,549 SF |
| Term | Negotiable |
| Rental Rate | $30.15 CAD/SF/YR |
| Space Use | Industrial |
| Condition | Partial Build-Out |
| Available | 30 Days |
35% Office, 65% Mfg/Wse w/ Dump HVAC
- Listed rate may not include certain utilities, building services and property expenses
- Includes 23,576 SF of dedicated office space
- 1 Drive Bay
- 2 Loading Docks
- Private Restrooms
- 4,000 amps @ 277/480 Volts & 2,500 amps @ 120/208
PROPERTY OVERVIEW
Excellent access to I-880 & I-680.
PROPERTY FACTS
Building Size
67,549 SF
Lot Size
5.00 AC
Year Built
1981
Construction
Masonry
Power Supply
Amps: 600-5,000 Volts: 277-480 Phase: 3
Zoning
I-R
1 1
1 of 3
VIDEOS
MATTERPORT 3D EXTERIOR
MATTERPORT 3D TOUR
PHOTOS
STREET VIEW
STREET
MAP
1 of 1
Presented by
47001-47027 Benicia St
Already a member? Log In
Hmm, there seems to have been an error sending your message. Please try again.
Thanks! Your message was sent.




