Log In/Sign Up
Your email has been sent.
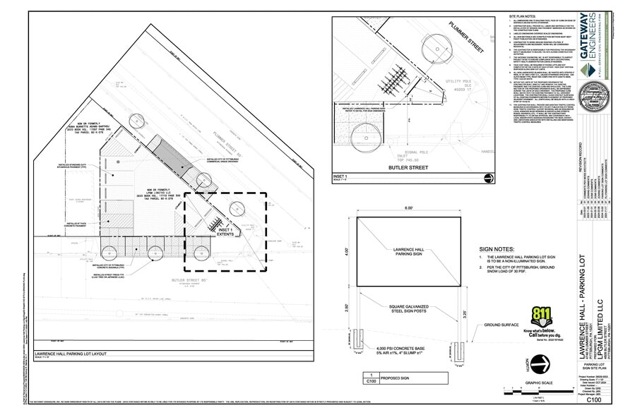
4746 Plummer Street St 0.06 Acres of Commercial Land Offered at $480,422 CAD in Pittsburgh, PA 15201



INVESTMENT HIGHLIGHTS
- Rare parking lot availability for sale
- High-demand Lawrenceville community
- Highly visible and accessible, newly paved/striped
EXECUTIVE SUMMARY
This improved parking lot, zoned LNC, is newly paved/striped and ready for business! This corner lot, located at the corner of Butler Street and Plummer Street, offers 7 parking spaces including 1 H/C. There is a existing, decommissioned UST with all environmental report clearances available.
PROPERTY FACTS
| Price | $480,422 CAD | Property Subtype | Commercial |
| Sale Type | Investment | Proposed Use | Parking Lot |
| No. Lots | 1 | Total Lot Size | 0.06 AC |
| Property Type | Land | Cross Streets | Butler Street |
| Zoning | LNC - Local Neighborhood Commercial | ||
| Price | $480,422 CAD |
| Sale Type | Investment |
| No. Lots | 1 |
| Property Type | Land |
| Property Subtype | Commercial |
| Proposed Use | Parking Lot |
| Total Lot Size | 0.06 AC |
| Cross Streets | Butler Street |
| Zoning | LNC - Local Neighborhood Commercial |
1 LOT AVAILABLE
Lot
| Price | $480,422 CAD | Lot Size | 0.06 AC |
| Price Per AC | $8,007,025.15 CAD |
| Price | $480,422 CAD |
| Price Per AC | $8,007,025.15 CAD |
| Lot Size | 0.06 AC |
This improved parking lot, zoned LNC, is newly paved/striped and ready for business! This corner lot, located at the corner of Butler Street and Plummer Street, offers 7 parking spaces including 1 H/C. Site photos pending.
DESCRIPTION
Rare opportunity to own a small paved/striped parking lot in the highly-coveted urban community of Lawrenceville (City of Pittsburgh), PA.
Walk Score®
Very Walkable (86)
Bike Score®
Very Bikeable (78)
1 of 7
VIDEOS
MATTERPORT 3D EXTERIOR
MATTERPORT 3D TOUR
PHOTOS
STREET VIEW
STREET
MAP
Presented by
4746 Plummer Street St
Already a member? Log In
Hmm, there seems to have been an error sending your message. Please try again.
Thanks! Your message was sent.

