Your email has been sent.
Park Highlights
- Inland port access, free trade zone, freeway visibility, 30 sec from on/off ramp, on campus pickleball courts & lake walking trail, 36' clear
Park Facts
| Total Space Available | 408,500 SF | Park Type | Industrial Park |
| Min. Divisible | 11,000 SF |
| Total Space Available | 408,500 SF |
| Min. Divisible | 11,000 SF |
| Park Type | Industrial Park |
All Available Spaces(4)
Display Rental Rate as
- Space
- Size
- Term
- Rental Rate
- Space Use
- Build-Out
- Available
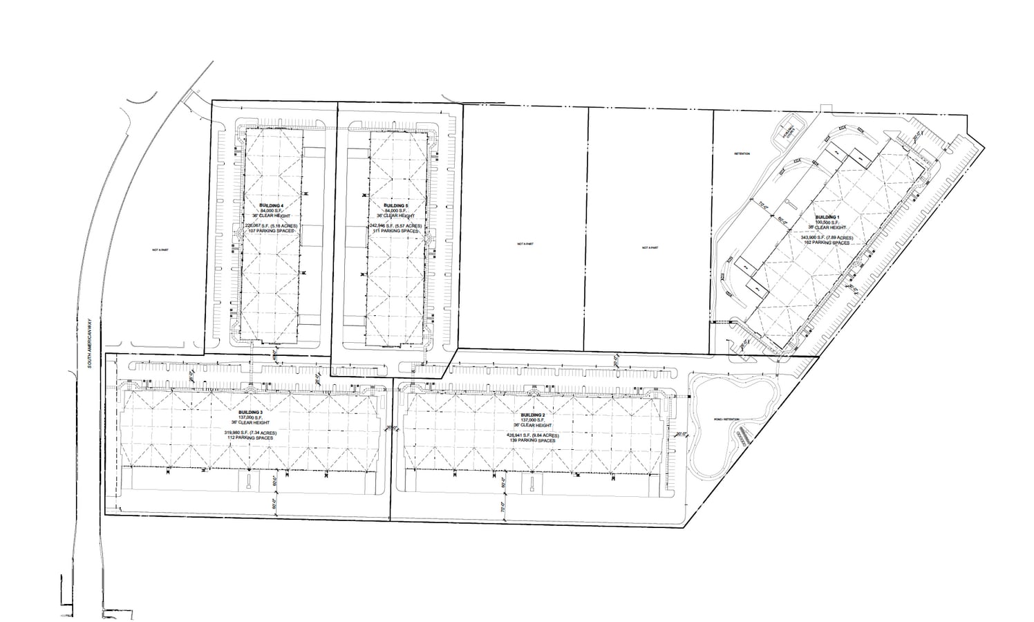
Payson Central Tech features a light industrial campus setting strategically located with exceptional I-15 frontage, under construction. Spanning over 900,000 square feet across five state-of-the-art buildings, this project sets a new standard for industrial space. The campus features buildings ranging from 100,000 sq. ft. to 150,000 sq. ft.—all Type A industrial facilities designed with the aesthetic appeal of upscale office space. Built to the highest construction standards, Payson Central Tech provides the perfect environment for businesses seeking quality, visibility, and growth.
- Lease rate does not include utilities, property expenses or building services
| Space | Size | Term | Rental Rate | Space Use | Build-Out | Available |
| 1st Floor | 11,000-100,500 SF | Negotiable | $15.18 CAD/SF/YR $1.26 CAD/SF/MO $1,525,546 CAD/YR $127,129 CAD/MO | Industrial | Shell Space | TBD |
1122 W 450 S - 1st Floor
- Space
- Size
- Term
- Rental Rate
- Space Use
- Build-Out
- Available
- Lease rate does not include utilities, property expenses or building services
| Space | Size | Term | Rental Rate | Space Use | Build-Out | Available |
| 1st Floor | 11,000-140,000 SF | Negotiable | $15.18 CAD/SF/YR $1.26 CAD/SF/MO $2,125,138 CAD/YR $177,095 CAD/MO | Industrial | Shell Space | 2027-12-01 |
1397 W 450 S - 1st Floor
- Space
- Size
- Term
- Rental Rate
- Space Use
- Build-Out
- Available
- Lease rate does not include utilities, property expenses or building services
| Space | Size | Term | Rental Rate | Space Use | Build-Out | Available |
| 1st Floor | 11,000-84,000 SF | Negotiable | $15.18 CAD/SF/YR $1.26 CAD/SF/MO $1,275,083 CAD/YR $106,257 CAD/MO | Industrial | Shell Space | Now |
475 W 1430 S - 1st Floor
- Space
- Size
- Term
- Rental Rate
- Space Use
- Build-Out
- Available
- Lease rate does not include utilities, property expenses or building services
| Space | Size | Term | Rental Rate | Space Use | Build-Out | Available |
| 1st Floor | 84,000 SF | Negotiable | $15.18 CAD/SF/YR $1.26 CAD/SF/MO $1,275,083 CAD/YR $106,257 CAD/MO | Industrial | Shell Space | 2027-12-01 |
475 W 1430 S - 1st Floor
1122 W 450 S - 1st Floor
| Size | 11,000-100,500 SF |
| Term | Negotiable |
| Rental Rate | $15.18 CAD/SF/YR |
| Space Use | Industrial |
| Build-Out | Shell Space |
| Available | TBD |
Payson Central Tech features a light industrial campus setting strategically located with exceptional I-15 frontage, under construction. Spanning over 900,000 square feet across five state-of-the-art buildings, this project sets a new standard for industrial space. The campus features buildings ranging from 100,000 sq. ft. to 150,000 sq. ft.—all Type A industrial facilities designed with the aesthetic appeal of upscale office space. Built to the highest construction standards, Payson Central Tech provides the perfect environment for businesses seeking quality, visibility, and growth.
- Lease rate does not include utilities, property expenses or building services
1397 W 450 S - 1st Floor
| Size | 11,000-140,000 SF |
| Term | Negotiable |
| Rental Rate | $15.18 CAD/SF/YR |
| Space Use | Industrial |
| Build-Out | Shell Space |
| Available | 2027-12-01 |
- Lease rate does not include utilities, property expenses or building services
475 W 1430 S - 1st Floor
| Size | 11,000-84,000 SF |
| Term | Negotiable |
| Rental Rate | $15.18 CAD/SF/YR |
| Space Use | Industrial |
| Build-Out | Shell Space |
| Available | Now |
- Lease rate does not include utilities, property expenses or building services
475 W 1430 S - 1st Floor
| Size | 84,000 SF |
| Term | Negotiable |
| Rental Rate | $15.18 CAD/SF/YR |
| Space Use | Industrial |
| Build-Out | Shell Space |
| Available | 2027-12-01 |
- Lease rate does not include utilities, property expenses or building services
Site Plan
Park Overview
State-of-the-art design: Class A industrial facilities with the look and feel of high-end office buildings. Highway frontage: AADT of 75,000 passenger vehicles per day Heavy-duty specifications: Factory Mutual-approved construction, ESFR fire sprinklers, and a 56-ft column width. Power & lighting: 2,500 amps @ 480 volts per building, paired with LED motion activated lighting for efficiency and sustainability. Loading capabilities: Ramp access with oversized doors, 36-ft clear height (40 ft in select areas), and docks featuring auto levelers, skirts, bumper stops, effective drains, sealed epoxy floors and 18” concrete landing pads. Speed bays on each end unit with low-stress ramps for seamless flatbed inside access loading and unloading. Tenant experience: Recreational courts, a landscaped walking path, and a pond designed to enhance workplace well-being. Designed by an owner who spent 35 years running his own manufacturing & distribution warehouses In addition, the development is strategically positioned near Utah’s growing tech corridor, half a mile north of MTech’s New Payson campus, and one mile south of the future UVU Payson campus, making it an ideal hub for forward-looking companies seeking both functionality and talent accessibility. The first two buildings of the campus will be delivered to market late 2026 and are now available for pre-leasing.
Presented by
Company Not Provided
Payson Central Tech | Payson, UT 84651
Hmm, there seems to have been an error sending your message. Please try again.
Thanks! Your message was sent.



