Log In/Sign Up
Your email has been sent.
48 Prospect St 10,434 SF 18% Leased Industrial Building Newmarket, ON L3Y 3T3 $2,690,000 CAD ($257.81 CAD/SF)



Executive Summary
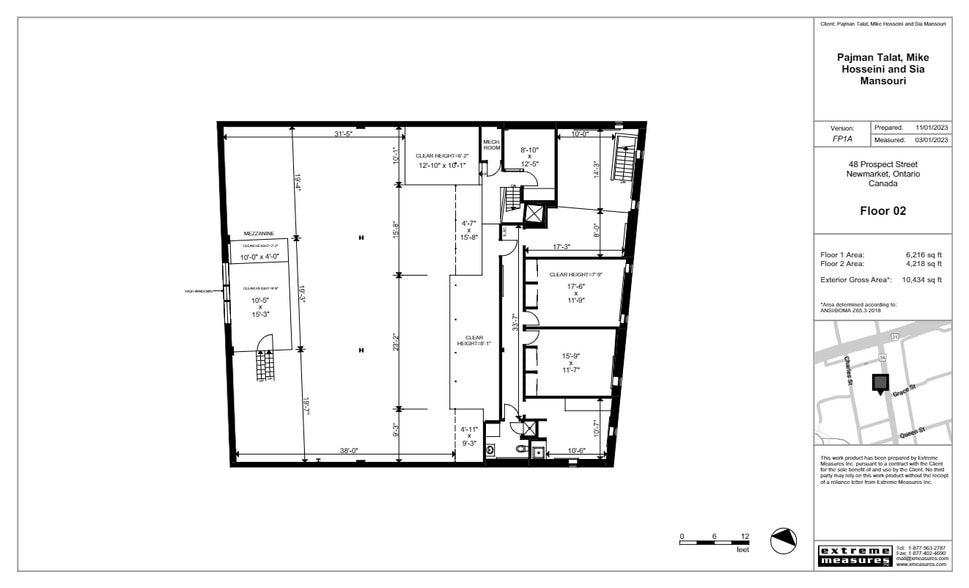
This exceptional 10434 sq. ft. offers a rare blend of functionality, flexibility, and efficiency-ideal for a wide range of industrial users. Featuring 18-foot clear ceiling height, the unit provides ample vertical capacity for racking, equipment, or storage. Updated electrical service supports light to medium industrial operations, while two drive-in shipping doors ensure seamless logistics and operational flow.A dedicated office area allows for administrative use and client interaction, with clear separation from the warehouse floor. The layout is open and adaptable, suitable for manufacturing, warehousing, assembly, and distribution.An additional residential component above the office offers flexible use as either office space or living quarters.Full list of permitted uses available, there is also a residential component above office that can be used as additional office as well as residential. phase 1 and 2 have been completed and its clean for Mortgage. Seller may entertain VTB. Floor plan is attached. Apx 8 parking space in the back
Property Facts
| Price | $2,690,000 CAD | Rentable Building Area | 10,434 SF |
| Price Per SF | $257.81 CAD | No. Stories | 2 |
| Sale Type | Investment | Year Built | 1956 |
| Property Type | Industrial | Parking Ratio | 0.77/1,000 SF |
| Property Subtype | Warehouse | Clear Ceiling Height | 18’ |
| Building Class | C | No. Drive In / Grade-Level Doors | 2 |
| Lot Size | 0.22 AC | ||
| Zoning | Mu1 - freestanding building, 6910 sqft, 18 ft ceiling height, has two offices 2 washrooms two drive in Ideal for , warehouse, manufacturing. | ||
| Price | $2,690,000 CAD |
| Price Per SF | $257.81 CAD |
| Sale Type | Investment |
| Property Type | Industrial |
| Property Subtype | Warehouse |
| Building Class | C |
| Lot Size | 0.22 AC |
| Rentable Building Area | 10,434 SF |
| No. Stories | 2 |
| Year Built | 1956 |
| Parking Ratio | 0.77/1,000 SF |
| Clear Ceiling Height | 18’ |
| No. Drive In / Grade-Level Doors | 2 |
| Zoning | Mu1 - freestanding building, 6910 sqft, 18 ft ceiling height, has two offices 2 washrooms two drive in Ideal for , warehouse, manufacturing. |
Utilities
- Lighting - Fluorescent
- Gas - Natural
- Water - City
- Sewer - City
- Heating - Electric
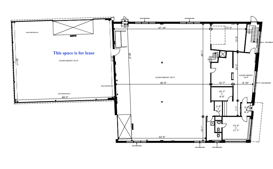
Space Availability
- Space
- Size
- Space Use
- Build-Out
- Available
49 x 39 with 15.5 ft ceiling has a drive in. flexible terms , no auto,
| Space | Size | Space Use | Build-Out | Available |
| 1st Fl - B | 5,676 SF | Industrial | Full Build-Out | Now |
1st Fl - B
| Size |
| 5,676 SF |
| Space Use |
| Industrial |
| Build-Out |
| Full Build-Out |
| Available |
| Now |
1st Fl - B
| Size | 5,676 SF |
| Space Use | Industrial |
| Build-Out | Full Build-Out |
| Available | Now |
49 x 39 with 15.5 ft ceiling has a drive in. flexible terms , no auto,
1 1
Moderately walkable
60/100
Exceptionally drivable
90/100
Good public transit
60/100
Moderately bikeable
60/100
1 of 18
Videos
Matterport 3D Exterior
Matterport 3D Tour
Photos
Street View
Street
Map
1 of 1
Presented by
48 Prospect St
Already a member? Log In
Hmm, there seems to have been an error sending your message. Please try again.
Thanks! Your message was sent.
