Your email has been sent.
Victoria Pond Center 4801 W 81st St 4,064 - 22,271 SF of Flex Space Available in Bloomington, MN 55437



Highlights
- Attractive office/warehouse building.
- Private/direct entrance.
- Warm shell condition.
- Brick exterior and generous glass lines.
- Building signage available.
- Mix of perimeter offices and open office on glass.
Features
All Available Spaces(4)
Display Rental Rate as
- Space
- Size
- Term
- Rental Rate
- Space Use
- Build-Out
- Available
4,423 SF of office space available. Private/direct entrance and building signage available. Great location in Bloomington, MN with easy access to shops and amenities.
- Lease rate does not include utilities, property expenses or building services
- 1 Loading Dock
- Building signage available
- Warm shell condition
- Includes 4,423 SF of dedicated office space
- Private/direct entrance
- Perfect for tech, creative, or showroom tenants
- Mix of perimeter offices and open office on glass
9,680 SF of office space available. Private/direct entrance and building signage available. Great location in Bloomington, MN with easy access to shops and amenities.
- Lease rate does not include utilities, property expenses or building services
- 1 Loading Dock
- Building signage available
- Warm shell condition
- Includes 9,680 SF of dedicated office space
- Private/direct entrance
- Perfect for tech, creative, or showroom tenants
- Mix of perimeter offices and open office on glass
4,064 SF of flex space available. 2,520 SF of office and 1,544 SF of warehouse with 1 dock. Private/direct entrance and building signage available. Great location in Bloomington, MN with easy access to shops and amenities.
- Lease rate does not include utilities, property expenses or building services
- 1 Loading Dock
- Building signage available
- Warm shell condition
- Includes 2,520 SF of dedicated office space
- Private/direct entrance
- Perfect for tech, creative, or showroom tenants
- Mix of perimeter offices and open office on glass
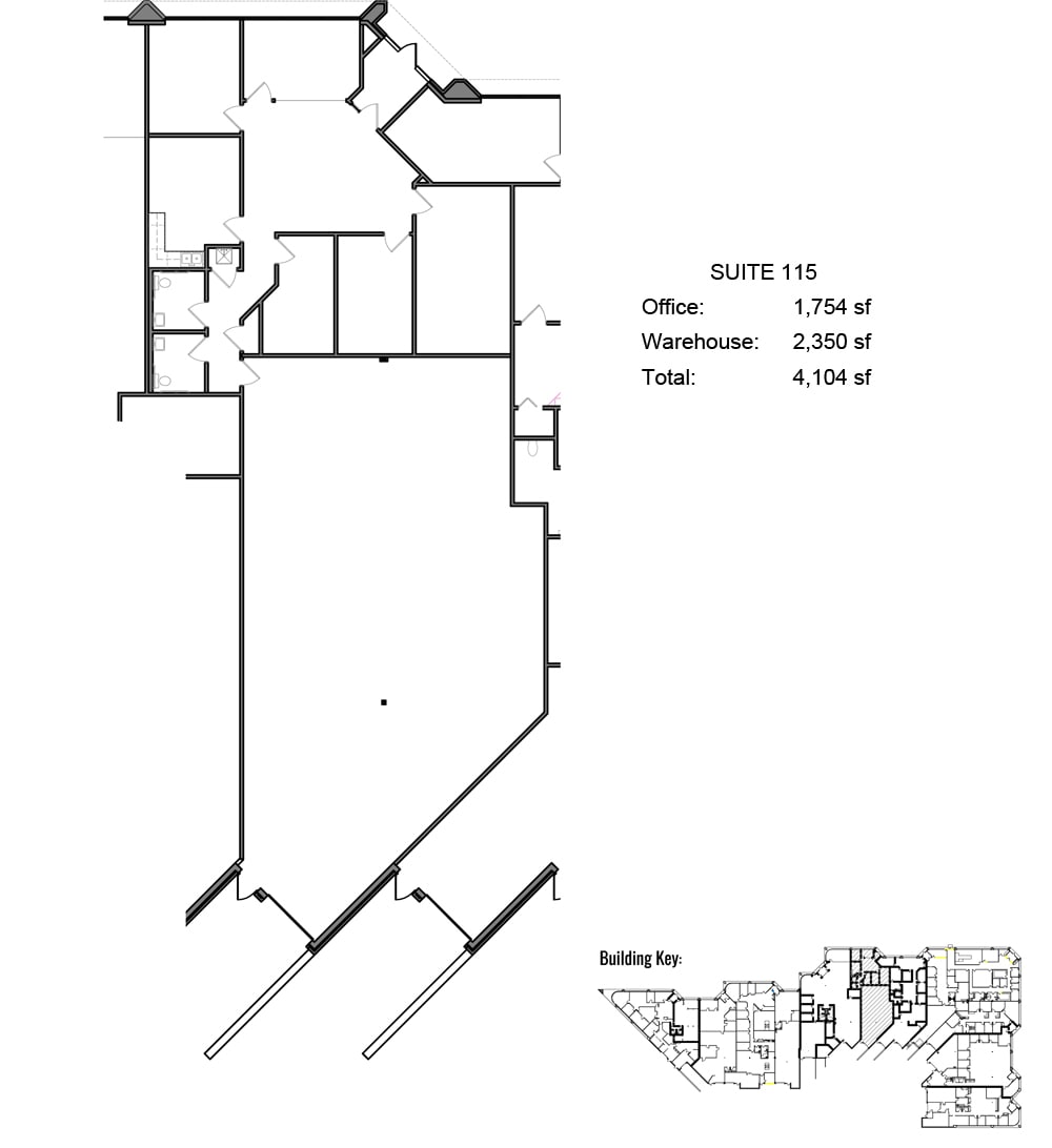
4,104 SF of flex space available. 1,754 SF of office and 2,350 SF of warehouse with 1 dock. Private/direct entrance and building signage available. Great location in Bloomington, MN with easy access to shops and amenities.
- Lease rate does not include utilities, property expenses or building services
- 1 Loading Dock
- Building signage available
- Warm shell condition
- Includes 2,520 SF of dedicated office space
- Private/direct entrance
- Perfect for tech, creative, or showroom tenants
- Mix of perimeter offices and open office on glass
| Space | Size | Term | Rental Rate | Space Use | Build-Out | Available |
| 1st Floor - 101 | 4,423 SF | Negotiable | $9.64 CAD/SF/YR $0.80 CAD/SF/MO $42,649 CAD/YR $3,554 CAD/MO | Flex | Full Build-Out | 30 Days |
| 1st Floor - 110 | 9,680 SF | Negotiable | $9.64 CAD/SF/YR $0.80 CAD/SF/MO $93,339 CAD/YR $7,778 CAD/MO | Flex | Full Build-Out | 30 Days |
| 1st Floor - 111A | 4,064 SF | Negotiable | $9.64 CAD/SF/YR $0.80 CAD/SF/MO $39,187 CAD/YR $3,266 CAD/MO | Flex | Full Build-Out | 30 Days |
| 1st Floor - 115 | 4,104 SF | Negotiable | $9.64 CAD/SF/YR $0.80 CAD/SF/MO $39,573 CAD/YR $3,298 CAD/MO | Flex | Full Build-Out | 30 Days |
1st Floor - 101
| Size |
| 4,423 SF |
| Term |
| Negotiable |
| Rental Rate |
| $9.64 CAD/SF/YR $0.80 CAD/SF/MO $42,649 CAD/YR $3,554 CAD/MO |
| Space Use |
| Flex |
| Build-Out |
| Full Build-Out |
| Available |
| 30 Days |
1st Floor - 110
| Size |
| 9,680 SF |
| Term |
| Negotiable |
| Rental Rate |
| $9.64 CAD/SF/YR $0.80 CAD/SF/MO $93,339 CAD/YR $7,778 CAD/MO |
| Space Use |
| Flex |
| Build-Out |
| Full Build-Out |
| Available |
| 30 Days |
1st Floor - 111A
| Size |
| 4,064 SF |
| Term |
| Negotiable |
| Rental Rate |
| $9.64 CAD/SF/YR $0.80 CAD/SF/MO $39,187 CAD/YR $3,266 CAD/MO |
| Space Use |
| Flex |
| Build-Out |
| Full Build-Out |
| Available |
| 30 Days |
1st Floor - 115
| Size |
| 4,104 SF |
| Term |
| Negotiable |
| Rental Rate |
| $9.64 CAD/SF/YR $0.80 CAD/SF/MO $39,573 CAD/YR $3,298 CAD/MO |
| Space Use |
| Flex |
| Build-Out |
| Full Build-Out |
| Available |
| 30 Days |
1st Floor - 101
| Size | 4,423 SF |
| Term | Negotiable |
| Rental Rate | $9.64 CAD/SF/YR |
| Space Use | Flex |
| Build-Out | Full Build-Out |
| Available | 30 Days |
4,423 SF of office space available. Private/direct entrance and building signage available. Great location in Bloomington, MN with easy access to shops and amenities.
- Lease rate does not include utilities, property expenses or building services
- Includes 4,423 SF of dedicated office space
- 1 Loading Dock
- Private/direct entrance
- Building signage available
- Perfect for tech, creative, or showroom tenants
- Warm shell condition
- Mix of perimeter offices and open office on glass
1st Floor - 110
| Size | 9,680 SF |
| Term | Negotiable |
| Rental Rate | $9.64 CAD/SF/YR |
| Space Use | Flex |
| Build-Out | Full Build-Out |
| Available | 30 Days |
9,680 SF of office space available. Private/direct entrance and building signage available. Great location in Bloomington, MN with easy access to shops and amenities.
- Lease rate does not include utilities, property expenses or building services
- Includes 9,680 SF of dedicated office space
- 1 Loading Dock
- Private/direct entrance
- Building signage available
- Perfect for tech, creative, or showroom tenants
- Warm shell condition
- Mix of perimeter offices and open office on glass
1st Floor - 111A
| Size | 4,064 SF |
| Term | Negotiable |
| Rental Rate | $9.64 CAD/SF/YR |
| Space Use | Flex |
| Build-Out | Full Build-Out |
| Available | 30 Days |
4,064 SF of flex space available. 2,520 SF of office and 1,544 SF of warehouse with 1 dock. Private/direct entrance and building signage available. Great location in Bloomington, MN with easy access to shops and amenities.
- Lease rate does not include utilities, property expenses or building services
- Includes 2,520 SF of dedicated office space
- 1 Loading Dock
- Private/direct entrance
- Building signage available
- Perfect for tech, creative, or showroom tenants
- Warm shell condition
- Mix of perimeter offices and open office on glass
1st Floor - 115
| Size | 4,104 SF |
| Term | Negotiable |
| Rental Rate | $9.64 CAD/SF/YR |
| Space Use | Flex |
| Build-Out | Full Build-Out |
| Available | 30 Days |
4,104 SF of flex space available. 1,754 SF of office and 2,350 SF of warehouse with 1 dock. Private/direct entrance and building signage available. Great location in Bloomington, MN with easy access to shops and amenities.
- Lease rate does not include utilities, property expenses or building services
- Includes 2,520 SF of dedicated office space
- 1 Loading Dock
- Private/direct entrance
- Building signage available
- Perfect for tech, creative, or showroom tenants
- Warm shell condition
- Mix of perimeter offices and open office on glass
Property Overview
Attractive office/warehouse building with brick exterior and generous glass lines. Private/direct entrance and building signage available. Perfect for tech, creative, or showroom tenants. Warm shell condition, a mix of perimeter offices and open office on glass. Dock and drive-in loading in the warehouse. Minutes from the Mpls/St. Paul International Airport and excellent location to I-494, Hwy 100 and France Avenue.
Property Facts
Presented by
Victoria Pond Center | 4801 W 81st St
Hmm, there seems to have been an error sending your message. Please try again.
Thanks! Your message was sent.










