Your email has been sent.
Highlights
- Newly constructed Class A freestanding building with design flexibility for single or multi-tenant occupancy.
- Surrounding area includes strong demographics: high-income households and significant population growth.
- Suitable for medical, wellness, education, fitness, professional office, and financial service uses.
- High visibility location within a major residential corridor and a 4,000+ home community.
- Ample on-site parking and convenient access to neighborhood roadways.
All Available Space(1)
Display Rental Rate as
- Space
- Size
- Term
- Rental Rate
- Space Use
- Build-Out
- Available
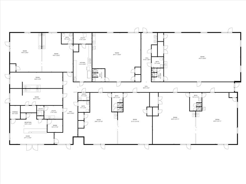
This property offers flexible leasing configurations within a newly constructed freestanding building in St. Augustine. The available space can accommodate either a full-building, single-tenant user or multiple suites beginning at approximately 1,500 SF. The building was completed in 2025 and includes a modern layout with adaptable plans to suit medical, office, or professional service requirements. Current lease options are structured to provide flexibility for tenant needs, with the ability to customize interiors and layout.
- Lease rate does not include utilities, property expenses or building services
- Fits 4 - 80 People
- Space is in Excellent Condition
- Security System
- Emergency Lighting
- Wheelchair Accessible
- Full-building or multi-tenant layout
- NNN lease structure applies
- Fully Built-Out as Professional Services Office
- Partitioned Offices
- Central Air and Heating
- After Hours HVAC Available
- Smoke Detector
- New construction completed in 2025
- Flexible design for medical and office
- Ample on-site parking provided
| Space | Size | Term | Rental Rate | Space Use | Build-Out | Available |
| 1st Floor | 1,500-10,000 SF | 5-10 Years | $39.06 CAD/SF/YR $3.25 CAD/SF/MO $390,567 CAD/YR $32,547 CAD/MO | Office/Medical | Full Build-Out | Now |
1st Floor
| Size |
| 1,500-10,000 SF |
| Term |
| 5-10 Years |
| Rental Rate |
| $39.06 CAD/SF/YR $3.25 CAD/SF/MO $390,567 CAD/YR $32,547 CAD/MO |
| Space Use |
| Office/Medical |
| Build-Out |
| Full Build-Out |
| Available |
| Now |
1st Floor
| Size | 1,500-10,000 SF |
| Term | 5-10 Years |
| Rental Rate | $39.06 CAD/SF/YR |
| Space Use | Office/Medical |
| Build-Out | Full Build-Out |
| Available | Now |
This property offers flexible leasing configurations within a newly constructed freestanding building in St. Augustine. The available space can accommodate either a full-building, single-tenant user or multiple suites beginning at approximately 1,500 SF. The building was completed in 2025 and includes a modern layout with adaptable plans to suit medical, office, or professional service requirements. Current lease options are structured to provide flexibility for tenant needs, with the ability to customize interiors and layout.
- Lease rate does not include utilities, property expenses or building services
- Fully Built-Out as Professional Services Office
- Fits 4 - 80 People
- Partitioned Offices
- Space is in Excellent Condition
- Central Air and Heating
- Security System
- After Hours HVAC Available
- Emergency Lighting
- Smoke Detector
- Wheelchair Accessible
- New construction completed in 2025
- Full-building or multi-tenant layout
- Flexible design for medical and office
- NNN lease structure applies
- Ample on-site parking provided
Property Overview
481 Shores Blvd is a newly constructed 10,000 SF freestanding building available for lease, offering either a full-building opportunity or configurable multi-tenant suites starting at approximately 1,500 SF. Located within one of St. Augustine’s most established and high-income residential corridors, the property is positioned to serve immediate demand for medical, wellness, and service-based users. The surrounding trade area includes more than 30,000 residents within three miles and over 55,000 within five miles, supported by approximately $2.5 billion in local buying power and population growth exceeding 16 percent. With limited availability of large-format space in St. Johns County, this property presents a rare opportunity to secure up to 10,000 SF in a high-demand market with minimal direct competition and a built-in customer base from day one. The building can accommodate a single full-building user seeking a standalone presence with complete control over branding and layout, or it can be configured for multiple tenants with flexible suite sizes ranging from approximately 1,500 SF up to the full 10,000 SF. Constructed in 2025, the property features ample parking, easy neighborhood access, and high visibility within a 4,000+ home community. The adaptable floor plan is well suited for medical, dental, behavioral health, education, wellness, fitness, professional office, and financial service uses. The area includes more than 17,000 households within three miles, an average household income exceeding $100,000, and an owner-occupied rate of approximately 80 percent, supporting strong repeat clientele. With a median age in the 50s, the surrounding population is particularly well aligned with medical and service-oriented businesses. Ownership is prepared to structure flexible lease terms based on tenant needs, including customized suite configurations, build-out considerations, and both single-tenant and multi-tenant occupancy options. Suites are available now from approximately 1,500 SF up to 10,000 SF, with full-building availability for qualified users. Opportunities of this size and location are limited, and serious inquiries are encouraged to schedule a tour and explore layout options.
- 24 Hour Access
- Controlled Access
- Day Care
- Fenced Lot
- Security System
- Wheelchair Accessible
- Reception
- Storage Space
- Air Conditioning
- Smoke Detector
Property Facts
Presented by
481 Shores Blvd
Hmm, there seems to have been an error sending your message. Please try again.
Thanks! Your message was sent.







