Your email has been sent.
Built-to-Suit Medical Building 489 E Main St 31,250 SF of Office/Medical Space Available in Jefferson Valley, NY 10535



Space Availability (1)
Display Rental Rate as
- Space
- Size
- Term
- Rental Rate
- Rent Type
| Space | Size | Term | Rental Rate | Rent Type | ||
| 1st Floor | 31,250 SF | Negotiable | Upon Request Upon Request Upon Request Upon Request | TBD |
1st Floor
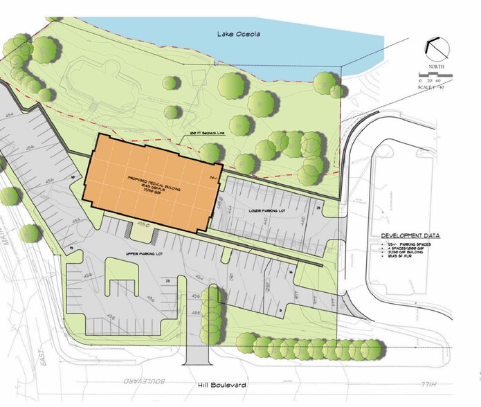
Rare medical office leasing opportunity in the heart of Jefferson Valley. Situated on approximately 2.5 acres just moments from Route 6, Route 6N, and the Taconic State Parkway, this highly accessible site offers exceptional visibility and connectivity within one of Northern Westchester’s primary commercial corridors. The project will deliver just over 30,000 gross square feet of modern medical office space and is being offered for lease on a build-to-suit basis, allowing future tenants to customize layout, infrastructure, and finishes to meet their specific operational needs. Ideal for medical practices, outpatient services, specialty providers, and healthcare groups seeking a strategically located facility with strong surrounding demographics and convenient regional access. A rare opportunity to secure purpose-built medical space in a supply-constrained market. For more information on lease terms, build-to-suit options, and delivery timelines, please inquire.
- 31,250 SF proposed medical office building
- To be built-to-suit as per tenants specifications
- 2.5 acre lot
- 125 on-site parking spaces
- Direct access to Rte 6, Rte 6N, Taconic
Rent Types
The rent amount and type that the tenant (lessee) will be responsible to pay to the landlord (lessor) throughout the lease term is negotiated prior to both parties signing a lease agreement. The rent type will vary depending upon the services provided. For example, triple net rents are typically lower than full service rents due to additional expenses the tenant is required to pay in addition to the base rent. Contact the listing broker for a full understanding of any associated costs or additional expenses for each rent type.
1. Full Service: A rental rate that includes normal building standard services as provided by the landlord within a base year rental.
2. Double Net (NN): Tenant pays for only two of the building expenses; the landlord and tenant determine the specific expenses prior to signing the lease agreement.
3. Triple Net (NNN): A lease in which the tenant is responsible for all expenses associated with their proportional share of occupancy of the building.
4. Modified Gross: Modified Gross is a general type of lease rate where typically the tenant will be responsible for their proportional share of one or more of the expenses. The landlord will pay the remaining expenses. See the below list of common Modified Gross rental rate structures: 4. Plus All Utilities: A type of Modified Gross Lease where the tenant is responsible for their proportional share of utilities in addition to the rent. 4. Plus Cleaning: A type of Modified Gross Lease where the tenant is responsible for their proportional share of cleaning in addition to the rent. 4. Plus Electric: A type of Modified Gross Lease where the tenant is responsible for their proportional share of the electrical cost in addition to the rent. 4. Plus Electric & Cleaning: A type of Modified Gross Lease where the tenant is responsible for their proportional share of the electrical and cleaning cost in addition to the rent. 4. Plus Utilities and Char: A type of Modified Gross Lease where the tenant is responsible for their proportional share of the utilities and cleaning cost in addition to the rent. 4. Industrial Gross: A type of Modified Gross lease where the tenant pays one or more of the expenses in addition to the rent. The landlord and tenant determine these prior to signing the lease agreement.
5. Tenant Electric: The landlord pays for all services and the tenant is responsible for their usage of lights and electrical outlets in the space they occupy.
6. Negotiable or Upon Request: Used when the leasing contact does not provide the rent or service type.
7. TBD: To be determined; used for buildings for which no rent or service type is known, commonly utilized when the buildings are not yet built.
Site Plan
Select Tenants at Built-to-Suit Medical Building
- Tenant
- Description
- US Locations
- Reach
- Jefferson Valley Manor
- Accommodation and Food Services
- 1
- -
| Tenant | Description | US Locations | Reach |
| Jefferson Valley Manor | Accommodation and Food Services | 1 | - |
Property Facts
| Total Space Available | 31,250 SF | Year Built | 1970 |
| Property Type | Retail | Parking Ratio | 6.82/1,000 SF |
| Property Subtype | Freestanding | Construction Status | Under Renovation |
| Gross Leasable Area | 31,250 SF |
| Total Space Available | 31,250 SF |
| Property Type | Retail |
| Property Subtype | Freestanding |
| Gross Leasable Area | 31,250 SF |
| Year Built | 1970 |
| Parking Ratio | 6.82/1,000 SF |
| Construction Status | Under Renovation |
About the Property
The Klein Lefkowitz Commercial Team at Houlihan Lawrence Commercial is pleased to present a rare medical office leasing opportunity at 489 E Main Street in Jefferson Valley, New York. Situated on approximately 2.5 acres within one of Northern Westchester's established healthcare corridors, this proposed development will deliver just over 31,000 gross square feet of modern, purpose built medical office space designed to meet the evolving needs of today's healthcare providers. The project is being offered on a build to suit basis, providing future tenants with the ability to fully customize floor plans, mechanical and IT infrastructure, and interior finishes to align with their specific clinical and operational requirements. With 125 on site parking spaces and direct access to Route 6, Route 6N, and proximity to the Taconic State Parkway, the property offers the accessibility and visibility that healthcare tenants and their patients require. The development is well suited for a wide range of healthcare related tenants, including medical office and specialty practices, primary care facilities, ambulatory and outpatient service providers, physical therapy and rehabilitation centers, diagnostic and imaging operations, urgent care and walk in clinics, laboratory and testing facilities, behavioral health and wellness practices, and pharmacy and complementary healthcare retail uses. Modern healthcare development trends emphasize centralized medical campuses and outpatient care hubs where patients can access multiple services in a single location. The proposed project at 489 E Main Street is designed to serve as exactly that type of environment, improving patient access, reducing travel time, encouraging collaboration among providers, and expanding outpatient healthcare infrastructure in a supply constrained submarket.
- Air Conditioning
Nearby Major Retailers
Presented by
Built-to-Suit Medical Building | 489 E Main St
Hmm, there seems to have been an error sending your message. Please try again.
Thanks! Your message was sent.



