Log In/Sign Up
Your email has been sent.
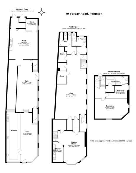
49 Torbay Rd 3,683 SF Retail Building Paignton TQ4 6AA $784,458 CAD ($212.99 CAD/SF)



Investment Highlights
- The property occupies a highly prominent corner position in a busy retail and tourist location.
- The property offers significant flexibility for owner-occupiers, investors, or developers.
- The opportunity includes both commercial restaurant space and a refurbished residential apartment.
Executive Summary
An excellent opportunity to acquire a freehold mixed-use property comprising a former fish and chip takeaway and restaurant together with a self-contained three-bedroom refurbished apartment, prominently positioned on a busy corner along Torbay Road in Paignton.
The commercial element is arranged over ground and first floors and provides extensive trading space, previously used as a takeaway and restaurant. While the business has not been actively trading for some time, the property benefits from a programme of refurbishment, including upgrades to the building and equipment. The trading areas now offer a blank canvas for an incoming owner to reconfigure, modernise, or repurpose to suit a variety of uses, subject to the necessary consents.
The commercial element is arranged over ground and first floors and provides extensive trading space, previously used as a takeaway and restaurant. While the business has not been actively trading for some time, the property benefits from a programme of refurbishment, including upgrades to the building and equipment. The trading areas now offer a blank canvas for an incoming owner to reconfigure, modernise, or repurpose to suit a variety of uses, subject to the necessary consents.
Property Facts
Sale Type
Investment or Owner User
Property Type
Retail
Tenure
Freehold
Property Subtype
Restaurant
Building Size
3,683 SF
Year Built
1980
Price
$784,458 CAD
Price Per SF
$212.99 CAD
Tenancy
Single
Building Height
3 Stories
Building FAR
2.11
Lot Size
0.04 AC
Parking
5 Spaces (1.36 Spaces per 1,000 SF Leased)
Amenities
- Restaurant
- Security System
- Storage Space
- Smoke Detector
1 1
Nearby Major Retailers
1 of 7
Videos
Matterport 3D Exterior
Matterport 3D Tour
Photos
Street View
Street
Map
1 of 1
Presented by
49 Torbay Rd
Already a member? Log In
Hmm, there seems to have been an error sending your message. Please try again.
Thanks! Your message was sent.
