Log In/Sign Up
Your email has been sent.
4900 Fashion Square Mall
Saginaw, MI 48604
Sears (Former) · Retail Property For Sale


Investment Highlights
- Great visibility
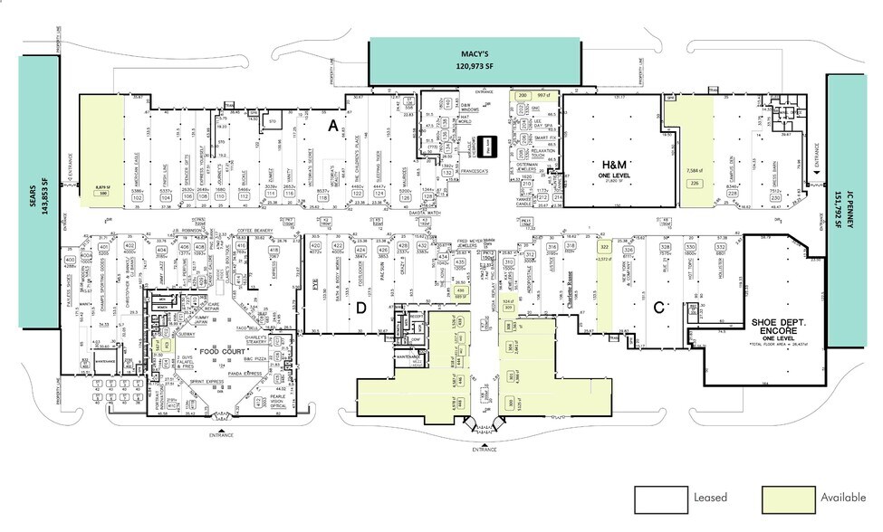
- The mall’s other major anchors are Macy’s and JCPenny’s, and is surrounded by an AMC movie theatre.
Executive Summary
The Fashion Square Mall in Saginaw has a total of 796,018 SF of space, including 16,612 SF of space for automotive centers. The mall’s other major anchors are Macy’s and JCPenny’s, and is surrounded by an AMC movie theather, Kohl’s, Cabela’s, Meijer, and shopping centers including stores such as
T.J. Maxx, Lowe’s, Target and Five Below
T.J. Maxx, Lowe’s, Target and Five Below
Property Facts
Sale Type
Investment or Owner User
Sale Conditions
Property Type
Retail
Property Subtype
Department Store
Building Size
188,772 SF
Building Class
C
Year Built
1972
Percent Leased
100%
Building Height
1 Story
Building FAR
0.22
Lot Size
19.88 AC
Zoning
B-3
Parking
381 Spaces (1.43 Spaces per 1,000 SF Leased)
Property Taxes
| Parcel Number | 23124022002000 | Improvements Assessment | $0 CAD |
| Land Assessment | $0 CAD | Total Assessment | $3,844,520 CAD |
Property Taxes
Parcel Number
23124022002000
Land Assessment
$0 CAD
Improvements Assessment
$0 CAD
Total Assessment
$3,844,520 CAD
1 of 3
Videos
Matterport 3D Exterior
Matterport 3D Tour
Photos
Street View
Street
Map
