Log In/Sign Up
Your email has been sent.
Highlights
- High visibility corner at signalized intersection.
- Rapidly growing market with more than 3,000 homes approved or under construction.
- Walkable neighborhood setting.
All Available Space(1)
Display Rental Rate as
- Space
- Size
- Term
- Rental Rate
- Space Use
- Build-Out
- Available
Office space for lease
- Rate includes utilities, building services and property expenses
- 2 Private Offices
- Fully Built-Out as Standard Office
- Features 2 private offices.
| Space | Size | Term | Rental Rate | Space Use | Build-Out | Available |
| 3rd Floor, Ste 330 | 1,741 SF | Negotiable | $35.63 CAD/SF/YR $2.97 CAD/SF/MO $62,033 CAD/YR $5,169 CAD/MO | Office | Full Build-Out | 30 Days |
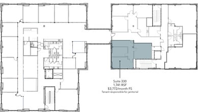
3rd Floor, Ste 330
| Size |
| 1,741 SF |
| Term |
| Negotiable |
| Rental Rate |
| $35.63 CAD/SF/YR $2.97 CAD/SF/MO $62,033 CAD/YR $5,169 CAD/MO |
| Space Use |
| Office |
| Build-Out |
| Full Build-Out |
| Available |
| 30 Days |
1 of 1
Videos
Matterport 3D Exterior
Matterport 3D Tour
Photos
Street View
Street
Map
3rd Floor, Ste 330
| Size | 1,741 SF |
| Term | Negotiable |
| Rental Rate | $35.63 CAD/SF/YR |
| Space Use | Office |
| Build-Out | Full Build-Out |
| Available | 30 Days |
Office space for lease
- Rate includes utilities, building services and property expenses
- Fully Built-Out as Standard Office
- 2 Private Offices
- Features 2 private offices.
Property Overview
Office building with ground floor retail in Holly Springs less than three miles from NC Highway 55, the new Rex Holly Springs Hospital, and downtown Holly Springs. High visibility corner at signalized intersection. Walkable neighborhood setting. Rapidly growing market with more than 3,000 homes approved or under construction.
- Restaurant
- Kitchen
Property Facts
Building Type
Office
Year Built
1998
Building Height
3 Stories
Building Size
37,567 SF
Building Class
B
Typical Floor Size
12,522 SF
Unfinished Ceiling Height
12’
Parking
84 Surface Parking Spaces
Fairly walkable
40/100
Very drivable
80/100
Fairly bikeable
40/100
1 of 24
Videos
Matterport 3D Exterior
Matterport 3D Tour
Photos
Street View
Street
Map
Presented by
4928 Linksland Dr
Already a member? Log In
Hmm, there seems to have been an error sending your message. Please try again.
Thanks! Your message was sent.






